Здание на Фрязевской, 1054 м², лот - 5067

Продажа | Лот 5067

Image 0
Image 1
Image 2
Image 3
Image 4
5
Image 0 Image 1 Image 2 Image 3 Image 4
357000000 RUB

357 000 000 ₽

339 000 ₽ за м²

Метро:
Новогиреево :
pedestrian  1 минута пешком
Адрес: Фрязевская, 1с1
Площадь: 1054 м²
Назначение: магазин стоматология супермаркет аптека продуктовый магазин алко-маркет бижутерия продукты сувениры
Высота потолков: 3 метра
Отделка: С отделкой
Парковка: перед фасадом
Электрическая мощность (кВт): 200
Зона разгрузки: Есть
Линия: Первая
Тип входа: Отдельный со двора
Витрины есть

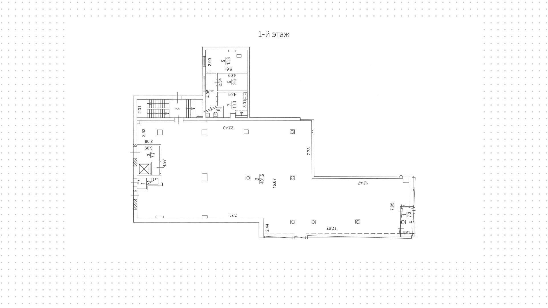
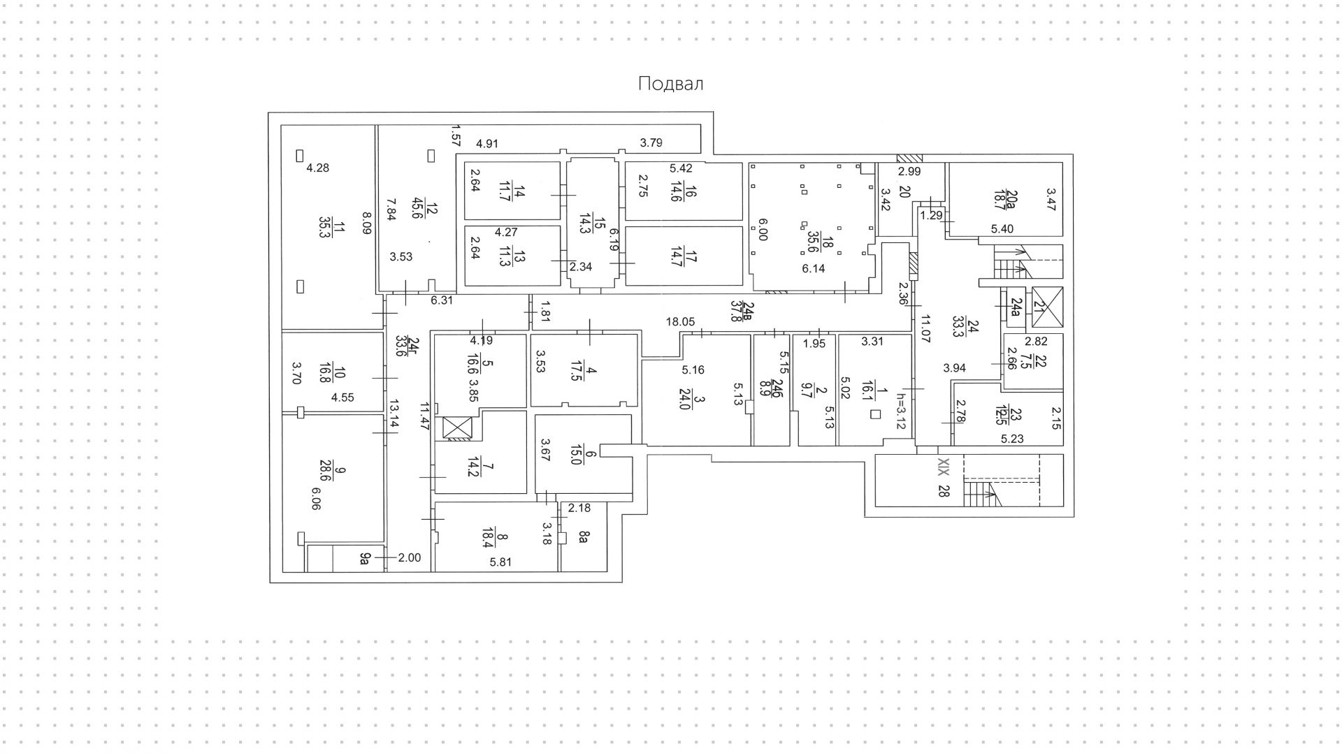
Двухэтажное здание на первой линии Фрязевской улицы в Новогиреево. В зоне охвата проживает и работает 53 000 человек. Близость остановок общественного транспорта обеспечивает интенсивный пешеходный трафик. Окружение — супермаркеты «Перекрёсток» и «Чижик», алкомаркет «Красное&Белое», «Межрегиональная ярмарка». За минуту можно пешком дойти до станции МЦД-4 «Новогиреево».

Готовый арендный бизнес площадью 1 054 м² с комбинированной планировкой. Объект оснащен центральными коммуникациями. Арендаторы — супермаркет «Пятёрочка», алкомаркет «Винлаб», аптека, стоматология, салон красоты и другие. Отдельные входы с улицы и со двора с зоной разгрузки, витринное остекление. Спланировано место для размещения рекламы на фасаде. Возле здания организованы платная и бесплатная городские парковки.

357 000 000 ₽

339 000 ₽ за м²

Метро:
Новогиреево :
pedestrian  1 минута пешком
Адрес: Фрязевская, 1с1
Площадь: 1054 м²
Назначение: магазин стоматология супермаркет аптека продуктовый магазин алко-маркет бижутерия продукты сувениры
Высота потолков: 3 метра
Отделка: С отделкой
Парковка: перед фасадом
Электрическая мощность (кВт): 200
Зона разгрузки: Есть
Линия: Первая
Тип входа: Отдельный со двора
Витрины есть
expert

Александр

Руководитель проекта

Для уточнения и фиксирования цены можно связаться напрямую с брокером

+7 (495) 106-19-99

Расположение на карте

Похожие лоты

Мы включили в наш каталог лучшие предложения по коммерческой недвижимости в Москве.

Новинка
lot-16040
lot-16040
2
Помещение под сувениры, 702 м²

Продажа | Лот 16338

Москва Нижние Мнёвники, 39/41

Площадь: 702 м²

Офис в комплексе STONE Мневники. Офис площадью 717 м² расположен на 10 этаже из 12, без отделки. Окна: панорамные. Вид из окон: улица нижние...

358 926 000 ₽

511 000 ₽ за м²

lot-3645
lot-3645
lot-3645
lot-3645
lot-3645
5
Помещение в нежилом здании с арендатором Harat's Pub

Продажа | Лот 5174

Таганская 2 мин

Москва Воронцовская, 2/10с1

Площадь: 209 м²

Назначение: Торговое помещение под  ресторан бар кафе магазин бижутерия сувениры

Арендаторы: ресторан Harat’s Pub

Доходность: 5%, 1 429 000 ₽/мес

Окупаемость: 21 год

Готовый арендный бизнес на 1-й линии Воронцовской улици в Таганском районе. Интенсивный поток пешеходного и автомобильного трафика,...

360 000 000 ₽

1 722 000 ₽ за м²

Новинка
lot-15840
lot-15840
2
Помещение под сувениры, 701 м²

Продажа | Лот 1945

Москва Шмитовский проезд, 37

Площадь: 701 м²

Офис в комплексе iCity. Офис площадью 396 м² расположен на 27 этаже из 61, без отделки. Окна: панорамные, Панорамные с возможностью проветривания....

356 732 000 ₽

509 000 ₽ за м²

Новинка
lot-13982
lot-13982
lot-13982
lot-13982
lot-13982
lot-13982
6
Помещение под сувениры, 1065 м²

Продажа | Лот 18319

Щелковская 6 мин

Москва Щёлковское шоссе, 79с1

Площадь: 1 065 м²

Назначение: Торговое помещение под  магазин супермаркет бижутерия сувениры

Готовый арендный бизнес в Гольяново. Объект располагается на 1 линии Щёлковского шоссе, обеспечен интенсивный автомобильный и пешеходный...

249 500 000 ₽

234 000 ₽ за м²

Новинка
lot-14456
lot-14456
lot-14456
lot-14456
lot-14456
lot-14456
lot-14456
lot-14456
lot-14456
lot-14456
10
Помещение под сувениры, 1039 м²

Продажа | Лот 10091

Перово 1 мин

Москва Зелёный проспект, 19

Площадь: 1 039 м²

Назначение: Торговое помещение под  магазин банк пекарня кафе фаст-фуд бижутерия сувениры

Двухэтажное здание с цоколем на первой линии Зелёного проспекта в Перово. Жилой район, большой поток пешеходного и автомобильного...

480 000 000 ₽

462 000 ₽ за м²

Позвонить эксперту max whatsapp telegram
Каширская
Академический
ЦАО
Академический