Здание на Чугунова, 1550 м², лот - 635

Продажа | Лот 635

Image 0
Image 1
Image 2
3
Image 0 Image 1 Image 2
179000000 RUB

179 000 000 ₽

115 000 ₽ за м²

Адрес: Раменское, Чугунова, 18А
Площадь: 1550 м²
Назначение: магазин свободное пекарня супермаркет кафе пункт выдачи алко-маркет бижутерия бизнес сувениры
Высота потолков: 3.5 метра
Отделка: С отделкой
Парковка: бесплатная перед фасадом здания
Электрическая мощность (кВт): 150
Зона разгрузки: Есть
Линия: Первая
Тип входа: Отдельный с улицы
Витрины есть

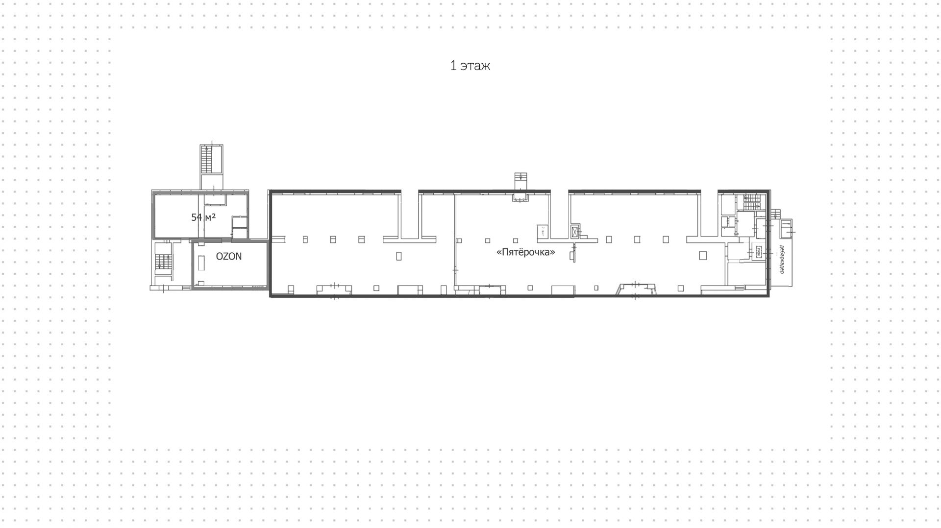
Готовый арендный бизнес на 1-й линии улицы Чугунова в городе Раменское. Большой поток пешеходного и автомобильного трафика, рядом жилые комплексы «Раменское-Парк» и «Флагман». Окружение — торговый центр «Галерея», алкомаркет «Красное&Белое».

Здание с открытой планировкой площадью 1 550 м² включает два этажа. Основные арендаторы — магазин одежды «Рамит Сити», пункт выдачи OZON и магазин косметики Korea Cosmetic, пиццерия «Папа Джонс», супермаркет «ВкусВилл» и другие. Подведены центральные коммуникации. Отдельный вход с улицы, витринное остекление. Бесплатная парковка находится перед фасадом здания.

179 000 000 ₽

115 000 ₽ за м²

Адрес: Раменское, Чугунова, 18А
Площадь: 1550 м²
Назначение: магазин свободное пекарня супермаркет кафе пункт выдачи алко-маркет бижутерия бизнес сувениры
Высота потолков: 3.5 метра
Отделка: С отделкой
Парковка: бесплатная перед фасадом здания
Электрическая мощность (кВт): 150
Зона разгрузки: Есть
Линия: Первая
Тип входа: Отдельный с улицы
Витрины есть
expert

Елена

Эксперт проекта

Для уточнения и фиксирования цены можно связаться напрямую с брокером

+7 (495) 106-19-99

Расположение на карте

Похожие лоты

Мы включили в наш каталог лучшие предложения по коммерческой недвижимости в Москве.

Новинка
lot-16488
lot-16488
lot-16488
lot-16488
lot-16488
lot-16488
lot-16488
7
Помещение под сувениры, 315 м²

Продажа | Лот 4607

Перово 1 мин

Москва Зелёный проспект, 19

Площадь: 315 м²

Назначение: Торговое помещение под  ресторан магазин общепит фаст-фуд бижутерия сувениры

Арендаторы: ресторан быстрого питания KFC

Доходность: 10%, 1 492 000 ₽/мес

Окупаемость: 10 лет

Готовый арендный бизнес на 1-й линии Зелёного проспекта в Перово. Большой поток пешеходного и автомобильного трафика, рядом остановка...

179 000 000 ₽

568 000 ₽ за м²

Новинка
lot-4718
lot-4718
lot-4718
3
Помещение с арендаторами «ВкусВилл», пункты выдачи OZON и Wildberries

Продажа | Лот 3976

Москва Улофа Пальме, 1

Площадь: 468 м²

Назначение: Торговое помещение под  магазин свободное супермаркет аптека пункт выдачи бижутерия бизнес сувениры

Арендаторы: супермаркет «ВкусВилл», интернет-магазин OZON, интернет-магазин Wildberries, аптека

Доходность: 6%, 938 000 ₽/мес

Окупаемость: 16 лет

Готовый арендный бизнес в Раменках. Рядом проходит велодорожка, есть стоянка для арендных велосипедов, интенсивный поток пешеходного...

Цена по запросу

Новинка
lot-15800
lot-15800
lot-15800
lot-15800
lot-15800
lot-15800
lot-15800
lot-15800
8
Помещение под сувениры, 243 м²

Продажа | Лот 32888

Китай-город 10 мин Сретенский бульвар 9 мин Тургеневская 9 мин Чистые пруды 9 мин

Москва Покровка, 15/16c1

Площадь: 243 м²

Назначение: Торговое помещение под  магазин шоурум бижутерия сувениры

Арендаторы: бутик shu

Доходность: 8%, 1 237 000 ₽/мес

Окупаемость: 12 лет

Готовый арендный бизнес на 1-й линии Чистопрудного бульвара в Басманном районе. Обеспечен интенсивный автомобильный и пешеходный...

178 088 000 ₽

733 000 ₽ за м²

Новинка
lot-16118
lot-16118
2
Помещение под сувениры, 1571 м²

Продажа | Лот 43006

Москва Ходынский бульвар, 4/1

Площадь: 1 571 м²

829 958 000 ₽

528 000 ₽ за м²

Новинка
lot-9178
lot-9178
lot-9178
lot-9178
lot-9178
lot-9178
lot-9178
7
Двухэтажное здание на 1-й линии проспекта 60-летия Октября

Продажа | Лот 3605

Ленинский проспект 10 мин

Москва проспект 60-летия Октября, 6

Площадь: 1 572 м²

Назначение: Торговое помещение под  банк

Двухэтажное здание на первой линии проспекта 60-летия Октября в Гагаринском районе. Большой поток пешеходного и автомобильного трафика....

790 000 000 ₽

503 000 ₽ за м²

Новинка
lot-7856
lot-7856
lot-7856
lot-7856
lot-7856
lot-7856
lot-7856
lot-7856
8
Помещение с арендаторами «Пятёрочка» и пункт выдачи OZON

Продажа | Лот 9377

Москва Севастопольский проспект, 37

Площадь: 1 537 м²

Назначение: Торговое помещение под  магазин супермаркет бижутерия сувениры

Арендаторы: супермаркет «Пятёрочка», пункт выдачи OZON, пункт выдачи «Яндекс Маркет», магазин автозапчастей

Доходность: 12%, 1 667 000 ₽/мес

Окупаемость: 9 лет

Готовый арендный бизнес на 1-й линии Севастопольского проспекта в Котловке. Жилой развитый район, большой поток пешеходного и автомобильного...

180 000 000 ₽

117 000 ₽ за м²

Позвонить эксперту max whatsapp telegram
Каширская
Академический
ЦАО
Академический