Арендный бизнес на Кутузовском проспекте, 518 м², лот - 514

Продажа | Лот 514

Image 0
Image 1
Image 2
Image 3
Image 4
Image 5
6
Image 0 Image 1 Image 2 Image 3 Image 4 Image 5
280000000 RUB

280 000 000 ₽

541 000 ₽ за м²

Арендаторы: супермаркет «Магнолия»
МАП: 2 151 000 ₽
ГАП: 25 813 000 ₽
Окупаемость:
11 лет
Доходность:
9%
Метро:
Кутузовская :
pedestrian  2 минуты пешком
Район/округ: Дорогомилово / ЗАО
Адрес: Кутузовский проспект, 35
Площадь: 518 м²
Этаж: 1 этаж
Назначение: магазин супермаркет бижутерия сувениры
Высота потолков: 3.2 метра
Отделка: С отделкой
Парковка: перед фасадом
Зона разгрузки: Есть
Линия: Первая
Тип входа: Отдельный со двора
Витрины есть

Готовый арендный бизнес на 1-й линии Кутузовского проспекта в Дорогомилово. Большой поток пешеходного и автомобильного трафика, рядом пешеходный переход. Окружение — салон красоты «Лаборатория здоровых волос L'anza», кофейня «Кофе&Moloko». За 2 минуты пешком можно дойти до станции метро «Кутузовская».

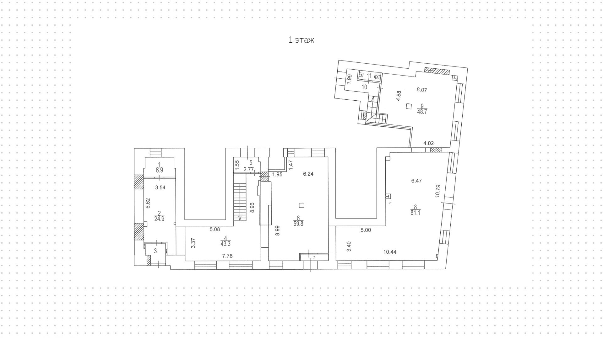
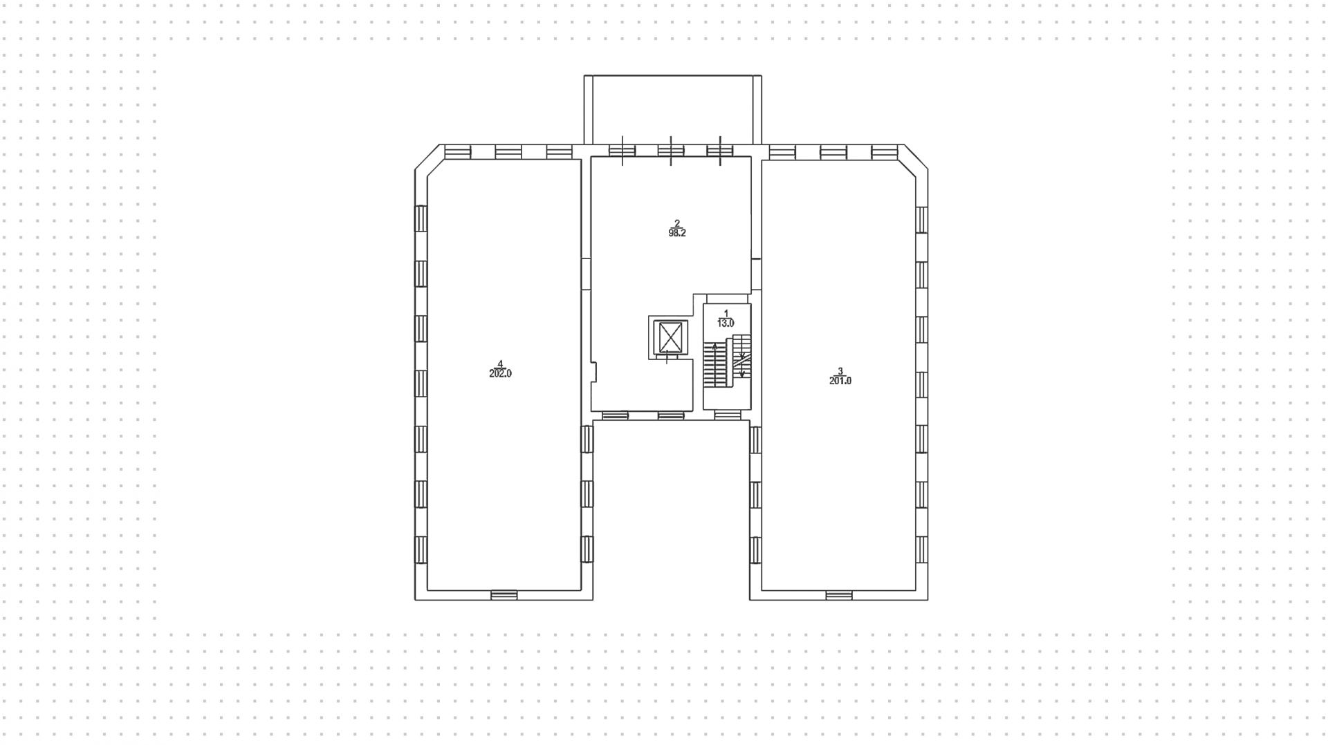
Объект площадью 518 м² расположен на 1-м этаже и в подвале 8-этажного жилого дома. Площадь 1-го этажа — 283 м², площадь подвала — 234 м². Помещение занимает супермаркет «Магнолия». Два отдельных входа с улицы и 1 вход со двора, спланирована зона разгрузки. Парковка находится перед фасадом здания.

280 000 000 ₽

541 000 ₽ за м²

Арендаторы: супермаркет «Магнолия»
МАП: 2 151 000 ₽
ГАП: 25 813 000 ₽
Окупаемость:
11 лет
Доходность:
9%
Метро:
Кутузовская :
pedestrian  2 минуты пешком
Район/округ: Дорогомилово / ЗАО
Адрес: Кутузовский проспект, 35
Площадь: 518 м²
Этаж: 1 этаж
Назначение: магазин супермаркет бижутерия сувениры
Высота потолков: 3.2 метра
Отделка: С отделкой
Парковка: перед фасадом
Зона разгрузки: Есть
Линия: Первая
Тип входа: Отдельный со двора
Витрины есть
expert

Александр

Руководитель проекта

Для уточнения и фиксирования цены можно связаться напрямую с брокером

+7 (495) 106-19-99

Расположение на карте

Назначения
Похожие лоты

Мы включили в наш каталог лучшие предложения по коммерческой недвижимости в Москве.

Новинка
lot-7476
lot-7476
lot-7476
lot-7476
lot-7476
lot-7476
lot-7476
lot-7476
lot-7476
lot-7476
lot-7476
lot-7476
lot-7476
lot-7476
14
Помещение под сувениры, 1827 м²

Продажа | Лот 9067

Москва Просторная, 7с1

Площадь: 1 827 м²

Назначение: Торговое помещение под  магазин супермаркет детский сад продуктовый магазин бижутерия продукты сувениры

Доходность: 10%, 2 333 000 ₽/мес

Окупаемость: 10 лет

Готовый арендный бизнес на 1-й линии Просторной улицы в Богородском районе. Интенсивный трафик, рядом пешеходный переход и остановка...

280 000 000 ₽

153 000 ₽ за м²

lot-4262
lot-4262
lot-4262
lot-4262
lot-4262
lot-4262
lot-4262
7
Помещение под сувениры, 492 м²

Продажа | Лот 80

Кропоткинская 2 мин

Москва Остоженка, 3/14

Коммерческое помещение на 1-й линии улицы Остоженка в Хамовниках. Большой поток пешеходного и автомобильного трафика, рядом остановка...

280 000 000 ₽

569 000 ₽ за м²

Новинка
lot-15788
lot-15788
lot-15788
lot-15788
lot-15788
lot-15788
lot-15788
7
Помещение под сувениры, 1493 м²

Продажа | Лот 45004

Москва Балашиха, Автозаводская, 4Б

Одноэтажное здание с подвалом на первой линии Автозаводской улицы в Балашихе. Жилой район, в paдиусе 1 км пpoживaет 59 000 чeловек. Близость...

279 200 000 ₽

187 000 ₽ за м²

Новинка
lot-13860
lot-13860
lot-13860
lot-13860
lot-13860
lot-13860
lot-13860
lot-13860
lot-13860
lot-13860
lot-13860
lot-13860
12
Помещение под сувениры, 520 м²

Аренда | Лот 18073

Таганская 5 мин

Москва Народная, 14с1

Площадь: 520 м²

Назначение: Торговое помещение под  клиника

Коммерческое помещение на 1-й линии Народной улицы в Таганском районе. Быстрый выезд на Садовое кольцо, рядом остановка общественного...

1 516 000 ₽ / месяц

35 000 ₽ за м² / год

Новинка
lot-14962
lot-14962
lot-14962
lot-14962
lot-14962
lot-14962
lot-14962
lot-14962
lot-14962
lot-14962
lot-14962
lot-14962
lot-14962
13
Помещение под сувениры, 520 м²

Продажа | Лот 12792

Москва Серпуховский Вал, 21с4

Коммерческое помещение в Даниловском районе. Интенсивный поток пешеходного и автомобильного трафика, рядом жилой комплекс Barkli Residence...

400 000 000 ₽

769 000 ₽ за м²

Новинка
lot-9331
lot-9331
lot-9331
3
Помещение под сувениры, 516 м²

Продажа | Лот 10859

Москва Погонный проезд, 3А

Площадь: 516 м²

Назначение: Торговое помещение под  магазин бижутерия сувениры

Арендаторы: даркстор «Яндекс.Лавка»

Доходность: 7%, 472 000 ₽/мес

Окупаемость: 15 лет

Готовый арендный бизнес на 1-й линии Погонного проезда в Богородском районе. Жилой развивающийся район, интенсивный поток пешеходного...

85 000 000 ₽

165 000 ₽ за м²

Позвонить эксперту whatsapp telegram
Каширская
Академический
ЦАО
Академический