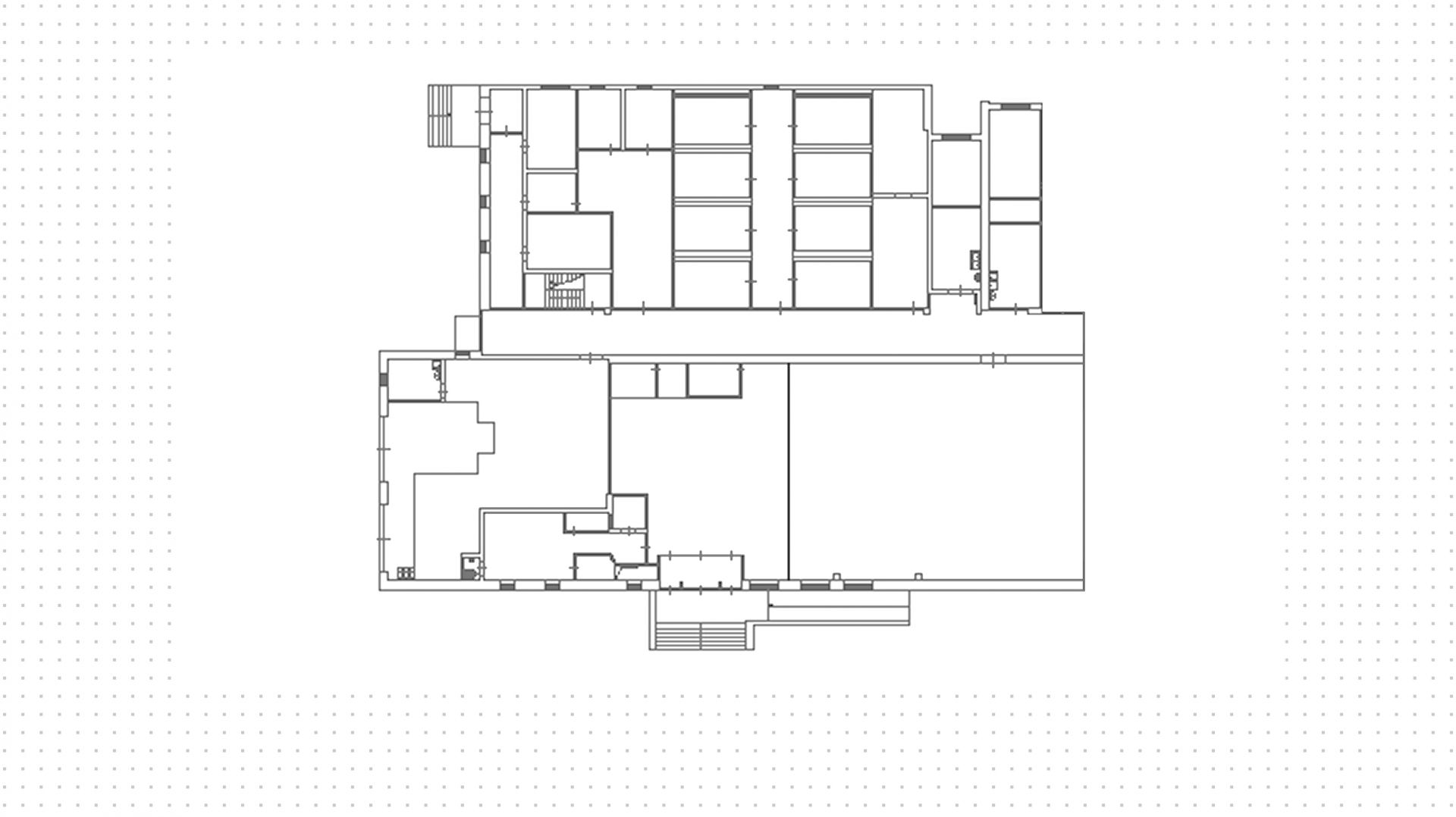
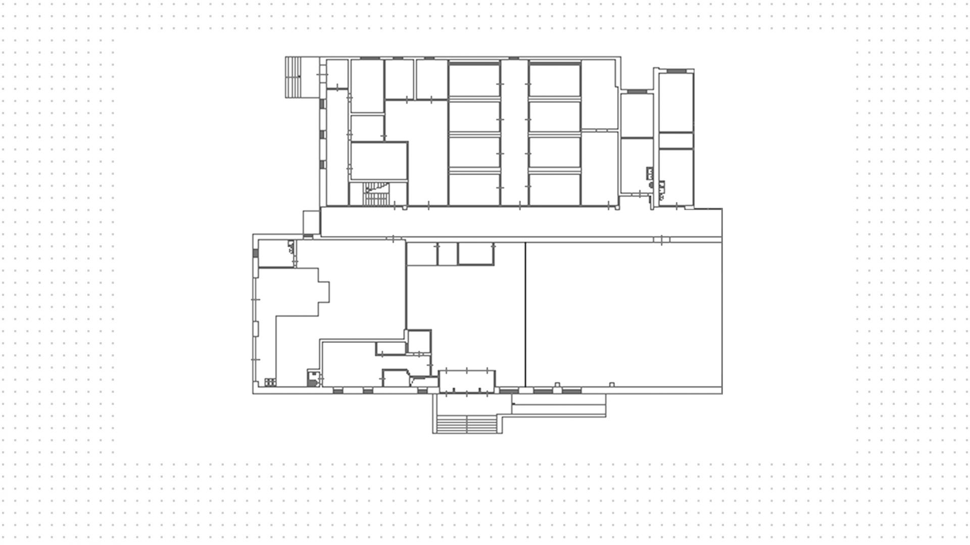
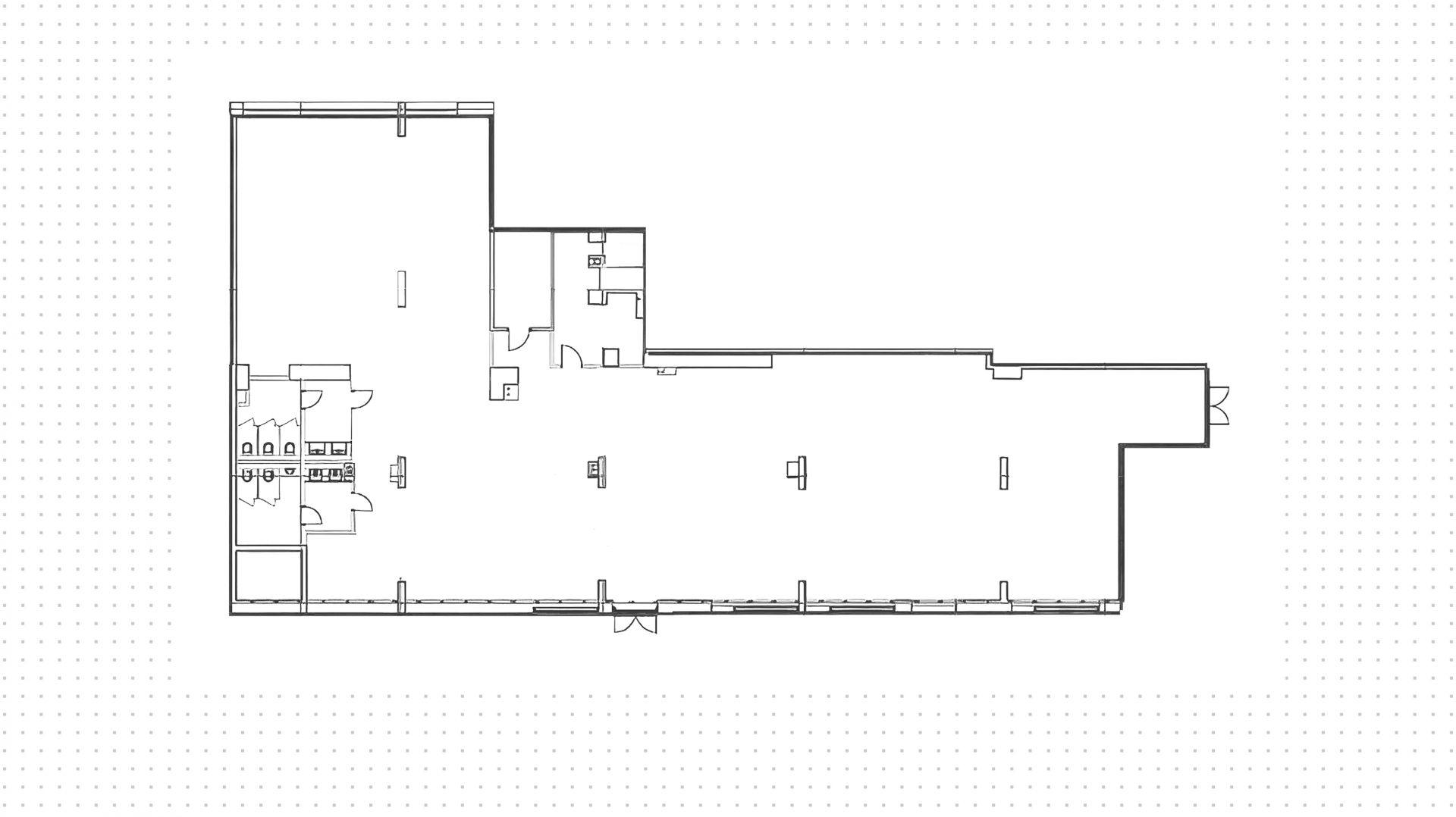
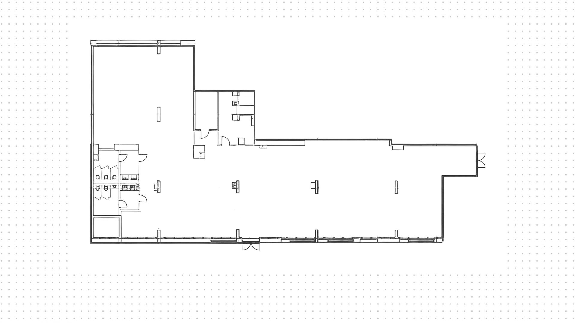
Помещение на Бажова, 522 м², лот - 13764

Продажа | Лот 13764

Image 0
Image 1
Image 2
Image 3
Image 4
Image 5
Image 6
Image 7
Image 8
Image 9
Image 10
11
Image 0 Image 1 Image 2 Image 3 Image 4 Image 5 Image 6 Image 7 Image 8 Image 9 Image 10
215000000 RUB

215 000 000 ₽

412 000 ₽ за м²

Метро:
Ростокино :
pedestrian  10 минут пешком
Район/округ: Ростокино / СВАО
Адрес: Бажова, 8
Площадь: 522 м²
Назначение: клиника магазин свободное салон красоты супермаркет спортзал бижутерия бизнес парикмахерская сувениры
Высота потолков: 3 метра
Отделка: С отделкой
Парковка: бесплатная городская перед фасадом здания
Электрическая мощность (кВт): 104
Зона разгрузки: Есть
Линия: Первая
Тип входа: Отдельный с улицы

Угловое коммерческое помещение на 1-й линии Ростокинской улицы в районе Ростокино. Интенсивный поток пешеходного и автомобильного трафика, рядом сквер и остановка общественного транспорта. Окружение — супермаркет «ВкусВилл», аптека «Горздрав», пункт выдачи OZON. За 10 минут пешком можно дойти до станции метро «Ростокино».

Объект с комбинированной планировкой площадью 522 м² расположен на 1-м и 2-м этажах жилого дома. Выполнена отделка за выездом салона красоты. Помещение подойдет под размещение салона красоты, медицинского центра, супермаркета. Спланированы 2 отдельных входа с улицы и зона разгрузки. Перед фасадом здания находится бесплатная городская парковка.

При необходимости мы поможем с поиском арендатора для вашего помещения.

215 000 000 ₽

412 000 ₽ за м²

Метро:
Ростокино :
pedestrian  10 минут пешком
Район/округ: Ростокино / СВАО
Адрес: Бажова, 8
Площадь: 522 м²
Назначение: клиника магазин свободное салон красоты супермаркет спортзал бижутерия бизнес парикмахерская сувениры
Высота потолков: 3 метра
Отделка: С отделкой
Парковка: бесплатная городская перед фасадом здания
Электрическая мощность (кВт): 104
Зона разгрузки: Есть
Линия: Первая
Тип входа: Отдельный с улицы
expert

Александр

Руководитель проекта

Для уточнения и фиксирования цены можно связаться напрямую с брокером

+7 (495) 106-19-99

Расположение на карте

Похожие лоты

Мы включили в наш каталог лучшие предложения по коммерческой недвижимости в Москве.

Новинка
lot-14905
lot-14905
lot-14905
lot-14905
lot-14905
lot-14905
lot-14905
lot-14905
lot-14905
lot-14905
lot-14905
lot-14905
12
Помещение под сувениры, 242 м²

Продажа | Лот 16002

Китай-город 1 мин Лубянка 3 мин

Москва Большой Черкасский переулок, 13с4

Коммерческое помещение на 1-й линии домов в Тверском районе. Обеспечен интенсивный пешеходный трафик. Окружение — ресторан TOTTORI, салоны...

215 000 000 ₽

888 000 ₽ за м²

Новинка
lot-4999
lot-4999
lot-4999
lot-4999
4
Коммерческое помещение с сетевым арендатором «Магнолия»

Продажа | Лот 3921

Бауманская 3 мин

Москва Спартаковская, 18

Площадь: 372 м²

Назначение: Торговое помещение под  магазин супермаркет бижутерия сувениры

Арендаторы: супермаркет «Магнолия»

Доходность: 8%, 1 493 000 ₽/мес

Окупаемость: 12 лет

Готовый арендный бизнес в Басманном районе. Окружение — супермаркет «Дикси», магазин чая «ЧаоЧай», парикмахерская «ЦирюльникЪ», ювелирный...

215 000 000 ₽

578 000 ₽ за м²

Новинка
lot-15843
lot-15843
lot-15843
lot-15843
lot-15843
lot-15843
6
Помещение под сувениры, 329 м²

Продажа | Лот 45754

Москва Чечёрский проезд, 28с1

Площадь: 329 м²

Назначение: Торговое помещение под  магазин супермаркет бижутерия сувениры

Арендаторы: Магнит

Доходность: 10%, 1 629 000 ₽/мес

Окупаемость: 11 лет

Готовый арендный бизнес на первой линии Чечёрского проезда в Южном Бутово. Жилой район, рядом коттеджный посёлок, детские сады и остановка...

215 000 000 ₽

653 000 ₽ за м²

Новинка
lot-11346
lot-11346
lot-11346
lot-11346
lot-11346
lot-11346
lot-11346
lot-11346
8
Помещение под сувениры, 522 м²

Аренда | Лот 13658

Москва Малая Пироговская, 8

Коммерческое помещение на Малой Пироговской улице в районе Хамовники. Интенсивный пешеходный и автомобильный трафик, рядом бизнес-центры...

3 700 000 ₽ / месяц

85 000 ₽ за м² / год

Новинка
lot-15374
lot-15374
lot-15374
lot-15374
lot-15374
5
Помещение под сувениры, 522 м²

Продажа | Лот 41978

Москва Паустовского, 8с1

Площадь: 522 м²

Назначение: Торговое помещение под  магазин бижутерия сувениры

Арендаторы: Федеральная сеть доставки «Озон фреш»

Доходность: 12%, 972 000 ₽/мес

Окупаемость: 9 лет

Готовый арендный бизнес на первой линии улицы Паустовского в Ясенево. Жилой район, объект находится возле парка «Ясеневские пруды»...

105 000 000 ₽

201 000 ₽ за м²

Новинка
lot-14962
lot-14962
lot-14962
lot-14962
lot-14962
lot-14962
lot-14962
lot-14962
lot-14962
lot-14962
lot-14962
lot-14962
lot-14962
13
Помещение под сувениры, 520 м²

Продажа | Лот 12792

Москва Серпуховский Вал, 21с4

Коммерческое помещение в Даниловском районе. Интенсивный поток пешеходного и автомобильного трафика, рядом жилой комплекс Barkli Residence...

400 000 000 ₽

769 000 ₽ за м²

Позвонить эксперту max whatsapp telegram
Каширская
Академический
ЦАО
Академический