Арендный бизнес на Тагильской, 229 м², лот - 14055

Продажа | Лот 14055

Image 0
Image 1
Image 2
Image 3
Image 4
5
Image 0 Image 1 Image 2 Image 3 Image 4
110160000 RUB

110 160 000 ₽

481 000 ₽ за м²

Арендаторы: Вкусвилл, сетевая аптека (какая уточняется)
МАП: 784 000 ₽
ГАП: 9 408 000 ₽
Окупаемость:
12 лет
Доходность:
9%
Адрес: Тагильская, 3с1
Площадь: 229 м²
Назначение: магазин аптека бижутерия сувениры
Высота потолков: 4.2 метра
Отделка: С отделкой
Парковка: перед фасадом, наземные многоровневые парковки комплекса
Электрическая мощность (кВт): 46
Зона разгрузки: Есть
Линия: Первая
Тип входа: Отдельный со двора
Витрины есть

Готовый арендный бизнес на 1 линии Тагильской улицы в Метрогородке. Развивающийся жилой район, рядом новые комплексы «Квартал Метроном», «Сиреневый Парк», «Лосиноостровский парк», обеспечен интенсивный пешеходный и автомобильный трафик. Окружение — супермаркет «Пятёрочка», алкомаркет «Винлаб», пекарня «Булки и кофе».

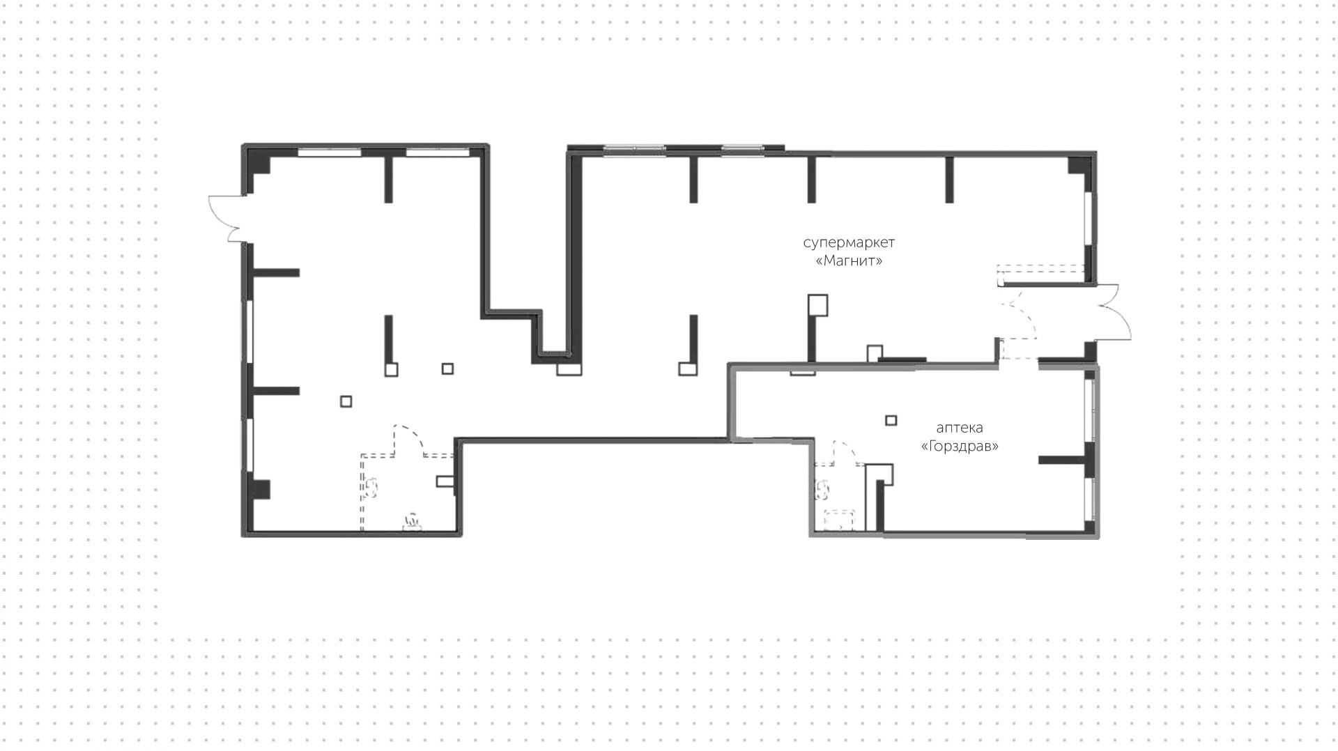
Помещение с открытой планировкой площадью 229 м² расположено на 1 этаже в жилом комплексе «Открытый парк». Блок площадью 59 м² занимает аптека «Горздрав», блок площадью 170 м² вакантен. Объект оснащен двумя мокрыми точками. Отдельный вход с улицы и со двора, витринное остекление. Предусмотрены зона разгрузки, место для размещения рекламы на фасаде. В комплексе спланированы наземные многоуровневые парковки и места у дома.

110 160 000 ₽

481 000 ₽ за м²

Арендаторы: Вкусвилл, сетевая аптека (какая уточняется)
МАП: 784 000 ₽
ГАП: 9 408 000 ₽
Окупаемость:
12 лет
Доходность:
9%
Адрес: Тагильская, 3с1
Площадь: 229 м²
Назначение: магазин аптека бижутерия сувениры
Высота потолков: 4.2 метра
Отделка: С отделкой
Парковка: перед фасадом, наземные многоровневые парковки комплекса
Электрическая мощность (кВт): 46
Зона разгрузки: Есть
Линия: Первая
Тип входа: Отдельный со двора
Витрины есть
expert

Павел

Эксперт

Для уточнения и фиксирования цены можно связаться напрямую с брокером

+7 (495) 106-19-99

Расположение на карте

Похожие лоты

Мы включили в наш каталог лучшие предложения по коммерческой недвижимости в Москве.

Новинка
lot-12688
lot-12688
lot-12688
lot-12688
lot-12688
5
Помещение под сувениры, 84 м²

Продажа | Лот 16197

Киевская 6 мин

Москва Брянская, 12

Коммерческое помещение на 1 линии Брянской улицы в Дорогомилово. Интенсивный пешеходный и автомобильный трафик, рядом строятся бизнес-центр,...

110 400 000 ₽

1 314 000 ₽ за м²

Новинка
lot-16126
lot-16126
lot-16126
3
Помещение под сувениры, 344 м²

Продажа | Лот 47636

Чертановская 7 мин

Москва микрорайон Северное Чертаново, 1Ас2

Площадь: 344 м²

Назначение: Торговое помещение под  магазин супермаркет бижутерия сувениры

Арендаторы: пятерочка

Доходность: 9%, 767 000 ₽/мес

Окупаемость: 12 лет

Готовый арендный бизнес на 1 линии домов в Северном Чертаново. Обеспечен интенсивный автомобильный и пешеходный трафик. Окружение...

110 400 000 ₽

321 000 ₽ за м²

Новинка
lot-9780
lot-9780
lot-9780
lot-9780
lot-9780
lot-9780
lot-9780
lot-9780
lot-9780
lot-9780
lot-9780
lot-9780
lot-9780
lot-9780
lot-9780
15
Помещение под сувениры, 216 м²

Продажа | Лот 11489

Марьина Роща 2 мин

Москва Сущёвский Вал, 53

Площадь: 216 м²

Назначение: Торговое помещение под  магазин бижутерия сувениры

Арендаторы: букмекерская контора BetBoom

Доходность: 13%, 1 146 000 ₽/мес

Окупаемость: 8 лет

Готовый арендный бизнес на 1-й линии Сущёвского Вала в районе Марьина Роща. Благодаря близости к бизнес-центру Jazz и остановке общественного...

110 000 000 ₽

509 000 ₽ за м²

Новинка
lot-14149
lot-14149
lot-14149
lot-14149
lot-14149
lot-14149
lot-14149
7
Помещение под сувениры, 229 м²

Аренда | Лот 18833

Молодежная 7 мин

Москва Рублевское шоссе, 101

Коммерческое помещение в Кунцево. Объект располагается на 1-й линии Ярцевской улицы, обеспечен интенсивный автомобильный и пешеходный...

1 300 000 ₽ / месяц

68 000 ₽ за м² / год

Новинка
lot-15262
lot-15262
2
Помещение под сувениры, 229 м²

Продажа | Лот 12820

Прокшино 1 мин

Москва поселение Сосенское, квартал № 35

Площадь: 229 м²

Назначение: Торговое помещение под  офис рабочее место

Офис в комплексе Бизнес-квартал Прокшино. Офис площадью 229 м² расположен на 6 этаже из 12, без отделки. Окна: панорамные, Энергоэффективное...

62 698 000 ₽

274 000 ₽ за м²

Новинка
lot-16081
lot-16081
2
Помещение под сувениры, 229 м²

Продажа | Лот 47385

Москва Академика Челомея, 7

Площадь: 229 м²

90 397 000 ₽

395 000 ₽ за м²

Позвонить эксперту whatsapp telegram
Каширская
Академический
ЦАО
Академический