Помещение на Пресненской набережной, 90 м², лот - 10561

Продажа | Лот 10561

Image 0
Image 1
Image 2
Image 3
4
Image 0 Image 1 Image 2 Image 3
99000000 RUB

99 000 000 ₽

1 100 000 ₽ за м²

Метро:
Деловой центр :
pedestrian  2 минуты пешком
Район/округ: Пресненский / ЦАО
Адрес: Пресненская набережная, 12
Площадь: 90 м²
Назначение: магазин бижутерия сувениры офис рабочее место свободное салон красоты шоурум фотостудия бизнес парикмахерская
Отделка: С отделкой
Парковка: городская платная у фасада, подземный паркинг в торговом центре «Афимолл Сити»
Тип входа: Общий с улицы
Витрины есть

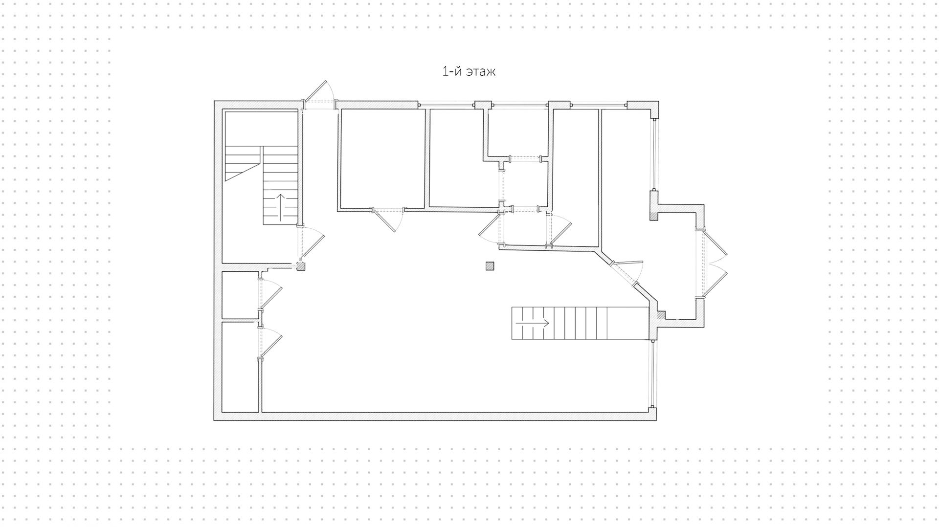
Коммерческое помещение на Пресненской набережной в Пресненском районе. Окружение — алкомаркет «Ароматный мир», банк «ВТБ», кафе, рестораны и кофейни. В двух минутах ходьбы находится станция метро «Деловой центр», в пяти минутах — «Международная».

Объект с открытой планировкой площадью 90 м² расположен на подземном уровне стилобата в башне «Федерация». Выполнена отделка за выездом арендатора — «Цифровые активы». Общий вход с улицы, витринное остекление. Предусмотрены городская платная парковка у фасада, подземный паркинг в торговом центре «Афимолл Сити».

При необходимости мы поможем с поиском арендатора для вашего помещения.

99 000 000 ₽

1 100 000 ₽ за м²

Метро:
Деловой центр :
pedestrian  2 минуты пешком
Район/округ: Пресненский / ЦАО
Адрес: Пресненская набережная, 12
Площадь: 90 м²
Назначение: магазин бижутерия сувениры офис рабочее место свободное салон красоты шоурум фотостудия бизнес парикмахерская
Отделка: С отделкой
Парковка: городская платная у фасада, подземный паркинг в торговом центре «Афимолл Сити»
Тип входа: Общий с улицы
Витрины есть
expert

Александр

Руководитель проекта

Для уточнения и фиксирования цены можно связаться напрямую с брокером

+7 (495) 106-19-99

Расположение на карте

Похожие лоты

Мы включили в наш каталог лучшие предложения по коммерческой недвижимости в Москве.

Новинка
lot-12364
lot-12364
lot-12364
lot-12364
lot-12364
5
Помещение под парикмахерскую, 165 м²

Продажа | Лот 15607

Новопеределкино 3 мин

Москва Чоботовская, 2с1

Площадь: 165 м²

Назначение: Торговое помещение под  магазин бижутерия сувениры супермаркет

Арендаторы: Дикси Go

Доходность: 9%, 750 000 ₽/мес

Окупаемость: 11 лет

Готовый арендный бизнес в Ново-Переделкино. Объект находится на 1-й линии домов напротив остановки общественного транспорта. Окружение...

99 000 000 ₽

600 000 ₽ за м²

Новинка
lot-12509
lot-12509
lot-12509
lot-12509
lot-12509
5
Помещение под парикмахерскую, 76 м²

Продажа | Лот 15989

Октябрьская 2 мин

Москва Калужская площадь, 1с1

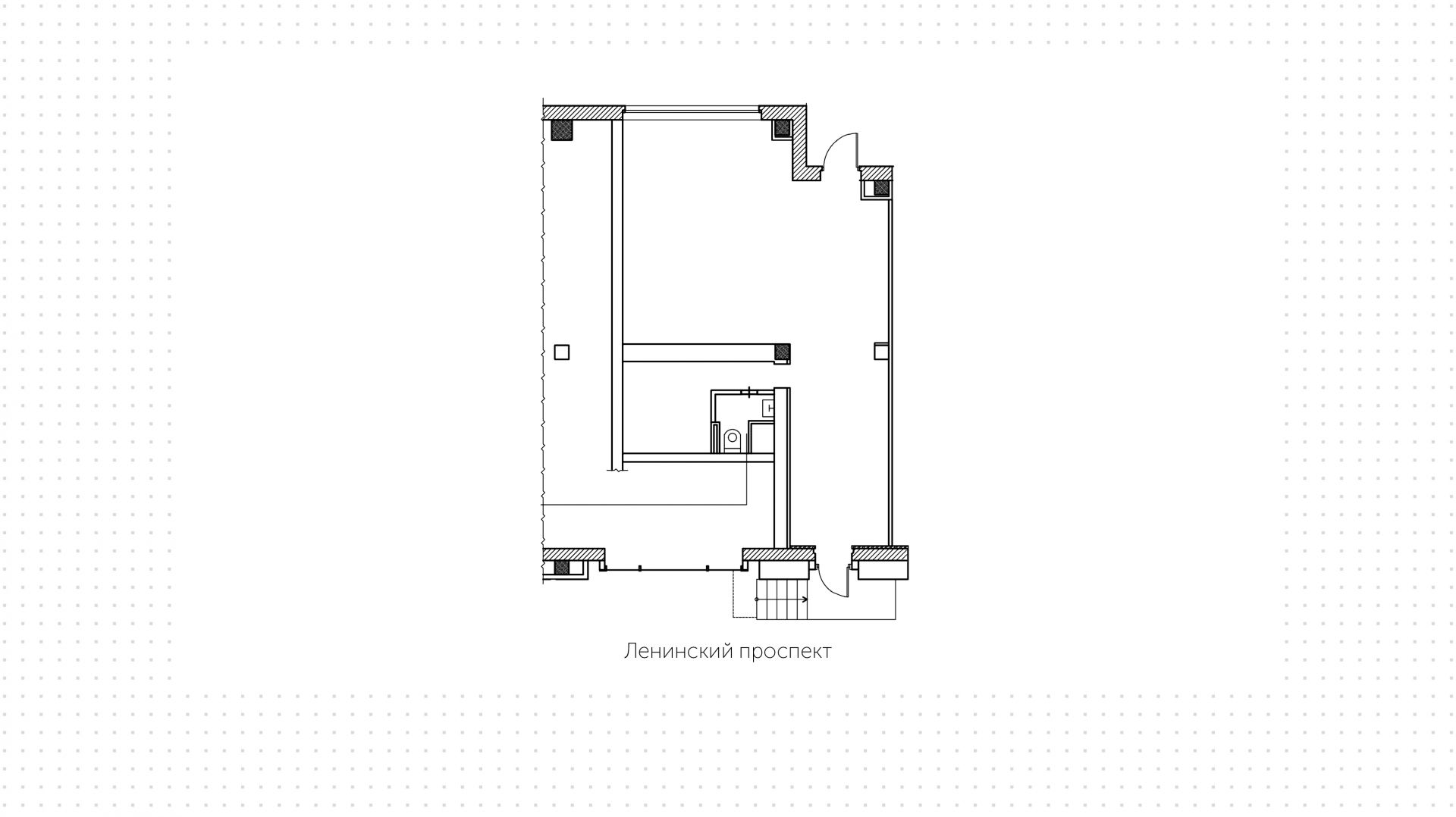
Коммерческое помещение в районе Якиманка. Объект располагается на 1 линии Ленинского проспекта, что обеспечивает интенсивный автомобильный...

99 000 000 ₽

1 303 000 ₽ за м²

Новинка
lot-11405
lot-11405
lot-11405
lot-11405
lot-11405
lot-11405
lot-11405
lot-11405
lot-11405
lot-11405
lot-11405
lot-11405
lot-11405
lot-11405
lot-11405
15
Помещение под парикмахерскую, 306 м²

Продажа | Лот 13599

Москва Салтыковская, 6/1с6

Площадь: 306 м²

Назначение: Торговое помещение под  магазин супермаркет бижутерия сувениры

Арендаторы: Дикси

Доходность: 9%, 750 000 ₽/мес

Окупаемость: 11 лет

Готовый арендный бизнес в Косино-Ухтомском районе. Остановка общественного транспорта обеспечивает интенсивный трафик вдоль помещения....

99 000 000 ₽

324 000 ₽ за м²

Новинка
lot-15579
lot-15579
lot-15579
lot-15579
lot-15579
lot-15579
lot-15579
7
Помещение под парикмахерскую, 90 м²

Аренда | Лот 43546

Сокол 1 мин

Москва Ленинградский проспект, 74c1

Коммерческое помещение на 1 линии Ленинградского проспекта в районе Аэропорт. Интенсивный поток пешеходного и автомобильного трафика,...

990 000 ₽ / месяц

132 000 ₽ за м² / год

Новинка
lot-16023
lot-16023
lot-16023
3
Помещение под парикмахерскую, 90 м²

Аренда | Лот 46932

Китай-город 4 мин Кузнецкий Мост 7 мин Лубянка 2 мин Тургеневская 7 мин Чистые пруды 7 мин

Москва Мясницкая, 8/2

Коммерческое помещение на 1 линии Большого Златоустинского переулка в Басманном районе. Обеспечен интенсивный автомобильный и пешеходный...

1 500 000 ₽ / месяц

200 000 ₽ за м² / год

Новинка
lot-15628
lot-15628
2
Помещение под парикмахерскую, 90 м²

Продажа | Лот 44429

Москва поселение Сосенское

Площадь: 90 м²

29 891 000 ₽

332 000 ₽ за м²

Позвонить эксперту whatsapp telegram
Каширская
Академический
ЦАО
Академический