Арендный бизнес на Княжнина, 469 м², лот - 4491

Продажа | Лот 4491

Image 0
Image 1
Image 2
Image 3
4
Image 0 Image 1 Image 2 Image 3
110000000 RUB

110 000 000 ₽

235 000 ₽ за м²

Арендаторы: супермаркет «Мираторг», аптека
МАП: 893 000 ₽
ГАП: 10 710 000 ₽
Окупаемость:
11 лет
Доходность:
10%
Метро:
Лефортово :
pedestrian  4 минуты пешком
Район/округ: Лефортово / ЮВАО
Адрес: Княжнина, 2
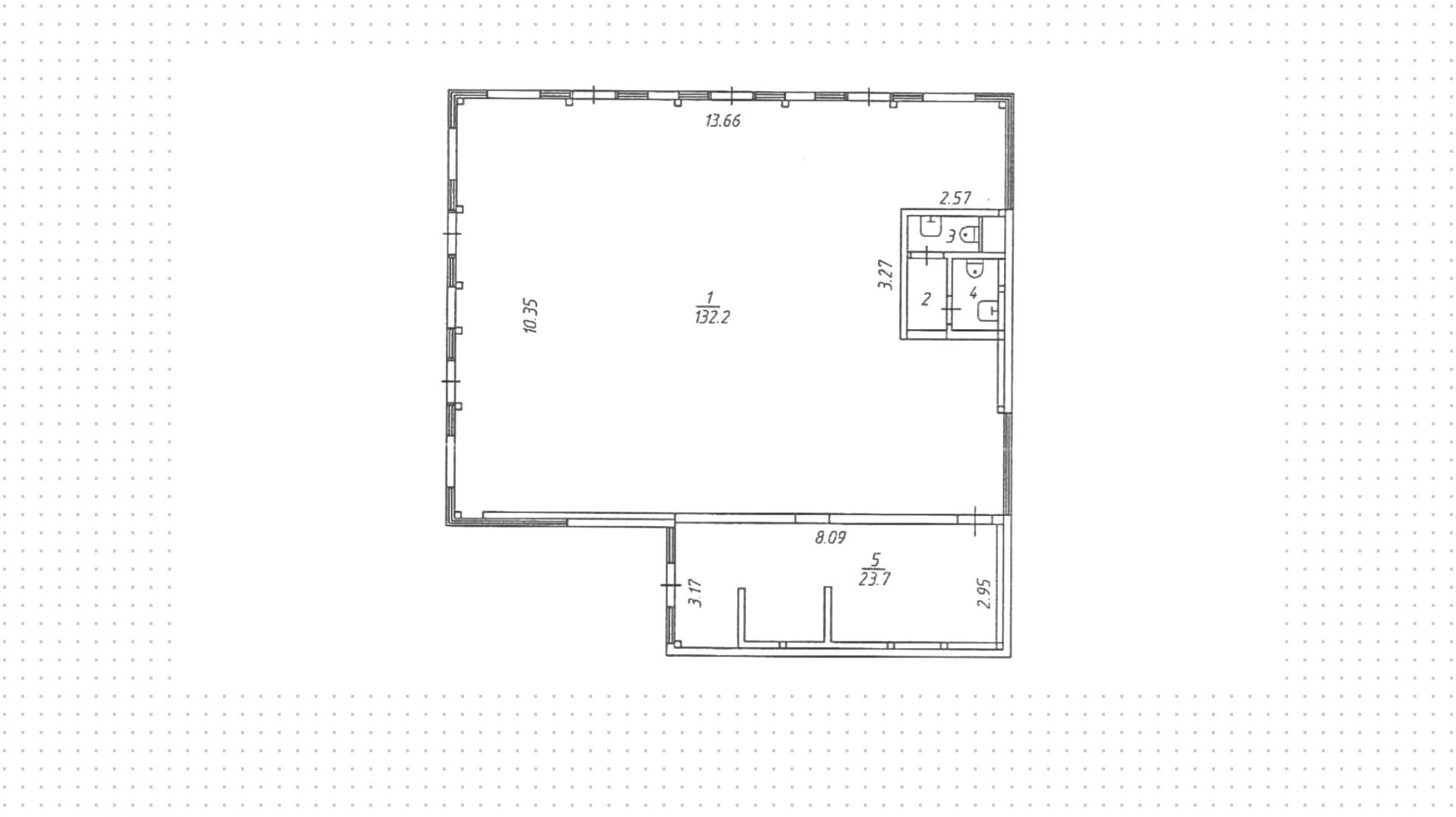
Площадь: 469 м²
Назначение: магазин супермаркет аптека бижутерия сувениры
Высота потолков: 3 метра
Отделка: С отделкой
Парковка: перед фасадом
Электрическая мощность (кВт): 87
Зона разгрузки: Есть
Линия: Первая
Тип входа: Отдельный с улицы
Витрины есть

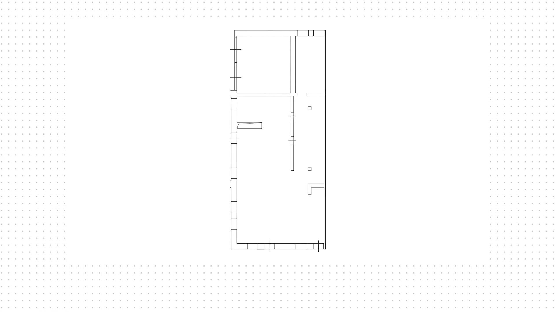
Готовый арендный бизнес на первой линии домов в Лефортово. Большой поток пешеходного и автомобильного трафика, рядом въезд в подземный паркинг дома. Окружение — пункты выдачи Wildberries и OZON, салон красоты Kalina, кофейня «Наша Булочка», барбершоп Pow!. За четыре минуты пешком можно дойти до станции метро «Лефортово».

Помещение с открытой планировкой площадью 469 м² расположено на первом этаже в жилом комплексе бизнес-класса «Лефорт». Блок площадью 400 м² занимает супермаркет «Дикси», блок 69 м² — аптека «Доктор Столетов». Отдельные входы с улицы и из подземной парковки, витринное остекление. Предусмотрены зона разгрузки, место для рекламы на фасаде. У дома организована парковка.

110 000 000 ₽

235 000 ₽ за м²

Арендаторы: супермаркет «Мираторг», аптека
МАП: 893 000 ₽
ГАП: 10 710 000 ₽
Окупаемость:
11 лет
Доходность:
10%
Метро:
Лефортово :
pedestrian  4 минуты пешком
Район/округ: Лефортово / ЮВАО
Адрес: Княжнина, 2
Площадь: 469 м²
Назначение: магазин супермаркет аптека бижутерия сувениры
Высота потолков: 3 метра
Отделка: С отделкой
Парковка: перед фасадом
Электрическая мощность (кВт): 87
Зона разгрузки: Есть
Линия: Первая
Тип входа: Отдельный с улицы
Витрины есть
expert

Александр

Руководитель проекта

Для уточнения и фиксирования цены можно связаться напрямую с брокером

+7 (495) 106-19-99

Расположение на карте

Похожие лоты

Мы включили в наш каталог лучшие предложения по коммерческой недвижимости в Москве.

Новинка
lot-14948
lot-14948
lot-14948
lot-14948
lot-14948
lot-14948
lot-14948
7
Помещение под сувениры, 170 м²

Продажа | Лот 9739

Одинцово 9 мин

Москва Одинцово, Можайское шоссе, 20В

Площадь: 170 м²

Назначение: Торговое помещение под  ресторан магазин бижутерия сувениры

Одноэтажное здание на 1-й линии улицы Свобода в Одинцово. Жилой район, большой поток пешеходного и автомобильного трафика. Окружение...

110 000 000 ₽

647 000 ₽ за м²

Новинка
lot-4876
lot-4876
lot-4876
lot-4876
lot-4876
5
Помещение под сувениры, 102 м²

Продажа | Лот 7466

Кропоткинская 3 мин

Москва Волхонка, 9с2

Площадь: 102 м²

Назначение: Торговое помещение под  ресторан магазин кофейня кафе фаст-фуд бижутерия сувениры

Арендаторы: кофейня Fine coffee bar

Доходность: 5%, 482 000 ₽/мес

Окупаемость: 19 лет

Готовый арендный бизнес на 1-й линии улицы Волхонка в районе Хамовники. Большой поток пешеходного и автомобильного трафика, рядом...

110 000 000 ₽

1 078 000 ₽ за м²

Новинка
lot-11150
lot-11150
lot-11150
lot-11150
lot-11150
lot-11150
6
Помещение под сувениры, 189 м²

Продажа | Лот 13351

Бауманская 7 мин

Москва Бауманская, 58/25с1

Площадь: 189 м²

Назначение: Торговое помещение под  магазин бижутерия сувениры кафе общепит

Доходность: 9%, 833 000 ₽/мес

Окупаемость: 11 лет

Готовый арендный бизнес на 1-й линии Басманной улицы в Басманном районе. Интенсивный поток пешеходного и автомобильного транспорта,...

110 000 000 ₽

582 000 ₽ за м²

Новинка
lot-11476
lot-11476
lot-11476
lot-11476
4
Помещение под сувениры, 470 м²

Продажа | Лот 13395

Москва Королёв, Пионерская, 1

Площадь: 470 м²

Назначение: Торговое помещение под  магазин общепит фаст-фуд бижутерия сувениры

Арендаторы: Вкусно и точка

Готовый арендный бизнес на 1-й линии Пионерской улицы в городе Королёв. Интенсивный поток пешеходного и автомобильного трафика, рядом...

139 000 000 ₽

296 000 ₽ за м²

Новинка
lot-13911
lot-13911
lot-13911
lot-13911
lot-13911
lot-13911
lot-13911
7
Помещение под сувениры, 471 м²

Продажа | Лот 18192

Окружная 2 мин

Москва 3-й Нижнелихоборский проезд, 16с1

Площадь: 471 м²

Назначение: Торговое помещение под  магазин бижутерия сувениры

Арендаторы: Яндекс Лавка

Доходность: 12%, 1 343 000 ₽/мес

Окупаемость: 9 лет

Готовый арендный бизнес на 1-й линии 3-го Нижнелихоборского проезда в Тимирязевском районе. Вдоль объекта обеспечено до 800 человек...

145 000 000 ₽

308 000 ₽ за м²

Новинка
lot-4718
lot-4718
lot-4718
3
Помещение с арендаторами «ВкусВилл», пункты выдачи OZON и Wildberries

Продажа | Лот 3976

Москва Улофа Пальме, 1

Площадь: 468 м²

Назначение: Торговое помещение под  магазин свободное супермаркет аптека пункт выдачи бижутерия бизнес сувениры

Арендаторы: супермаркет «ВкусВилл», интернет-магазин OZON, интернет-магазин Wildberries, аптека

Доходность: 6%, 938 000 ₽/мес

Окупаемость: 16 лет

Готовый арендный бизнес в Раменках. Рядом проходит велодорожка, есть стоянка для арендных велосипедов, интенсивный поток пешеходного...

Цена по запросу

Позвонить эксперту whatsapp telegram
Каширская
Академический
ЦАО
Академический