Арендный бизнес на Бауманской, 189 м², лот - 13351

Продажа | Лот 13351

Image 0
Image 1
Image 2
Image 3
Image 4
Image 5
6
Image 0 Image 1 Image 2 Image 3 Image 4 Image 5
110000000 RUB

110 000 000 ₽

582 000 ₽ за м²

МАП: 838 000 ₽
ГАП: 10 056 000 ₽
Окупаемость:
11 лет
Доходность:
9%
Метро:
Бауманская :
pedestrian  7 минут пешком
Район/округ: Басманный / ЦАО
Адрес: Бауманская, 58/25с1
Площадь: 189 м²
Назначение: магазин бижутерия сувениры кафе общепит
Высота потолков: 4 метра
Отделка: Без отделки
Парковка: платная городская на соседней улице
Линия: Первая
Тип входа: Отдельный с улицы
Витрины есть

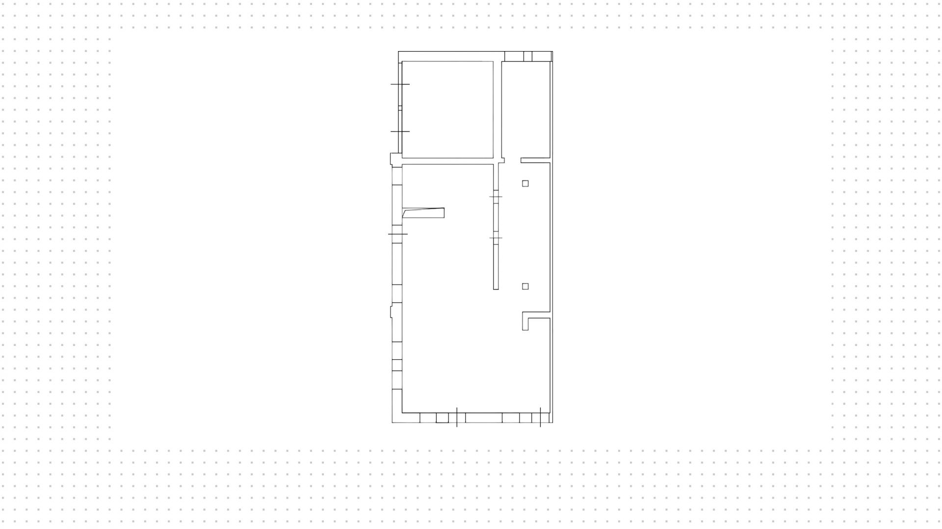
Готовый арендный бизнес на 1-й линии Басманной улицы в Басманном районе. Интенсивный поток пешеходного и автомобильного транспорта, рядом остановка общественного транспорта. Окружение — ресторан «Тбилисо», алкомаркет «Красное&Белое», супермаркет «Пятёрочка». За 7 минут пешком можно дойти до станции метро «Бауманская».

Угловое помещение с открытой планировкой площадью 189 м² расположено на 1-м этаже административного здания. Арендатор — кафе «Культурный Код». Подведены все центральные коммуникации. Отдельный вход с улицы, витринное остекление. Платная городская парковка находится на соседней улице.

110 000 000 ₽

582 000 ₽ за м²

МАП: 838 000 ₽
ГАП: 10 056 000 ₽
Окупаемость:
11 лет
Доходность:
9%
Метро:
Бауманская :
pedestrian  7 минут пешком
Район/округ: Басманный / ЦАО
Адрес: Бауманская, 58/25с1
Площадь: 189 м²
Назначение: магазин бижутерия сувениры кафе общепит
Высота потолков: 4 метра
Отделка: Без отделки
Парковка: платная городская на соседней улице
Линия: Первая
Тип входа: Отдельный с улицы
Витрины есть
expert

Наталья

Эксперт проекта

Для уточнения и фиксирования цены можно связаться напрямую с брокером

+7 (495) 106-19-99

Расположение на карте

Похожие лоты

Мы включили в наш каталог лучшие предложения по коммерческой недвижимости в Москве.

Новинка
lot-9780
lot-9780
lot-9780
lot-9780
lot-9780
lot-9780
lot-9780
lot-9780
lot-9780
lot-9780
lot-9780
lot-9780
lot-9780
lot-9780
lot-9780
15
Помещение под общепит, 216 м²

Продажа | Лот 11489

Марьина Роща 2 мин

Москва Сущёвский Вал, 53

Площадь: 216 м²

Назначение: Торговое помещение под  магазин бижутерия сувениры

Арендаторы: букмекерская контора BetBoom

Доходность: 13%, 1 146 000 ₽/мес

Окупаемость: 8 лет

Готовый арендный бизнес на 1-й линии Сущёвского Вала в районе Марьина Роща. Благодаря близости к бизнес-центру Jazz и остановке общественного...

110 000 000 ₽

509 000 ₽ за м²

Новинка
lot-14044
lot-14044
lot-14044
lot-14044
lot-14044
lot-14044
lot-14044
lot-14044
lot-14044
9
Помещение под общепит, 217 м²

Продажа | Лот 18526

Москва Павла Андреева, 28с7

Площадь: 217 м²

Назначение: Торговое помещение под  магазин супермаркет бижутерия сувениры

Арендаторы: Магнит

Доходность: 7%, 655 000 ₽/мес

Окупаемость: 14 лет

Готовый арендный бизнес на 1-й линии улицы Павла Андреева в Замоскворечье. Большой поток пешеходного и автомобильного трафика, рядом...

110 000 000 ₽

507 000 ₽ за м²

Новинка
lot-15143
lot-15143
2
Помещение под общепит, 448 м²

Продажа | Лот 39225

Москва Павла Корчагина, 16

Площадь: 448 м²

Назначение: Торговое помещение под  магазин супермаркет бижутерия сувениры

Арендаторы: Магнит

Доходность: 10%, 833 000 ₽/мес

Окупаемость: 11 лет

Готовый арендный бизнес на первой линии домов в Алексеевском районе. Обеспечен интенсивный автомобильный и пешеходный трафик. Окружение...

110 000 000 ₽

246 000 ₽ за м²

Новинка
lot-14668
lot-14668
2
Помещение под общепит, 189 м²

Аренда | Лот 30383

Кропоткинская 1 мин

Москва Гоголевский бульвар, 3

Коммерческое помещение в Хамовниках. Объект располагается на 1-й линии Гоголевского бульвара, обеспечен интенсивный автомобильный...

2 200 000 ₽ / месяц

140 000 ₽ за м² / год

Новинка
lot-12961
lot-12961
lot-12961
lot-12961
lot-12961
5
Помещение под общепит, 189 м²

Продажа | Лот 178

Краснопресненская 8 мин Улица 1905 года 5 мин

Москва Красная Пресня, 32-34

Площадь: 189 м²

Назначение: Торговое помещение под  магазин кафе бижутерия сувениры

Арендаторы: ресторан Americano

Доходность: 9%, 1 250 000 ₽/мес

Окупаемость: 11 лет

Готовый арендный бизнес на 1-й линии улицы Красная Пресня в Пресненском районе. Большой поток пешеходного и автомобильного трафика....

165 000 000 ₽

873 000 ₽ за м²

Новинка
lot-13506
lot-13506
2
Помещение под общепит, 188 м²

Продажа | Лот 15868

Москва Верейская, 12

Площадь: 188 м²

86 948 000 ₽

462 000 ₽ за м²

Позвонить эксперту whatsapp telegram
Каширская
Академический
ЦАО
Академический