Арендный бизнес на Гиляровского, 257 м², лот - 13376

Продажа | Лот 13376

Image 0
Image 1
Image 2
Image 3
Image 4
Image 5
Image 6
Image 7
Image 8
9
Image 0 Image 1 Image 2 Image 3 Image 4 Image 5 Image 6 Image 7 Image 8
159900000 RUB

159 900 000 ₽

622 000 ₽ за м²

МАП: 1 504 000 ₽
ГАП: 18 048 000 ₽
Окупаемость:
9 лет
Доходность:
11%
Метро:
Проспект мира :
pedestrian  3 минуты пешком
Район/округ: Мещанский / ЦАО
Адрес: Гиляровского, 40
Площадь: 257 м²
Назначение: магазин кофейня супермаркет кафе продуктовый магазин бижутерия продукты сувениры
Высота потолков: 3 метра
Отделка: С отделкой
Парковка: городская платная перед фасадом
Электрическая мощность (кВт): 120
Зона разгрузки: Есть
Линия: Первая
Тип входа: Отдельный с улицы
Витрины есть

Готовый арендный бизнес на 1-й линии улицы Гиляровского в Мещанском районе. Близость бизнес-центров и проспекта Мира обеспечивает интенсивный пешеходный и автомобильный трафик. Окружение — кафе «АндерСон», алкомаркет «Бристоль», фитнес-клуб Smstretching, салон красоты Kitchen Colors, «СберБанк». За 3 минуты можно пешком дойти до станции метро «Проспект Мира».

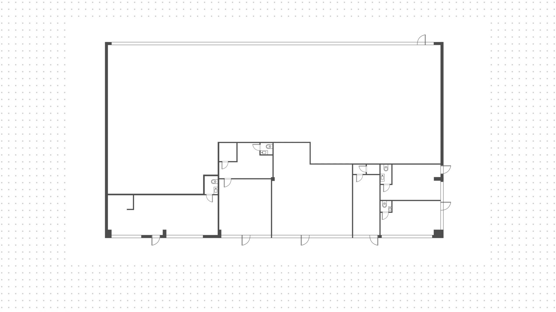
Помещение с открытой планировкой площадью 257 м² расположено на 1-м этаже в нежилом здании. Блок площадью 150 м² занимает супермаркет «ВкусВилл», блок площадью 100 м² — фуд-корт, включающий кулинарии «Ля Фантази», «МИЛТИ», кафе «Крошка Картошка», магазин «Табак», кофейню CoffeeShots. Объект оснащен вытяжкой. Три отдельных входа с улицы с пандусами и зоной разгрузки, витринное остекление. Предусмотрены место для рекламы на фасаде и площадка для летней веранды. Перед зданием спланирована городская платная парковка.

159 900 000 ₽

622 000 ₽ за м²

МАП: 1 504 000 ₽
ГАП: 18 048 000 ₽
Окупаемость:
9 лет
Доходность:
11%
Метро:
Проспект мира :
pedestrian  3 минуты пешком
Район/округ: Мещанский / ЦАО
Адрес: Гиляровского, 40
Площадь: 257 м²
Назначение: магазин кофейня супермаркет кафе продуктовый магазин бижутерия продукты сувениры
Высота потолков: 3 метра
Отделка: С отделкой
Парковка: городская платная перед фасадом
Электрическая мощность (кВт): 120
Зона разгрузки: Есть
Линия: Первая
Тип входа: Отдельный с улицы
Витрины есть
expert

Александр

Руководитель проекта

Для уточнения и фиксирования цены можно связаться напрямую с брокером

+7 (495) 106-19-99

Расположение на карте

Похожие лоты

Мы включили в наш каталог лучшие предложения по коммерческой недвижимости в Москве.

Новинка
lot-16277
lot-16277
lot-16277
3
Помещение под сувениры, 499 м²

Продажа | Лот 49613

Москва село Ям, Мезенцева, 23

Площадь: 499 м²

Назначение: Торговое помещение под  магазин супермаркет бижутерия сувениры

Арендаторы: пятерочка

Доходность: 9%, 1 111 000 ₽/мес

Окупаемость: 12 лет

Готовый арендный бизнес в селе Ям. Объект находится в жилом комплексе «Прибрежный Парк» на 13 800 человек, в проекте спланированы школа...

160 000 000 ₽

321 000 ₽ за м²

Новинка
lot-8684
lot-8684
lot-8684
lot-8684
lot-8684
lot-8684
lot-8684
7
Помещение под сувениры, 240 м²

Продажа | Лот 10206

Москва Красногорск, Липовой Рощи, 6с1

Площадь: 240 м²

Назначение: Торговое помещение под  магазин бижутерия сувениры

Готовый арендный бизнес на 1-й линии домов в Красногорске. Жилой развивающийся район, большой поток пешеходного и автомобильного трафика....

160 000 000 ₽

667 000 ₽ за м²

Новинка
lot-10751
lot-10751
2
Помещение под сувениры, 356 м²

Продажа | Лот 12807

Дмитровская 5 мин

Москва Дмитровский проезд, 1Г

Площадь: 356 м²

Назначение: Торговое помещение под  офис рабочее место

Офис в комплексе Stone Дмитровская. Офис площадью 356 м² расположен на 15 этаже из 23, без отделки. Окна: панорамные окна в пол с возможностью...

159 667 000 ₽

449 000 ₽ за м²

Новинка
lot-11758
lot-11758
lot-11758
3
Помещение под сувениры, 257 м²

Продажа | Лот 14389

Москва Проходчиков, 4с2

Площадь: 257 м²

Назначение: Торговое помещение под  магазин пекарня аптека цветы бижутерия сувениры микрокредит салон красоты фаст-фуд пункт выдачи парикмахерская

Арендаторы: Пекарня Янлекс маркет Цветы Апрель аптека

Доходность: 8%, 868 000 ₽/мес

Окупаемость: 12 лет

Готовый арендный бизнес на 1-й линии улицы Проходчиков в Ярославском районе. Близость театра, детского сада и школы обеспечивает большой...

125 000 000 ₽

486 000 ₽ за м²

Новинка
lot-16558
lot-16558
2
Помещение под сувениры, 257 м²

Продажа | Лот 18913

Москва Нижние Мнёвники, 39/41

Площадь: 257 м²

Офис в комплексе STONE Мневники. Офис площадью 257 м² расположен на 2 этаже из 12, без отделки. Окна: панорамные. Вид из окон: москва-река,...

152 599 000 ₽

594 000 ₽ за м²

Новинка
lot-15743
lot-15743
2
Помещение под сувениры, 256 м²

Продажа | Лот 13559

Москва Дербеневская, 1

Площадь: 256 м²

185 825 000 ₽

726 000 ₽ за м²

Позвонить эксперту max whatsapp telegram
Каширская
Академический
ЦАО
Академический