Арендный бизнес на Ереванской, 433 м², лот - 18212

Продажа | Лот 18212

Image 0
Image 1
Image 2
Image 3
Image 4
Image 5
Image 6
Image 7
Image 8
9
Image 0 Image 1 Image 2 Image 3 Image 4 Image 5 Image 6 Image 7 Image 8
64700000 RUB

64 700 000 ₽

149 000 ₽ за м²

Арендаторы: Яндекс Лавка
МАП: 744 000 ₽
ГАП: 8 928 000 ₽
Окупаемость:
8 лет
Доходность:
14%
Адрес: Ереванская, 26с1
Площадь: 433 м²
Назначение: магазин бижутерия сувениры
Высота потолков: 2.8 метра
Отделка: С отделкой
Парковка: городская бесплатная перед фасадом
Электрическая мощность (кВт): 60
Зона разгрузки: Есть
Линия: Первая
Тип входа: Отдельный с улицы

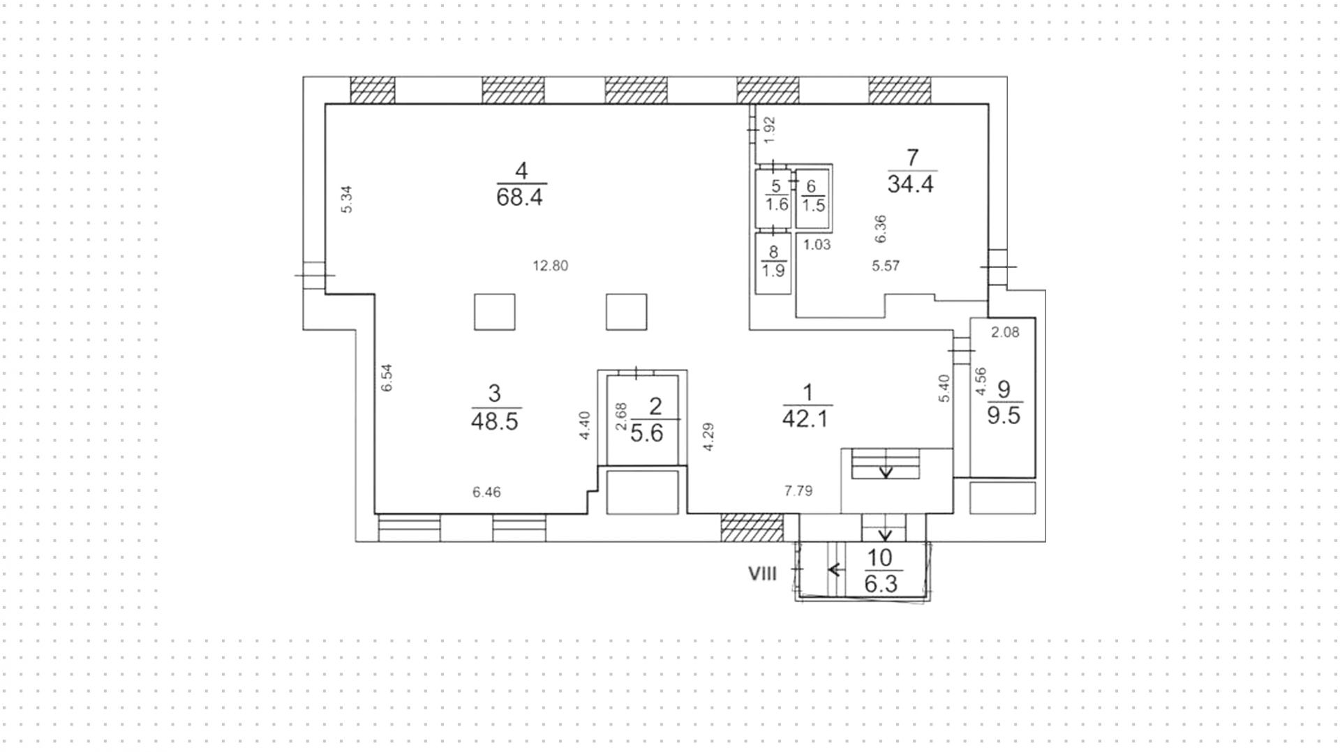
Готовый арендный бизнес на 1-й линии Ереванской улицы в Царицыно. Ритейл находится в жилом районе возле парка «Царицыно», близость остановок общественного транспорта обеспечивает большой пешеходный и автомобильный трафик. Окружение — супермаркет «Магнит», магазины Fix Price, «Подружка», пункты выдачи «Яндекс Маркет», OZON и Wildberries.

Объект с комбинированной планировкой площадью 433 м² расположен в подвале во встроенно-пристроенном к жилому дому здании. Арендатор — даркстор «Яндекс.Лавка». В помещении проведены центральные коммуникации, системы электро-вентиляции, пожарно-охранной сигнализации и видеонаблюдения, организованы 2 санузла. Два отдельных входа с улицы с зоной разгрузки. У здания спланирована городская бесплатная парковка.

64 700 000 ₽

149 000 ₽ за м²

Арендаторы: Яндекс Лавка
МАП: 744 000 ₽
ГАП: 8 928 000 ₽
Окупаемость:
8 лет
Доходность:
14%
Адрес: Ереванская, 26с1
Площадь: 433 м²
Назначение: магазин бижутерия сувениры
Высота потолков: 2.8 метра
Отделка: С отделкой
Парковка: городская бесплатная перед фасадом
Электрическая мощность (кВт): 60
Зона разгрузки: Есть
Линия: Первая
Тип входа: Отдельный с улицы
expert

Руслан

Эксперт проекта

Для уточнения и фиксирования цены можно связаться напрямую с брокером

+7 (495) 106-19-99

Расположение на карте

Назначения
Похожие лоты

Мы включили в наш каталог лучшие предложения по коммерческой недвижимости в Москве.

Новинка
lot-11795
lot-11795
lot-11795
lot-11795
lot-11795
5
Помещение под сувениры, 98 м²

Продажа | Лот 14423

Москва 2-й Нагатинский проезд, 6с1

Площадь: 98 м²

Назначение: Торговое помещение под  магазин бижутерия сувениры пекарня аптека

Доходность: 8%, 450 000 ₽/мес

Окупаемость: 12 лет

Готовый арендный бизнес на 1-й линии 2-го Нагатинского проезда в районе Нагатино-Садовники. Близость колледжа и школы с детским садом...

64 800 000 ₽

661 000 ₽ за м²

Новинка
lot-12479
lot-12479
lot-12479
lot-12479
4
Помещение под сувениры, 219 м²

Продажа | Лот 15932

Москва Мантулинская, 12

Площадь: 219 м²

Назначение: Торговое помещение под  магазин бижутерия сувениры

Арендаторы: самокат

Доходность: 12%, 600 000 ₽/мес

Окупаемость: 9 лет

Готовый арендный бизнес в Пресненском районе. Объект располагается на 1-й линии домов через дорогу от парка «Красная Пресня», что обеспечивает...

64 800 000 ₽

296 000 ₽ за м²

Новинка
lot-14331
lot-14331
2
Помещение под сувениры, 140 м²

Продажа | Лот 19292

Площадь Ильича 9 мин Римская 9 мин

Москва Золоторожский Вал, 11/1

Площадь: 140 м²

Назначение: Торговое помещение под  офис рабочее место

64 681 000 ₽

462 000 ₽ за м²

Новинка
lot-12938
lot-12938
lot-12938
lot-12938
lot-12938
lot-12938
lot-12938
lot-12938
8
Помещение под сувениры, 433 м²

Аренда | Лот 16995

Котельники 1 мин

Москва Котельники, Сосновая, 5с1

Коммерческое помещение в Котельниках. Объект располагается на 1-й линии Новорязанского шоссе, обеспечен интенсивный автомобильный...

1 700 000 ₽ / месяц

47 000 ₽ за м² / год

Новинка
lot-10670
lot-10670
lot-10670
lot-10670
4
Помещение под сувениры, 433 м²

Продажа | Лот 12774

Москва Варшавское шоссе, 284с3

Площадь: 433 м²

Назначение: Торговое помещение под  магазин супермаркет бижутерия сувениры

Арендаторы: супермаркет «Пятёрочка»

Доходность: 9%, 1 533 000 ₽/мес

Окупаемость: 12 лет

Готовый арендный бизнес в Южном Бутово. Развивающийся район, объект находится у центрального бульвара, обеспечен интенсивный пешеходный...

220 800 000 ₽

510 000 ₽ за м²

Новинка
lot-7850
lot-7850
lot-7850
lot-7850
lot-7850
lot-7850
lot-7850
7
Коммерческое помещение с арендатором Harat’s pub на Покровке

Продажа | Лот 9371

Китай-город 8 мин

Москва Покровка, 6

Площадь: 430 м²

Назначение: Торговое помещение под  бар

Арендаторы: паб Harat’s pub

Доходность: 5%, 1 548 000 ₽/мес

Окупаемость: 21 год

Готовый арендный бизнес на 1-й линии улицы Покровка в Басманном районе. Интенсивный поток пешеходного и автомобильного трафика, большое...

390 000 000 ₽

907 000 ₽ за м²

Позвонить эксперту whatsapp telegram
Каширская
Академический
ЦАО
Академический