Арендный бизнес на Дмитрия Ульянова, 308 м², лот - 43905

Продажа | Лот 43905

Image 0
Image 1
Image 2
Image 3
4
Image 0 Image 1 Image 2 Image 3
145000000 RUB

145 000 000 ₽

471 000 ₽ за м²

Арендаторы: Дикси
МАП: 650 000 ₽
ГАП: 7 800 000 ₽
Окупаемость:
19 лет
Доходность:
5%
Район/округ: Котловка / ЮЗАО
Адрес: Дмитрия Ульянова, 47
Площадь: 308 м²
Назначение: магазин свободное супермаркет бижутерия бизнес сувениры
Высота потолков: 5 метров
Отделка: С отделкой
Парковка: перед фасадом
Электрическая мощность (кВт): 50
Зона разгрузки: Есть
Тип входа: Отдельный со двора
Витрины есть

Готовый арендный бизнес в Котловке. Жилой район, обеспечен интенсивный автомобильный и пешеходный трафик, рядом остановка общественного транспорта. Окружение — пункты выдачи Lamoda, Wildberries и OZON, акваклуб Nemo, салон красоты «Лу Лу», пиццерия «Додо Пицца», фаст-фуд Rostic's.

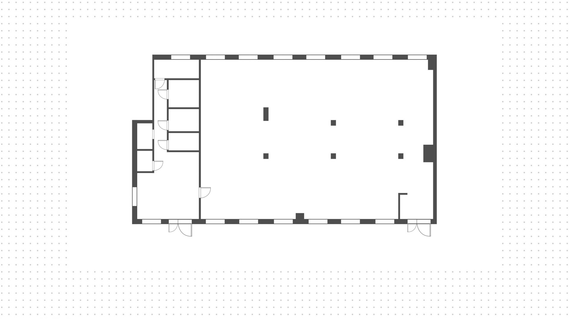
Угловое помещение с открытой планировкой площадью 308 м² расположено на первом этаже в жилом доме. Блок площадью 181 м² занимает супермаркет «Дикси», блок 127 м² вакантен. Четыре отдельных входа с улицы и со двора, витринное остекление. Организованы зона разгрузки и место для рекламы на фасаде. Возле дома предусмотрена парковка.

145 000 000 ₽

471 000 ₽ за м²

Арендаторы: Дикси
МАП: 650 000 ₽
ГАП: 7 800 000 ₽
Окупаемость:
19 лет
Доходность:
5%
Район/округ: Котловка / ЮЗАО
Адрес: Дмитрия Ульянова, 47
Площадь: 308 м²
Назначение: магазин свободное супермаркет бижутерия бизнес сувениры
Высота потолков: 5 метров
Отделка: С отделкой
Парковка: перед фасадом
Электрическая мощность (кВт): 50
Зона разгрузки: Есть
Тип входа: Отдельный со двора
Витрины есть
expert

Наталья

Эксперт проекта

Для уточнения и фиксирования цены можно связаться напрямую с брокером

+7 (495) 106-19-99

Расположение на карте

Похожие лоты

Мы включили в наш каталог лучшие предложения по коммерческой недвижимости в Москве.

Новинка
lot-7873
lot-7873
lot-7873
lot-7873
lot-7873
lot-7873
6
Помещение под сувениры, 162 м²

Продажа | Лот 9397

Фили 5 мин

Москва Большая Филёвская, 3с4

Коммерческое помещение на 1-й линии дома в районе Филёвский парк. Большой поток пешеходного и автомобильного трафика, рядом жилые...

145 000 000 ₽

895 000 ₽ за м²

Новинка
lot-12734
lot-12734
lot-12734
lot-12734
4
Помещение под сувениры, 144 м²

Продажа | Лот 16279

Терехово 9 мин

Москва Нижние Мневники, 16с4

Коммерческое помещение в районе Хорошёво-Мнёвники. Объект располагается на 1-й линии домов, что обеспечивает интенсивный автомобильный...

145 000 000 ₽

1 007 000 ₽ за м²

Новинка
lot-11315
lot-11315
lot-11315
lot-11315
lot-11315
lot-11315
lot-11315
lot-11315
lot-11315
lot-11315
lot-11315
lot-11315
lot-11315
13
Помещение под сувениры, 607 м²

Продажа | Лот 13387

Тропарево 10 мин

Москва Ленинский проспект, 123Г

Здание на 1-й линии улицы Островитянова в районе Тёплый Стан. Интенсивный поток пешеходного и автомобильного трафика. Окружение —...

144 500 000 ₽

238 000 ₽ за м²

Новинка
lot-15531
lot-15531
2
Помещение под сувениры, 308 м²

Продажа | Лот 43317

Прокшино 10 мин

Москва поселение Сосенское

Площадь: 308 м²

Назначение: Торговое помещение под  магазин свободное бижутерия бизнес сувениры

88 693 000 ₽

288 000 ₽ за м²

Новинка
lot-12999
lot-12999
lot-12999
lot-12999
4
Помещение под сувениры, 308 м²

Продажа | Лот 17175

Москва Ильинское-Усово, Заповедная, 20

Площадь: 308 м²

Назначение: Торговое помещение под  магазин супермаркет бижутерия сувениры

Арендаторы: дикси

Доходность: 9%, 962 000 ₽/мес

Окупаемость: 11 лет

Готовый арендный бизнес на первой линии Заповедной улицы в посёлке Ильинское-Усово. Объект находится у въезда в жилой комплекс «Ильинские...

127 000 000 ₽

412 000 ₽ за м²

Новинка
lot-14244
lot-14244
lot-14244
lot-14244
lot-14244
lot-14244
6
Помещение под сувениры, 307 м²

Продажа | Лот 13953

Бульвар Рокоссовского 10 мин

Москва Открытое шоссе, 18Ас7

Площадь: 307 м²

Назначение: Торговое помещение под  магазин супермаркет бижутерия сувениры

Доходность: 8%, 994 000 ₽/мес

Окупаемость: 13 лет

Готовый арендный бизнес на первой линии домов в Метрогородке. Развивающийся район, строятся жилые комплексы «Сиреневый Парк», «Квартал...

155 000 000 ₽

505 000 ₽ за м²

Позвонить эксперту whatsapp telegram
Каширская
Академический
ЦАО
Академический