Арендный бизнес на Братеевской, 519 м², лот - 30991

Продажа | Лот 30991

Image 0
Image 1
Image 2
3
Image 0 Image 1 Image 2
155000000 RUB

155 000 000 ₽

299 000 ₽ за м²

Арендаторы: Магнит
МАП: 1 380 000 ₽
ГАП: 16 560 000 ₽
Окупаемость:
10 лет
Доходность:
11%
Метро:
Алма-Атинская :
pedestrian  2 минуты пешком
Адрес: Братеевская, 16с1
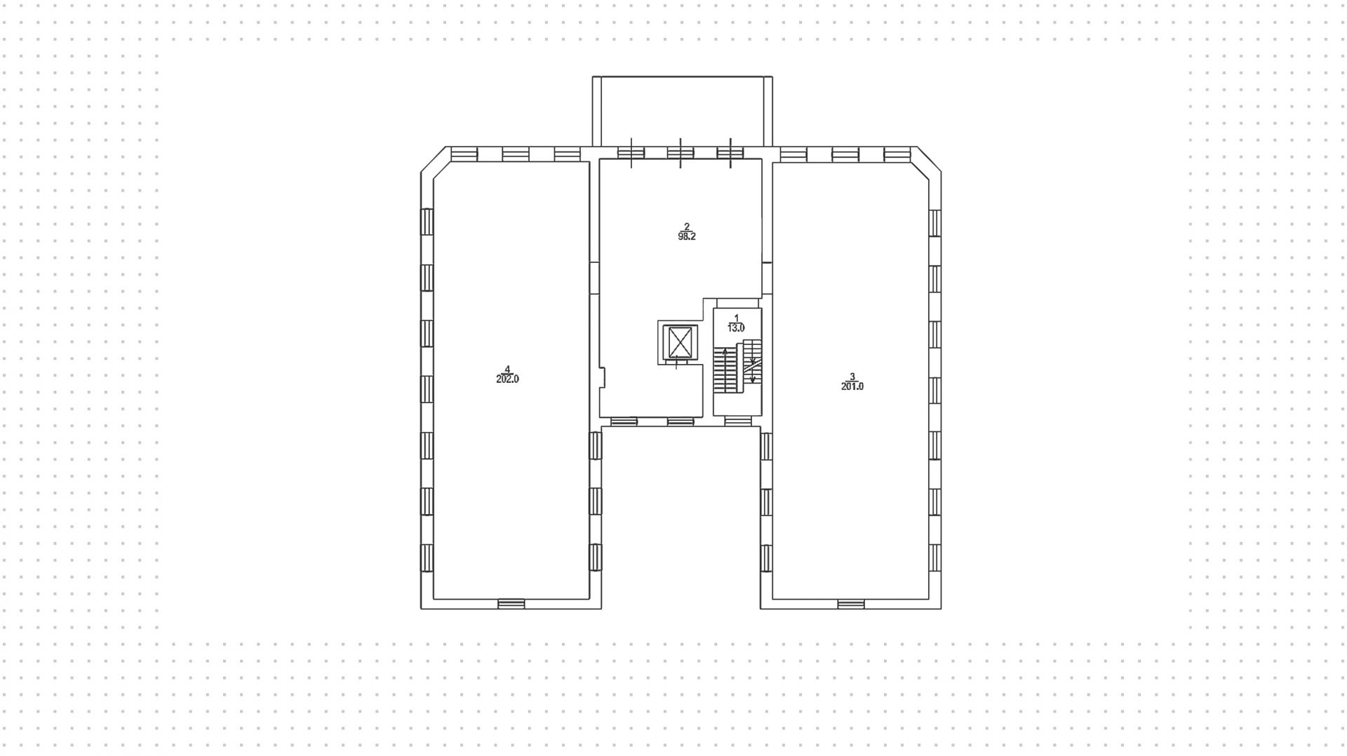
Площадь: 519 м²
Назначение: магазин супермаркет бижутерия сувениры
Отделка: С отделкой
Парковка: перед фасадом
Электрическая мощность (кВт): 55
Линия: Первая
Тип входа: Общий с улицы
Витрины есть

Готовый арендный бизнес на 1-й линии Братеевской улицы в Братеево. Объект находится возле культурного центра «Братеево» и прогулочного бульвара. Интенсивный пешеходный трафик. Окружение — супермаркет «Пятёрочка», магазин «Красная икра», барбершоп «Супермен». За 2 минуты можно пешком дойти до станции метро «Алма-Атинская».

Помещение с открытой планировкой площадью 519 м² расположено на 1-м этаже в жилом доме. Арендатор — супермаркет «Магнит». Общий вход с улицы, витринное остекление, спланировано место для рекламы на фасаде. У дома организована парковка.

155 000 000 ₽

299 000 ₽ за м²

Арендаторы: Магнит
МАП: 1 380 000 ₽
ГАП: 16 560 000 ₽
Окупаемость:
10 лет
Доходность:
11%
Метро:
Алма-Атинская :
pedestrian  2 минуты пешком
Адрес: Братеевская, 16с1
Площадь: 519 м²
Назначение: магазин супермаркет бижутерия сувениры
Отделка: С отделкой
Парковка: перед фасадом
Электрическая мощность (кВт): 55
Линия: Первая
Тип входа: Общий с улицы
Витрины есть
expert

Наталья

Эксперт проекта

Для уточнения и фиксирования цены можно связаться напрямую с брокером

+7 (495) 106-19-99

Расположение на карте

Назначения
Похожие лоты

Мы включили в наш каталог лучшие предложения по коммерческой недвижимости в Москве.

Новинка
lot-8130
lot-8130
lot-8130
3
Двухэтажное здание с сетевым арендатором «Дикси»

Продажа | Лот 9687

Москва деревня Голиково, Шоссейная, 8М

Площадь: 900 м²

Назначение: Торговое помещение под  магазин супермаркет продуктовый магазин бижутерия продукты сувениры

Арендаторы: супермаркет «Дикси»

Доходность: 5%, 587 000 ₽/мес

Окупаемость: 22 года

Готовый арендный бизнес на 1-й линии Новосходненского шоссе в деревне Голиково. Обеспечен большой пешеходный и автомобильный трафик,...

155 000 000 ₽

172 000 ₽ за м²

Новинка
lot-12832
lot-12832
2
Помещение под сувениры, 356 м²

Продажа | Лот 16593

Дмитровская 5 мин

Москва Дмитровский проезд, 1Г

Площадь: 356 м²

Назначение: Торговое помещение под  офис рабочее место

155 034 000 ₽

435 000 ₽ за м²

Новинка
lot-11962
lot-11962
2
Помещение под сувениры, 368 м²

Продажа | Лот 8095

Савеловская 2 мин

Москва Бутырская, 1

154 470 000 ₽

420 000 ₽ за м²

Новинка
lot-14900
lot-14900
lot-14900
lot-14900
lot-14900
lot-14900
6
Помещение под сувениры, 519 м²

Аренда | Лот 33692

Казанский вокзал 5 мин Красносельская 3 мин Площадь трёх вокзалов 10 мин

Москва Новорязанская, 23с5

Коммерческое помещение на 1-й линии Ольховского тупика в Красносельском районе. Объект находится на территории многофункционального...

2 511 000 ₽ / месяц

58 000 ₽ за м² / год

Новинка
lot-13860
lot-13860
lot-13860
lot-13860
lot-13860
lot-13860
lot-13860
lot-13860
lot-13860
lot-13860
lot-13860
lot-13860
12
Помещение под сувениры, 520 м²

Аренда | Лот 18073

Таганская 5 мин

Москва Народная, 14с1

Площадь: 520 м²

Назначение: Торговое помещение под  клиника

Коммерческое помещение на 1-й линии Народной улицы в Таганском районе. Быстрый выезд на Садовое кольцо, рядом остановка общественного...

1 516 000 ₽ / месяц

35 000 ₽ за м² / год

lot-2784
lot-2784
lot-2784
lot-2784
lot-2784
lot-2784
6
Готовый арендный бизнес на 1-й линии Кутузовского проспекта

Продажа | Лот 514

Кутузовская 2 мин

Москва Кутузовский проспект, 35

Площадь: 518 м²

Этаж: 1 этаж

Назначение: Торговое помещение под  магазин супермаркет бижутерия сувениры

Арендаторы: супермаркет «Магнолия»

Доходность: 9%, 1 944 000 ₽/мес

Окупаемость: 12 лет

Готовый арендный бизнес на 1-й линии Кутузовского проспекта в Дорогомилово. Большой поток пешеходного и автомобильного трафика, рядом...

280 000 000 ₽

541 000 ₽ за м²

Позвонить эксперту whatsapp telegram
Каширская
Академический
ЦАО
Академический