Арендный бизнес на Большой Бронной, 48 м², лот - 15808

Продажа | Лот 15808

Image 0
Image 1
Image 2
Image 3
Image 4
Image 5
6
Image 0 Image 1 Image 2 Image 3 Image 4 Image 5
189540000 RUB

189 540 000 ₽

3 949 000 ₽ за м²

МАП: 1 170 000 ₽
ГАП: 14 040 000 ₽
Окупаемость:
14 лет
Доходность:
7%
Метро:
Пушкинская :
pedestrian  3 минуты пешком
Тверская :
pedestrian  4 минуты пешком
Район/округ: Пресненский / ЦАО
Адрес: Большая Бронная, 25с3
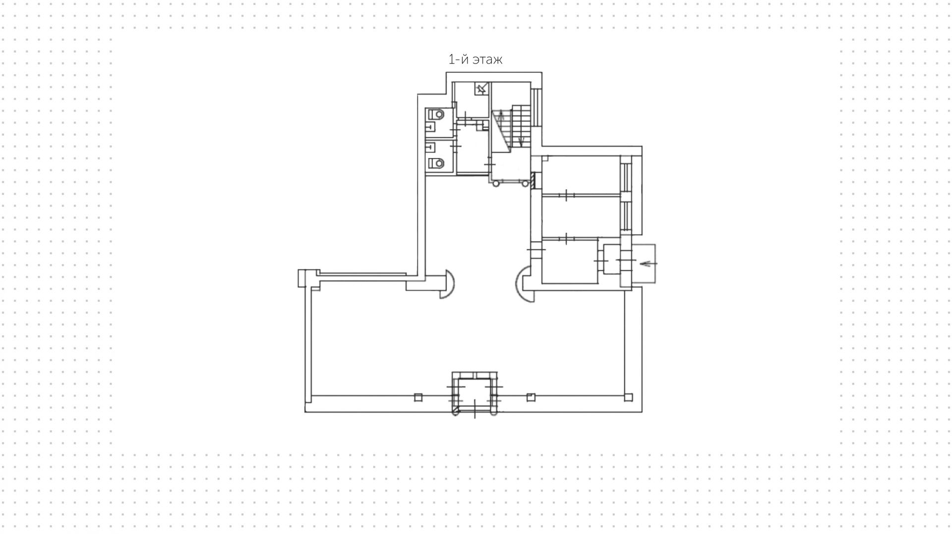
Площадь: 48 м²
Назначение: магазин бижутерия сувениры кофейня кофе с собой
Высота потолков: 4.3 метра
Отделка: С отделкой
Парковка: городская платная парковка на соседней улице
Линия: Первая
Тип входа: Отдельный со двора
Витрины есть

Готовый арендный бизнес в Пресненском районе. Объект находится на 1 линии Большой Бронной улицы в минуте ходьбы от Тверского бульвара. Окружение — пиццерия by Bontempi, чебуречная «СССР», ресторан «Пафос», ночной клуб «Эра». За 3 минуты пешком можно дойти до станции метро «Пушкинская».

Объект с открытой планировкой площадью 48 м² расположен на 1 этаже нежилого здания. Арендатор — кофейня AFROZODIAС. Организовано два отдельных входа — с улицы и со двора, оборудовано витринное остекление. Машину можно оставить на городской платной парковке на соседней улице.

189 540 000 ₽

3 949 000 ₽ за м²

МАП: 1 170 000 ₽
ГАП: 14 040 000 ₽
Окупаемость:
14 лет
Доходность:
7%
Метро:
Пушкинская :
pedestrian  3 минуты пешком
Тверская :
pedestrian  4 минуты пешком
Район/округ: Пресненский / ЦАО
Адрес: Большая Бронная, 25с3
Площадь: 48 м²
Назначение: магазин бижутерия сувениры кофейня кофе с собой
Высота потолков: 4.3 метра
Отделка: С отделкой
Парковка: городская платная парковка на соседней улице
Линия: Первая
Тип входа: Отдельный со двора
Витрины есть
expert

Руслан

Эксперт проекта

Для уточнения и фиксирования цены можно связаться напрямую с брокером

+7 (495) 106-19-99

Расположение на карте

Похожие лоты

Мы включили в наш каталог лучшие предложения по коммерческой недвижимости в Москве.

Новинка
lot-11964
lot-11964
lot-11964
3
Помещение под кофе с собой, 500 м²

Продажа | Лот 14971

Москва Мисайлово, имени Л.И. Гоман, 3

Площадь: 500 м²

Назначение: Торговое помещение под  магазин продуктовый магазин бижутерия продукты сувениры супермаркет

Арендаторы: Магнит

Доходность: 8%, 1 131 000 ₽/мес

Окупаемость: 14 лет

Готовый арендный бизнес в деревне Мисайлово. Окружение — супермаркет «Пятёрочка», аптека «Горздрав», кофейни ShineCoffee и «Люблю не могу»,...

190 000 000 ₽

380 000 ₽ за м²

Новинка
lot-14771
lot-14771
2
Помещение под кофе с собой, 467 м²

Продажа | Лот 31662

Алексеевская 10 мин

Москва проспект Мира, 81

Площадь: 467 м²

Назначение: Торговое помещение под  магазин спортзал бижутерия сувениры

Арендаторы: Керхер Йога центр на антресоле

Доходность: 5%, 720 000 ₽/мес

Окупаемость: 22 года

Готовый арендный бизнес на 1-й линии проспекта Мира в Алексеевском районе. Интенсивный пешеходный и автомобильный трафик, рядом остановка...

190 000 000 ₽

407 000 ₽ за м²

Новинка
lot-12187
lot-12187
2
Помещение под кофе с собой, 323 м²

Продажа | Лот 14528

Терехово 7 мин

Москва Нижние Мнёвники, 39/41

Площадь: 323 м²

Назначение: Торговое помещение под  офис рабочее место

Офис в комплексе STONE Мневники. Офис площадью 329 м² расположен на 3 этаже из 12, без отделки. Окна: панорамные. Вид из окон: москва-река,...

187 050 000 ₽

579 000 ₽ за м²

Новинка
lot-15159
lot-15159
lot-15159
3
Помещение под кофе с собой, 48 м²

Аренда | Лот 6704

Павелецкая 1 мин

Москва Новокузнецкая, 39

Коммерческое помещение на Новокузнецкой улице в Замоскворечье. Большой поток пешеходного и автомобильного трафика, рядом остановка...

650 000 ₽ / месяц

163 000 ₽ за м² / год

Новинка
lot-14425
lot-14425
2
Помещение под кофе с собой, 48 м²

Продажа | Лот 14715

Кожуховская 11 мин

Москва Южнопортовая, 28-28а

Площадь: 48 м²

Назначение: Торговое помещение под  офис рабочее место

26 323 000 ₽

548 000 ₽ за м²

Новинка
lot-15049
lot-15049
lot-15049
lot-15049
4
Помещение под кофе с собой, 48 м²

Продажа | Лот 16194

Москва Новомихайловское шоссе, с2

Площадь: 48 м²

Назначение: Торговое помещение под  магазин аптека бижутерия сувениры

Готовый арендный бизнес в Коммунарке. Объект находится возле прогулочного бульвара, рядом школа и два детских сада, обеспечен большой...

27 800 000 ₽

579 000 ₽ за м²

Позвонить эксперту whatsapp telegram
Каширская
Академический
ЦАО
Академический