Арендный бизнес в Мытищах, 505 м², лот - 12257

Продажа | Лот 12257

Image 0
Image 1
Image 2
Image 3
Image 4
Image 5
6
Image 0 Image 1 Image 2 Image 3 Image 4 Image 5
207000000 RUB

207 000 000 ₽

410 000 ₽ за м²

МАП: 1 280 000 ₽
ГАП: 15 360 000 ₽
Окупаемость:
14 лет
Доходность:
7%
Адрес: Мытищи, 1-й Стрелковый переулок, 5
Площадь: 505 м²
Назначение: магазин супермаркет бижутерия сувениры
Высота потолков: 4 метра
Отделка: С отделкой
Парковка: перед фасадом
Электрическая мощность (кВт): 98
Зона разгрузки: Есть
Тип входа: Отдельный с улицы
Витрины есть

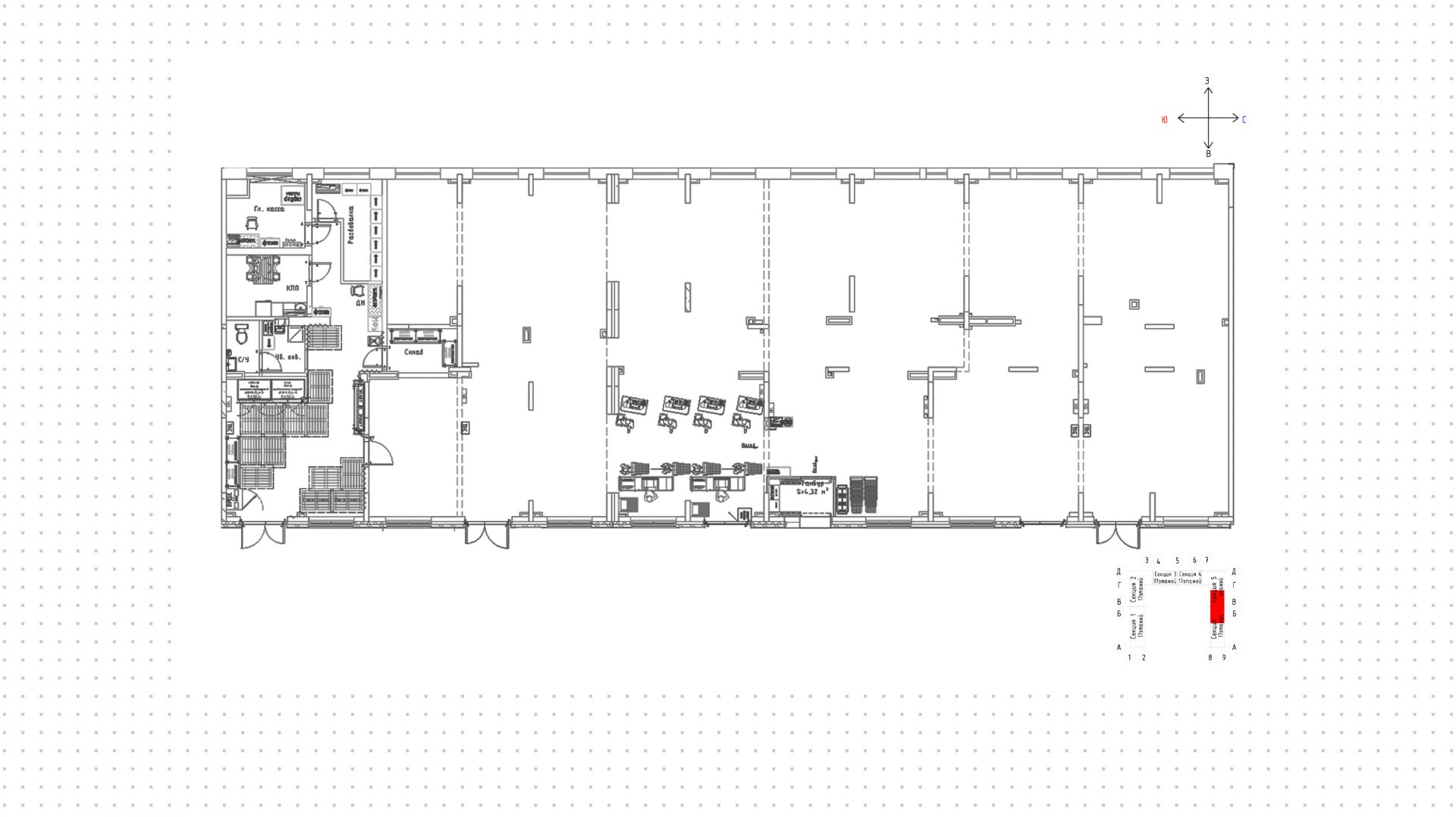
Готовый арендный бизнес в Мытищах. Развивающийся жилой район, близость детского сада и прогулочного бульвара обеспечивает интенсивный пешеходный трафик. Окружение — супермаркет «Пятёрочка», аптека «Горздрав», магазины «Улыбка радуги», пункты выдачи Wildberries, OZON.

Помещение с открытой планировкой площадью 505 м² расположено на первом этаже в жилом комплексе «Мытищи Парк». Арендатор — супермаркет «Пятёрочка». Четыре отдельных входа с улицы, витринное остекление. Организованы зона разгрузки с дебаркадером, место для рекламы на фасаде. У дома предусмотрена парковка.

«Мытищи Парк» — комплекс комфорт-класса из 7 корпусов с переменной высотой от 10 до 17 этажей. В проекте спланированы 2 школы, 3 детских сада и спортивно-оздоровительный комплекс.

207 000 000 ₽

410 000 ₽ за м²

МАП: 1 280 000 ₽
ГАП: 15 360 000 ₽
Окупаемость:
14 лет
Доходность:
7%
Адрес: Мытищи, 1-й Стрелковый переулок, 5
Площадь: 505 м²
Назначение: магазин супермаркет бижутерия сувениры
Высота потолков: 4 метра
Отделка: С отделкой
Парковка: перед фасадом
Электрическая мощность (кВт): 98
Зона разгрузки: Есть
Тип входа: Отдельный с улицы
Витрины есть
expert

Александр

Эксперт проекта

Для уточнения и фиксирования цены можно связаться напрямую с брокером

+7 (495) 106-19-99

Расположение на карте

Назначения
Похожие лоты

Мы включили в наш каталог лучшие предложения по коммерческой недвижимости в Москве.

Новинка
lot-14814
lot-14814
lot-14814
lot-14814
4
Помещение под сувениры, 571 м²

Продажа | Лот 32057

Москва посёлок Мирный, Военкора Максима Фомина, 6

Площадь: 571 м²

Назначение: Торговое помещение под  магазин супермаркет бижутерия сувениры

Доходность: 7%, 1 150 000 ₽/мес

Окупаемость: 15 лет

Готовый арендный бизнес в посёлке Мирный. Жилой развивающийся район, обеспечен интенсивный автомобильный и пешеходный трафик. Окружение...

207 000 000 ₽

363 000 ₽ за м²

Новинка
lot-15521
lot-15521
lot-15521
3
Помещение под сувениры, 421 м²

Продажа | Лот 43192

Москва Красногорск, бульвар Строителей, с1

Площадь: 421 м²

Назначение: Торговое помещение под  магазин супермаркет аптека бижутерия сувениры

Готовый арендный бизнес в Красногорске. Ритейл находится в жилом комплексе «Квартал Строгино», в проекте спланированы школа и два...

207 572 000 ₽

493 000 ₽ за м²

Новинка
lot-11815
lot-11815
lot-11815
lot-11815
lot-11815
lot-11815
lot-11815
lot-11815
lot-11815
lot-11815
lot-11815
lot-11815
lot-11815
lot-11815
lot-11815
lot-11815
lot-11815
lot-11815
lot-11815
lot-11815
lot-11815
lot-11815
lot-11815
lot-11815
lot-11815
lot-11815
lot-11815
lot-11815
lot-11815
lot-11815
lot-11815
lot-11815
32
Помещение под сувениры, 492 м²

Продажа | Лот 14441

Электрозаводская 8 мин

Москва Большая Почтовая, 32с8

Коммерческое помещение в Басманном районе. Близость пешеходного моста через реку Яуза и прогулочного бульвара обеспечивают интенсивный...

206 000 000 ₽

419 000 ₽ за м²

Новинка
lot-15248
lot-15248
2
Помещение под сувениры, 507 м²

Продажа | Лот 8195

Прокшино 1 мин

Москва поселение Сосенское, квартал № 35

Площадь: 507 м²

Назначение: Торговое помещение под  офис рабочее место

Офис в комплексе Бизнес-квартал Прокшино. Офис площадью 507 м² расположен на 10 этаже из 12, без отделки. Окна: панорамные, Энергоэффективное...

123 539 000 ₽

244 000 ₽ за м²

Новинка
lot-14187
lot-14187
lot-14187
3
Помещение под сувениры, 508 м²

Продажа | Лот 18870

Москва Одинцово, Маршала Неделина, 2

Площадь: 508 м²

Назначение: Торговое помещение под  магазин бижутерия сувениры

Готовый арендный бизнес на улице Маршала Неделина в Одинцово. Близость Городского парка и остановки общественного транспорта обеспечивает...

120 000 000 ₽

236 000 ₽ за м²

Новинка
lot-14375
lot-14375
2
Помещение под сувениры, 504 м²

Продажа | Лот 19262

Москва Мытищи, 1-й Рупасовский переулок, 7

Площадь: 504 м²

Назначение: Торговое помещение под  магазин супермаркет бижутерия сувениры

Арендаторы: Пятерочка

Доходность: 11%, 1 019 000 ₽/мес

Окупаемость: 9 лет

Готовый арендный бизнес в Мытищах. Жилой район, обеспечен интенсивный автомобильный и пешеходный трафик. Окружение — салон красоты...

110 000 000 ₽

218 000 ₽ за м²

Позвонить эксперту whatsapp telegram
Каширская
Академический
ЦАО
Академический