Арендный бизнес в Богословском переулке, 76 м², лот - 15661

Продажа | Лот 15661

Image 0
Image 1
Image 2
Image 3
Image 4
Image 5
6
Image 0 Image 1 Image 2 Image 3 Image 4 Image 5
179400000 RUB

179 400 000 ₽

2 361 000 ₽ за м²

МАП: 1 150 000 ₽
ГАП: 13 800 000 ₽
Окупаемость:
13 лет
Доходность:
8%
Метро:
Пушкинская :
pedestrian  6 минут пешком
Тверская :
pedestrian  6 минут пешком
Район/округ: Пресненский / ЦАО
Адрес: Богословский переулок, 16/6с1
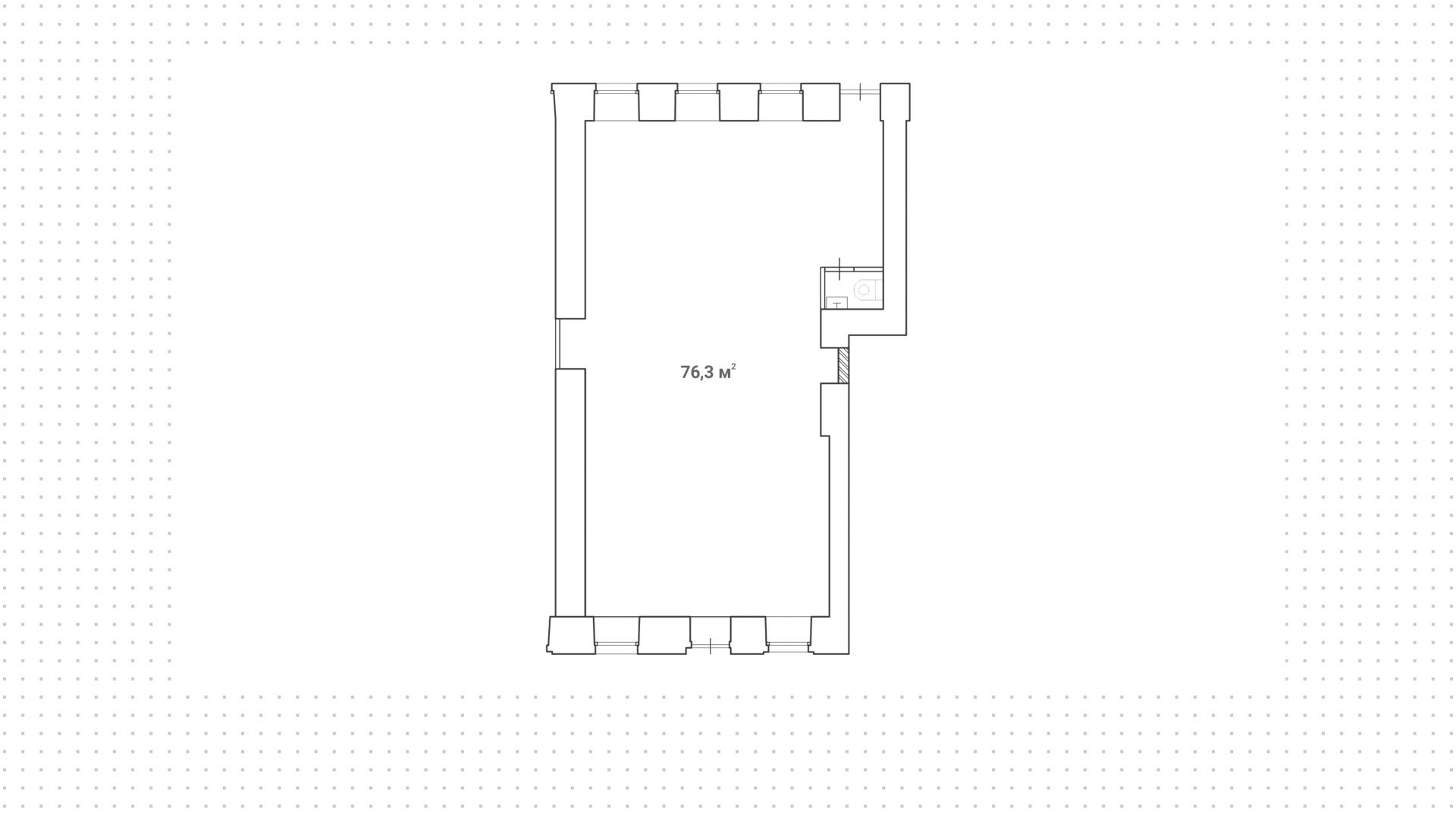
Площадь: 76 м²
Назначение: магазин бижутерия сувениры шоурум
Высота потолков: 3 метра
Отделка: С отделкой
Парковка: городская платная перед фасадом
Зона разгрузки: Есть
Линия: Первая
Тип входа: Отдельный со двора
Витрины есть

Готовый арендный бизнес на 1-й линии Большого Палашёвского переулка в Пресненском районе. Объект находится в микрорайоне Патриаршие Пруды, обеспечен интенсивный пешеходный и автомобильный трафик. Окружение — рестораны Grassa, Pinch, Shiba. За 6 минут можно пешком дойти до станций метро «Пушкинская» и «Тверская».

Объект с открытой планировкой площадью 76 м² расположен на 1-м этаже в жилом доме. Арендатор — магазин обуви BASARAB, в помещении проведены центральные коммуникации. Отдельный вход с улицы и со двора, витринное остекление. Предусмотрены зона разгрузки, место для размещения рекламы на фасаде. У дома организована городская платная парковка.

179 400 000 ₽

2 361 000 ₽ за м²

МАП: 1 150 000 ₽
ГАП: 13 800 000 ₽
Окупаемость:
13 лет
Доходность:
8%
Метро:
Пушкинская :
pedestrian  6 минут пешком
Тверская :
pedestrian  6 минут пешком
Район/округ: Пресненский / ЦАО
Адрес: Богословский переулок, 16/6с1
Площадь: 76 м²
Назначение: магазин бижутерия сувениры шоурум
Высота потолков: 3 метра
Отделка: С отделкой
Парковка: городская платная перед фасадом
Зона разгрузки: Есть
Линия: Первая
Тип входа: Отдельный со двора
Витрины есть
expert

Александр

Руководитель проекта

Для уточнения и фиксирования цены можно связаться напрямую с брокером

+7 (495) 106-19-99

Расположение на карте

Похожие лоты

Мы включили в наш каталог лучшие предложения по коммерческой недвижимости в Москве.

Новинка
lot-4718
lot-4718
lot-4718
3
Помещение с арендаторами «ВкусВилл», пункты выдачи OZON и Wildberries

Продажа | Лот 3976

Москва Улофа Пальме, 1

Площадь: 468 м²

Назначение: Торговое помещение под  магазин свободное супермаркет аптека пункт выдачи бижутерия бизнес сувениры

Арендаторы: супермаркет «ВкусВилл», интернет-магазин OZON, интернет-магазин Wildberries, аптека

Доходность: 6%, 938 000 ₽/мес

Окупаемость: 16 лет

Готовый арендный бизнес в Раменках. Рядом проходит велодорожка, есть стоянка для арендных велосипедов, интенсивный поток пешеходного...

Цена по запросу

Новинка
lot-10732
lot-10732
lot-10732
lot-10732
lot-10732
5
Помещение под шоурум, 1153 м²

Продажа | Лот 12852

Москва Измайловский проезд, 5с2

Площадь: 1 153 м²

Назначение: Торговое помещение под  магазин бижутерия сувениры супермаркет

Арендаторы: супермаркет «Магнит», даркстор «Яндекс.Лавка»

Доходность: 10%, 1 364 000 ₽/мес

Окупаемость: 11 лет

Готовый арендный бизнес на 1-й линии Измайловского проезда в Измайлово. Остановка общественного транспорта обеспечивает интенсивный...

180 000 000 ₽

156 000 ₽ за м²

Новинка
lot-14410
lot-14410
lot-14410
3
Помещение под шоурум, 532 м²

Продажа | Лот 19377

Москва Эдварда Грига, с18.1.4

Площадь: 532 м²

Назначение: Торговое помещение под  магазин супермаркет бижутерия сувениры

Арендаторы: пятерочка

Доходность: 11%, 1 492 000 ₽/мес

Окупаемость: 10 лет

Готовый арендный бизнес в Коммунарке. Жилой развивающийся район, обеспечен интенсивный автомобильный и пешеходный трафик. Окружение...

179 000 000 ₽

336 000 ₽ за м²

Новинка
lot-14054
lot-14054
lot-14054
lot-14054
lot-14054
lot-14054
6
Помещение под шоурум, 76 м²

Аренда | Лот 6495

Китай-город 2 мин

Москва Маросейка, 9/2с1

Коммерческое помещение на 1-й линии улицы Маросейка в Басманном районе. Большой поток пешеходного и автомобильного трафика, улица...

1 100 000 ₽ / месяц

174 000 ₽ за м² / год

Новинка
lot-13825
lot-13825
lot-13825
lot-13825
4
Помещение под шоурум, 76 м²

Продажа | Лот 17937

Москва Клин, 60 лет Комсомола, 6с1

Площадь: 76 м²

Назначение: Торговое помещение под  свободное бизнес

Арендаторы: «ВсеИнтрументы.ру»

Доходность: 9%, 139 000 ₽/мес

Окупаемость: 12 лет

Готовый арендный бизнес в городе Клин. Объект располагается в жилом районе, обеспечен интенсивный автомобильный и пешеходный трафик....

20 000 000 ₽

263 000 ₽ за м²

Новинка
lot-13555
lot-13555
2
Помещение под шоурум, 76 м²

Продажа | Лот 12127

Москва Старокалужское шоссе, 64/1

Площадь: 76 м²

29 905 000 ₽

393 000 ₽ за м²

Позвонить эксперту whatsapp telegram
Каширская
Академический
ЦАО
Академический