Здание в Балашихе, 2301 м², лот - 49921

Продажа | Лот 49921

Image 0
Image 1
Image 2
Image 3
Image 4
Image 5
6
Image 0 Image 1 Image 2 Image 3 Image 4 Image 5
200000000 RUB

200 000 000 ₽

87 000 ₽ за м²

Адрес: Балашиха, Жилгородок, 44А
Площадь: 2301 м²
Назначение: магазин салон красоты супермаркет бар спортзал кафе пункт выдачи бижутерия парикмахерская сувениры
Высота потолков: 4 метра
Отделка: С отделкой
Парковка: собственная рядом со зданием
Электрическая мощность (кВт): 140
Зона разгрузки: Есть
Линия: Первая
Тип входа: Отдельный со двора
Витрины есть

Торговый центр «Сфера» на 1 линии улицы Жилгородок в Балашихе. Рядом пролегает железнодорожная линия МЦД — D4, обеспечен интенсивный автомобильный и пешеходный трафик. Окружение — супермаркет «ВкусВилл», алкомаркет «Красное&Белое», аптека «Инфи», салоны красоты.

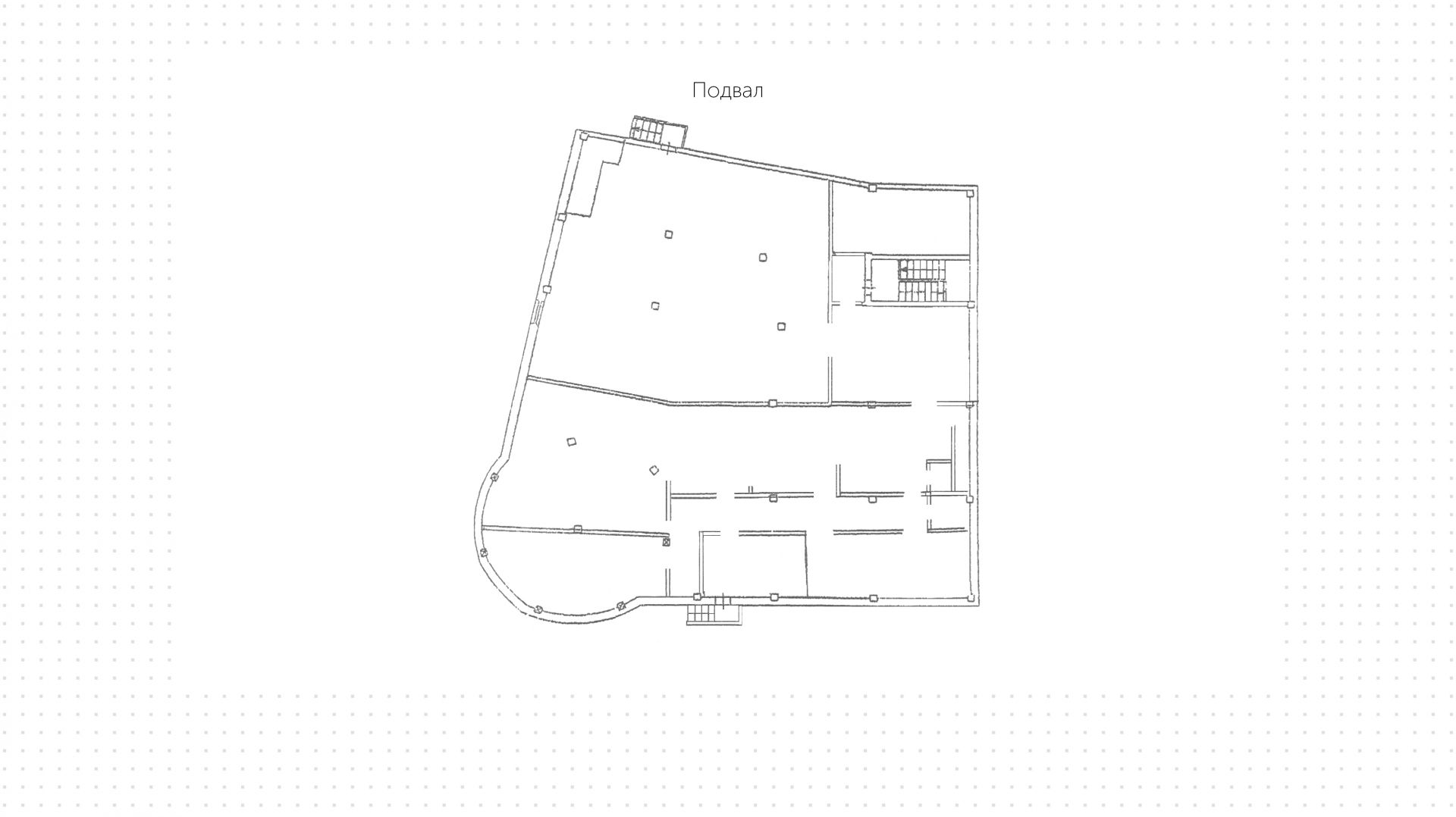
Трёхэтажное здание с подвалом площадью 2 301 м² занимают арендаторы: супермаркет «Пятёрочка», пункты выдачи Wildberries, OZON и «Яндекс Маркет», бар «Чердак», алкомаркет «Хмельной дворик» и другие. В торговом центре с комбинированной планировкой установлена вытяжка, организованы отдельные входы с улицы и со двора, спланирована зона разгрузка. Рядом со зданием находится собственная парковка.

200 000 000 ₽

87 000 ₽ за м²

Адрес: Балашиха, Жилгородок, 44А
Площадь: 2301 м²
Назначение: магазин салон красоты супермаркет бар спортзал кафе пункт выдачи бижутерия парикмахерская сувениры
Высота потолков: 4 метра
Отделка: С отделкой
Парковка: собственная рядом со зданием
Электрическая мощность (кВт): 140
Зона разгрузки: Есть
Линия: Первая
Тип входа: Отдельный со двора
Витрины есть
expert

Наталья

Эксперт проекта

Для уточнения и фиксирования цены можно связаться напрямую с брокером

+7 (495) 106-19-99

Расположение на карте

Похожие лоты

Мы включили в наш каталог лучшие предложения по коммерческой недвижимости в Москве.

Новинка
lot-14725
lot-14725
lot-14725
lot-14725
4
Помещение под сувениры, 590 м²

Продажа | Лот 30977

Москва Элеваторная, 10

Площадь: 590 м²

Назначение: Торговое помещение под  магазин супермаркет аптека бижутерия сувениры

Арендаторы: пятерочка, ригла

Доходность: 8%, 1 282 000 ₽/мес

Окупаемость: 13 лет

Одноэтажное здание в Восточном Бирюлёво. Объект располагается на 1-й линии Бирюлёвской улицы, обеспечен интенсивный автомобильный...

200 000 000 ₽

339 000 ₽ за м²

Новинка
lot-16391
lot-16391
lot-16391
lot-16391
4
Помещение под сувениры, 325 м²

Продажа | Лот 50355

Москва Алтуфьевское шоссе, 55с4

Площадь: 325 м²

Назначение: Торговое помещение под  магазин супермаркет бижутерия сувениры

Арендаторы: магнит

Доходность: 8%, 1 389 000 ₽/мес

Окупаемость: 12 лет

Готовый арендный бизнес в Алтуфьевском районе. Жилой развивающийся район, обеспечен интенсивный автомобильный и пешеходный трафик....

200 000 000 ₽

615 000 ₽ за м²

Новинка
lot-15850
lot-15850
lot-15850
lot-15850
lot-15850
5
Помещение под сувениры, 210 м²

Продажа | Лот 45835

Москва Ленинский проспект, 38

Коммерческое помещение на Ленинском проспекте в Гагаринском районе. Ритейл находится во многофункциональном комплексе премиум-класса...

199 500 000 ₽

950 000 ₽ за м²

Новинка
lot-6187
lot-6187
lot-6187
lot-6187
lot-6187
lot-6187
lot-6187
lot-6187
lot-6187
lot-6187
lot-6187
lot-6187
lot-6187
13
Двухэтажный торговый центр с арендаторами в Лефортово

Продажа | Лот 8304

Москва Волочаевская улица, 12Ас1А

Готовый арендный бизнес на 1-й линии Волочаевской улицы в районе Лефортово. Большой поток пешеходного и автомобильного трафика, рядом...

323 932 000 ₽

140 000 ₽ за м²

Новинка
lot-16404
lot-16404
2
Помещение под сувениры, 2330 м²

Продажа | Лот 16447

Москва Дербеневская, 1

Площадь: 2 330 м²

1 544 890 000 ₽

663 000 ₽ за м²

Новинка
lot-16310
lot-16310
lot-16310
lot-16310
lot-16310
lot-16310
lot-16310
lot-16310
lot-16310
lot-16310
lot-16310
lot-16310
12
Помещение под сувениры, 2263 м²

Продажа | Лот 49693

Молодежная 9 мин

Москва Рублёвское шоссе, 30с1

Площадь: 2 263 м²

Назначение: Торговое помещение под  магазин салон красоты супермаркет бижутерия парикмахерская сувениры

Арендаторы: пятерочка, салон красоты, винный погpeб Lа grande Саve

Доходность: 11%, 3 492 000 ₽/мес

Окупаемость: 10 лет

Готовый арендный бизнес на первой линии Рублёвского шоссе в Крылатском районе. Большой пешеходный и автомобильный трафик, рядом остановка...

419 000 000 ₽

185 000 ₽ за м²

Позвонить эксперту max whatsapp telegram
Каширская
Академический
ЦАО
Академический