Арендный бизнес на Большой Полянке, 161 м², лот - 3902

Продажа | Лот 3902

Image 0
Image 1
Image 2
Image 3
Image 4
5
Image 0 Image 1 Image 2 Image 3 Image 4
185000000 RUB

185 000 000 ₽

1 149 000 ₽ за м²

Арендаторы: супермаркет «ВкусВилл»
МАП: 750 000 ₽
ГАП: 9 000 000 ₽
Окупаемость:
21 год
Доходность:
5%
Метро:
Полянка :
pedestrian  5 минут пешком
Район/округ: Якиманка / ЦАО
Адрес: Большая Полянка, 9
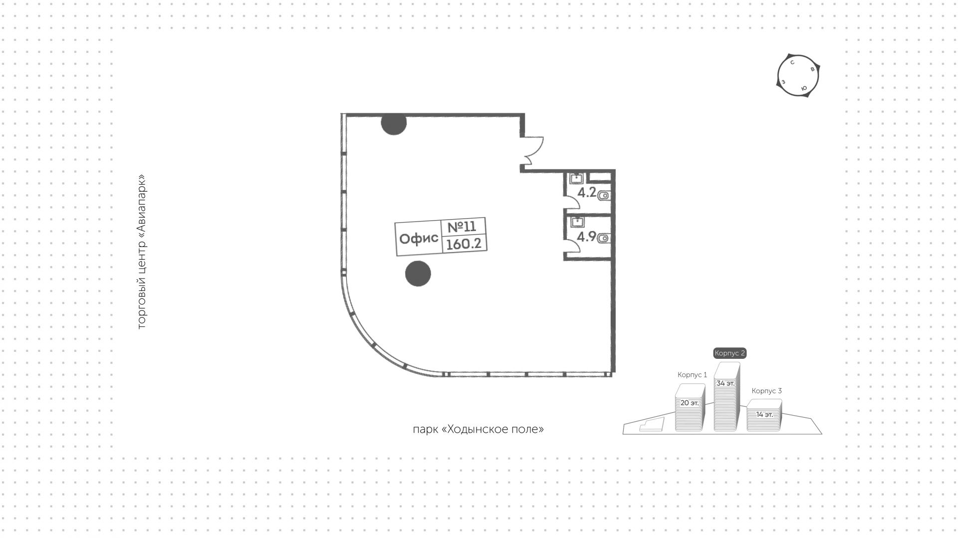
Площадь: 161 м²
Этаж: 1 этаж
Назначение: магазин супермаркет бижутерия сувениры
Высота потолков: 5 метров
Отделка: С отделкой
Парковка: подземный паркинг на территории комплекса
Электрическая мощность (кВт): 55
Линия: Первая
Тип входа: Отдельный с улицы
Витрины есть

Готовый арендный бизнес на 1-й линии Большой Полянки в районе Якиманка. Большой поток пешеходного и автомобильного трафика, рядом остановка общественного транспорта. Окружение — магазин «Магнолия», бар «Гараж», ресторан William Bass. За 5 минут пешком можно дойти до станции метро «Полянка», за 8 минут — до станции метро «Третьяковская».

Объект с открытой планировкой площадью 161 м² расположен на 1 этаже 6-этажного жилого комплекса Cloud Nine. Арендатор — супермаркет «ВкусВилл». Два отдельных входа с улицы, витринное остекление. Предусмотрена возможность размещения рекламы на фасаде. На территории комплекса спланирован подземный паркинг.

185 000 000 ₽

1 149 000 ₽ за м²

Арендаторы: супермаркет «ВкусВилл»
МАП: 750 000 ₽
ГАП: 9 000 000 ₽
Окупаемость:
21 год
Доходность:
5%
Метро:
Полянка :
pedestrian  5 минут пешком
Район/округ: Якиманка / ЦАО
Адрес: Большая Полянка, 9
Площадь: 161 м²
Этаж: 1 этаж
Назначение: магазин супермаркет бижутерия сувениры
Высота потолков: 5 метров
Отделка: С отделкой
Парковка: подземный паркинг на территории комплекса
Электрическая мощность (кВт): 55
Линия: Первая
Тип входа: Отдельный с улицы
Витрины есть
expert

Александр

Руководитель проекта

Для уточнения и фиксирования цены можно связаться напрямую с брокером

+7 (495) 106-19-99

Расположение на карте

Назначения
Похожие лоты

Мы включили в наш каталог лучшие предложения по коммерческой недвижимости в Москве.

Новинка
lot-12886
lot-12886
lot-12886
lot-12886
lot-12886
lot-12886
lot-12886
lot-12886
lot-12886
9
Помещение под сувениры, 1277 м²

Продажа | Лот 16813

Москва Истра, деревня Давыдовское, 65

Площадь: 1 277 м²

Назначение: Торговое помещение под  магазин пекарня супермаркет аптека алко-маркет продуктовый магазин бижутерия продукты сувениры

Арендаторы: Супермакет МИРАТОРГ, аптека ДАЛИАН, магазин алкогольной продукции, кафе грузинской домашней кухни, кондитерская, ВКУСВИЛЛ, Сыры Олега Сироты

Доходность: 12%, 1 713 000 ₽/мес

Окупаемость: 9 лет

Здания на 1-й линии домов в Истре. Обеспечен интенсивный автомобильный трафик. Окружение — супермаркет «Перекрёсток», пункты выдачи...

185 000 000 ₽

145 000 ₽ за м²

Новинка
lot-13884
lot-13884
lot-13884
lot-13884
4
Помещение под сувениры, 524 м²

Продажа | Лот 18082

Москва Петрозаводская, 15с5

Площадь: 524 м²

Назначение: Торговое помещение под  магазин супермаркет бижутерия сувениры

Арендаторы: пятерочка

Доходность: 10%, 1 542 000 ₽/мес

Окупаемость: 10 лет

Готовый арендный бизнес в Ховрино. Объект располагается в центре жилого массива, обеспечен интенсивный пешеходный трафик. Окружение...

185 000 000 ₽

353 000 ₽ за м²

Новинка
lot-15728
lot-15728
lot-15728
lot-15728
4
Помещение под сувениры, 328 м²

Продажа | Лот 44648

Очаково 4 мин

Москва проезд Стройкомбината, 1

Площадь: 328 м²

Назначение: Торговое помещение под  магазин супермаркет бижутерия сувениры

Арендаторы: пятерочка

Доходность: 9%, 1 285 000 ₽/мес

Окупаемость: 12 лет

Готовый арендный бизнес на 1 линии Вокзальной улицы в Очаково-Матвеевском районе. Жилой развивающийся район, обеспечен интенсивный...

185 000 000 ₽

564 000 ₽ за м²

Новинка
lot-15397
lot-15397
lot-15397
lot-15397
lot-15397
5
Помещение под сувениры, 161 м²

Аренда | Лот 42444

Москва Открытое шоссе, 24с36

Коммерческое торцевое помещение на первой линии Открытого шоссе в Метрогородке. Жилой район, близость остановки общественного транспорта...

500 000 ₽ / месяц

37 000 ₽ за м² / год

Новинка
lot-15170
lot-15170
lot-15170
3
Помещение под сувениры, 161 м²

Продажа | Лот 31730

Москва Мытищи, Стрельбище Динамо, 10

Коммерческое помещение в Мытищах. Объект находится у въезда в жилой комплекс «Мытищи Парк», близость прогулочного бульвара обеспечивает...

44 940 000 ₽

279 000 ₽ за м²

Новинка
lot-15487
lot-15487
lot-15487
lot-15487
lot-15487
lot-15487
lot-15487
7
Помещение под сувениры, 161 м²

Продажа | Лот 13337

Москва Одинцово, Берёзовая, 6с2

Площадь: 161 м²

Назначение: Торговое помещение под  магазин фаст-фуд пункт выдачи бижутерия сувениры

Арендаторы: Ригла

Доходность: 9%, 538 000 ₽/мес

Окупаемость: 12 лет

Готовый арендный бизнес на Берёзовой улице в Одинцово. Жилой развивающийся район, в проекте спланированы 2 школы и 8 детских садов....

77 500 000 ₽

481 000 ₽ за м²

Позвонить эксперту whatsapp telegram
Каширская
Академический
ЦАО
Академический