Арендный бизнес на Тушинской, 109 м², лот - 8299

Продажа | Лот 8299

Image 0
Image 1
Image 2
Image 3
Image 4
5
Image 0 Image 1 Image 2 Image 3 Image 4
99225000 RUB

99 225 000 ₽

910 000 ₽ за м²

Арендаторы: пекарня «Маковка»
МАП: 827 000 ₽
ГАП: 9 923 000 ₽
Окупаемость:
10 лет
Доходность:
10%
Метро:
Тушинская :
pedestrian  1 минута пешком
Район/округ: Покровское-Стрешнево / СЗАО
Адрес: Тушинская, 24с15
Площадь: 109 м²
Назначение: кофейня пекарня
Отделка: С отделкой
Парковка: рядом со зданием
Электрическая мощность (кВт): 50
Зона разгрузки: Есть
Тип входа: Отдельный со двора
Витрины есть

Готовый арендный бизнес в районе Покровское-Стрешнево. Близость к стадиону «Красный Октябрь» обеспечивает интенсивный пешеходный и автомобильный трафик. Окружение — кафе Istanbul kebab, пекарня «Хлебница», магазин одежды «Ивановский трикотаж». За минуту пешком можно дойти до станции метро «Тушинская», за 5 минут — до железнодорожной станции «Тушинская».

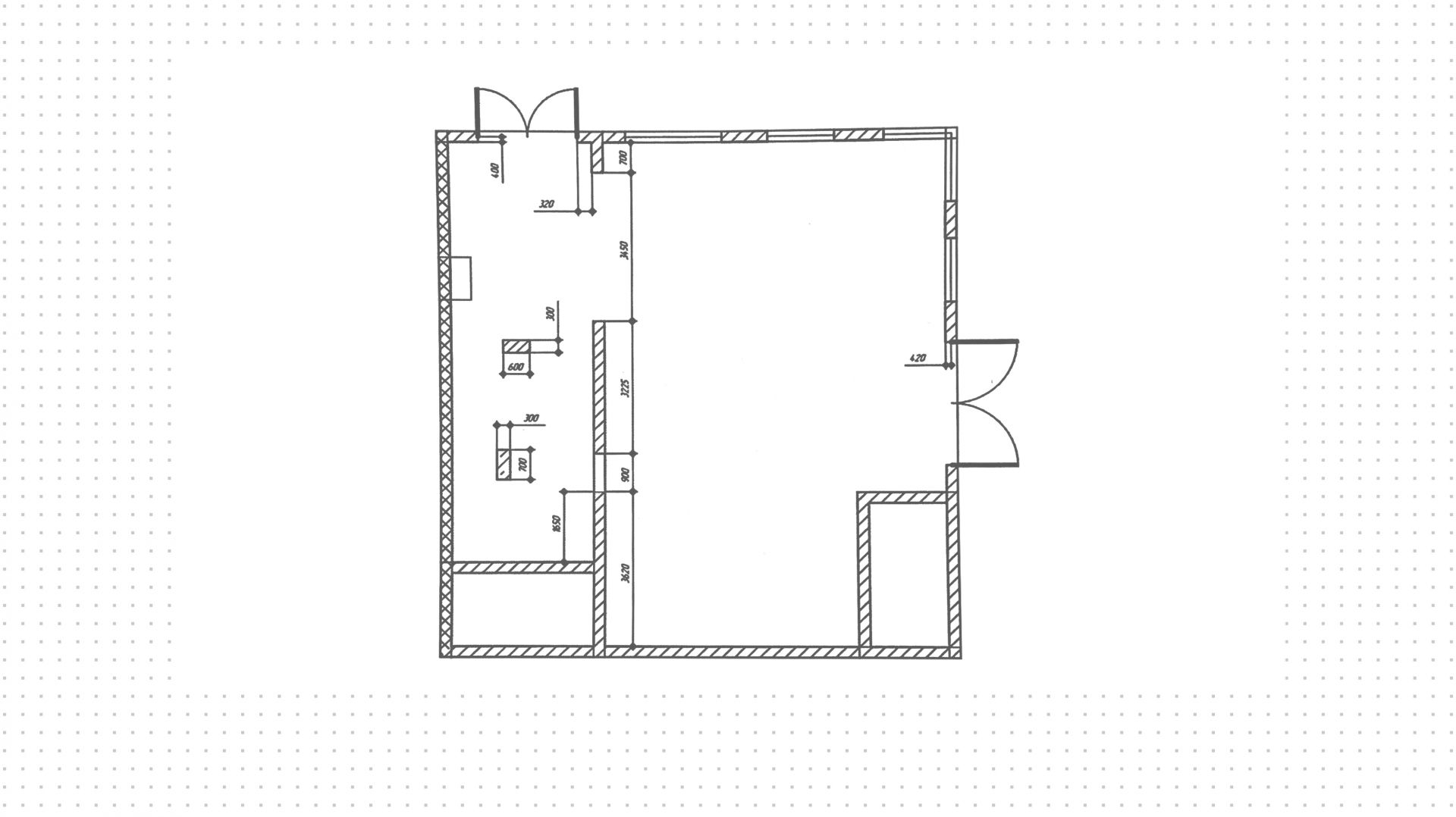
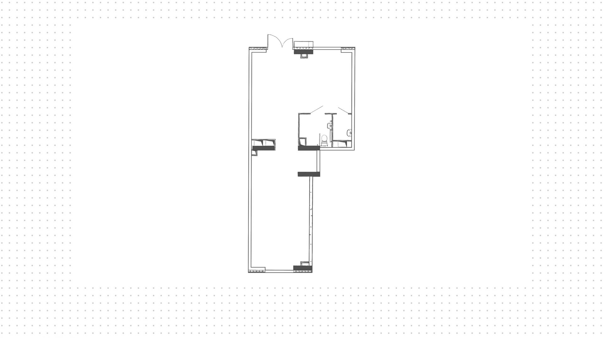
Объект с открытой планировкой площадью 109 м² расположен на 1 этаже в нежилом здании. Арендатор — пекарня «Маковка». Подведены центральные коммуникации, возможна установка вытяжных воздуховодов на уровень кровли. Отдельные входы с улицы и со двора, витринное остекление, спланирована зона разгрузки. Бесплатная парковка находится рядом со зданием.

99 225 000 ₽

910 000 ₽ за м²

Арендаторы: пекарня «Маковка»
МАП: 827 000 ₽
ГАП: 9 923 000 ₽
Окупаемость:
10 лет
Доходность:
10%
Метро:
Тушинская :
pedestrian  1 минута пешком
Район/округ: Покровское-Стрешнево / СЗАО
Адрес: Тушинская, 24с15
Площадь: 109 м²
Назначение: кофейня пекарня
Отделка: С отделкой
Парковка: рядом со зданием
Электрическая мощность (кВт): 50
Зона разгрузки: Есть
Тип входа: Отдельный со двора
Витрины есть
expert

Алина

Брокер лота

Для уточнения и фиксирования цены можно связаться напрямую с брокером

+7 (495) 106-19-99

Расположение на карте

Назначения
Похожие лоты

Мы включили в наш каталог лучшие предложения по коммерческой недвижимости в Москве.

Новинка
lot-13788
lot-13788
2
Помещение под пекарню, 163 м²

Продажа | Лот 17801

ЦСКА 5 мин

Москва Ходынский бульвар, 4/1

Площадь: 163 м²

Назначение: Торговое помещение под  офис рабочее место

Офис в комплексе AIR. Офис площадью 163 м² расположен на 5 этаже. Без отделки. Окна: панорамные с солнцезащитными свойствами, в каждом...

99 491 000 ₽

610 000 ₽ за м²

Новинка
lot-15751
lot-15751
lot-15751
lot-15751
lot-15751
5
Помещение под пекарню, 171 м²

Продажа | Лот 44910

Юго-Восточная 1 мин

Москва Ташкентская, 12/20

Площадь: 171 м²

Назначение: Торговое помещение под  магазин аптека алко-маркет бижутерия сувениры

Арендаторы: Винлаб

Доходность: 8%, 691 000 ₽/мес

Окупаемость: 12 лет

Готовый арендный бизнес на первой линии Ташкентской улицы в районе Выхино-Жулебино. Близость остановки общественного транспорта...

99 500 000 ₽

582 000 ₽ за м²

Новинка
lot-12364
lot-12364
lot-12364
lot-12364
lot-12364
5
Помещение под пекарню, 165 м²

Продажа | Лот 15607

Новопеределкино 3 мин

Москва Чоботовская, 2с1

Площадь: 165 м²

Назначение: Торговое помещение под  магазин бижутерия сувениры супермаркет

Арендаторы: Дикси Go

Доходность: 9%, 750 000 ₽/мес

Окупаемость: 11 лет

Готовый арендный бизнес в Ново-Переделкино. Объект находится на 1-й линии домов напротив остановки общественного транспорта. Окружение...

99 000 000 ₽

600 000 ₽ за м²

Новинка
lot-14901
lot-14901
lot-14901
lot-14901
lot-14901
lot-14901
lot-14901
lot-14901
8
Помещение под пекарню, 109 м²

Аренда | Лот 33696

Черкизовская 7 мин

Москва Амурская, 1/2/3

Коммерческое помещение в Гольяново. Жилой развивающийся район, обеспечен интенсивный автомобильный и пешеходный трафик. Окружение...

399 000 ₽ / месяц

44 000 ₽ за м² / год

Новинка
lot-14865
lot-14865
lot-14865
lot-14865
lot-14865
lot-14865
lot-14865
lot-14865
lot-14865
lot-14865
lot-14865
11
Помещение под пекарню, 109 м²

Аренда | Лот 12164

Москва проспект Генерала Дорохова, 39с1

Коммерческое угловое помещение на проспекте Генерала Дорохова в Фили-Давыдково. Развивающийся район, рядом строится жилой комплекс...

450 000 ₽ / месяц

50 000 ₽ за м² / год

Новинка
lot-15847
lot-15847
lot-15847
3
Помещение под пекарню, 109 м²

Продажа | Лот 45836

Измайлово 8 мин

Москва Зверинецкая, 44/33

Площадь: 109 м²

Назначение: Торговое помещение под  магазин алко-маркет бижутерия сувениры

Арендаторы: красное и белое

Доходность: 7%, 190 000 ₽/мес

Окупаемость: 14 лет

Готовый арендный бизнес в районе Соколиная гора. Объект располагается на 1 линии Зверинецкой улицы, обеспечен интенсивный автомобильный...

31 920 000 ₽

293 000 ₽ за м²

Позвонить эксперту whatsapp telegram
Каширская
Академический
ЦАО
Академический