Арендный бизнес на Сиреневом бульваре, 60 м², лот - 19455

Продажа | Лот 19455

Image 0
Image 1
Image 2
Image 3
Image 4
5
Image 0 Image 1 Image 2 Image 3 Image 4
32400000 RUB

32 400 000 ₽

540 000 ₽ за м²

Арендаторы: Горздрав
МАП: 225 000 ₽
ГАП: 2 700 000 ₽
Окупаемость:
12 лет
Доходность:
8%
Метро:
Щелковская :
pedestrian  10 минут пешком
Адрес: Сиреневый бульвар, 33
Площадь: 60 м²
Назначение: магазин аптека бижутерия сувениры
Высота потолков: 5.5 метров
Отделка: С отделкой
Парковка: бесплатная парковка перед зданием
Электрическая мощность (кВт): 20
Линия: Первая
Тип входа: Отдельный с улицы
Витрины есть

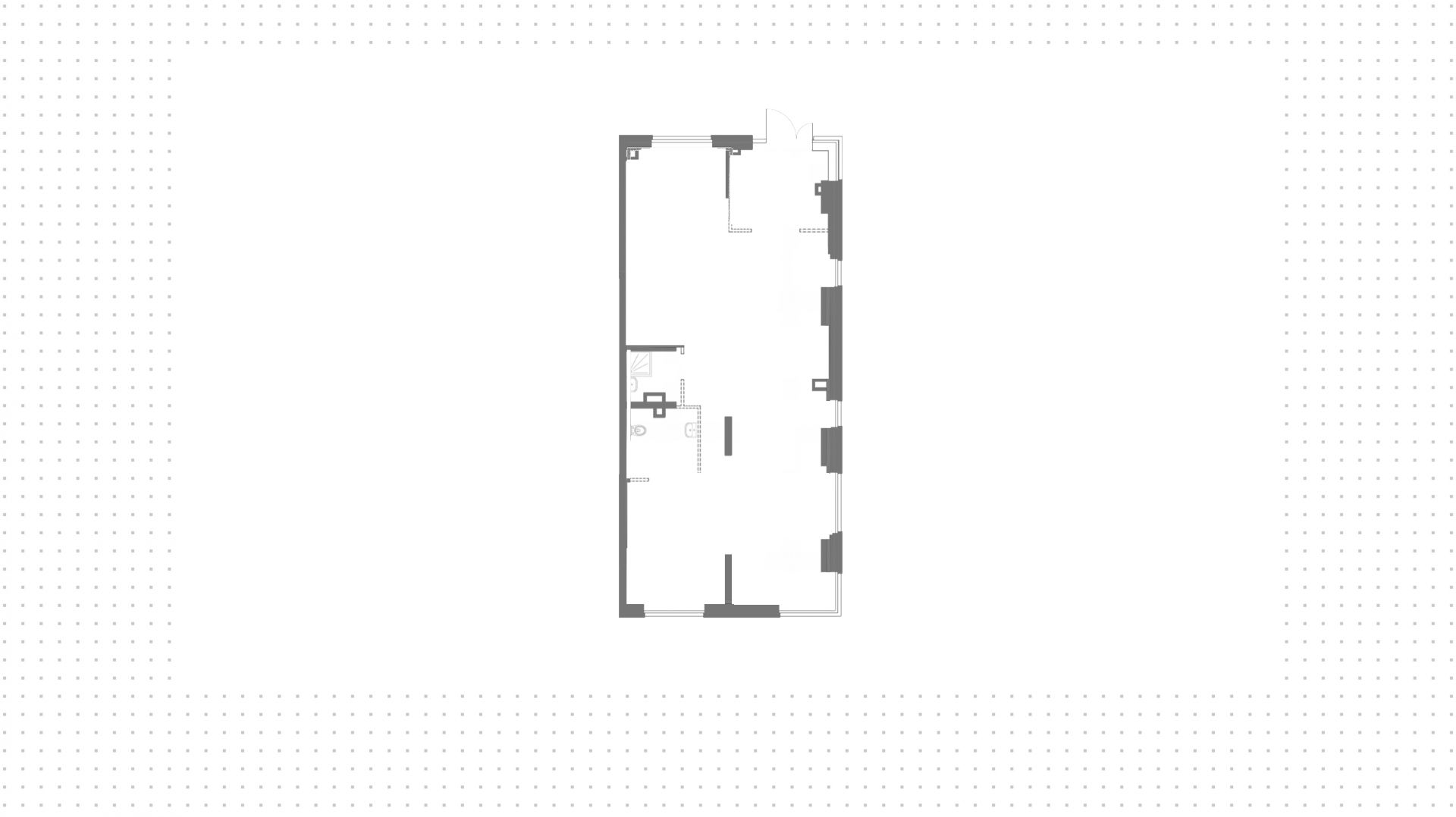
Готовый арендный бизнес на 1-й линии Сиреневого бульвара в Северном Измайлово. Близость школы и остановки общественного транспорта обеспечивает большой пешеходный и автомобильный трафик. Окружение — торговые центры «Место встречи „София“, „Первомайский“. За 10 минут можно пешком дойти до станции метро „Щёлковская“.

Объект с открытой планировкой площадью 60 м² расположен на 1-м этаже на углу жилого дома. Арендатор — аптека „Горздрав“. Электрическая мощность 15 кВт с возможностью увеличения. У помещения витринное остекление, оборудовано место для размещения рекламы на фасаде, организован отдельный вход с улицы. Перед зданием находится бесплатная парковка.

32 400 000 ₽

540 000 ₽ за м²

Арендаторы: Горздрав
МАП: 225 000 ₽
ГАП: 2 700 000 ₽
Окупаемость:
12 лет
Доходность:
8%
Метро:
Щелковская :
pedestrian  10 минут пешком
Адрес: Сиреневый бульвар, 33
Площадь: 60 м²
Назначение: магазин аптека бижутерия сувениры
Высота потолков: 5.5 метров
Отделка: С отделкой
Парковка: бесплатная парковка перед зданием
Электрическая мощность (кВт): 20
Линия: Первая
Тип входа: Отдельный с улицы
Витрины есть
expert

Наталья

Эксперт проекта

Для уточнения и фиксирования цены можно связаться напрямую с брокером

+7 (495) 106-19-99

Расположение на карте

Похожие лоты

Мы включили в наш каталог лучшие предложения по коммерческой недвижимости в Москве.

Новинка
lot-14099
lot-14099
lot-14099
lot-14099
4
Помещение под сувениры, 86 м²

Продажа | Лот 17854

Москва Коробово, Взлётная, 3с6.2

Площадь: 86 м²

Назначение: Торговое помещение под  магазин аптека пункт выдачи бижутерия сувениры

Арендаторы: Ригла и ОЗОН

Доходность: 10%, 270 000 ₽/мес

Окупаемость: 10 лет

Готовый арендный бизнес в деревне Коробово. Жилой развивающийся район, обеспечен интенсивный автомобильный и пешеходный трафик. Окружение...

32 400 000 ₽

377 000 ₽ за м²

Новинка
lot-12812
lot-12812
lot-12812
lot-12812
lot-12812
lot-12812
6
Помещение под сувениры, 86 м²

Продажа | Лот 16533

Измайлово 2 мин

Москва Окружной проезд, 16

Площадь: 86 м²

Назначение: Торговое помещение под  магазин пункт выдачи бижутерия сувениры

Арендаторы: wildberries

Доходность: 9%, 225 000 ₽/мес

Окупаемость: 12 лет

Готовый арендный бизнес в Окружном проезде в районе Соколиная Гора. Близость Измайловского парка и Измайловского Кремля обеспечивает...

32 404 000 ₽

377 000 ₽ за м²

Новинка
lot-11481
lot-11481
2
Помещение под сувениры, 92 м²

Продажа | Лот 13490

Волгоградский проспект 10 мин

Москва Скотопрогонная, 31А

Площадь: 92 м²

Назначение: Торговое помещение под  офис рабочее место

Офис в комплексе N'ice Tower. Офис площадью 87 м² расположен на 10 этаже из 27, без отделки. Окна: алюминиевые панорамные окна Alutech, цвет ral 7016,...

32 379 000 ₽

352 000 ₽ за м²

Новинка
lot-9590
lot-9590
2
Помещение под сувениры, 60 м²

Продажа | Лот 11227

Москва жилой комплекс Светлый Мир Станция Л, к26

18 000 000 ₽

300 000 ₽ за м²

Новинка
lot-12661
lot-12661
lot-12661
3
Помещение под сувениры, 60 м²

Продажа | Лот 16131

Москва посёлок Боброво, Новое шоссе, 24

Площадь: 60 м²

Назначение: Торговое помещение под  магазин аптека бижутерия сувениры

Арендаторы: аптека «Ригла»

Доходность: 9%, 205 000 ₽/мес

Окупаемость: 11 лет

Готовый арендный бизнес в посёлке Боброво. Объект находится в жилом комплексе «Восточное Бутово», в корпусе на 1 377 квартир. Близость...

27 000 000 ₽

450 000 ₽ за м²

Новинка
lot-14113
lot-14113
2
Помещение под сувениры, 60 м²

Продажа | Лот 12137

Воронцовская 2 мин Калужская 6 мин

Москва Старокалужское шоссе, 64/1

Площадь: 60 м²

Назначение: Торговое помещение под  офис рабочее место

Офис в комплексе Stone Калужская. Офис площадью 60 м² расположен на 7 этаже из 13, без отделки. Окна: панорамные, возможность естественного...

28 260 000 ₽

471 000 ₽ за м²

Позвонить эксперту whatsapp telegram
Каширская
Академический
ЦАО
Академический