Арендный бизнес на проспекте Андропова, 605 м², лот - 8696

Продажа | Лот 8696

Image 0
Image 1
Image 2
Image 3
Image 4
Image 5
Image 6
7
Image 0 Image 1 Image 2 Image 3 Image 4 Image 5 Image 6
150000000 RUB

150 000 000 ₽

248 000 ₽ за м²

Арендаторы: ресторан «Верба»
МАП: 1 586 000 ₽
ГАП: 19 026 000 ₽
Окупаемость:
8 лет
Доходность:
13%
Метро:
Коломенская :
pedestrian  5 минут пешком
Адрес: проспект Андропова, 37
Площадь: 605 м²
Назначение: ресторан магазин бижутерия сувениры
Высота потолков: 3 метра
Отделка: С отделкой
Парковка: перед фасадом здания
Электрическая мощность (кВт): 140
Зона разгрузки: Есть
Линия: Первая
Тип входа: Отдельный со двора
Витрины есть

Готовый арендный бизнес на первой линии улицы проспект Андропова в районе Нагатинский затон. Объект находится возле парка «Коломенское» и остановки общественного транспорта, обеспечен интенсивный поток пешеходного и автомобильного трафика. Окружение — рестораны «Капучинофф», «Пиццаменто», «Шивам». За 5 минут пешком можно дойти до станции метро «Коломенская».

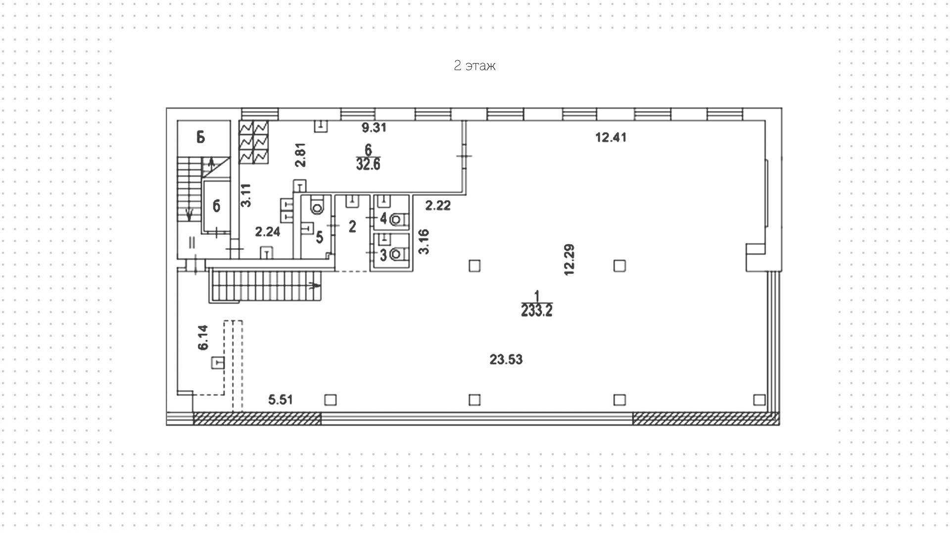
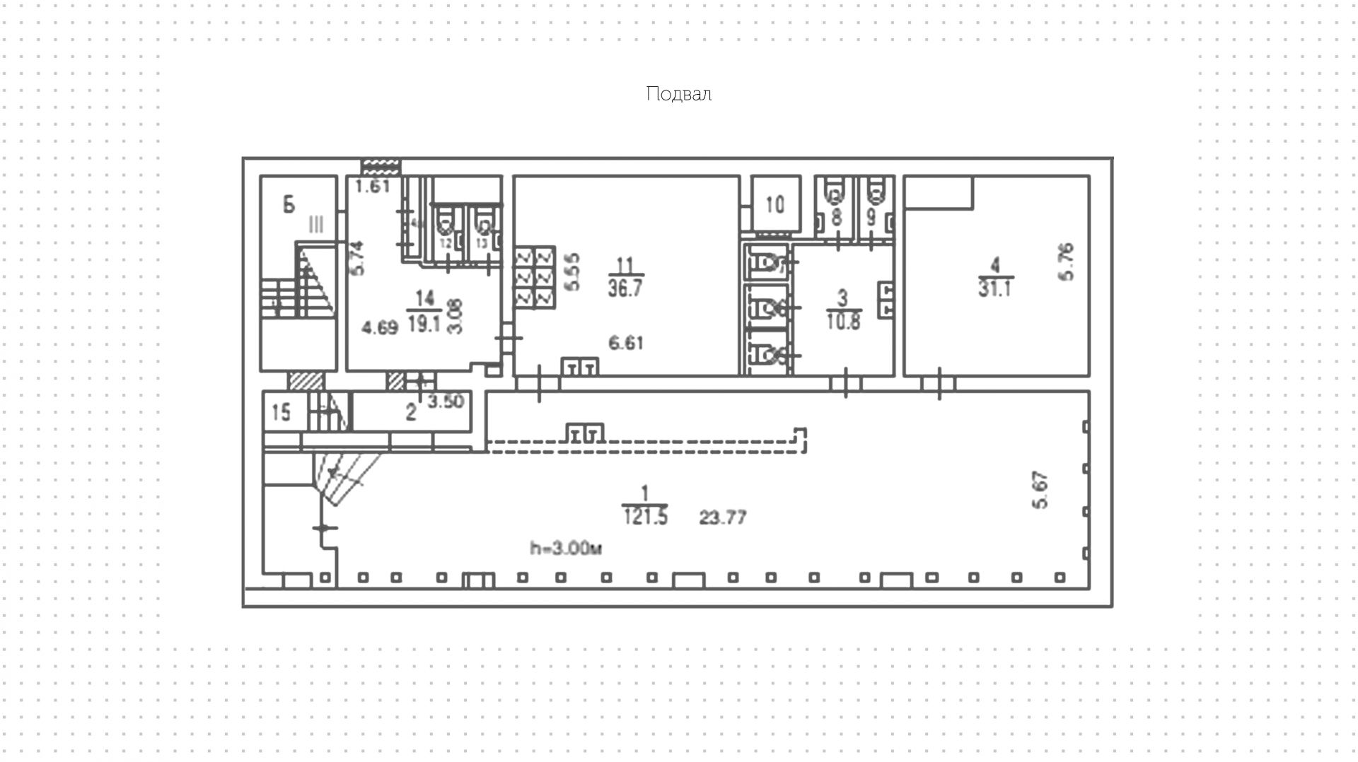
Помещение с комбинированной планировкой площадью 605 м² расположено на 1, 2 этажах и в подвале в нежилом здании. Арендаторы — ресторан «Пхеньян» и антенна «МТС». Проведены все коммуникации, установлены вытяжка, приточно-вытяжная вентиляция, пожарная сигнализация. Отдельные входы с улицы и со двора, витринное остекление, предусмотрена зона разгрузки. Перед зданием находится парковка.

150 000 000 ₽

248 000 ₽ за м²

Арендаторы: ресторан «Верба»
МАП: 1 586 000 ₽
ГАП: 19 026 000 ₽
Окупаемость:
8 лет
Доходность:
13%
Метро:
Коломенская :
pedestrian  5 минут пешком
Адрес: проспект Андропова, 37
Площадь: 605 м²
Назначение: ресторан магазин бижутерия сувениры
Высота потолков: 3 метра
Отделка: С отделкой
Парковка: перед фасадом здания
Электрическая мощность (кВт): 140
Зона разгрузки: Есть
Линия: Первая
Тип входа: Отдельный со двора
Витрины есть
expert

Евгений

Эксперт проекта

Для уточнения и фиксирования цены можно связаться напрямую с брокером

+7 (495) 106-19-99

Расположение на карте

Похожие лоты

Мы включили в наш каталог лучшие предложения по коммерческой недвижимости в Москве.

Новинка
lot-7873
lot-7873
lot-7873
lot-7873
lot-7873
lot-7873
6
Помещение под сувениры, 162 м²

Продажа | Лот 9397

Фили 5 мин

Москва Большая Филёвская, 3с4

Коммерческое помещение на 1-й линии дома в районе Филёвский парк. Большой поток пешеходного и автомобильного трафика, рядом жилые...

150 000 000 ₽

926 000 ₽ за м²

Новинка
lot-14377
lot-14377
lot-14377
3
Помещение под сувениры, 148 м²

Продажа | Лот 19301

Потапово 1 мин

Москва проспект Куприна, 3с4

Коммерческое помещение на 1-й линии проспекта Куприна в Коммунарке. Жилой развивающийся район, обеспечен интенсивный автомобильный...

150 000 000 ₽

1 014 000 ₽ за м²

Новинка
lot-6050
lot-6050
lot-6050
3
Помещение под сувениры, 97 м²

Продажа | Лот 8201

Кутузовская 8 мин

Москва Кутузовский проспект, 36А

Площадь: 97 м²

Назначение: Торговое помещение под  магазин бижутерия сувениры аптека

Арендаторы: химчистка Bianca

Доходность: 7%, 781 000 ₽/мес

Окупаемость: 16 лет

Готовый арендный бизнес на 1-й линии Кутузовского проспекта в районе Дорогомилово. Большой поток пешеходного и автомобильного трафика,...

150 000 000 ₽

1 546 000 ₽ за м²

Новинка
lot-11315
lot-11315
lot-11315
lot-11315
lot-11315
lot-11315
lot-11315
lot-11315
lot-11315
lot-11315
lot-11315
lot-11315
lot-11315
13
Помещение под сувениры, 607 м²

Продажа | Лот 13387

Тропарево 10 мин

Москва Ленинский проспект, 123Г

Здание на 1-й линии улицы Островитянова в районе Тёплый Стан. Интенсивный поток пешеходного и автомобильного трафика. Окружение —...

144 500 000 ₽

238 000 ₽ за м²

Новинка
lot-16201
lot-16201
lot-16201
3
Помещение под сувениры, 607 м²

Продажа | Лот 48398

Москва Щёлково, Центральная, 16с2

Площадь: 607 м²

Назначение: Торговое помещение под  магазин супермаркет бижутерия сувениры

Арендаторы: Дикси

Доходность: 9%, 1 181 000 ₽/мес

Окупаемость: 12 лет

Готовый арендный бизнес на 1 линии Центральной улицы в Щёлково. Обеспечен интенсивный автомобильный и пешеходный трафик. Окружение...

170 000 000 ₽

280 000 ₽ за м²

Новинка
lot-15558
lot-15558
lot-15558
lot-15558
4
Помещение под сувениры, 604 м²

Продажа | Лот 43465

Парк Победы 9 мин Поклонная 9 мин

Москва Братьев Фонченко, 1

Коммерческое помещение на первой линии домов в Дорогомилово. Ритейл находится в жилом комплексе премиум-класса Victory Park Residences, возле...

483 360 000 ₽

800 000 ₽ за м²

Позвонить эксперту max whatsapp telegram
Каширская
Академический
ЦАО
Академический