Здание на Дыбенко, 850 м², лот - 7475

Продажа | Лот 7475

Image 0
Image 1
Image 2
Image 3
Image 4
Image 5
Image 6
7
Image 0 Image 1 Image 2 Image 3 Image 4 Image 5 Image 6
260000000 RUB

260 000 000 ₽

306 000 ₽ за м²

Метро:
Ховрино :
pedestrian  7 минут пешком
Район/округ: Ховрино / САО
Адрес: Дыбенко, 28с2
Площадь: 850 м²
Назначение: магазин супермаркет аптека бижутерия сувениры
Высота потолков: 4 метра
Отделка: С отделкой
Парковка: перед фасадом
Электрическая мощность (кВт): 120
Зона разгрузки: Есть
Линия: Первая
Тип входа: Отдельный со двора
Витрины есть

Готовый арендный бизнес на улице Дыбенко в районе Ховрино. Жилой район, большой поток пешеходного и автомобильного трафика, рядом остановка общественного транспорта. Окружение — стоматологии «Арт-смайл центр», «Тари-Стом», медицинский центр «Парацельс», массажный салон Alma. За 7 минут можно пешком дойти до станции метро «Ховрино».

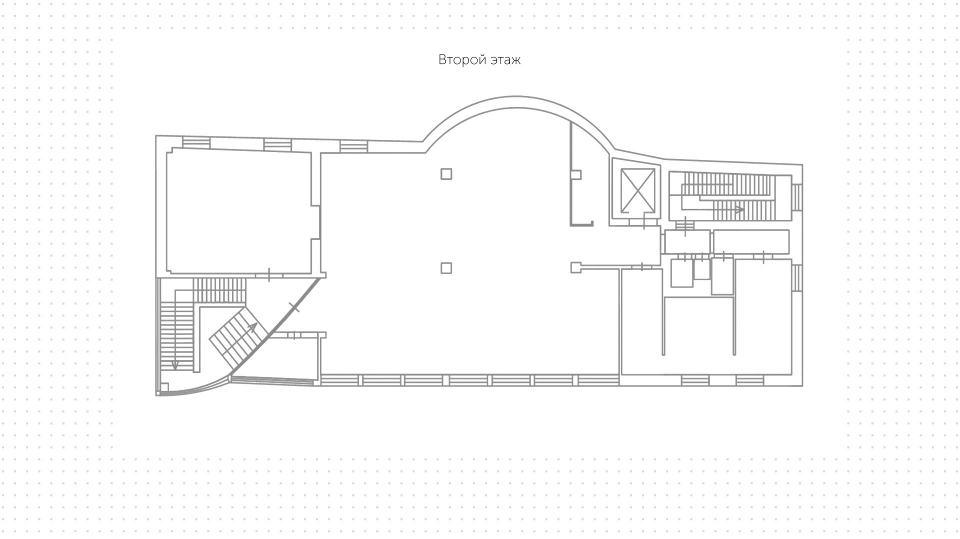
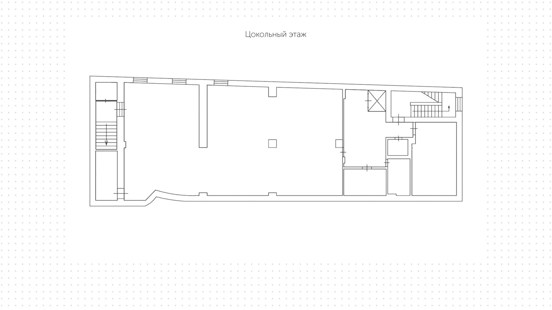
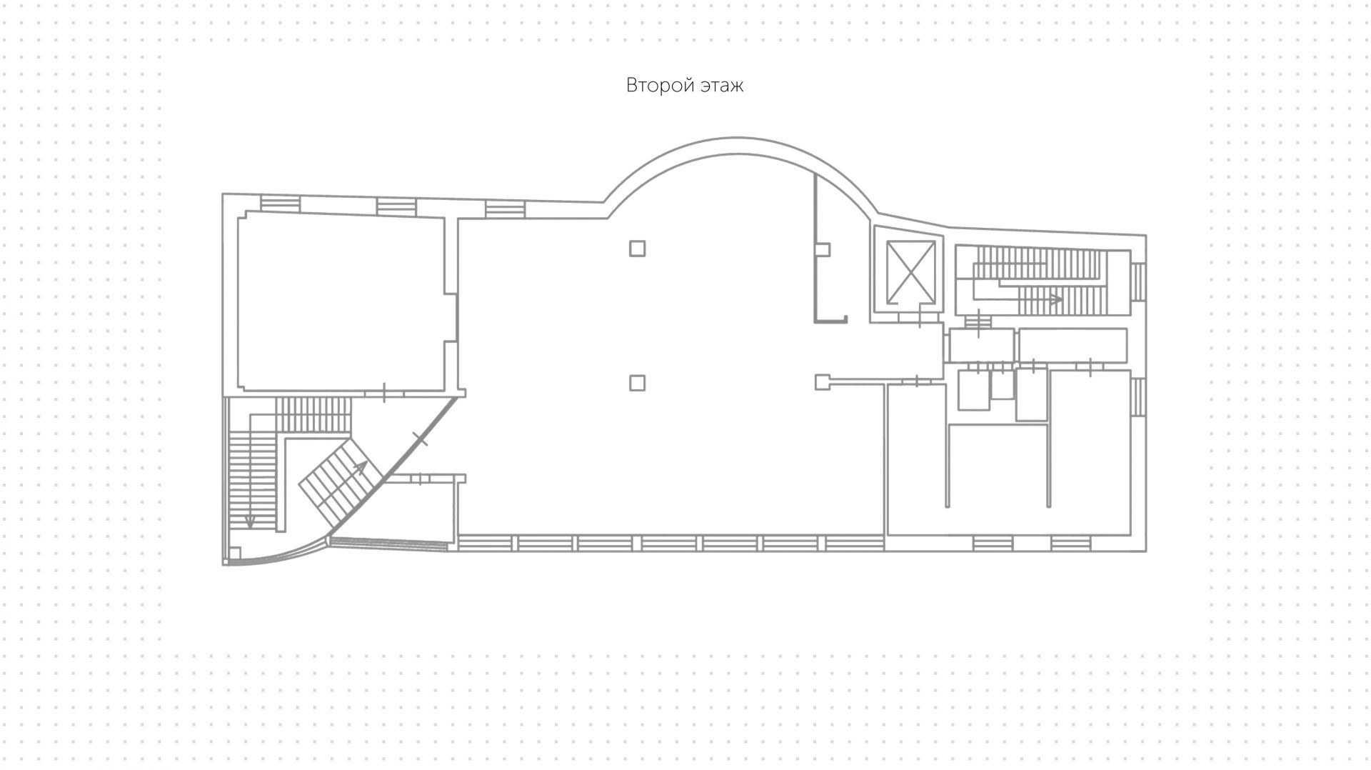
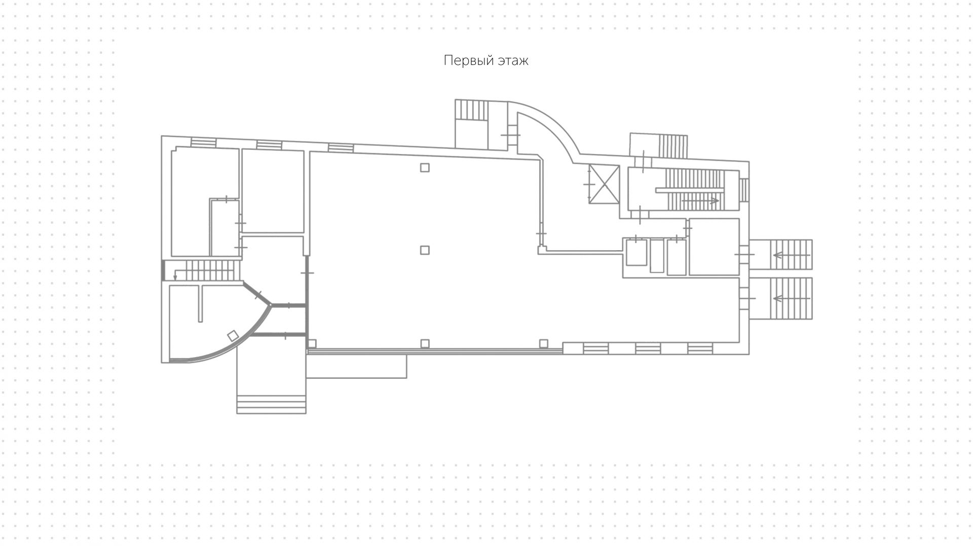
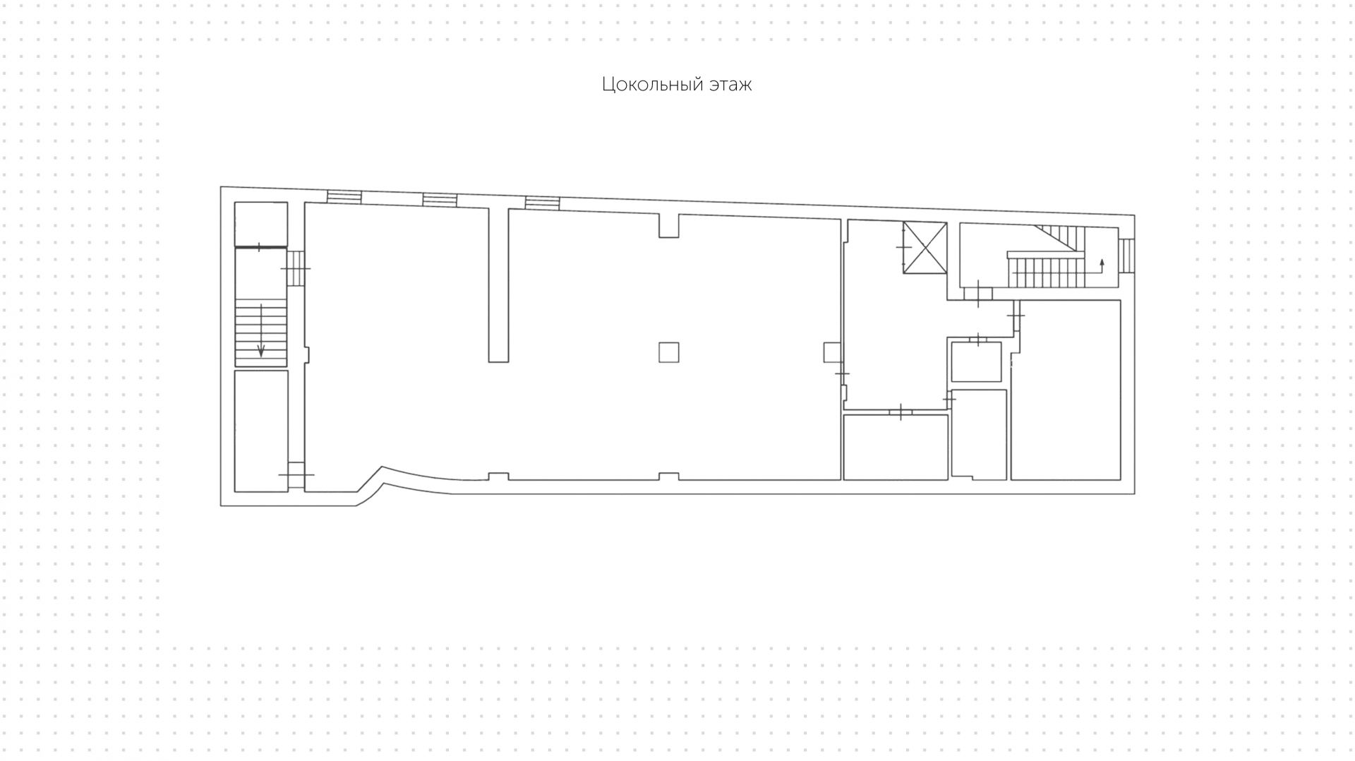
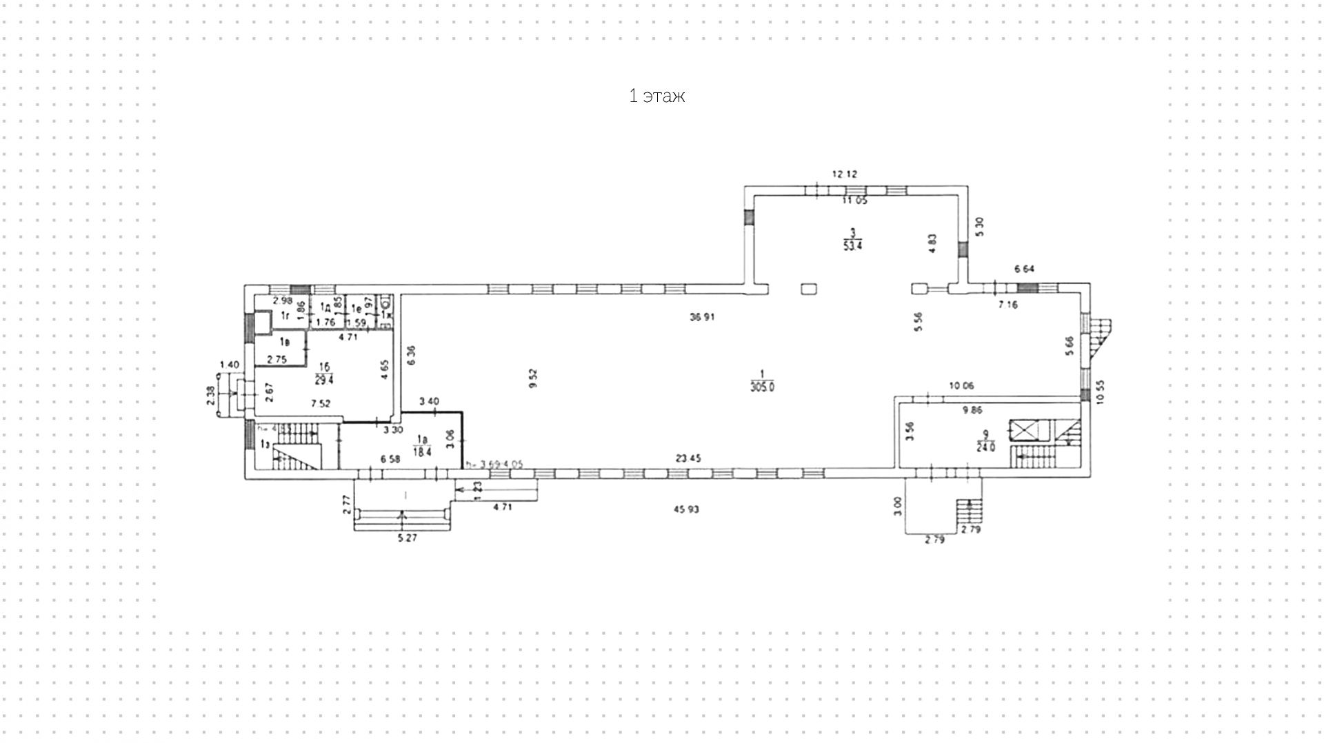
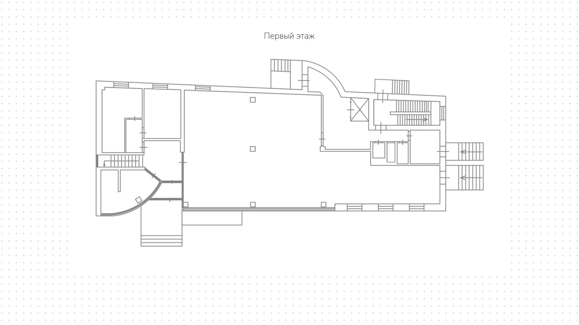
Одноэтажное здание с подвалом с открытой планировкой площадью 850 м², 1-й этаж — 459 м², подвал — 374 м². Высота потолков на 1-м этаже 4 метра, в подвале — 2,6 метров. Арендаторы — супермаркет «Магнит», магазин «Магнит Косметик», аптека «Планета здоровья». Отдельные входы с улицы и со двора, зона разгрузки. Предусмотрены место для размещения рекламы на фасаде, парковка перед зданием.

260 000 000 ₽

306 000 ₽ за м²

Метро:
Ховрино :
pedestrian  7 минут пешком
Район/округ: Ховрино / САО
Адрес: Дыбенко, 28с2
Площадь: 850 м²
Назначение: магазин супермаркет аптека бижутерия сувениры
Высота потолков: 4 метра
Отделка: С отделкой
Парковка: перед фасадом
Электрическая мощность (кВт): 120
Зона разгрузки: Есть
Линия: Первая
Тип входа: Отдельный со двора
Витрины есть
expert

Алина

Брокер лота

Для уточнения и фиксирования цены можно связаться напрямую с брокером

+7 (495) 106-19-99

Расположение на карте

Похожие лоты

Мы включили в наш каталог лучшие предложения по коммерческой недвижимости в Москве.

Новинка
lot-12025
lot-12025
lot-12025
lot-12025
lot-12025
lot-12025
lot-12025
lot-12025
8
Помещение под сувениры, 358 м²

Продажа | Лот 15075

Китай-город 4 мин

Москва Маросейка, 15

Площадь: 358 м²

Назначение: Торговое помещение под  ресторан магазин кофейня шоурум продуктовый магазин бижутерия продукты сувениры

Арендаторы: караоке, кулирная школа, бижутерия, правда кофе, у палыча

Доходность: 8%, 1 667 000 ₽/мес

Окупаемость: 13 лет

Готовый арендный бизнес на 1-й линии улицы Маросейка в Басманном районе. Большое количество кафе и ресторанов обеспечивает интенсивный...

260 000 000 ₽

726 000 ₽ за м²

lot-1859
lot-1859
lot-1859
lot-1859
lot-1859
lot-1859
6
Готовый арендный бизнес в 6 минутах от метро «Сухаревская»

Продажа | Лот 3556

Сретенский бульвар 5 мин Сухаревская 6 мин

Москва Сретенка, 9

Площадь: 240 м²

Этаж: 1 этаж

Назначение: Торговое помещение под  магазин продуктовый магазин бижутерия продукты сувениры

Арендаторы: магазин «Мясновъ и Отдохни»

Доходность: 8%, 1 548 000 ₽/мес

Окупаемость: 14 лет

Готовый арендный бизнес на 1-й линии улицы Сретенка в Мещанском районе. Большой поток пешеходного и автомобильного трафика. Окружение...

260 000 000 ₽

1 083 000 ₽ за м²

Новинка
lot-16213
lot-16213
2
Помещение под сувениры, 545 м²

Продажа | Лот 48468

Митино 7 мин

Москва Дубравная, 51с1

Площадь: 545 м²

Назначение: Торговое помещение под  ресторан магазин бижутерия сувениры

Арендаторы: сыроварня

Доходность: 7%, 1 444 000 ₽/мес

Окупаемость: 15 лет

Готовый арендный бизнес в Митино. Обеспечен интенсивный автомобильный и пешеходный трафик. Окружение — шинный центр «Колесо.ру»,...

260 000 000 ₽

477 000 ₽ за м²

Новинка
lot-15146
lot-15146
lot-15146
lot-15146
lot-15146
5
Помещение под сувениры, 851 м²

Продажа | Лот 40375

Москва Молоково, Ленина, 77

Площадь: 851 м²

Назначение: Торговое помещение под  магазин бар кафе пункт выдачи алко-маркет бижутерия сувениры

Арендаторы: Магазин "Винлаб", Яндекс Маркет, Wildberries, ОЗОН, магазин "Рыболов", кафе-бар и пр.

Доходность: 6%, 599 000 ₽/мес

Окупаемость: 16 лет

Нежилое здание на первой линии Володарского шоссе в посёлке Молоково. Обеспечен интенсивный автомобильный и пешеходный трафик. Окружение...

115 000 000 ₽

135 000 ₽ за м²

Новинка
lot-13766
lot-13766
2
Помещение под сувениры, 854 м²

Продажа | Лот 14526

Терехово 7 мин

Москва Нижние Мнёвники, 39/41

Площадь: 854 м²

Назначение: Торговое помещение под  офис рабочее место

Офис в комплексе STONE Мневники. Офис площадью 829 м² расположен на 3 этаже из 12, без отделки. Окна: панорамные. Вид из окон: улица нижние...

392 748 000 ₽

460 000 ₽ за м²

Новинка
lot-5375
lot-5375
2
Помещение без отделки для размещения офиса у метро Савёловская

Продажа | Лот 3813

Савеловская 10 мин

Москва Двинцев, 3

Площадь: 849 м²

Назначение: Торговое помещение под  офис рабочее место

454 796 000 ₽

536 000 ₽ за м²

Позвонить эксперту max whatsapp telegram
Каширская
Академический
ЦАО
Академический