Арендный бизнес на Большой Полянке, 70 м², лот - 3798

Продажа | Лот 3798

Image 0
Image 1
Image 2
Image 3
Image 4
Image 5
Image 6
7
Image 0 Image 1 Image 2 Image 3 Image 4 Image 5 Image 6
80000000 RUB

80 000 000 ₽

1 143 000 ₽ за м²

Арендаторы: алкомаркет «Красное&Белое»
МАП: 360 000 ₽
ГАП: 4 320 000 ₽
Окупаемость:
19 лет
Доходность:
5%
Метро:
Полянка :
pedestrian  5 минут пешком
Третьяковская :
pedestrian  8 минут пешком
Район/округ: Якиманка / ЦАО
Адрес: Большая Полянка, 9
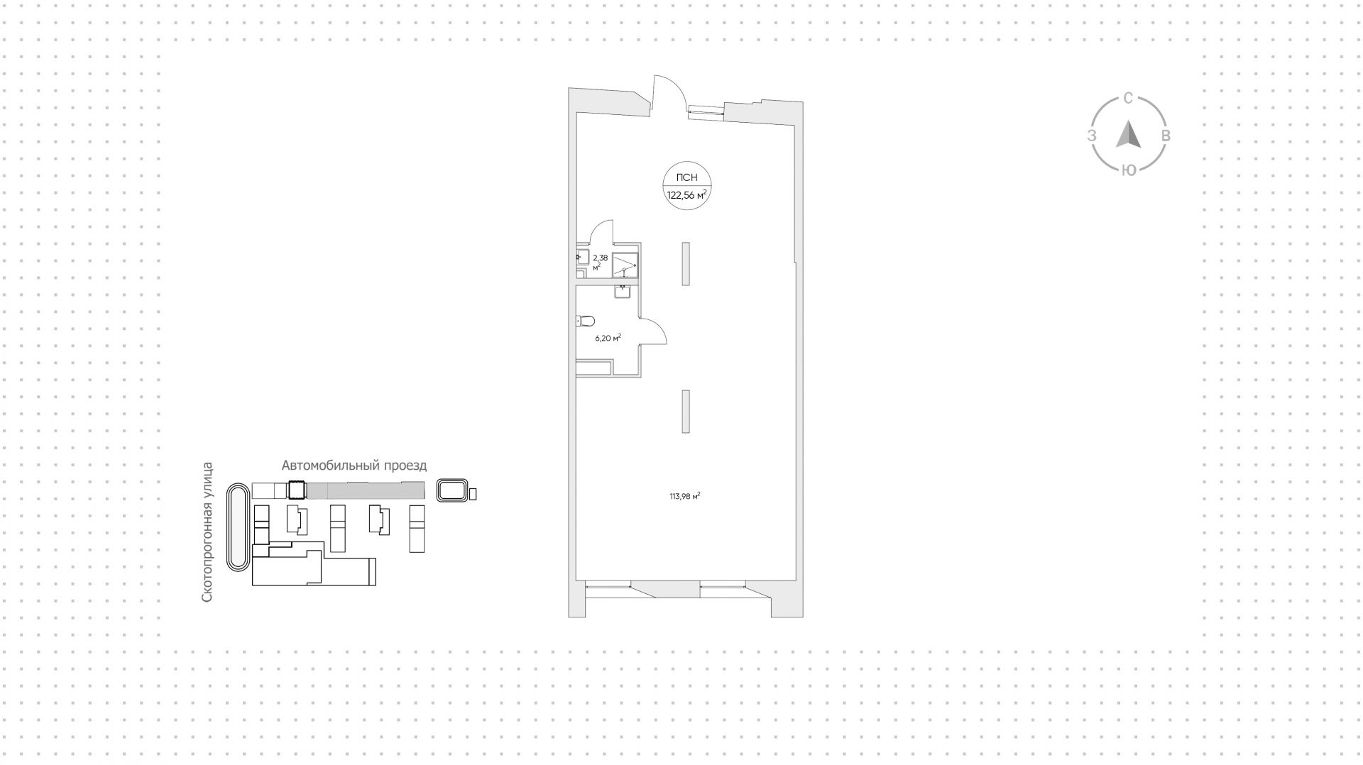
Площадь: 70 м²
Этаж: 1 этаж
Назначение: магазин алко-маркет бижутерия сувениры
Высота потолков: 5 метров
Отделка: С отделкой
Парковка: перед фасадом
Электрическая мощность (кВт): 40
Линия: Первая
Тип входа: Отдельный с улицы
Витрины есть

Готовый арендный бизнес на 1-й линии улицы Большая Полянка в Якиманке. Большой поток пешеходного и автомобильного трафика, окружение — магазин «Магнолия», кофейня «Кофемания», аптека «Ригла». За 5 минут пешком можно дойти до станции метро «Полянка».

Помещение с открытой планировкой площадью 70 м² расположено на 1-м этаже 6-этажного жилого комплекса Cloud Nine. Арендатор — алкомаркет «Красное&Белое». Два отдельных входа с улицы, витринное остекление. Парковка находится перед фасадом помещения.

80 000 000 ₽

1 143 000 ₽ за м²

Арендаторы: алкомаркет «Красное&Белое»
МАП: 360 000 ₽
ГАП: 4 320 000 ₽
Окупаемость:
19 лет
Доходность:
5%
Метро:
Полянка :
pedestrian  5 минут пешком
Третьяковская :
pedestrian  8 минут пешком
Район/округ: Якиманка / ЦАО
Адрес: Большая Полянка, 9
Площадь: 70 м²
Этаж: 1 этаж
Назначение: магазин алко-маркет бижутерия сувениры
Высота потолков: 5 метров
Отделка: С отделкой
Парковка: перед фасадом
Электрическая мощность (кВт): 40
Линия: Первая
Тип входа: Отдельный с улицы
Витрины есть
expert

Алина

Брокер лота

Для уточнения и фиксирования цены можно связаться напрямую с брокером

+7 (495) 106-19-99

Расположение на карте

Назначения
Похожие лоты

Мы включили в наш каталог лучшие предложения по коммерческой недвижимости в Москве.

Новинка
lot-14168
lot-14168
lot-14168
lot-14168
4
Помещение под сувениры, 295 м²

Продажа | Лот 4893

Тимирязевская 9 мин

Москва Тимирязевская, 16

Площадь: 295 м²

Назначение: Торговое помещение под  магазин салон красоты цветы бижутерия парикмахерская сувениры микрокредит алко-маркет

Арендаторы: салон красоты, ателье, химчистка, магазин с цветами, магазин табака, магазин с овощами, магазин с мясом и рыбой, хозяйственный магазин, хлебный магазин, кофе с собой, сервис по ремонту смартфонов, постаматы

Доходность: 11%, 667 000 ₽/мес

Окупаемость: 10 лет

Готовый арендный бизнес на 1-й линии Тимирязевской улицы в Тимирязевском районе. Жилой район, большой поток пешеходного и автомобильного...

80 000 000 ₽

271 000 ₽ за м²

Новинка
lot-13842
lot-13842
lot-13842
lot-13842
4
Помещение под сувениры, 205 м²

Продажа | Лот 18042

Москва Уточкина, 2с1

Коммерческое помещение на 1-й линии улицы Уточкина в Щербинке. Жилой развивающийся район, строится комплекс «Подольские Кварталы»,...

80 000 000 ₽

390 000 ₽ за м²

Новинка
lot-14767
lot-14767
lot-14767
3
Помещение под сувениры, 243 м²

Продажа | Лот 4083

Москва Воскресенское, Чечёрский проезд, 128

Площадь: 243 м²

Назначение: Торговое помещение под  магазин супермаркет бижутерия сувениры

Доходность: 8%, 513 000 ₽/мес

Окупаемость: 13 лет

Готовый арендны бизнес на 1-й линии Чечёрского проезда в поселении Воскресенское. Благодаря близости к торговому центру «Бутово Молл»...

80 000 000 ₽

329 000 ₽ за м²

Новинка
lot-14831
lot-14831
lot-14831
lot-14831
lot-14831
5
Помещение под сувениры, 70 м²

Аренда | Лот 32163

Москва Павла Андреева, 28с7

Коммерческое помещение на 1-й линии улицы Павла Андреева в Замоскворечье. Большой поток пешеходного и автомобильного трафика, рядом...

350 000 ₽ / месяц

60 000 ₽ за м² / год

Новинка
lot-15187
lot-15187
lot-15187
3
Помещение под сувениры, 70 м²

Продажа | Лот 40895

Стахановская 4 мин

Москва Рязанский проспект, 10с2

Площадь: 70 м²

Назначение: Торговое помещение под  магазин пункт выдачи бижутерия сувениры

Арендаторы: wildberries

Доходность: 11%, 227 000 ₽/мес

Окупаемость: 9 лет

Готовый арендный бизнес на первой линии Рязанского проспекта в Рязанском районе. Обеспечен интенсивный автомобильный и пешеходный...

24 500 000 ₽

350 000 ₽ за м²

Новинка
lot-13944
lot-13944
lot-13944
lot-13944
4
Помещение под сувениры, 70 м²

Продажа | Лот 18261

Москва Домодедово, Высотная, с13

Коммерческое помещение в Домодедово. Жилой развивающийся район, обеспечен интенсивный автомобильный и пешеходный трафик. Окружение...

27 000 000 ₽

386 000 ₽ за м²

Позвонить эксперту whatsapp telegram
Каширская
Академический
ЦАО
Академический