Арендный бизнес в Зеленограде, 293 м², лот - 13980

Продажа | Лот 13980

Image 0
Image 1
Image 2
Image 3
4
Image 0 Image 1 Image 2 Image 3
80000000 RUB

80 000 000 ₽

273 000 ₽ за м²

Арендаторы: ароматный мир здесь аптека рыбный магазин цветы
МАП: 641 000 ₽
ГАП: 7 695 000 ₽
Окупаемость:
11 лет
Доходность:
10%
Адрес: Зеленоград, с360
Площадь: 293 м²
Назначение: магазин супермаркет аптека алко-маркет цветы продуктовый магазин бижутерия продукты сувениры микрокредит
Высота потолков: 3.7 метра
Отделка: С отделкой
Парковка: перед фасадом
Линия: Первая
Тип входа: Отдельный с улицы
Витрины есть

Готовый арендный бизнес на 1-й линии Савелкинского проезда в Зеленограде. Жилой район, большой поток пешеходного и автомобильного трафика, рядом остановка общественного транспорта. Окружение — супермаркет «Пятёрочка» и «В1-Первый выбор», «Инвестторгбанк», алкомаркет «Винлаб», кофейня Pine.

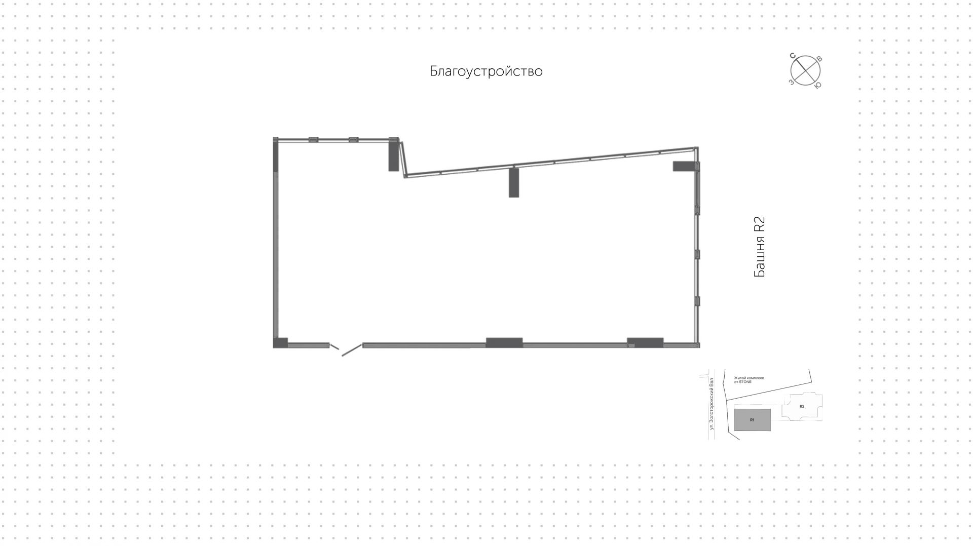
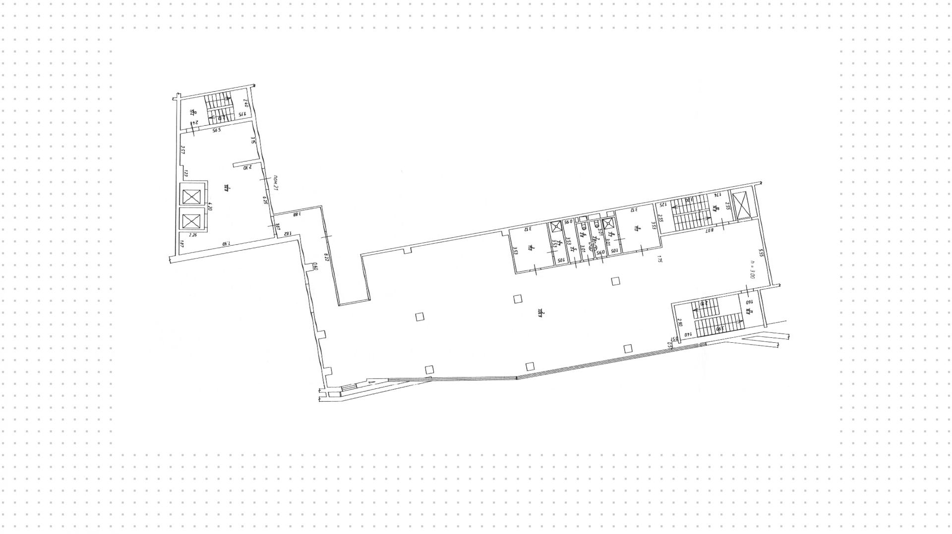
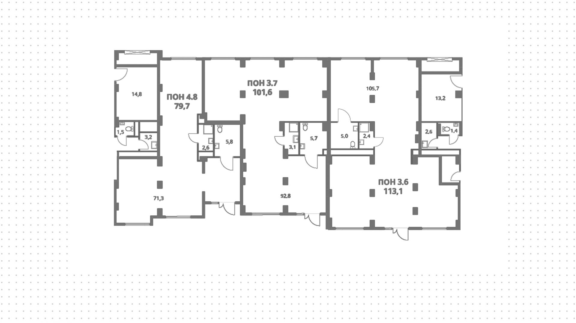
Объект с открытой планировкой площадью 293 м² расположен на 1-м этаже 9-тиэтажного жилого дома. Арендаторы — алкомаркет «Ароматный мир», «Здесь Аптека», магазин цветов и рыбный магазин. Помещение состоит из 4-х блоков с отдельными входами и витринным остеклением. Предусмотрено место для размещения рекламы на фасаде. Парковка находится перед зданием.

80 000 000 ₽

273 000 ₽ за м²

Арендаторы: ароматный мир здесь аптека рыбный магазин цветы
МАП: 641 000 ₽
ГАП: 7 695 000 ₽
Окупаемость:
11 лет
Доходность:
10%
Адрес: Зеленоград, с360
Площадь: 293 м²
Назначение: магазин супермаркет аптека алко-маркет цветы продуктовый магазин бижутерия продукты сувениры микрокредит
Высота потолков: 3.7 метра
Отделка: С отделкой
Парковка: перед фасадом
Линия: Первая
Тип входа: Отдельный с улицы
Витрины есть
expert

Евгений

Эксперт проекта

Для уточнения и фиксирования цены можно связаться напрямую с брокером

+7 (495) 106-19-99

Расположение на карте

Похожие лоты

Мы включили в наш каталог лучшие предложения по коммерческой недвижимости в Москве.

Новинка
lot-14144
lot-14144
lot-14144
3
Помещение под микрокредит, 123 м²

Продажа | Лот 18575

Калитники 8 мин

Москва Автомобильный проезд, 4

Коммерческое помещение на 1-й линии Автомобильного проезда в Нижегородском районе. Близость остановки общественного транспорта обеспечивает...

80 000 000 ₽

650 000 ₽ за м²

Новинка
lot-15194
lot-15194
2
Помещение под микрокредит, 95 м²

Продажа | Лот 40986

Маяковская 7 мин Пушкинская 6 мин

Москва Дегтярный переулок, 15с1

Площадь: 95 м²

Назначение: Торговое помещение под  клиника лаборатория

Арендаторы: клиника по сдаче анализов

Доходность: 6%, 392 000 ₽/мес

Окупаемость: 17 лет

Готовый арендный бизнес на первой линии Дегтярного переулка в Тверском районе. Интенсивный пешеходный и автомобильный трафик. Окружение...

80 000 000 ₽

842 000 ₽ за м²

lot-2512
lot-2512
lot-2512
lot-2512
lot-2512
lot-2512
lot-2512
7
Коммерческое помещение с арендатором «Красное&Белое»

Продажа | Лот 3798

Полянка 5 мин Третьяковская 8 мин

Москва Большая Полянка, 9

Площадь: 70 м²

Этаж: 1 этаж

Назначение: Торговое помещение под  магазин алко-маркет бижутерия сувениры

Арендаторы: алкомаркет «Красное&Белое»

Доходность: 5%, 351 000 ₽/мес

Окупаемость: 19 лет

Готовый арендный бизнес на 1-й линии улицы Большая Полянка в Якиманке. Большой поток пешеходного и автомобильного трафика, окружение...

80 000 000 ₽

1 143 000 ₽ за м²

Новинка
lot-14345
lot-14345
2
Помещение под микрокредит, 293 м²

Продажа | Лот 19278

Площадь Ильича 9 мин Римская 9 мин

Москва Золоторожский Вал, 11/1

Площадь: 293 м²

Назначение: Торговое помещение под  офис рабочее место

81 725 000 ₽

279 000 ₽ за м²

Новинка
lot-13837
lot-13837
lot-13837
3
Помещение под микрокредит, 294 м²

Продажа | Лот 18034

Москва посёлок Ленинский, комплекс «1-й Южный», с1.3

Площадь: 294 м²

Назначение: Торговое помещение под  магазин супермаркет бижутерия сувениры

Арендаторы: магнит

Доходность: 11%, 898 000 ₽/мес

Окупаемость: 9 лет

Готовый арендный бизнес в посёлке Ленинский. Жилой развивающийся район, обеспечен интенсивный автомобильный и пешеходный трафик....

97 000 000 ₽

330 000 ₽ за м²

Новинка
lot-6059
lot-6059
2
Помещение под офис с террасой в Пресненском районе

Продажа | Лот 8211

Деловой центр 7 мин Шелепиха 5 мин

Москва Шмитовский проезд, 37

Площадь: 292 м²

Назначение: Торговое помещение под  офис рабочее место

229 377 000 ₽

786 000 ₽ за м²

Позвонить эксперту whatsapp telegram
Каширская
Академический
ЦАО
Академический