Арендный бизнес в Шипиловском проезде, 36 м², лот - 11635

Продажа | Лот 11635

Image 0
Image 1
Image 2
Image 3
Image 4
Image 5
6
Image 0 Image 1 Image 2 Image 3 Image 4 Image 5
55440000 RUB

55 440 000 ₽

1 540 000 ₽ за м²

МАП: 443 000 ₽
ГАП: 5 318 000 ₽
Окупаемость:
11 лет
Доходность:
10%
Метро:
Орехово :
pedestrian  1 минута пешком
Адрес: Шипиловский проезд, 39с3
Площадь: 36 м²
Назначение: магазин бижутерия сувениры аптека
Высота потолков: 3.6 метра
Отделка: С отделкой
Парковка: свободная парковка у здания
Электрическая мощность (кВт): 25
Тип входа: Отдельный с улицы
Витрины есть

Готовый арендный бизнес в Шипиловском проезде в Северном Орехово-Борисово. Обеспечен интенсивный пешеходный и автомобильный трафик, рядом остановка общественного транспорта. Окружение — супермаркеты «Дикси», «ВкусВилл», магазины табака, кафе «Ореховый Бульвар», кофейня. В минуте ходьбы находится станция метро «Орехово».

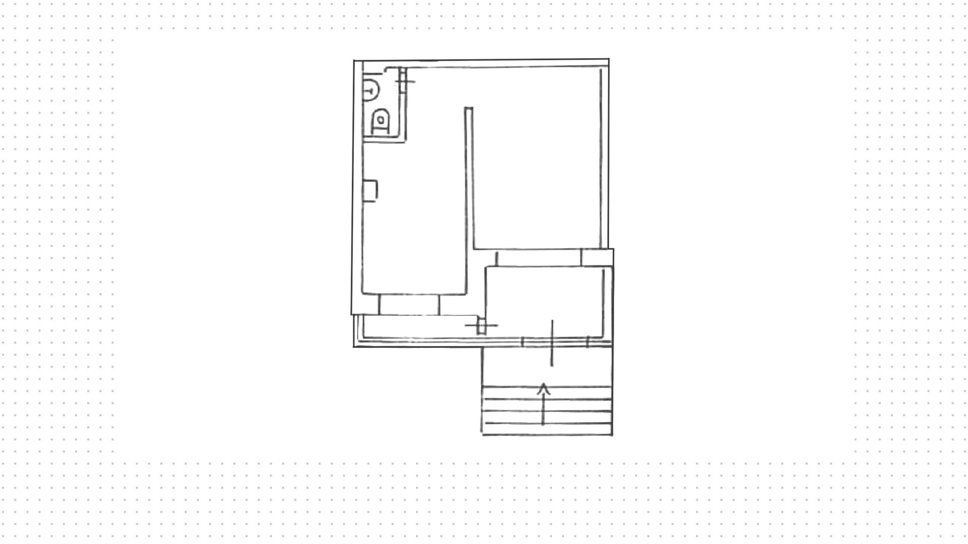
Объект с открытой планировкой площадью 36 м² расположен на первом этаже в нежилом здании. Арендатор — аптека «Ваша №1». В помещении предусмотрен санузел, установлена вытяжка. Отдельный вход с улицы, витринное остекление. Спланировано место для рекламы на фасаде. У здания организована свободная парковка.

55 440 000 ₽

1 540 000 ₽ за м²

МАП: 443 000 ₽
ГАП: 5 318 000 ₽
Окупаемость:
11 лет
Доходность:
10%
Метро:
Орехово :
pedestrian  1 минута пешком
Адрес: Шипиловский проезд, 39с3
Площадь: 36 м²
Назначение: магазин бижутерия сувениры аптека
Высота потолков: 3.6 метра
Отделка: С отделкой
Парковка: свободная парковка у здания
Электрическая мощность (кВт): 25
Тип входа: Отдельный с улицы
Витрины есть
expert

Александр

Руководитель проекта

Для уточнения и фиксирования цены можно связаться напрямую с брокером

+7 (495) 106-19-99

Расположение на карте

Похожие лоты

Мы включили в наш каталог лучшие предложения по коммерческой недвижимости в Москве.

Новинка
lot-13484
lot-13484
2
Помещение под аптеку, 98 м²

Продажа | Лот 13949

Парк Победы 20 мин Филевский парк 12 мин

Москва Василисы Кожиной, 25/1

Площадь: 98 м²

Назначение: Торговое помещение под  офис рабочее место

Офис в комплексе Ahead. Офис площадью 97 м² расположен на 3 этаже из 17, без отделки. Окна: панорамные, Schuco, алюминий, двухкамерные стеклопакеты,...

55 536 000 ₽

567 000 ₽ за м²

Новинка
lot-13485
lot-13485
2
Помещение под аптеку, 98 м²

Продажа | Лот 13950

Парк Победы 20 мин Филевский парк 12 мин

Москва Василисы Кожиной, 25/1

Площадь: 98 м²

Назначение: Торговое помещение под  офис рабочее место

Офис в комплексе Ahead. Офис площадью 97 м² расположен на 3 этаже из 17, без отделки. Окна: панорамные, Schuco, алюминий, двухкамерные стеклопакеты,...

55 536 000 ₽

567 000 ₽ за м²

Новинка
lot-15010
lot-15010
2
Помещение под аптеку, 85 м²

Продажа | Лот 34691

ЦСКА 5 мин

Москва Ходынский бульвар

Площадь: 85 м²

Назначение: Торговое помещение под  офис рабочее место

55 227 000 ₽

650 000 ₽ за м²

Новинка
lot-14980
lot-14980
lot-14980
lot-14980
lot-14980
5
Помещение под аптеку, 36 м²

Аренда | Лот 7049

Крестьянская застава 1 мин Пролетарская 1 мин

Москва Динамовская, 1А

Коммерческое помещение на первой линии домов, на пересечении улиц Динамовская и Воронцовская, в Таганском районе. Большой поток пешеходного...

578 000 ₽ / месяц

193 000 ₽ за м² / год

Новинка
lot-14936
lot-14936
lot-14936
3
Помещение под аптеку, 36 м²

Продажа | Лот 34047

Октябрьская 7 мин Полянка 8 мин

Москва Большая Якиманка, 32

Площадь: 36 м²

Назначение: Торговое помещение под  магазин цветы бижутерия сувениры микрокредит

Арендаторы: цветы

Доходность: 8%, 188 000 ₽/мес

Окупаемость: 12 лет

Готовый арендный бизнес на первой линии улицы Большая Якиманка в районе Якиманка. Интенсивный пешеходный и автомобильный трафик,...

27 000 000 ₽

750 000 ₽ за м²

Новинка
lot-12979
lot-12979
lot-12979
3
Помещение под аптеку, 36 м²

Продажа | Лот 17141

Новаторская 6 мин

Москва Ленинский проспект, 108А

Площадь: 36 м²

Назначение: Торговое помещение под  магазин аптека бижутерия сувениры

Арендаторы: Аптека Диалог

Доходность: 8%, 240 000 ₽/мес

Окупаемость: 12 лет

Готовый арендный бизнес в районе Проспекта Вернадского. Объект располагается на 1-й линии улицы Михаила Певцова, обеспечен интенсивный...

34 500 000 ₽

958 000 ₽ за м²

Позвонить эксперту whatsapp telegram
Каширская
Академический
ЦАО
Академический