Помещение в Опалихе, 185 м², лот - 18943

Продажа | Лот 18943

Image 0
Image 1
Image 2
Image 3
4
Image 0 Image 1 Image 2 Image 3

Продажа

Аренда

60000000 RUB

60 000 000 ₽

324 000 ₽ за м²

Адрес: Опалиха, Золотая аллея, 1
Площадь: 185 м²
Назначение: магазин свободное банк салон красоты супермаркет спортзал бижутерия бизнес парикмахерская сувениры
Высота потолков: 3.5 метра
Отделка: Без отделки
Парковка: подземная на 769 мест и наземная на 216 мест на территории комплекса
Электрическая мощность (кВт): 37
Зона разгрузки: Есть
Линия: Первая
Тип входа: Отдельный со двора
Витрины есть

Коммерческое помещение на 1-й линии домов в Опалихе. Жилой район, в радиусе 500 метров находятся более 2 500 квартир и частных домов. Близость парка «Опалиха-Алексеевское» и школы обеспечивает большой пешеходный трафик. Окружение — пекарня «Буханка», пункт выдачи Wildberries.

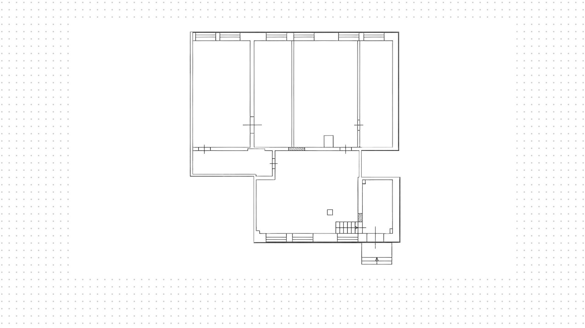
Объект с открытой планировкой площадью 185 м² расположен на 1-м этаже в жилом комплексе «Восемь клёнов». Два отдельных входа с улицы и два со двора, витринное остекление. Предусмотрены зона разгрузки, место для рекламы на фасаде. На территории комплекса спланированы парковки — подземная на 769 мест и наземная на 216 мест.

Продажа

Аренда

60 000 000 ₽

324 000 ₽ за м²

Адрес: Опалиха, Золотая аллея, 1
Площадь: 185 м²
Назначение: магазин свободное банк салон красоты супермаркет спортзал бижутерия бизнес парикмахерская сувениры
Высота потолков: 3.5 метра
Отделка: Без отделки
Парковка: подземная на 769 мест и наземная на 216 мест на территории комплекса
Электрическая мощность (кВт): 37
Зона разгрузки: Есть
Линия: Первая
Тип входа: Отдельный со двора
Витрины есть
expert

Елена

Эксперт проекта

Для уточнения и фиксирования цены можно связаться напрямую с брокером

+7 (495) 106-19-99

Расположение на карте

Похожие лоты

Мы включили в наш каталог лучшие предложения по коммерческой недвижимости в Москве.

Новинка
lot-15316
lot-15316
lot-15316
lot-15316
4
Помещение под сувениры, 37 м²

Продажа | Лот 29096

Деловой центр 6 мин

Москва Краснопресненская набережная, 14с3

Коммерческое помещение на 1-й линии 1-го Красногвардейского проезда в Пресненском районе. Объект находится в деловом центре «Москва-Сити»,...

60 000 000 ₽

1 622 000 ₽ за м²

Новинка
lot-14069
lot-14069
lot-14069
lot-14069
lot-14069
lot-14069
lot-14069
lot-14069
8
Помещение под сувениры, 231 м²

Продажа | Лот 18578

Южная 6 мин

Москва Кировоградская, 7

Площадь: 231 м²

Назначение: Торговое помещение под  магазин салон красоты пункт выдачи алко-маркет бижутерия парикмахерская сувениры

Арендаторы: Kpаcное&Бeлoe, OZON, салон массажа

Доходность: 11%, 500 000 ₽/мес

Окупаемость: 10 лет

Готовый арендный бизнес на Кировоградской улице в Северном Чертаново. Жилой район, близость остановки общественного транспорта обеспечивает...

60 000 000 ₽

260 000 ₽ за м²

Новинка
lot-14807
lot-14807
lot-14807
lot-14807
lot-14807
lot-14807
6
Помещение под сувениры, 214 м²

Продажа | Лот 31984

Москва Лодочная, 29с1

Коммерческое помещение на 1-й линии Лодочной улицы в Южном Тушино. Возле объекта строится жилой комплекс бизнес-класса «ЮТУ», рядом...

59 920 000 ₽

280 000 ₽ за м²

Новинка
lot-11158
lot-11158
lot-11158
lot-11158
lot-11158
lot-11158
6
Помещение под сувениры, 185 м²

Продажа | Лот 13636

Москва Красногорск, Ильинский бульвар, 8

Коммерческое помещение на 1-й линии Ильинского бульвара в Красногорске. Остановка общественного транспорта обеспечивает интенсивный...

52 000 000 ₽

281 000 ₽ за м²

Новинка
lot-3940
lot-3940
lot-3940
lot-3940
lot-3940
lot-3940
lot-3940
lot-3940
lot-3940
lot-3940
10
Коммерческое помещение с магазином инновационной техники

Продажа | Лот 5982

Тульская 4 мин

Москва Холодильный переулок, 3к1с4

Площадь: 185 м²

Назначение: Торговое помещение под  магазин шоурум бижутерия сувениры

Арендаторы: шоу-рум инновационной техники

Доходность: 9%, 631 000 ₽/мес

Окупаемость: 11 лет

Готовый арендный бизнес в Даниловском районе. Большой поток пешеходного трафика, рядом остановка общественного транспорта. Торговое...

83 295 000 ₽

450 000 ₽ за м²

Новинка
lot-14908
lot-14908
2
Помещение под сувениры, 184 м²

Продажа | Лот 33856

ЦСКА 1 мин

Москва Ходынское поле

Площадь: 184 м²

Назначение: Торговое помещение под  магазин свободное бижутерия бизнес сувениры

387 396 000 ₽

2 105 000 ₽ за м²

Позвонить эксперту whatsapp telegram
Каширская
Академический
ЦАО
Академический