Арендный бизнес в Одинцово, 209 м², лот - 10405

Продажа | Лот 10405

Image 0
Image 1
Image 2
Image 3
Image 4
Image 5
6
Image 0 Image 1 Image 2 Image 3 Image 4 Image 5
73000000 RUB

73 000 000 ₽

349 000 ₽ за м²

Арендаторы: супермаркет «ВкусВилл»
МАП: 450 000 ₽
ГАП: 5 400 000 ₽
Окупаемость:
14 лет
Доходность:
7%
Адрес: Одинцово, Клубничное Поле, 1
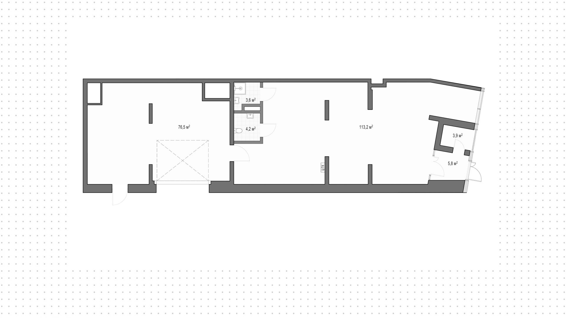
Площадь: 209 м²
Назначение: магазин супермаркет бижутерия сувениры
Высота потолков: 4.2 метра
Отделка: С отделкой
Парковка: перед фасадом, подземный паркинг для жителей
Электрическая мощность (кВт): 60
Зона разгрузки: Есть
Тип входа: Отдельный со двора
Витрины есть

Готовый арендный бизнес в Клубничном Поле в Одинцово. Жилой развивающийся район у Дубковского леса, удобный выезд на трассу «М-1». Окружение — продуктовый магазин «Фасоль», пекарня «Буханка», кофейня Baristoff, супермаркет «Магнит», магазин табака Castro.

Объект с открытой планировкой площадью 209 м² расположен на 1-м этаже в жилом комплексе «Одинград. Квартал Семейный». Арендатор — супермаркет «ВкусВилл». Отдельный вход с улицы и со двора с зоной разгрузки, витринное остекление. Предусмотрены место для рекламы на фасаде, парковка у дома.

«Одинград. Квартал Семейный» — комплекс из 11 корпусов переменной высоты от 24 до 25 этажей. В проекте спланированы 2 детских сада, школа и подземный паркинг для жителей.

73 000 000 ₽

349 000 ₽ за м²

Арендаторы: супермаркет «ВкусВилл»
МАП: 450 000 ₽
ГАП: 5 400 000 ₽
Окупаемость:
14 лет
Доходность:
7%
Адрес: Одинцово, Клубничное Поле, 1
Площадь: 209 м²
Назначение: магазин супермаркет бижутерия сувениры
Высота потолков: 4.2 метра
Отделка: С отделкой
Парковка: перед фасадом, подземный паркинг для жителей
Электрическая мощность (кВт): 60
Зона разгрузки: Есть
Тип входа: Отдельный со двора
Витрины есть
expert

Алина

Брокер лота

Для уточнения и фиксирования цены можно связаться напрямую с брокером

+7 (495) 106-19-99

Расположение на карте

Назначения
Похожие лоты

Мы включили в наш каталог лучшие предложения по коммерческой недвижимости в Москве.

Новинка
lot-14128
lot-14128
lot-14128
lot-14128
lot-14128
5
Помещение под сувениры, 194 м²

Продажа | Лот 18768

Москва Всеволода Вишневского, 12/10

Площадь: 194 м²

Назначение: Торговое помещение под  магазин кофейня пункт выдачи алко-маркет продуктовый магазин бижутерия продукты сувениры

Арендаторы: АРОМАТНЫЙ МИР Белорусские продукты Озон/Яндекс Кофейня Табак

Доходность: 10%, 608 000 ₽/мес

Окупаемость: 10 лет

Готовый арендный бизнес на 1-й линии улицы Всеволода Вишневского в Тимирязевском районе. Рядом остановка общественного транспорта,...

73 000 000 ₽

376 000 ₽ за м²

Новинка
lot-9773
lot-9773
2
Помещение под сувениры, 231 м²

Продажа | Лот 11482

Москва Москва, ул. Логинова д.3

Площадь: 231 м²

Назначение: Торговое помещение под  магазин свободное бижутерия бизнес сувениры

Арендаторы: Самокат

Доходность: 9%, 553 000 ₽/мес

Окупаемость: 11 лет

73 000 000 ₽

316 000 ₽ за м²

Новинка
lot-16129
lot-16129
lot-16129
lot-16129
4
Помещение под сувениры, 152 м²

Продажа | Лот 47682

Москва Красногорск, бульвар Строителей, с2

Площадь: 152 м²

Назначение: Торговое помещение под  магазин супермаркет бижутерия сувениры

Арендаторы: заряд магнит

Доходность: 10%, 608 000 ₽/мес

Окупаемость: 10 лет

Готовый арендный бизнес в Красногорске. Ритейл находится в жилом комплексе «Квартал Строгино», в проекте спланированы школа и два...

73 000 000 ₽

480 000 ₽ за м²

Новинка
lot-12072
lot-12072
2
Помещение под сувениры, 209 м²

Продажа | Лот 15099

Калужская 14 мин

Москва Академика Челомея, 7

Площадь: 209 м²

Назначение: Торговое помещение под  офис рабочее место

Офис в комплексе AFI Park Воронцовский. Офис площадью 209 м² расположен на 9 этаже из 25, без отделки. Окна: Alutech, алюминий, центральная секция...

81 829 000 ₽

392 000 ₽ за м²

Новинка
lot-13541
lot-13541
2
Помещение под сувениры, 209 м²

Продажа | Лот 12097

Воронцовская 2 мин Калужская 6 мин

Москва Старокалужское шоссе, 64/1

Площадь: 209 м²

Назначение: Торговое помещение под  офис рабочее место

Офис в комплексе Stone Калужская. Офис площадью 209 м² расположен на 4 этаже из 13, без отделки. Окна: панорамные, возможность естественного...

86 986 000 ₽

416 000 ₽ за м²

Новинка
lot-15036
lot-15036
2
Помещение под сувениры, 208 м²

Продажа | Лот 13141

Кунцевская 3 мин

Москва Молдавская, 1

Площадь: 208 м²

Назначение: Торговое помещение под  офис рабочее место

134 601 000 ₽

647 000 ₽ за м²

Позвонить эксперту max whatsapp telegram
Каширская
Академический
ЦАО
Академический