Арендный бизнес в Истре, 702 м², лот - 8064

Продажа | Лот 8064

Image 0
Image 1
2
Image 0 Image 1
100000000 RUB

100 000 000 ₽

142 000 ₽ за м²

Арендаторы: супермаркет «Пятерочка»
МАП: 720 000 ₽
ГАП: 8 640 000 ₽
Окупаемость:
12 лет
Доходность:
9%
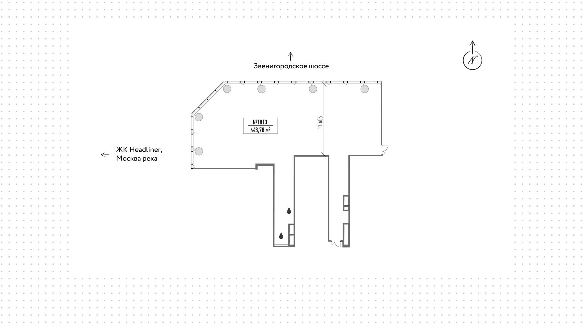
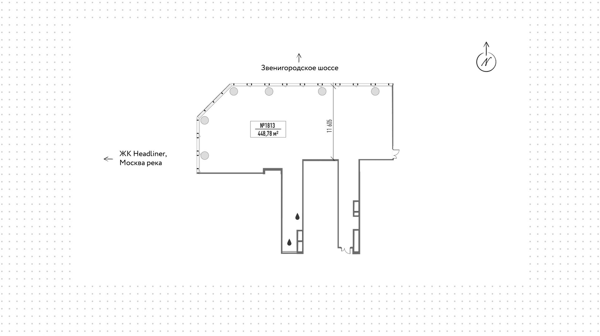
Адрес: Истра, деревня Ленино, 54А
Площадь: 702 м²
Назначение: магазин продуктовый магазин бижутерия продукты сувениры
Высота потолков: 4 метра
Отделка: С отделкой
Парковка: бесплатная перед фасадом здания
Электрическая мощность (кВт): 90
Зона разгрузки: Есть
Линия: Первая
Тип входа: Отдельный со двора
Витрины есть

Готовый арендный бизнес в деревне Ленино. Интенсивный поток пешеходного и автомобильного транспорта, рядом остановка общественного транспорта. Окружение — супермаркет «Дикси», кафе «Мафия», магазин цветов, пункт выдачи Wildberries, кофейня, кафе «Чайхона».

Помещение площадью 702 м² расположено на 1-м этаже трехэтажного торгового здания. Арендатор — супермаркет «Пятерочка». Отдельные входы с улицы и со двора, витринное остекление, спланирована зона разгрузки. Бесплатная парковка находится перед фасадом.

100 000 000 ₽

142 000 ₽ за м²

Арендаторы: супермаркет «Пятерочка»
МАП: 720 000 ₽
ГАП: 8 640 000 ₽
Окупаемость:
12 лет
Доходность:
9%
Адрес: Истра, деревня Ленино, 54А
Площадь: 702 м²
Назначение: магазин продуктовый магазин бижутерия продукты сувениры
Высота потолков: 4 метра
Отделка: С отделкой
Парковка: бесплатная перед фасадом здания
Электрическая мощность (кВт): 90
Зона разгрузки: Есть
Линия: Первая
Тип входа: Отдельный со двора
Витрины есть
expert

Алина

Брокер лота

Для уточнения и фиксирования цены можно связаться напрямую с брокером

+7 (495) 106-19-99

Расположение на карте

Назначения
Похожие лоты

Мы включили в наш каталог лучшие предложения по коммерческой недвижимости в Москве.

Новинка
lot-5977
lot-5977
lot-5977
lot-5977
lot-5977
lot-5977
lot-5977
lot-5977
lot-5977
lot-5977
lot-5977
lot-5977
lot-5977
lot-5977
lot-5977
lot-5977
lot-5977
lot-5977
lot-5977
lot-5977
lot-5977
lot-5977
lot-5977
lot-5977
lot-5977
lot-5977
lot-5977
27
Трёхэтажное здание с готовой отделкой на 1-й линии улицы Садовники

Продажа | Лот 8116

Москва Коломенский проезд, 1с1

Трёхэтажное здание на 1-й линии улицы Садовники в Нагатино-Садовники. Жилой район, большой поток пешеходного и автомобильного трафика,...

100 000 000 ₽

217 000 ₽ за м²

Новинка
lot-13859
lot-13859
lot-13859
lot-13859
4
Помещение под сувениры, 260 м²

Продажа | Лот 18054

Москва Крупской, 11

Площадь: 260 м²

Назначение: Торговое помещение под  магазин супермаркет пункт выдачи бижутерия сувениры

Арендаторы: вкусвилл

Доходность: 9%, 694 000 ₽/мес

Окупаемость: 12 лет

Готовый арендный бизнес на 1-й линии Крупской улицы в Ломоносовском районе. Объект находится у прогулочного бульвара, рядом остановка...

100 000 000 ₽

385 000 ₽ за м²

Новинка
lot-14813
lot-14813
lot-14813
lot-14813
4
Помещение под сувениры, 50 м²

Продажа | Лот 32055

Курская 2 мин Чкаловская 5 мин

Москва Земляной Вал, 25

Коммерческое помещение в Басманном районе. Объект расположен на первой линии Садового кольца, обеспечен интенсивный автомобильный...

100 000 000 ₽

2 000 000 ₽ за м²

Новинка
lot-13942
lot-13942
lot-13942
lot-13942
4
Помещение под сувениры, 710 м²

Продажа | Лот 18259

Москва Домодедово, Высотная, с13

Площадь: 710 м²

Назначение: Торговое помещение под  магазин бижутерия сувениры супермаркет

Арендаторы: магнит

Доходность: 8%, 1 250 000 ₽/мес

Окупаемость: 13 лет

Готовый арендный бизнес в Домодедово. Жилой развивающийся район, обеспечен интенсивный автомобильный и пешеходный трафик. Окружение...

195 000 000 ₽

275 000 ₽ за м²

Новинка
lot-12264
lot-12264
2
Помещение под сувениры, 717 м²

Продажа | Лот 15525

Терехово 7 мин

Москва Нижние Мнёвники, 39/41

Площадь: 717 м²

Назначение: Торговое помещение под  офис рабочее место

354 198 000 ₽

494 000 ₽ за м²

Новинка
lot-10980
lot-10980
lot-10980
lot-10980
lot-10980
lot-10980
lot-10980
lot-10980
lot-10980
lot-10980
lot-10980
lot-10980
lot-10980
lot-10980
lot-10980
lot-10980
lot-10980
lot-10980
lot-10980
lot-10980
20
Помещение под сувениры, 700 м²

Продажа | Лот 13024

Тульская 8 мин

Москва Духовской переулок, 17с16

Готовый арендный бизнес на 1-й линии Духовского переулка в Донском районе. У объекта большой поток пешеходного и автомобильного трафика,...

280 000 000 ₽

400 000 ₽ за м²

Позвонить эксперту whatsapp telegram
Каширская
Академический
ЦАО
Академический