Арендный бизнес в деревне Коробово, 449 м², лот - 47680

Продажа | Лот 47680

Image 0
Image 1
Image 2
Image 3
Image 4
5
Image 0 Image 1 Image 2 Image 3 Image 4
155000000 RUB

155 000 000 ₽

345 000 ₽ за м²

Арендаторы: Магнит
МАП: 1 150 000 ₽
ГАП: 13 800 000 ₽
Окупаемость:
12 лет
Доходность:
9%
Адрес: деревня Коробово, Взлётная, 3
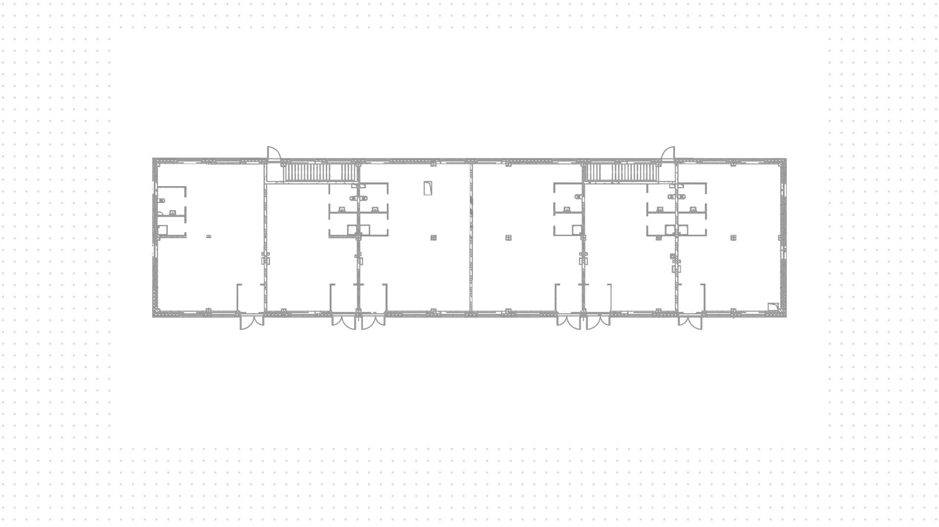
Площадь: 449 м²
Назначение: магазин супермаркет бижутерия сувениры
Высота потолков: 4 метра
Отделка: С отделкой
Парковка: бесплатная перед зданием
Зона разгрузки: Есть
Тип входа: Отдельный со двора
Витрины есть

Готовый арендный бизнес в деревне Коробово. Жилой развивающийся район, обеспечен интенсивный автомобильный и пешеходный трафик. Окружение — супермаркет «Магнит», пункт выдачи Wildberries, магазин мяса. Организован выезд на федеральную трассу А-105.

Объект с открытой планировкой общей площадью 449 м² расположен на 1 этаже в стилобате жилого комплекса «Горки Парк». Арендатор — супермаркет «Магнит». В помещении с витринным остеклением организованы отдельные входы с улицы и со двора, спланирована зона разгрузки. Перед зданием находится бесплатная парковка.

155 000 000 ₽

345 000 ₽ за м²

Арендаторы: Магнит
МАП: 1 150 000 ₽
ГАП: 13 800 000 ₽
Окупаемость:
12 лет
Доходность:
9%
Адрес: деревня Коробово, Взлётная, 3
Площадь: 449 м²
Назначение: магазин супермаркет бижутерия сувениры
Высота потолков: 4 метра
Отделка: С отделкой
Парковка: бесплатная перед зданием
Зона разгрузки: Есть
Тип входа: Отдельный со двора
Витрины есть
expert

Александр

Руководитель проекта

Для уточнения и фиксирования цены можно связаться напрямую с брокером

+7 (495) 106-19-99

Расположение на карте

Назначения
Похожие лоты

Мы включили в наш каталог лучшие предложения по коммерческой недвижимости в Москве.

Новинка
lot-14244
lot-14244
lot-14244
3
Помещение под сувениры, 307 м²

Продажа | Лот 13953

Бульвар Рокоссовского 10 мин

Москва Открытое шоссе, 18Ас7

Площадь: 307 м²

Назначение: Торговое помещение под  магазин супермаркет бижутерия сувениры

Доходность: 8%, 994 000 ₽/мес

Окупаемость: 13 лет

Готовый арендный бизнес на первой линии домов в Метрогородке. Развивающийся район, строятся жилые комплексы «Сиреневый Парк», «Квартал...

155 000 000 ₽

505 000 ₽ за м²

Новинка
lot-8130
lot-8130
lot-8130
3
Двухэтажное здание с сетевым арендатором «Дикси»

Продажа | Лот 9687

Москва деревня Голиково, Шоссейная, 8М

Площадь: 900 м²

Назначение: Торговое помещение под  магазин супермаркет продуктовый магазин бижутерия продукты сувениры

Арендаторы: супермаркет «Дикси»

Доходность: 5%, 587 000 ₽/мес

Окупаемость: 22 года

Готовый арендный бизнес на 1-й линии Новосходненского шоссе в деревне Голиково. Обеспечен большой пешеходный и автомобильный трафик,...

155 000 000 ₽

172 000 ₽ за м²

Новинка
lot-13206
lot-13206
2
Помещение под сувениры, 270 м²

Продажа | Лот 14723

ЦСКА 5 мин

Москва Ходынский бульвар, 4/1

Площадь: 270 м²

Назначение: Торговое помещение под  офис рабочее место

Офис в комплексе AIR. Офис площадью 270 м² расположен на 8 этаже. Без отделки. Окна: панорамные с солнцезащитными свойствами, в каждом...

154 329 000 ₽

572 000 ₽ за м²

Новинка
lot-13996
lot-13996
lot-13996
lot-13996
lot-13996
lot-13996
lot-13996
lot-13996
8
Помещение под сувениры, 450 м²

Продажа | Лот 18398

Москва Красково, Карла Маркса, 63

Площадь: 450 м²

Назначение: Торговое помещение под  магазин супермаркет бижутерия сувениры

Готовый арендный бизнес на 1-й линии улицы Карла Маркса в Красково. Жилой район, близость остановок общественного транспорта обеспечивает...

115 500 000 ₽

257 000 ₽ за м²

Новинка
lot-14821
lot-14821
lot-14821
lot-14821
lot-14821
lot-14821
lot-14821
7
Помещение под сувениры, 450 м²

Продажа | Лот 32150

Москва Севастопольский проспект, 22А

Коммерческое помещение в Котловке. Объект располагается на 1-й линии Севастопольского проспекта, обеспечен интенсивный автомобильный...

135 000 000 ₽

300 000 ₽ за м²

Новинка
lot-14218
lot-14218
2
Помещение под сувениры, 448 м²

Продажа | Лот 19041

Павелецкая 15 мин

Москва Жуков проезд, 8с1

Площадь: 448 м²

Назначение: Торговое помещение под  офис рабочее место

350 650 000 ₽

783 000 ₽ за м²

Позвонить эксперту max whatsapp telegram
Каширская
Академический
ЦАО
Академический