Помещение в Чечерском проезде, 160 м², лот - 44548

Продажа | Лот 44548

Image 0
Image 1
Image 2
Image 3
4
Image 0 Image 1 Image 2 Image 3
44772000 RUB

44 772 000 ₽

280 000 ₽ за м²

Метро:
Улица Горчакова :
pedestrian  10 минут пешком
Адрес: Чечерский проезд, 28с2
Площадь: 160 м²
Назначение: магазин свободное салон красоты спортзал кафе продуктовый магазин бижутерия бизнес парикмахерская продукты сувениры
Отделка: Без отделки
Парковка: бесплатная перед зданием
Тип входа: Отдельный со двора
Витрины есть

Коммерческое помещение в Южном Бутово. Жилой развивающийся район, обеспечен интенсивный автомобильный и пешеходный трафик. Окружение — алкомаркет «Красное&Белое», аптека «Будь Здоров!», магазин «1000 Мелочей». За 10 минут пешком можно дойти до станции метро «Улица Горчакова».

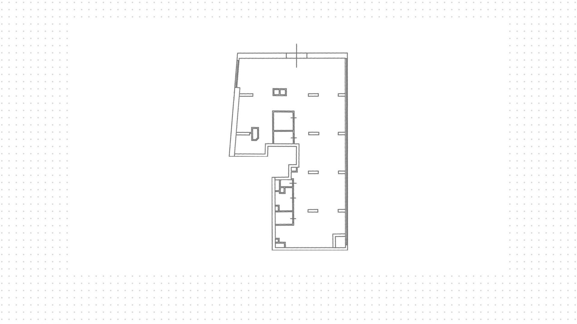
Объект с открытой планировкой площадью 160 м² расположен на 1 этаже в жилом доме. В помещении с витринным остеклением организовано два отдельных входа — с улицы и со двора. Перед зданием находится бесплатная парковка.

44 772 000 ₽

280 000 ₽ за м²

Метро:
Улица Горчакова :
pedestrian  10 минут пешком
Адрес: Чечерский проезд, 28с2
Площадь: 160 м²
Назначение: магазин свободное салон красоты спортзал кафе продуктовый магазин бижутерия бизнес парикмахерская продукты сувениры
Отделка: Без отделки
Парковка: бесплатная перед зданием
Тип входа: Отдельный со двора
Витрины есть
expert

Александр

Эксперт проекта

Для уточнения и фиксирования цены можно связаться напрямую с брокером

+7 (495) 106-19-99

Расположение на карте

Похожие лоты

Мы включили в наш каталог лучшие предложения по коммерческой недвижимости в Москве.

Новинка
lot-14487
lot-14487
lot-14487
lot-14487
lot-14487
5
Помещение под сувениры, 148 м²

Продажа | Лот 28677

Новокосино 9 мин

Москва Новокосинская, 18с1

Площадь: 148 м²

Назначение: Торговое помещение под  магазин алко-маркет бижутерия сувениры

Арендаторы: ароматный мир

Доходность: 6%, 208 000 ₽/мес

Окупаемость: 18 лет

Готовый арендный бизнес в Новокосино. Жилой развивающийся район, обеспечен интенсивный автомобильный и пешеходный трафик. Окружение...

44 900 000 ₽

303 000 ₽ за м²

Новинка
lot-7772
lot-7772
lot-7772
lot-7772
lot-7772
5
Коммерческое помещение с арендатором магазин «Табакин»

Продажа | Лот 9314

Орехово 1 мин

Москва Шипиловский проезд, 39с3

Площадь: 28 м²

Назначение: Торговое помещение под  магазин бижутерия сувениры

Доходность: 10%, 340 000 ₽/мес

Окупаемость: 11 лет

Готовый арендный бизнес в Шипиловском проезде в Северном Орехово-Борисово. Интенсивный поток пешеходного и автомобильного трафика,...

44 900 000 ₽

1 604 000 ₽ за м²

Новинка
lot-13205
lot-13205
2
Помещение под сувениры, 77 м²

Продажа | Лот 14722

ЦСКА 5 мин

Москва Ходынский бульвар

Площадь: 77 м²

Назначение: Торговое помещение под  офис рабочее место

44 739 000 ₽

581 000 ₽ за м²

Новинка
lot-13851
lot-13851
lot-13851
lot-13851
lot-13851
lot-13851
lot-13851
lot-13851
lot-13851
lot-13851
lot-13851
lot-13851
12
Помещение под сувениры, 160 м²

Аренда | Лот 10361

Москва Новомихайловское шоссе, 1с5

Коммерческое помещение на 1-й линии домов в Коммунарке. Развивающийся район, рядом детский сад, строится жилой комплекс «1-й Ясеневский»....

321 000 ₽ / месяц

24 000 ₽ за м² / год

Новинка
lot-9463
lot-9463
2
Помещение под сувениры, 160 м²

Аренда | Лот 10990

Москва ул.Профсоюзная д.152 кор.1

800 000 ₽ / месяц

60 000 ₽ за м² / год

Позвонить эксперту whatsapp telegram
Каширская
Академический
ЦАО
Академический