Арендный бизнес в Чечёрском проезд, 140 м², лот - 11450

Продажа | Лот 11450

Image 0
Image 1
Image 2
Image 3
Image 4
Image 5
6
Image 0 Image 1 Image 2 Image 3 Image 4 Image 5
44900000 RUB

44 900 000 ₽

321 000 ₽ за м²

МАП: 250 000 ₽
ГАП: 3 000 000 ₽
Окупаемость:
15 лет
Доходность:
7%
Адрес: Чечёрский проезд, 134с1
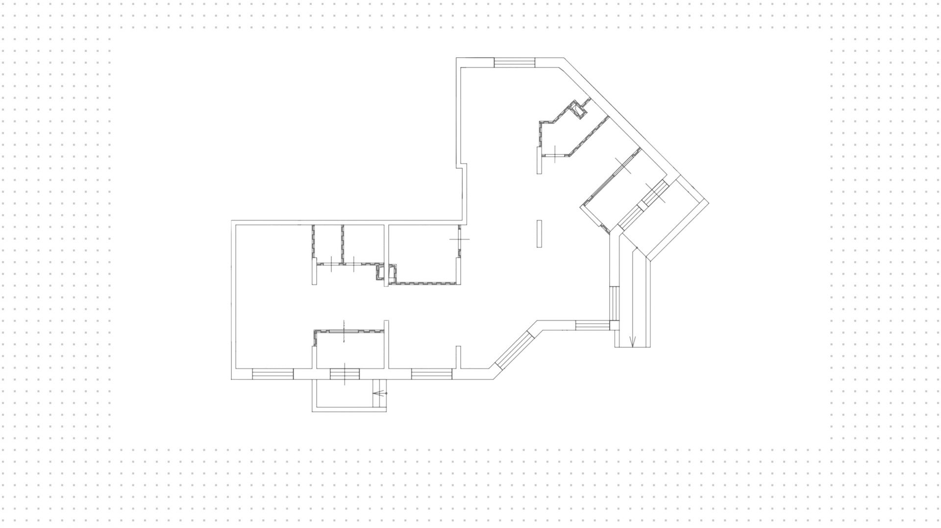
Площадь: 140 м²
Назначение: офис магазин салон красоты пункт выдачи бижутерия парикмахерская рабочее место сувениры
Высота потолков: 3.5 метра
Отделка: С отделкой
Парковка: бесплатная перед фасадом здания, подходит для грузового транспорта, наземная парковка на 1 000 мест для жителей
Электрическая мощность (кВт): 20
Зона разгрузки: Есть
Линия: Первая
Тип входа: Отдельный с улицы
Витрины есть

Готовый арендный бизнес на первой линии домов в Щербинке. Развивающийся район, интенсивный поток пешеходного и автомобильного трафика, рядом остановка общественного транспорта и торговый центр «Бутово Молл». Окружение — супермаркеты «Пятёрочка» и «Дикси», пункты выдачи «Яндекс Маркет» и Ozon, барбершоп Srez, алкомаркет «Винлаб».

Угловое помещение с открытой планировкой площадью 140 м² расположено на первом этаже в жилом комплексе «Новое Бутово». Арендаторы — пункт выдачи OZON, салон красоты и управляющая компания. Предусмотрены два отдельных входа с улицы, витринное остекление, зона разгрузки. Бесплатная парковка находится перед фасадом, подходит для грузового транспорта, спланирована наземная парковка на 1 000 мест для жителей.

44 900 000 ₽

321 000 ₽ за м²

МАП: 250 000 ₽
ГАП: 3 000 000 ₽
Окупаемость:
15 лет
Доходность:
7%
Адрес: Чечёрский проезд, 134с1
Площадь: 140 м²
Назначение: офис магазин салон красоты пункт выдачи бижутерия парикмахерская рабочее место сувениры
Высота потолков: 3.5 метра
Отделка: С отделкой
Парковка: бесплатная перед фасадом здания, подходит для грузового транспорта, наземная парковка на 1 000 мест для жителей
Электрическая мощность (кВт): 20
Зона разгрузки: Есть
Линия: Первая
Тип входа: Отдельный с улицы
Витрины есть
expert

Руслан

Эксперт проекта

Для уточнения и фиксирования цены можно связаться напрямую с брокером

+7 (495) 106-19-99

Расположение на карте

Похожие лоты

Мы включили в наш каталог лучшие предложения по коммерческой недвижимости в Москве.

Новинка
lot-7772
lot-7772
lot-7772
lot-7772
lot-7772
5
Коммерческое помещение с арендатором магазин «Табакин»

Продажа | Лот 9314

Орехово 1 мин

Москва Шипиловский проезд, 39с3

Площадь: 28 м²

Назначение: Торговое помещение под  магазин бижутерия сувениры

Доходность: 10%, 340 000 ₽/мес

Окупаемость: 11 лет

Готовый арендный бизнес в Шипиловском проезде в Северном Орехово-Борисово. Интенсивный поток пешеходного и автомобильного трафика,...

44 900 000 ₽

1 604 000 ₽ за м²

Новинка
lot-14487
lot-14487
lot-14487
lot-14487
lot-14487
5
Помещение под сувениры, 148 м²

Продажа | Лот 28677

Новокосино 9 мин

Москва Новокосинская, 18с1

Площадь: 148 м²

Назначение: Торговое помещение под  магазин алко-маркет бижутерия сувениры

Арендаторы: ароматный мир

Доходность: 6%, 208 000 ₽/мес

Окупаемость: 18 лет

Готовый арендный бизнес в Новокосино. Жилой развивающийся район, обеспечен интенсивный автомобильный и пешеходный трафик. Окружение...

44 900 000 ₽

303 000 ₽ за м²

Новинка
lot-16033
lot-16033
2
Помещение под сувениры, 71 м²

Продажа | Лот 14161

Москва Нижние Мнёвники, 39/41

Площадь: 71 м²

44 880 000 ₽

632 000 ₽ за м²

Новинка
lot-11435
lot-11435
lot-11435
lot-11435
lot-11435
lot-11435
lot-11435
7
Помещение под сувениры, 140 м²

Аренда | Лот 13797

Бабушкинская 3 мин

Москва Менжинского, 38к1с2

Коммерческое помещение на 1-й линии улицы Менжинского в Бабушкинском районе. Интенсивный поток пешеходного и автомобильного трафика....

750 000 ₽ / месяц

64 000 ₽ за м² / год

Новинка
lot-15224
lot-15224
2
Помещение под сувениры, 140 м²

Продажа | Лот 17336

Прокшино 1 мин

Москва поселение Сосенское, квартал № 35

Площадь: 140 м²

Назначение: Торговое помещение под  офис рабочее место

Офис в комплексе Бизнес-квартал Прокшино. Офис площадью 140 м² расположен на 2 этаже из 12, без отделки. Окна: панорамные, Энергоэффективное...

33 594 000 ₽

240 000 ₽ за м²

Новинка
lot-16265
lot-16265
lot-16265
lot-16265
4
Помещение под сувениры, 140 м²

Продажа | Лот 48936

Москва село Перхушково, микрорайон Равновесие, 5

Площадь: 140 м²

Назначение: Торговое помещение под  магазин пункт выдачи бижутерия сувениры

Арендаторы: WB

Доходность: 12%, 361 000 ₽/мес

Окупаемость: 9 лет

Готовый арендный бизнес в селе Перхушково. Ритейл находится у въезда в жилой комплекс «Равновесие», напротив помещения спланированы...

39 000 000 ₽

279 000 ₽ за м²

Вы уже смотрели
Посмотреть все лоты
Позвонить эксперту max whatsapp telegram
Каширская
Академический
ЦАО
Академический