Помещение на Заречной, 360 м², лот - 16128

Продажа | Лот 16128

Image 0
Image 1
Image 2
Image 3
Image 4
5
Image 0 Image 1 Image 2 Image 3 Image 4

Продажа

Аренда

306834661 RUB

306 835 000 ₽

852 000 ₽ за м²

Метро:
Фили :
pedestrian  5 минут пешком
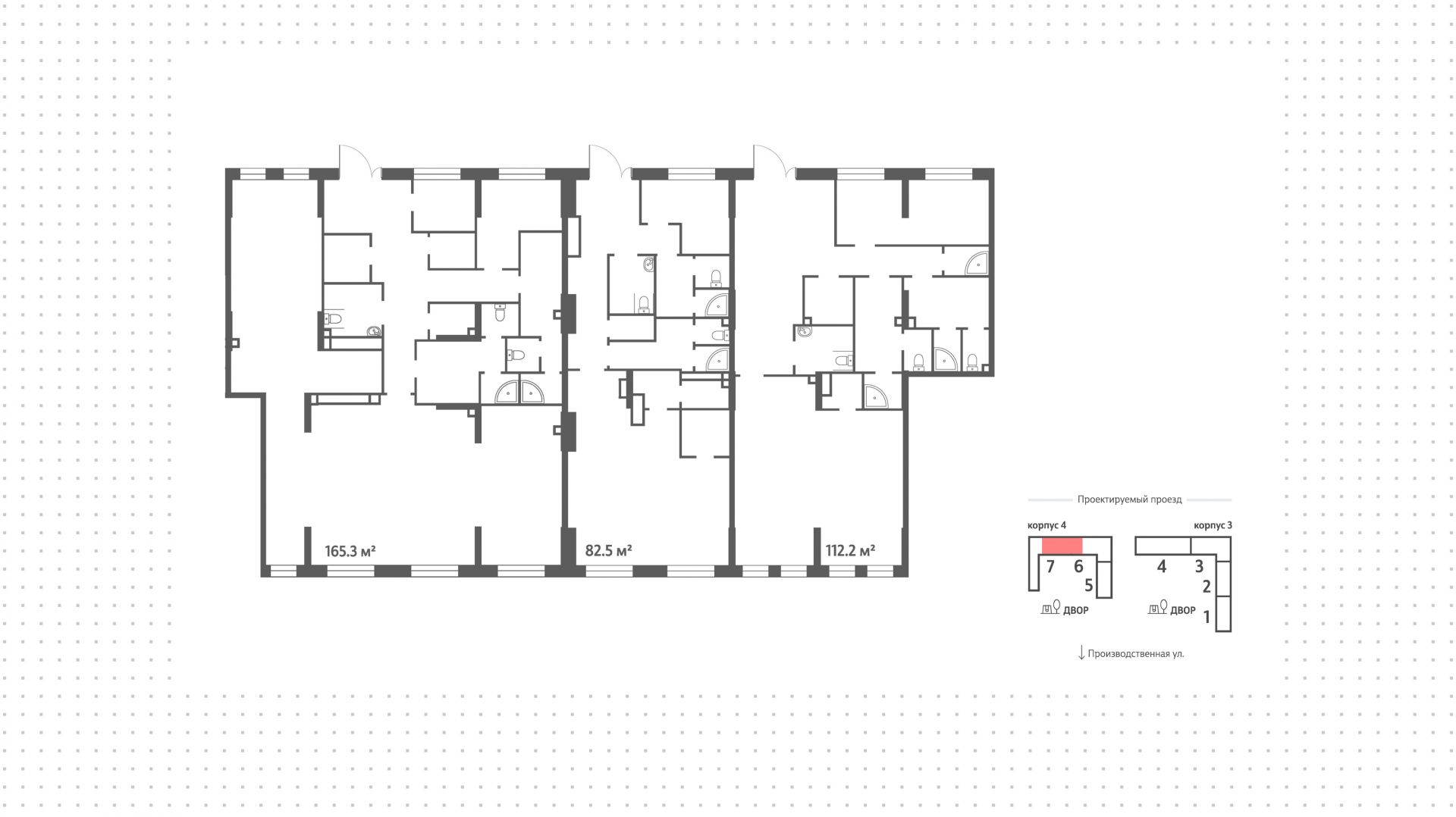
Адрес: Заречная, 2/1
Площадь: 360 м²
Назначение: ресторан кафе общепит
Отделка: Без отделки
Парковка: на территории бизнес-центра на 250 мест
Зона разгрузки: Есть
Линия: Первая
Тип входа: Отдельный со двора
Витрины есть

Коммерческое помещение на 1-й линии домов в Филёвском парке. Интенсивный пешеходный и автомобильный трафик. Окружение — детский сад Moscow International School, фитнес-клуб Mysoulstretching, супермаркет «Пятёрочка», стоматология «32 Карата», кальян-бар Tangiers Lounge. За 5 минут можно пешком дойти до станции метро «Фили».

Объект с открытой планировкой площадью 360 м² расположен на 1-м этаже у лобби бизнес-центра PORTA. Помещение оборудовано вытяжкой — подойдет под размещение общепита, ресторана или кафе. Отдельный вход с улицы и со двора, витринное остекление с видом на Москва-Сити и Москву-реку. Предусмотрены зона разгрузки, место для рекламы на фасаде. На территории бизнес-центра организована парковка на 250 мест.

Продажа

Аренда

306 835 000 ₽

852 000 ₽ за м²

Метро:
Фили :
pedestrian  5 минут пешком
Адрес: Заречная, 2/1
Площадь: 360 м²
Назначение: ресторан кафе общепит
Отделка: Без отделки
Парковка: на территории бизнес-центра на 250 мест
Зона разгрузки: Есть
Линия: Первая
Тип входа: Отдельный со двора
Витрины есть
expert

Елена

Эксперт проекта

Для уточнения и фиксирования цены можно связаться напрямую с брокером

+7 (495) 106-19-99

Расположение на карте

Похожие лоты

Мы включили в наш каталог лучшие предложения по коммерческой недвижимости в Москве.

Новинка
lot-13886
lot-13886
lot-13886
3
Помещение под общепит, 1167 м²

Продажа | Лот 18081

Москва Развилка, Римский проезд, 15

Коммерческое помещение в Римском проезде в посёлке Развилка. Ритейл находится в жилом комплексе «Римский», возле остановки общественного...

308 000 000 ₽

264 000 ₽ за м²

Новинка
lot-14465
lot-14465
lot-14465
lot-14465
lot-14465
lot-14465
lot-14465
7
Помещение под общепит, 260 м²

Продажа | Лот 28622

Юго-Западная 3 мин

Москва проспект Вернадского, 80

Коммерческое помещение в районе Тропарёво-Никулино. Обеспечен интенсивный автомобильный и пешеходный трафик, рядом остановка общественного...

310 000 000 ₽

1 192 000 ₽ за м²

Новинка
lot-11421
lot-11421
lot-11421
lot-11421
lot-11421
lot-11421
lot-11421
lot-11421
lot-11421
lot-11421
lot-11421
lot-11421
lot-11421
lot-11421
lot-11421
lot-11421
lot-11421
lot-11421
lot-11421
19
Помещение под общепит, 1905 м²

Продажа | Лот 13778

Железнодорожная 5 мин

Москва Балашиха, Октябрьская, 17

Площадь: 1 905 м²

Назначение: Торговое помещение под  магазин пекарня салон красоты супермаркет аптека кафе бижутерия парикмахерская сувениры

Арендаторы: Чижик, аптека "Вита", пекарня, Рублевский, "Фокс Пицца", салон красоты, яндекс. маркет и т.д.

Доходность: 10%, 2 500 000 ₽/мес

Окупаемость: 10 лет

Готовый арендный бизнес в Балашихе. Благодаря близости к торговому центру «Марс» вдоль помещения обеспечен интенсивный автомобильный...

300 000 000 ₽

157 000 ₽ за м²

Новинка
lot-15616
lot-15616
lot-15616
lot-15616
lot-15616
5
Помещение под общепит, 360 м²

Продажа | Лот 44255

Новопеределкино 9 мин

Москва Производственная, 19Ас3

Площадь: 360 м²

Назначение: Торговое помещение под  магазин супермаркет бижутерия сувениры

Арендаторы: пяткрочка

Доходность: 10%, 1 400 000 ₽/мес

Окупаемость: 10 лет

Готовый арендный бизнес на Производственной улице в Солнцево. Объект находится в жилом комплексе «Лучи», рядом школа с детским садом...

168 000 000 ₽

467 000 ₽ за м²

Новинка
lot-14186
lot-14186
lot-14186
3
Помещение под общепит, 361 м²

Продажа | Лот 18869

Москва Одинцово, Маршала Неделина, 2

Площадь: 361 м²

Назначение: Торговое помещение под  магазин супермаркет бижутерия сувениры

Арендаторы: магнит

Доходность: 12%, 847 000 ₽/мес

Окупаемость: 9 лет

Готовый арендный бизнес на улице Маршала Неделина в Одинцово. Близость Городского парка и остановки общественного транспорта обеспечивает...

91 500 000 ₽

253 000 ₽ за м²

Новинка
lot-12950
lot-12950
lot-12950
3
Помещение под общепит, 359 м²

Продажа | Лот 17021

Москва Алхимовская, с1

Площадь: 359 м²

Назначение: Торговое помещение под  магазин супермаркет бижутерия сувениры

Арендаторы: Сеть супермаркетов «Пятерочка»

Доходность: 11%, 1 343 000 ₽/мес

Окупаемость: 9 лет

Готовый арендный бизнес в Щербинке. Развивающийся район, рядом строится жилой комплекс «Алхимово», близость детского сада обеспечивает...

145 000 000 ₽

404 000 ₽ за м²

Вы уже смотрели
Посмотреть все лоты
Позвонить эксперту whatsapp telegram
Каширская
Академический
ЦАО
Академический