Арендный бизнес на Толбухина, 95 м², лот - 46260

Продажа | Лот 46260

Image 0
Image 1
Image 2
Image 3
Image 4
5
Image 0 Image 1 Image 2 Image 3 Image 4
33900000 RUB

33 900 000 ₽

357 000 ₽ за м²

Арендаторы: салон красоты
МАП: 240 000 ₽
ГАП: 2 880 000 ₽
Окупаемость:
12 лет
Доходность:
8%
Метро:
Сетунь :
pedestrian  4 минуты пешком
Район/округ: Можайский / ЗАО
Адрес: Толбухина, 12с1
Площадь: 95 м²
Назначение: магазин салон красоты бижутерия парикмахерская сувениры
Высота потолков: 4.6 метра
Отделка: С отделкой
Парковка: городская бесплатная перед фасадом
Электрическая мощность (кВт): 30
Зона разгрузки: Есть
Линия: Первая
Тип входа: Отдельный со двора
Витрины есть

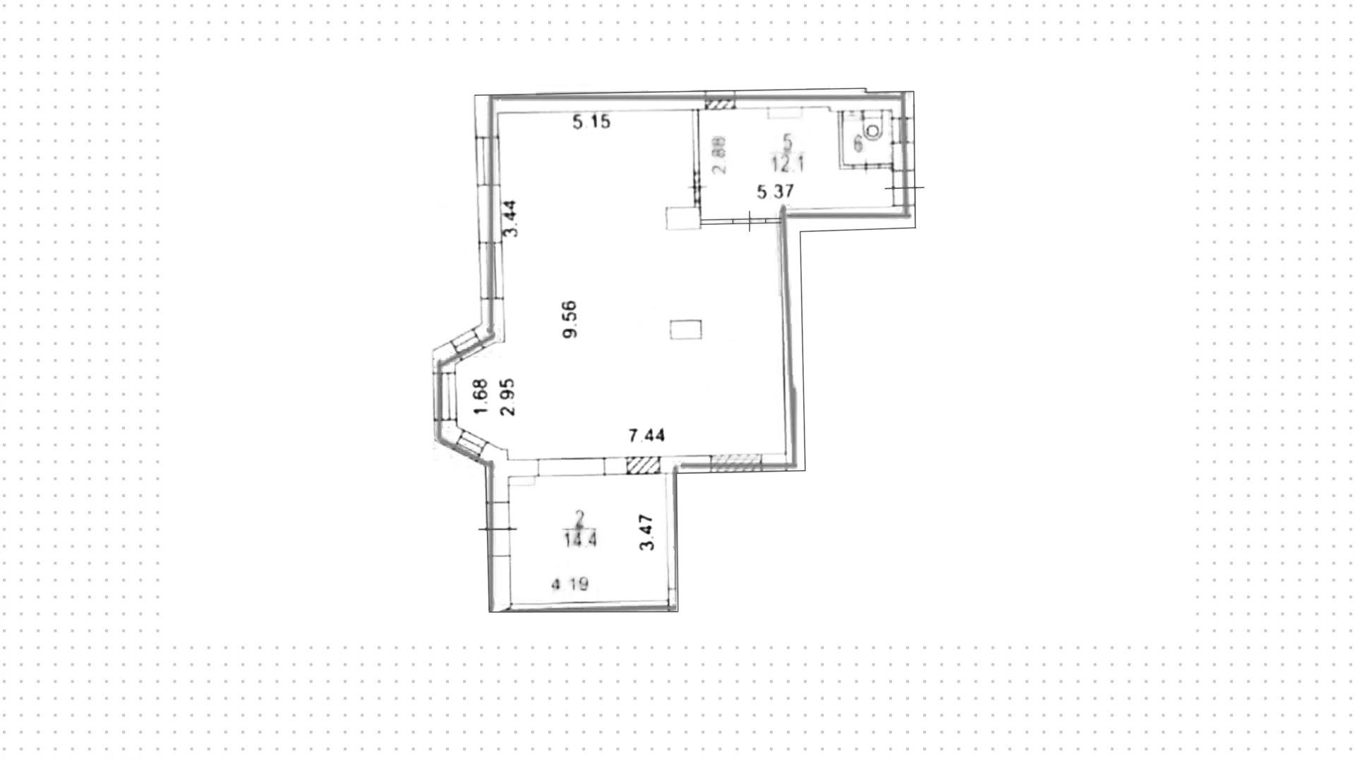
Готовый арендный бизнес на первой линии Запорожской улицы в Можайском районе. В радиусе шаговой доступности проживает более 18 000 человек. Близость остановки общественного транспорта обеспечивает большой пешеходный и автомобильный трафик. Окружение — аптеки «Здравсити», «Столички», зоомагазин «Бетховен». За 4 минуты можно пешком дойти до станции МЦД-1 «Сетунь».

Помещение с зальной планировкой площадью 95 м² расположено на первом этаже в жилом доме. Арендатор — салон красоты Hortus. Выполнена отделка с зонированием, организован автономный санузел. Отдельный вход с улицы и со двора, витринные арочные окна. Спланированы зона разгрузки и место для рекламы на фасаде. Возле дома предусмотрена городская бесплатная парковка.

33 900 000 ₽

357 000 ₽ за м²

Арендаторы: салон красоты
МАП: 240 000 ₽
ГАП: 2 880 000 ₽
Окупаемость:
12 лет
Доходность:
8%
Метро:
Сетунь :
pedestrian  4 минуты пешком
Район/округ: Можайский / ЗАО
Адрес: Толбухина, 12с1
Площадь: 95 м²
Назначение: магазин салон красоты бижутерия парикмахерская сувениры
Высота потолков: 4.6 метра
Отделка: С отделкой
Парковка: городская бесплатная перед фасадом
Электрическая мощность (кВт): 30
Зона разгрузки: Есть
Линия: Первая
Тип входа: Отдельный со двора
Витрины есть
expert

Руслан

Эксперт проекта

Для уточнения и фиксирования цены можно связаться напрямую с брокером

+7 (495) 106-19-99

Расположение на карте

Назначения
Похожие лоты

Мы включили в наш каталог лучшие предложения по коммерческой недвижимости в Москве.

Новинка
lot-15575
lot-15575
lot-15575
3
Помещение под сувениры, 85 м²

Продажа | Лот 43468

Москва Анненская, 6

Площадь: 85 м²

Назначение: Торговое помещение под  магазин пункт выдачи цветы бижутерия сувениры микрокредит

Арендаторы: Wildberriеs, OZON, Цветы.

Доходность: 9%, 257 000 ₽/мес

Окупаемость: 11 лет

Готовый арендный бизнес в Марьиной Роще. Жилой развивающийся район, обеспечен интенсивный автомобильный и пешеходный трафик. Окружение...

33 900 000 ₽

399 000 ₽ за м²

Новинка
lot-13040
lot-13040
lot-13040
3
Помещение под сувениры, 78 м²

Продажа | Лот 17231

Москва Ленинградское шоссе, 228с4

Площадь: 78 м²

Назначение: Торговое помещение под  магазин кафе бижутерия сувениры фаст-фуд

Арендаторы: самая вкусная шаурма

Доходность: 8%, 236 000 ₽/мес

Окупаемость: 12 лет

Готовый арендный бизнес на Ленинградском шоссе в Молжаниновском районе. Близость детского сада напротив объекта обеспечивает большой...

34 000 000 ₽

436 000 ₽ за м²

Новинка
lot-13574
lot-13574
2
Помещение под сувениры, 77 м²

Продажа | Лот 12160

Воронцовская 2 мин Калужская 6 мин

Москва Старокалужское шоссе, 64/1

Площадь: 77 м²

Назначение: Торговое помещение под  офис рабочее место

Офис в комплексе Stone Калужская. Офис площадью 77 м² расположен на 8 этаже из 13, без отделки. Окна: панорамные, возможность естественного...

33 857 000 ₽

440 000 ₽ за м²

Новинка
lot-12860
lot-12860
lot-12860
lot-12860
lot-12860
lot-12860
lot-12860
7
Помещение под сувениры, 95 м²

Аренда | Лот 16726

Маяковская 1 мин Пушкинская 9 мин Тверская 9 мин

Москва 1-я Тверская-Ямская, 2

Коммерческое помещение в Тверском районе. Обеспечен интенсивный пешеходный трафик. Окружение — кафе «Кремлёвский», ресторан «Циники»,...

700 000 ₽ / месяц

88 000 ₽ за м² / год

Новинка
lot-15210
lot-15210
lot-15210
lot-15210
4
Помещение под сувениры, 95 м²

Аренда | Лот 6156

Динамо 5 мин

Москва Ленинградский проспект, 29с2

Коммерческое помещение в районе Беговой. Большой поток пешеходного и автомобильного трафика, рядом остановка общественного транспорта....

750 000 ₽ / месяц

95 000 ₽ за м² / год

Позвонить эксперту whatsapp telegram
Каширская
Академический
ЦАО
Академический