Арендный бизнес на Солнечногорской, 373 м², лот - 29995

Продажа | Лот 29995

Image 0
Image 1
Image 2
Image 3
Image 4
Image 5
6
Image 0 Image 1 Image 2 Image 3 Image 4 Image 5
105000000 RUB

105 000 000 ₽

282 000 ₽ за м²

Арендаторы: пятерочка
МАП: 800 000 ₽
ГАП: 9 600 000 ₽
Окупаемость:
11 лет
Доходность:
9%
Метро:
Моссельмаш :
pedestrian  5 минут пешком
Район/округ: Головинский / САО
Адрес: Солнечногорская, 23с1
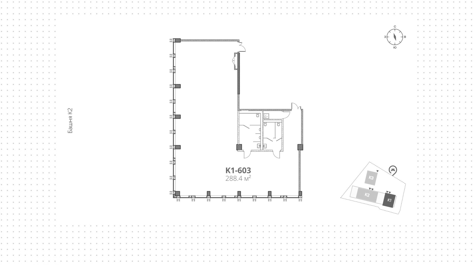
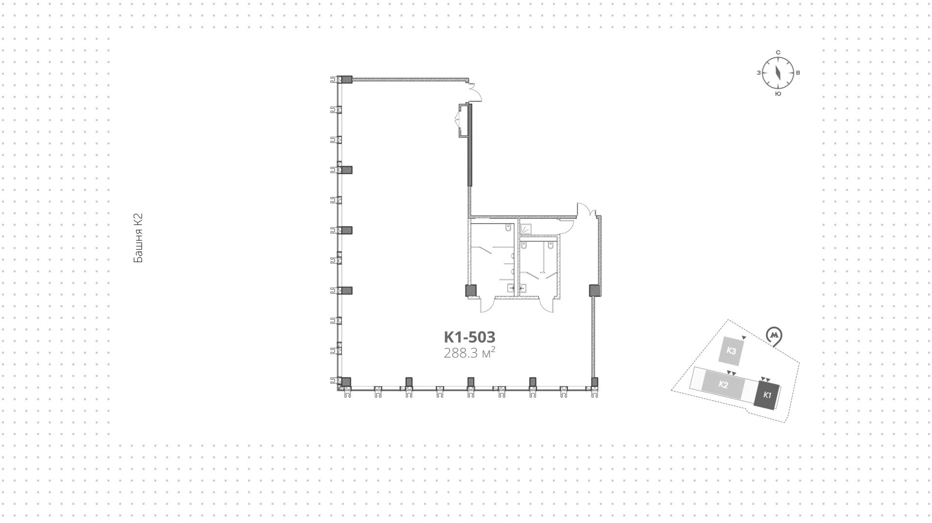
Площадь: 373 м²
Назначение: магазин супермаркет бижутерия сувениры
Высота потолков: 4.5 метра
Отделка: С отделкой
Парковка: перед фасадом
Электрическая мощность (кВт): 60
Зона разгрузки: Есть
Линия: Первая
Тип входа: Отдельный со двора
Витрины есть

Готовый арендный бизнес на 1-й линии Зеленоградской улицы в Головинском районе. Интенсивный пешеходный и автомобильный трафик, рядом остановка общественного транспорта. Окружение — супермаркет «Пятёрочка», пункты выдачи Wildberries, OZON, алкомаркет «Красное&Белое». За 5 минут можно пешком дойти до станции метро «Моссельмаш».

Объект с комбинированной планировкой площадью 373 м² расположен на 1-м этаже во встроенно-пристроенном к жилому дому здании. Арендатор — супермаркет «Пятёрочка». Отдельные входы с улицы и со двора, витринное остекление. Спланированы зона разгрузки, место для рекламы на фасаде. Возле здания организована парковка.

105 000 000 ₽

282 000 ₽ за м²

Арендаторы: пятерочка
МАП: 800 000 ₽
ГАП: 9 600 000 ₽
Окупаемость:
11 лет
Доходность:
9%
Метро:
Моссельмаш :
pedestrian  5 минут пешком
Район/округ: Головинский / САО
Адрес: Солнечногорская, 23с1
Площадь: 373 м²
Назначение: магазин супермаркет бижутерия сувениры
Высота потолков: 4.5 метра
Отделка: С отделкой
Парковка: перед фасадом
Электрическая мощность (кВт): 60
Зона разгрузки: Есть
Линия: Первая
Тип входа: Отдельный со двора
Витрины есть
expert

Елена

Эксперт проекта

Для уточнения и фиксирования цены можно связаться напрямую с брокером

+7 (495) 106-19-99

Расположение на карте

Назначения
Похожие лоты

Мы включили в наш каталог лучшие предложения по коммерческой недвижимости в Москве.

Новинка
lot-10298
lot-10298
lot-10298
lot-10298
lot-10298
5
Помещение под сувениры, 180 м²

Продажа | Лот 11599

Багратионовская 9 мин

Москва Барклая, 6с6

Коммерческое помещение на улице Барклая в районе Филёвский парк. Близость торгового центра «Горбушкин Двор» и бизнес-центров «Барклай...

105 000 000 ₽

583 000 ₽ за м²

Новинка
lot-15640
lot-15640
lot-15640
lot-15640
4
Помещение под сувениры, 169 м²

Продажа | Лот 30939

Москва Хабаровская, 8

Площадь: 169 м²

Назначение: Торговое помещение под  магазин супермаркет аптека бижутерия сувениры

Арендаторы: Горздрав, Озон, Вайлдбериз, Пекарня

Доходность: 9%, 795 000 ₽/мес

Окупаемость: 11 лет

Готовый арендный бизнес на первой линии Хабаровской улицы в Гольяново. Жилой район, близость школ с детскими садами и остановки общественного...

105 000 000 ₽

621 000 ₽ за м²

Новинка
lot-15413
lot-15413
lot-15413
3
Помещение под сувениры, 243 м²

Продажа | Лот 14333

Потапово 4 мин

Москва Александры Монаховой, 83

Площадь: 243 м²

Назначение: Торговое помещение под  магазин супермаркет бижутерия сувениры

Арендаторы: магнит

Доходность: 8%, 729 000 ₽/мес

Окупаемость: 12 лет

Готовый арендный бизнес на Александры Монаховой в Коммунарке. Близость автобусной станции и быстрый выезд на шоссе обеспечивает...

105 000 000 ₽

432 000 ₽ за м²

Новинка
lot-9786
lot-9786
lot-9786
lot-9786
lot-9786
lot-9786
6
Помещение под сувениры, 373 м²

Продажа | Лот 11541

Москва 3-й Павелецкий проезд, 3

Площадь: 373 м²

Назначение: Торговое помещение под  свободное кафе бизнес супермаркет

Доходность: 8%, 1 004 000 ₽/мес

Окупаемость: 13 лет

Готовый арендный бизнес в 3-м Павелецком проезде в Даниловском район. Прогулочный бульвар обеспечивает большой пешеходный трафик...

156 660 000 ₽

420 000 ₽ за м²

Новинка
lot-12922
lot-12922
2
Помещение под сувениры, 373 м²

Продажа | Лот 9742

ЦСКА 1 мин

Москва Ходынское поле

Площадь: 373 м²

Назначение: Торговое помещение под  офис рабочее место

187 095 000 ₽

502 000 ₽ за м²

Новинка
lot-4999
lot-4999
lot-4999
lot-4999
4
Коммерческое помещение с сетевым арендатором «Магнолия»

Продажа | Лот 3921

Бауманская 3 мин

Москва Спартаковская, 18

Площадь: 372 м²

Назначение: Торговое помещение под  магазин супермаркет бижутерия сувениры

Арендаторы: супермаркет «Магнолия»

Доходность: 8%, 1 493 000 ₽/мес

Окупаемость: 12 лет

Готовый арендный бизнес в Басманном районе. Окружение — супермаркет «Дикси», магазин чая «ЧаоЧай», парикмахерская «ЦирюльникЪ», ювелирный...

215 000 000 ₽

578 000 ₽ за м²

Позвонить эксперту whatsapp telegram
Каширская
Академический
ЦАО
Академический