Арендный бизнес на Перовской, 193 м², лот - 9273

Продажа | Лот 9273

Image 0
Image 1
Image 2
Image 3
4
Image 0 Image 1 Image 2 Image 3
80000000 RUB

80 000 000 ₽

415 000 ₽ за м²

Арендаторы: гастроном
МАП: 495 000 ₽
ГАП: 5 940 000 ₽
Окупаемость:
14 лет
Доходность:
7%
Метро:
Перово :
pedestrian  7 минут пешком
Адрес: Перовская, 49/53
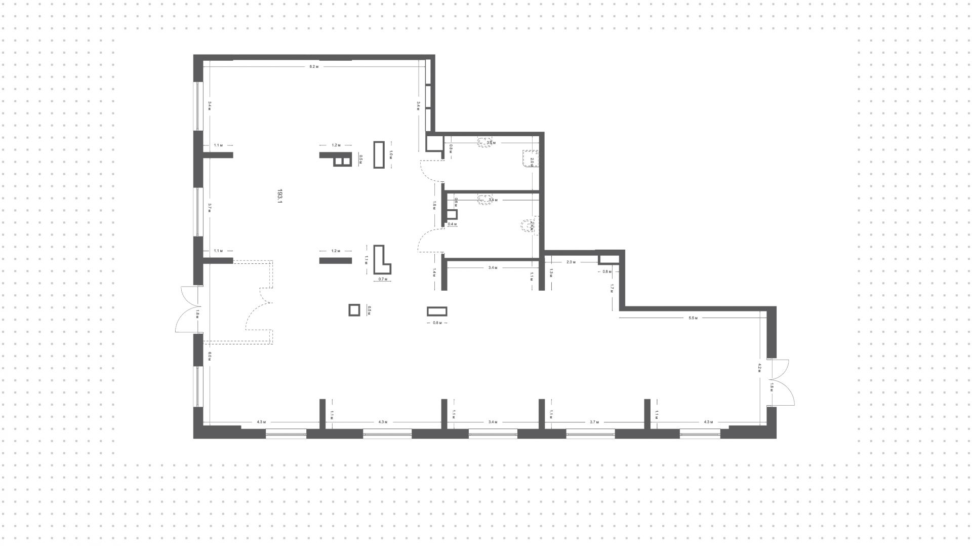
Площадь: 193 м²
Назначение: магазин продуктовый магазин бижутерия продукты сувениры
Высота потолков: 4 метра
Отделка: С отделкой
Парковка: бесплатная перед фасадом здания
Электрическая мощность (кВт): 30
Зона разгрузки: Есть
Линия: Первая
Тип входа: Отдельный со двора
Витрины есть

Готовый арендный бизнес на 1-й линии Перовской улицы в Новогиреево. Большой поток пешеходного и автомобильного трафика, рядом пешеходный переход. Окружение — стоматология «Виста», лаборатория «Гемотест», типография, школа танцев «Ассоль». За 7 минут можно пешком дойти до станции метро «Перово».

Помещение с комбинированной планировкой площадью 193 м² расположено на 1-м этаже жилого дома. Арендатор — гастроном. Подведены центральные коммуникации, оборудован санузел. Отдельные входы с улицы и со двора, витринное остекление. Предусмотрены зона разгрузки, место для размещения рекламы на фасаде. У дома спланирована бесплатная парковка.

80 000 000 ₽

415 000 ₽ за м²

Арендаторы: гастроном
МАП: 495 000 ₽
ГАП: 5 940 000 ₽
Окупаемость:
14 лет
Доходность:
7%
Метро:
Перово :
pedestrian  7 минут пешком
Адрес: Перовская, 49/53
Площадь: 193 м²
Назначение: магазин продуктовый магазин бижутерия продукты сувениры
Высота потолков: 4 метра
Отделка: С отделкой
Парковка: бесплатная перед фасадом здания
Электрическая мощность (кВт): 30
Зона разгрузки: Есть
Линия: Первая
Тип входа: Отдельный со двора
Витрины есть
expert

Артём

Эксперт

Для уточнения и фиксирования цены можно связаться напрямую с брокером

+7 (495) 106-19-99

Расположение на карте

Назначения
Похожие лоты

Мы включили в наш каталог лучшие предложения по коммерческой недвижимости в Москве.

lot-2512
lot-2512
lot-2512
lot-2512
lot-2512
lot-2512
lot-2512
7
Коммерческое помещение с арендатором «Красное&Белое»

Продажа | Лот 3798

Полянка 5 мин Третьяковская 8 мин

Москва Большая Полянка, 9

Площадь: 70 м²

Этаж: 1 этаж

Назначение: Торговое помещение под  магазин алко-маркет бижутерия сувениры

Арендаторы: алкомаркет «Красное&Белое»

Доходность: 5%, 351 000 ₽/мес

Окупаемость: 19 лет

Готовый арендный бизнес на 1-й линии улицы Большая Полянка в Якиманке. Большой поток пешеходного и автомобильного трафика, окружение...

80 000 000 ₽

1 143 000 ₽ за м²

Новинка
lot-12852
lot-12852
lot-12852
lot-12852
lot-12852
lot-12852
lot-12852
lot-12852
8
Помещение под сувениры, 178 м²

Продажа | Лот 12506

Москва проспект Лихачёва, 22

Угловое коммерческое помещение в Даниловском районе. Близость к жилым комплексам Now и Wow обеспечивает интенсивный поток пешеходного...

80 000 000 ₽

449 000 ₽ за м²

Новинка
lot-11182
lot-11182
lot-11182
lot-11182
4
Помещение под сувениры, 293 м²

Продажа | Лот 13980

Москва Зеленоград, с360

Площадь: 293 м²

Назначение: Торговое помещение под  магазин супермаркет аптека алко-маркет цветы продуктовый магазин бижутерия продукты сувениры микрокредит

Арендаторы: ароматный мир здесь аптека рыбный магазин цветы

Доходность: 10%, 606 000 ₽/мес

Окупаемость: 11 лет

Готовый арендный бизнес на 1-й линии Савелкинского проезда в Зеленограде. Жилой район, большой поток пешеходного и автомобильного...

80 000 000 ₽

273 000 ₽ за м²

Новинка
lot-15073
lot-15073
lot-15073
3
Помещение под сувениры, 193 м²

Продажа | Лот 19038

Москва Котельники, микрорайон Южный, 16

Площадь: 193 м²

Назначение: Торговое помещение под  магазин бижутерия сувениры

Арендаторы: самокат

Доходность: 9%, 330 000 ₽/мес

Окупаемость: 12 лет

Готовый арендный бизнес в Южном микрорайоне в Котельниках. Объект находится в жилом комплексе «Зелёный Остров» на 2 900 квартир, близость...

47 500 000 ₽

246 000 ₽ за м²

Новинка
lot-11569
lot-11569
lot-11569
lot-11569
4
Помещение под сувениры, 193 м²

Продажа | Лот 14051

Москва посёлок Ильинское-Усово, Заповедная, к2.8

Площадь: 193 м²

Назначение: Торговое помещение под  магазин супермаркет бижутерия сувениры

Арендаторы: вкусвилл

Доходность: 10%, 521 000 ₽/мес

Окупаемость: 10 лет

Готовый арендный бизнес в посёлке Ильинское-Усово. Развивающийся район, интенсивный поток пешеходного трафика, рядом детский сад....

62 500 000 ₽

324 000 ₽ за м²

Новинка
lot-12419
lot-12419
lot-12419
lot-12419
lot-12419
5
Помещение под сувениры, 192 м²

Продажа | Лот 4394

Арбатская 9 мин Кропоткинская 5 мин

Москва переулок Сивцев Вражек, 6/2

Площадь: 192 м²

Назначение: Торговое помещение под  магазин шоурум бижутерия сувениры

Доходность: 4%, 533 000 ₽/мес

Окупаемость: 25 лет

Готовый арендный бизнес на 1-й линии переулка Сивцев Вражек в районе Арбат. Большой поток пешеходного и автомобильного трафика, рядом...

160 000 000 ₽

833 000 ₽ за м²

Позвонить эксперту whatsapp telegram
Каширская
Академический
ЦАО
Академический