Арендный бизнес на Панфилова, 545 м², лот - 47764

Продажа | Лот 47764

Image 0
Image 1
Image 2
Image 3
Image 4
Image 5
6
Image 0 Image 1 Image 2 Image 3 Image 4 Image 5
220000000 RUB

220 000 000 ₽

404 000 ₽ за м²

Арендаторы: пятерочка
МАП: 2 148 000 ₽
ГАП: 25 771 000 ₽
Окупаемость:
9 лет
Доходность:
12%
Метро:
Панфиловская :
pedestrian  9 минут пешком
Район/округ: Сокол / САО
Адрес: Панфилова, 12
Площадь: 545 м²
Назначение: магазин супермаркет бижутерия сувениры
Высота потолков: 5 метров
Отделка: С отделкой
Парковка: городская платная перед фасадом
Электрическая мощность (кВт): 100
Зона разгрузки: Есть
Линия: Первая
Тип входа: Отдельный со двора
Витрины есть

Готовый арендный бизнес на первой линии улицы Панфилова в районе Сокол. В радиусе 500 метров проживает 9 500 человек, рядом учебные заведения, обеспечен большой пешеходный трафик. Окружение — кафе «Мерси, Люси!», сауна «Усадьба Банная», минимаркет «Светлячок». За 9 минут можно пешком дойти до станции МЦК «Панфиловская».

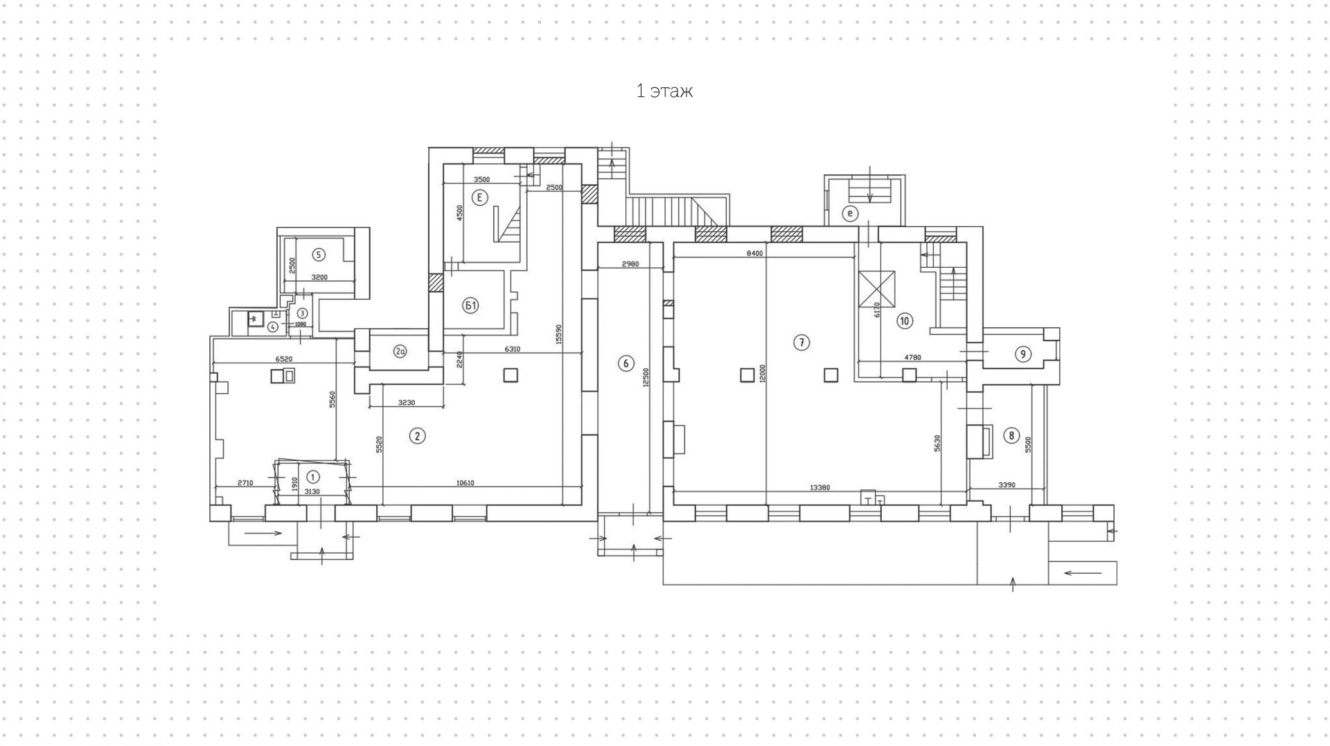
Помещение с комбинированной планировкой площадью 545 м² расположено на первом этаже и в подвале жилого дома. Арендатор — супермаркет «Пятёрочка». На первом этаже площадью 369 м² находится торговый зал, в подвале 176 м² — зона для сотрудников, проведены центральные коммуникации. Отдельные входы с улицы и со двора, витринное остекление. Предусмотрены зона разгрузки и место для рекламы на фасаде. Возле дома организована городская платная парковка.

220 000 000 ₽

404 000 ₽ за м²

Арендаторы: пятерочка
МАП: 2 148 000 ₽
ГАП: 25 771 000 ₽
Окупаемость:
9 лет
Доходность:
12%
Метро:
Панфиловская :
pedestrian  9 минут пешком
Район/округ: Сокол / САО
Адрес: Панфилова, 12
Площадь: 545 м²
Назначение: магазин супермаркет бижутерия сувениры
Высота потолков: 5 метров
Отделка: С отделкой
Парковка: городская платная перед фасадом
Электрическая мощность (кВт): 100
Зона разгрузки: Есть
Линия: Первая
Тип входа: Отдельный со двора
Витрины есть
expert

Руслан

Эксперт проекта

Для уточнения и фиксирования цены можно связаться напрямую с брокером

+7 (495) 106-19-99

Расположение на карте

Назначения
Похожие лоты

Мы включили в наш каталог лучшие предложения по коммерческой недвижимости в Москве.

Новинка
lot-10790
lot-10790
lot-10790
lot-10790
lot-10790
lot-10790
lot-10790
lot-10790
lot-10790
9
Помещение под сувениры, 240 м²

Продажа | Лот 634

Новокузнецкая 3 мин Третьяковская 4 мин

Москва Климентовский переулок, 6

Площадь: 240 м²

Назначение: Торговое помещение под  магазин алко-маркет бижутерия сувениры

Доходность: 8%, 1 410 000 ₽/мес

Окупаемость: 13 лет

Готовый арендный бизнес на 1-й линии Климентовского переулка в Замоскворечье. Большое количество баров и ресторанов возле объекта...

220 000 000 ₽

917 000 ₽ за м²

Новинка
lot-16162
lot-16162
lot-16162
lot-16162
4
Помещение под сувениры, 929 м²

Продажа | Лот 47924

Москва Берёзовая аллея, 4А

Площадь: 929 м²

Назначение: Торговое помещение под  магазин шиномонтаж бижутерия сувениры

Отдельное здание на 1 линии Берёзовой аллеи в Отрадном. Обеспечен интенсивный автомобильный и пешеходный трафик. Окружение — пункты...

220 000 000 ₽

237 000 ₽ за м²

Новинка
lot-12925
lot-12925
2
Помещение под сувениры, 373 м²

Продажа | Лот 9991

ЦСКА 1 мин

Москва Ходынское поле

Площадь: 373 м²

Назначение: Торговое помещение под  офис рабочее место

Офис в комплексе Stone Ходынка. Офис площадью 373 м² расположен на 18 этаже из 23, без отделки. Окна: панорамные, энергоэффективный стеклопакет,...

218 775 000 ₽

587 000 ₽ за м²

Новинка
lot-7287
lot-7287
lot-7287
lot-7287
lot-7287
lot-7287
lot-7287
7
Помещение с фитнес-клубом на Шелепихинской набережной

Продажа | Лот 6887

Москва Шелепихинская набережная, 34с2

Площадь: 545 м²

Назначение: Торговое помещение под  магазин спортзал бижутерия сувениры

Арендаторы: фитнес-клуб

Доходность: 8%, 1 089 000 ₽/мес

Окупаемость: 14 лет

Готовый арендный бизнес в районе Хорошёво-Мнёвники. У объекта большой поток пешеходного и автомобильного трафика, рядом пешеходная...

183 000 000 ₽

336 000 ₽ за м²

Новинка
lot-12986
lot-12986
2
Помещение под сувениры, 545 м²

Продажа | Лот 17163

Автозаводская 16 мин

Москва Эдуарда Стрельцова, 2с1

197 600 000 ₽

363 000 ₽ за м²

Новинка
lot-14805
lot-14805
2
Помещение под сувениры, 541 м²

Аренда | Лот 31983

Москва Ботаническая, 29Ас3

Коммерческое помещение на 1-й линии Ботанической улицы в районе Марфино. Жилой развивающийся район, обеспечен интенсивный автомобильный...

1 950 000 ₽ / месяц

43 000 ₽ за м² / год

Вы уже смотрели
Посмотреть все лоты
Позвонить эксперту max whatsapp telegram
Каширская
Академический
ЦАО
Академический