Арендный бизнес на Онежской, 584 м², лот - 11618

Продажа | Лот 11618

Image 0
Image 1
Image 2
Image 3
Image 4
Image 5
Image 6
Image 7
Image 8
Image 9
Image 10
11
Image 0 Image 1 Image 2 Image 3 Image 4 Image 5 Image 6 Image 7 Image 8 Image 9 Image 10
199000000 RUB

199 000 000 ₽

341 000 ₽ за м²

Арендаторы: супермаркет «Пятёрочка», салон красоты Wellness, аптека «Столички»
МАП: 1 387 000 ₽
ГАП: 16 645 000 ₽
Окупаемость:
12 лет
Доходность:
8%
Район/округ: Головинский / САО
Адрес: Онежская, 18
Площадь: 584 м²
Назначение: магазин салон красоты супермаркет аптека бижутерия парикмахерская сувениры
Высота потолков: 3.8 метра
Отделка: С отделкой
Парковка: бесплатная у здания
Электрическая мощность (кВт): 95
Зона разгрузки: Есть
Линия: Первая
Тип входа: Отдельный со двора
Витрины есть

Готовый арендный бизнес на 1-й линии Онежской улицы в Головинском районе. Интенсивный поток пешеходного и автомобильного трафика, рядом остановка общественного транспорта. Окружение — супермаркеты «Перекрёсток» и «Дикси», химчистка «Лотос», ветеринарная клиника «Манол», пункты выдачи OZON и Wildberries.

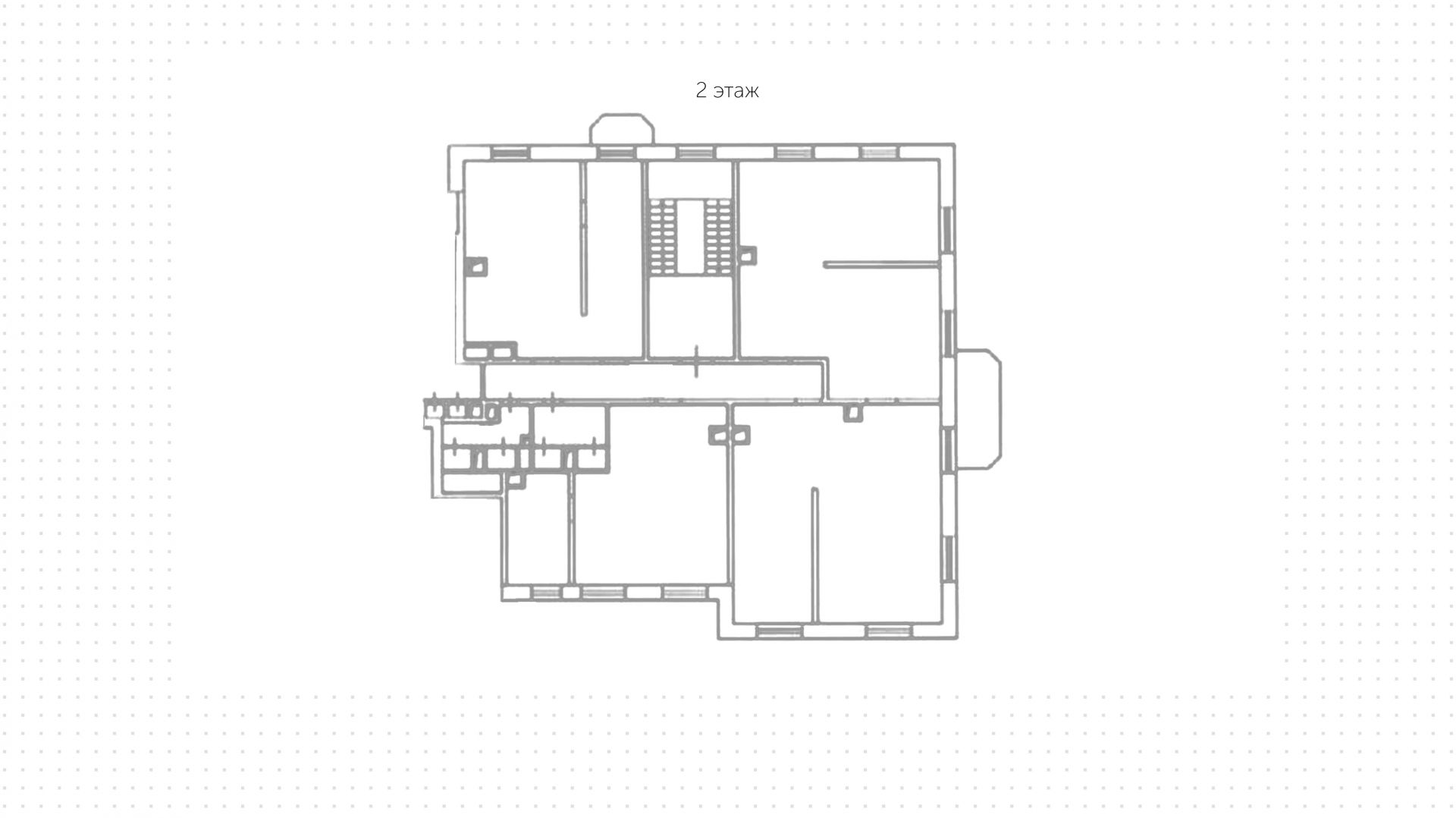
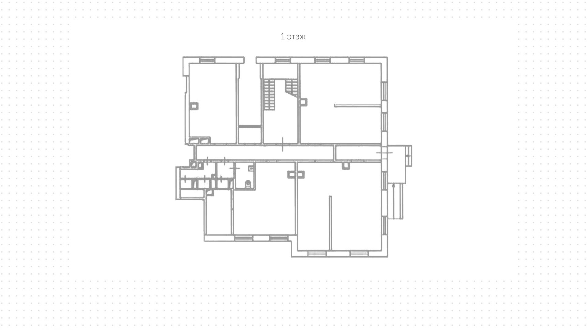
Объект с открытой планировкой площадью 584 м² расположен на 1-м этаже в жилом доме. Арендаторы — супермаркет «Пятёрочка», салон красоты Wellness, аптека «Столички». Предусмотрены отдельные входы с улицы и со двора, витринное остекление, спланирована зона разгрузки. Бесплатная парковка находится у здания.

199 000 000 ₽

341 000 ₽ за м²

Арендаторы: супермаркет «Пятёрочка», салон красоты Wellness, аптека «Столички»
МАП: 1 387 000 ₽
ГАП: 16 645 000 ₽
Окупаемость:
12 лет
Доходность:
8%
Район/округ: Головинский / САО
Адрес: Онежская, 18
Площадь: 584 м²
Назначение: магазин салон красоты супермаркет аптека бижутерия парикмахерская сувениры
Высота потолков: 3.8 метра
Отделка: С отделкой
Парковка: бесплатная у здания
Электрическая мощность (кВт): 95
Зона разгрузки: Есть
Линия: Первая
Тип входа: Отдельный со двора
Витрины есть
expert

Александр

Эксперт проекта

Для уточнения и фиксирования цены можно связаться напрямую с брокером

+7 (495) 106-19-99

Расположение на карте

Похожие лоты

Мы включили в наш каталог лучшие предложения по коммерческой недвижимости в Москве.

Новинка
lot-15430
lot-15430
lot-15430
lot-15430
lot-15430
5
Помещение под сувениры, 512 м²

Продажа | Лот 42789

Тульская 4 мин

Москва Большая Тульская, 2

Площадь: 512 м²

Назначение: Торговое помещение под  офис магазин шоурум бижутерия рабочее место сувениры

Арендаторы: NOFER

Доходность: 10%, 1 508 000 ₽/мес

Окупаемость: 11 лет

Готовый арендный бизнес на первой линии Большой Тульской улицы в Даниловском районе. В радиусе 500 метров проживает более 12 000 человек,...

199 000 000 ₽

389 000 ₽ за м²

Новинка
lot-15850
lot-15850
lot-15850
lot-15850
lot-15850
5
Помещение под сувениры, 210 м²

Продажа | Лот 45835

Москва Ленинский проспект, 38

Коммерческое помещение на Ленинском проспекте в Гагаринском районе. Ритейл находится во многофункциональном комплексе премиум-класса...

199 500 000 ₽

950 000 ₽ за м²

Новинка
lot-11798
lot-11798
lot-11798
lot-11798
lot-11798
lot-11798
6
Помещение под сувениры, 771 м²

Продажа | Лот 14403

ВДНХ 8 мин

Москва Цандера, 8

Площадь: 771 м²

Назначение: Торговое помещение под  магазин супермаркет общепит бижутерия сувениры

Арендаторы: “ВкусВилл”, офисные помещения, цех по приготовлению еды – dark kitchen, оборудование ПАО «МТС», ПАО «Вымпелком», ООО «Т2 мобайл» (крыша здания)

Доходность: 9%, 1 500 000 ₽/мес

Окупаемость: 11 лет

Готовый арендный бизнес на 1-й линии улицы Цандера в Останкинском районе. Интенсивный поток пешеходного и автомобильного трафика,...

198 000 000 ₽

257 000 ₽ за м²

Новинка
lot-16205
lot-16205
lot-16205
lot-16205
lot-16205
lot-16205
6
Помещение под сувениры, 584 м²

Продажа | Лот 48445

Моссельмаш 8 мин

Москва Ивана Сусанина, 2с7

Площадь: 584 м²

Назначение: Торговое помещение под  магазин супермаркет бижутерия сувениры

Арендаторы: пятерочка

Доходность: 10%, 1 894 000 ₽/мес

Окупаемость: 11 лет

Готовый арендный бизнес в Западном Дегунино. Объект располагается на 1 линии улицы Ивана Сусанина, обеспечен интенсивный автомобильный...

250 000 000 ₽

428 000 ₽ за м²

Новинка
lot-16237
lot-16237
2
Помещение под сувениры, 584 м²

Продажа | Лот 48866

Москва Ленинский проспект, 38Ас1

Площадь: 584 м²

Назначение: Торговое помещение под  спортзал

Арендаторы: осанка

Доходность: 11%, 2 432 000 ₽/мес

Окупаемость: 9 лет

Готовый арендный бизнес на 1 линии Ленинского проспекта в Гагаринском районе. Интенсивный поток пешеходного и автомобильного трафика,...

262 665 000 ₽

450 000 ₽ за м²

Новинка
lot-15638
lot-15638
lot-15638
lot-15638
lot-15638
5
Помещение под сувениры, 581 м²

Продажа | Лот 44427

Москва Кронштадтский бульвар, 49с1

Коммерческое помещение в Головинском районе. Жилой район, рядом несколько школ, обеспечен интенсивный автомобильный и пешеходный...

105 000 000 ₽

181 000 ₽ за м²

Позвонить эксперту max whatsapp telegram
Каширская
Академический
ЦАО
Академический