Помещение в комплексе «Цветочные Поляны Экопарк», 120 м², лот - 42792

Продажа | Лот 42792

Image 0
Image 1
Image 2
Image 3
4
Image 0 Image 1 Image 2 Image 3

Продажа

Аренда

34500000 RUB

34 500 000 ₽

288 000 ₽ за м²

Адрес: Новосередневский проспект, 21с4
Площадь: 120 м²
Назначение: магазин свободное салон красоты супермаркет спортзал кафе бижутерия бизнес парикмахерская сувениры
Высота потолков: 4 метра
Отделка: Без отделки
Парковка: перед фасадом
Электрическая мощность (кВт): 22
Зона разгрузки: Есть
Тип входа: Отдельный со двора
Витрины есть

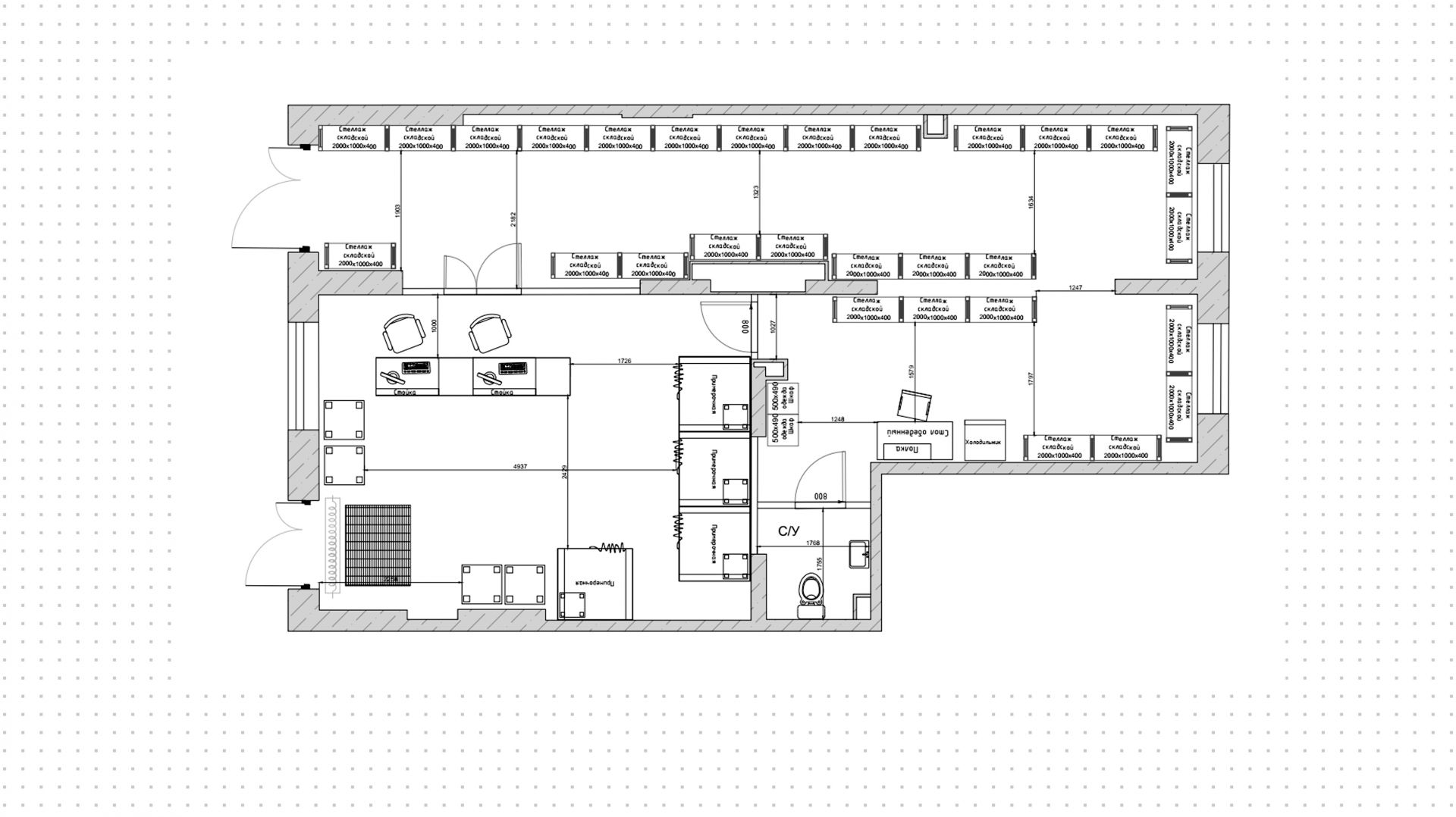
Коммерческое помещение на Новосередневском проспекте в Филимонковском районе. Ритейл находится в центре жилого комплекса «Цветочные Поляны Экопарк», возле школы на 1 100 учеников. Большой поток пешеходного и автомобильного трафика.

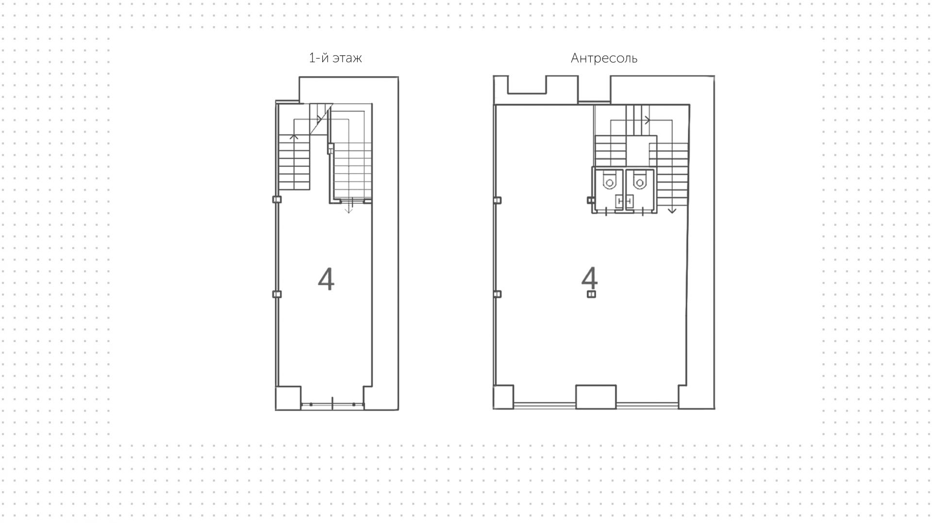
Объект с открытой планировкой площадью 120 м² расположен на первом этаже в жилом доме. Отдельный вход с улицы и со двора, витринное остекление. Организованы зона разгрузки и место для рекламы на фасаде. Возле дома предусмотрена парковка.

Продажа

Аренда

34 500 000 ₽

288 000 ₽ за м²

Адрес: Новосередневский проспект, 21с4
Площадь: 120 м²
Назначение: магазин свободное салон красоты супермаркет спортзал кафе бижутерия бизнес парикмахерская сувениры
Высота потолков: 4 метра
Отделка: Без отделки
Парковка: перед фасадом
Электрическая мощность (кВт): 22
Зона разгрузки: Есть
Тип входа: Отдельный со двора
Витрины есть
expert

Елена

Эксперт проекта

Для уточнения и фиксирования цены можно связаться напрямую с брокером

+7 (495) 106-19-99

Расположение на карте

Похожие лоты

Мы включили в наш каталог лучшие предложения по коммерческой недвижимости в Москве.

Новинка
lot-15782
lot-15782
lot-15782
3
Помещение под сувениры, 104 м²

Продажа | Лот 44921

Москва Варшавское шоссе, 280с3

Площадь: 104 м²

Назначение: Торговое помещение под  магазин бижутерия сувениры пункт выдачи

Готовый арендный бизнес в Южном Бутово. Жилой развивающийся район, обеспечен интенсивный автомобильный и пешеходный трафик. Окружение...

34 500 000 ₽

332 000 ₽ за м²

Новинка
lot-15848
lot-15848
lot-15848
3
Помещение под сувениры, 110 м²

Продажа | Лот 45763

Москва деревня Юрлово, 2/1

Площадь: 110 м²

Назначение: Торговое помещение под  салон красоты парикмахерская

Готовый арендный бизнес в деревне Юрлово. Развивающийся район, объект находится у въезда в жилой комплекс «Пятницкие Луга», в проекте...

34 500 000 ₽

314 000 ₽ за м²

Новинка
lot-14986
lot-14986
2
Помещение под сувениры, 95 м²

Продажа | Лот 13783

Волгоградский проспект 10 мин

Москва Скотопрогонная, 31А

Площадь: 95 м²

Назначение: Торговое помещение под  офис рабочее место

Офис в комплексе N'ice Tower. Офис площадью 91 м² расположен на 7 этаже из 27, без отделки. Окна: алюминиевые панорамные окна Alutech, цвет ral 7016,...

34 447 000 ₽

363 000 ₽ за м²

Новинка
lot-15141
lot-15141
lot-15141
3
Помещение под сувениры, 120 м²

Аренда | Лот 39162

Москва Котельники, Сосновая, 5с1

Коммерческое помещение на Сосновой улице в городе Котельники. В радиусе трёхсот метров проживает 9 000 человек, близость Новорязанского...

300 000 ₽ / месяц

30 000 ₽ за м² / год

Новинка
lot-16699
lot-16699
lot-16699
lot-16699
lot-16699
lot-16699
lot-16699
7
Помещение под сувениры, 120 м²

Аренда | Лот 52370

Москва Щёлковское шоссе, 92Ас1

Коммерческое помещение в Северном Измайлово. Жилой район, рядом остановка общественного транспорта и выезд на Щёлковского шоссе....

330 000 ₽ / месяц

33 000 ₽ за м² / год

Новинка
lot-16428
lot-16428
lot-16428
lot-16428
lot-16428
5
Помещение под сувениры, 120 м²

Аренда | Лот 6809

Белорусская 3 мин

Москва 1-я Тверская Ямская, 25с1

Коммерческое помещение на первой линии улицы 1-я Тверская Ямская в Тверском районе. Близость Белорусского вокзала и бизнес-центров...

800 000 ₽ / месяц

80 000 ₽ за м² / год

Позвонить эксперту max whatsapp telegram
Каширская
Академический
ЦАО
Академический