Арендный бизнес на Летниковской, 31 м², лот - 16211

Продажа | Лот 16211

Image 0
Image 1
Image 2
Image 3
Image 4
5
Image 0 Image 1 Image 2 Image 3 Image 4
25900000 RUB

25 900 000 ₽

835 000 ₽ за м²

Арендаторы: Кофейня Кофепорт
МАП: 200 000 ₽
ГАП: 2 400 000 ₽
Окупаемость:
11 лет
Доходность:
9%
Район/округ: Замоскворечье / ЦАО
Адрес: Летниковская, 10с2
Площадь: 31 м²
Назначение: магазин кофейня бижутерия сувениры
Отделка: С отделкой
Парковка: городская платная парковка у дороги
Тип входа: Общий с улицы
Витрины есть

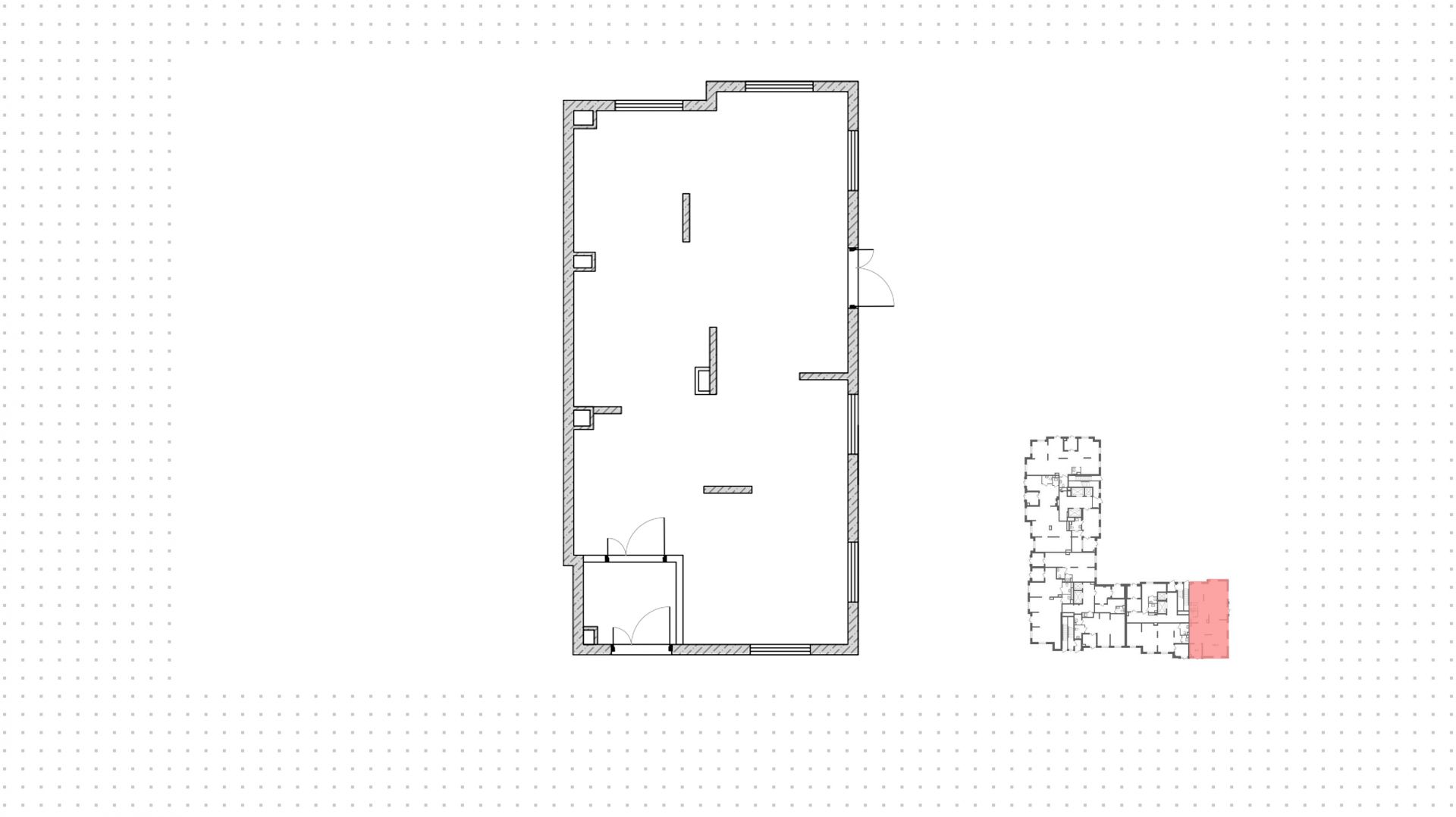
Готовый арендный бизнес на Летниковской улице в Замоскворечье. Объект находится в районе Павелецкого делового центра, рядом находятся бизнес-центры «Сибирский Альянс», «Святогор-1», «Святогор-4», штаб-квартира «Росатом», рядом строятся бизнес-центр Taller, жилые комплексы Voxhall, High Life, Era, количество квартир более 2 000.

Помещение с открытой планировкой площадью 31 м² расположено на 1-м этаже в лобби бизнес-центра «Святогор-2». Арендатор — кофейня «Кофепорт». Объект оснащен вытяжкой. Общий вход с улицы, витринное остекление. У дороги организована городская платная парковка.

25 900 000 ₽

835 000 ₽ за м²

Арендаторы: Кофейня Кофепорт
МАП: 200 000 ₽
ГАП: 2 400 000 ₽
Окупаемость:
11 лет
Доходность:
9%
Район/округ: Замоскворечье / ЦАО
Адрес: Летниковская, 10с2
Площадь: 31 м²
Назначение: магазин кофейня бижутерия сувениры
Отделка: С отделкой
Парковка: городская платная парковка у дороги
Тип входа: Общий с улицы
Витрины есть
expert

Елена

Эксперт проекта

Для уточнения и фиксирования цены можно связаться напрямую с брокером

+7 (495) 106-19-99

Расположение на карте

Похожие лоты

Мы включили в наш каталог лучшие предложения по коммерческой недвижимости в Москве.

Новинка
lot-7680
lot-7680
lot-7680
lot-7680
4
Помещение под сувениры, 16 м²

Продажа | Лот 9244

Сходненская 3 мин

Москва бульвар Яна Райниса, 2с1

Площадь: 16 м²

Назначение: Торговое помещение под  магазин бижутерия сувениры

Доходность: 9%, 196 000 ₽/мес

Окупаемость: 11 лет

Готовый арендный бизнес на 1 линии домов в Северном Тушино. Интенсивный пешеходный и автомобильный трафик. Окружение — супермаркеты...

25 900 000 ₽

1 619 000 ₽ за м²

Новинка
lot-15593
lot-15593
lot-15593
lot-15593
lot-15593
5
Помещение под сувениры, 74 м²

Продажа | Лот 16160

Москва село Перхушково, микрорайон Равновесие, 5

Площадь: 74 м²

Назначение: Торговое помещение под  магазин аптека бижутерия сувениры

Арендаторы: аптека Здравсити, водомат «ЖиваяВода»

Доходность: 9%, 181 000 ₽/мес

Окупаемость: 12 лет

Готовый арендный бизнес в микрорайоне Равновесие в селе Перхушково. Объект находится у въезда в жилой комплекс комфорт-класса «Равновесие»...

26 000 000 ₽

351 000 ₽ за м²

Новинка
lot-14256
lot-14256
2
Помещение под сувениры, 79 м²

Продажа | Лот 19054

Москва 3-я Нововатутинская, 15с3

Площадь: 79 м²

Назначение: Торговое помещение под  магазин алко-маркет бижутерия сувениры

Арендаторы: красное белое

Доходность: 7%, 143 000 ₽/мес

Окупаемость: 15 лет

Готовый арендный бизнес в Троицке. Жилой развивающийся район, обеспечен интенсивный автомобильный и пешеходный трафик. Окружение...

25 700 000 ₽

325 000 ₽ за м²

Новинка
lot-11378
lot-11378
lot-11378
lot-11378
4
Помещение под сувениры, 31 м²

Продажа | Лот 13800

Бабушкинская 1 мин

Москва Менжинского, 32с3

Площадь: 31 м²

Назначение: Торговое помещение под  магазин общепит фаст-фуд бижутерия сувениры

Арендаторы: Suреr Dоnеr

Доходность: 8%, 192 000 ₽/мес

Окупаемость: 13 лет

Готовый арендный бизнес в Бабушкинском районе. Оживлённый поток пешеходного и автомобильного трафика. Окружение — торговые центры...

30 000 000 ₽

968 000 ₽ за м²

Новинка
lot-15383
lot-15383
lot-15383
3
Помещение под сувениры, 31 м²

Продажа | Лот 42035

Вавиловская 1 мин

Москва Ленинский проспект, 79

Коммерческое помещение в Гагаринском районе. Объект расположен на первой линии улицы Панфёрова, обеспечен интенсивный автомобильный...

46 000 000 ₽

1 484 000 ₽ за м²

Новинка
lot-12785
lot-12785
lot-12785
lot-12785
lot-12785
lot-12785
6
Помещение под сувениры, 30 м²

Продажа | Лот 16349

Павелецкая 1 мин

Москва Кожевническая, 4

Площадь: 30 м²

Назначение: Торговое помещение под  магазин бижутерия сувениры

Доходность: 8%, 876 000 ₽/мес

Окупаемость: 12 лет

Готовый арендный бизнес в Замоскворечье. Объект располагается на 1 линии Кожевнической улицы, что обеспечивает интенсивный автомобильный...

126 150 000 ₽

4 205 000 ₽ за м²

Позвонить эксперту whatsapp telegram
Каширская
Академический
ЦАО
Академический