Помещение на Ленинградском проспекте, 44 м², лот - 51237

Продажа | Лот 51237

Image 0
Image 1
Image 2
Image 3
4
Image 0 Image 1 Image 2 Image 3

Продажа

Аренда

66000000 RUB

66 000 000 ₽

1 500 000 ₽ за м²

Метро:
Сокол :
pedestrian  1 минута пешком
Район/округ: Сокол / САО
Адрес: Ленинградский проспект, 71сГ
Площадь: 44 м²
Назначение: магазин свободное кофейня шоурум аптека бижутерия бизнес сувениры
Высота потолков: 3 метра
Отделка: С отделкой
Парковка: городская платная парковка на соседних улицах
Линия: Первая
Тип входа: Отдельный с улицы
Витрины есть

Коммерческое угловое помещение на первой линии Ленинградского проспекта в районе Сокол. Интенсивный пешеходный и автомобильный трафик, рядом остановка общественного транспорта и подземный переход. Окружение — супермаркет «Азбука Daily», «Россельхозбанк», салон красоты «Пальчики». В минуте ходьбы находится станция метро «Сокол».

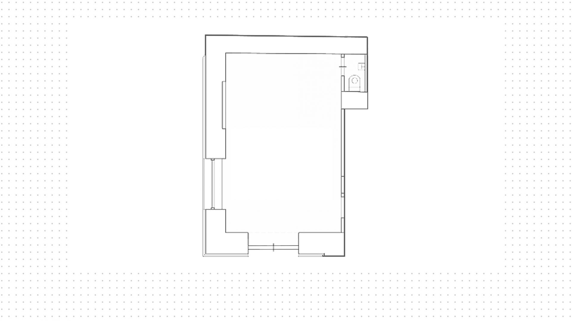
Объект с открытой планировкой площадью 44 м² расположен на первом этаже в жилом доме. В помещении проведены все инженерные коммуникации, подойдёт под размещение кофейни, аптеки или барбершопа. Отдельный вход с улицы, витринное остекление, спланировано место для рекламы на фасаде. Городская платная парковка предусмотрена на соседних улицах.

Продажа

Аренда

66 000 000 ₽

1 500 000 ₽ за м²

Метро:
Сокол :
pedestrian  1 минута пешком
Район/округ: Сокол / САО
Адрес: Ленинградский проспект, 71сГ
Площадь: 44 м²
Назначение: магазин свободное кофейня шоурум аптека бижутерия бизнес сувениры
Высота потолков: 3 метра
Отделка: С отделкой
Парковка: городская платная парковка на соседних улицах
Линия: Первая
Тип входа: Отдельный с улицы
Витрины есть
expert

Александр

Руководитель проекта

Для уточнения и фиксирования цены можно связаться напрямую с брокером

+7 (495) 106-19-99

Расположение на карте

Похожие лоты

Мы включили в наш каталог лучшие предложения по коммерческой недвижимости в Москве.

lot-1578
lot-1578
lot-1578
lot-1578
4
Готовый арендный бизнес в 5 минутах от метро «Сходненская»

Продажа | Лот 547

Сходненская 5 мин

Москва Сходненская, 44/17

Коммерческое помещение на первой линии улицы Сходненская в Южном Тушино. Большой поток пешеходного и автомобильного трафика, рядом...

66 000 000 ₽

455 000 ₽ за м²

Новинка
lot-14603
lot-14603
lot-14603
3
Помещение под сувениры, 79 м²

Продажа | Лот 14579

Москва набережная Марка Шагала, 15с2

Коммерческое угловое помещение на 1-й линии набережной Марка Шагала в Даниловском районе. Объект находится в жилом комплексе бизнес-класса...

66 000 000 ₽

835 000 ₽ за м²

Новинка
lot-6820
lot-6820
lot-6820
lot-6820
lot-6820
lot-6820
lot-6820
7
Помещение под сувениры, 158 м²

Продажа | Лот 8574

Щелковская 5 мин

Москва Щёлковское шоссе, 48с3

Площадь: 158 м²

Назначение: Торговое помещение под  клиника стоматология спортзал

Здание на Щёлковском шоссе в Северном Измайлово. У объекта большой поток пешеходного и автомобильного трафика, рядом остановка общественного...

65 920 000 ₽

417 000 ₽ за м²

Новинка
lot-15918
lot-15918
lot-15918
lot-15918
4
Помещение под сувениры, 44 м²

Продажа | Лот 40396

Москва Тагильская, 6/5

Коммерческое помещение на 1 линии в Метрогородке. Развивающийся район, рядом строятся жилые комплексы «Сиреневый Парк», «Лосиноостровский...

31 500 000 ₽

716 000 ₽ за м²

Новинка
lot-12732
lot-12732
lot-12732
3
Помещение под сувениры, 44 м²

Продажа | Лот 16283

Братиславская 6 мин

Москва Братиславская, 15с1

Коммерческое помещение на 1 линии домов в Марьино. Обеспечен интенсивный автомобильный и пешеходный трафик. Окружение — аптека «Ригла»,...

35 640 000 ₽

810 000 ₽ за м²

Новинка
lot-12719
lot-12719
lot-12719
3
Помещение под сувениры, 44 м²

Продажа | Лот 16247

Академическая 5 мин

Москва Дмитрия Ульянова, 10/1с1

Коммерческое помещение в Академическом районе. Объект располагается на 1 линии улицы Дмитрия Ульянова, что обеспечивает интенсивный...

36 540 000 ₽

830 000 ₽ за м²

Позвонить эксперту max whatsapp telegram
Каширская
Академический
ЦАО
Академический