Помещение на Ленинградском проспекте, 17 м², лот - 29421

Продажа | Лот 29421

Image 0
Image 1
Image 2
3
Image 0 Image 1 Image 2

Продажа

Аренда

52000000 RUB

52 000 000 ₽

3 059 000 ₽ за м²

Метро:
Динамо :
pedestrian  3 минуты пешком
Район/округ: Беговой / САО
Адрес: Ленинградский проспект, 33с3
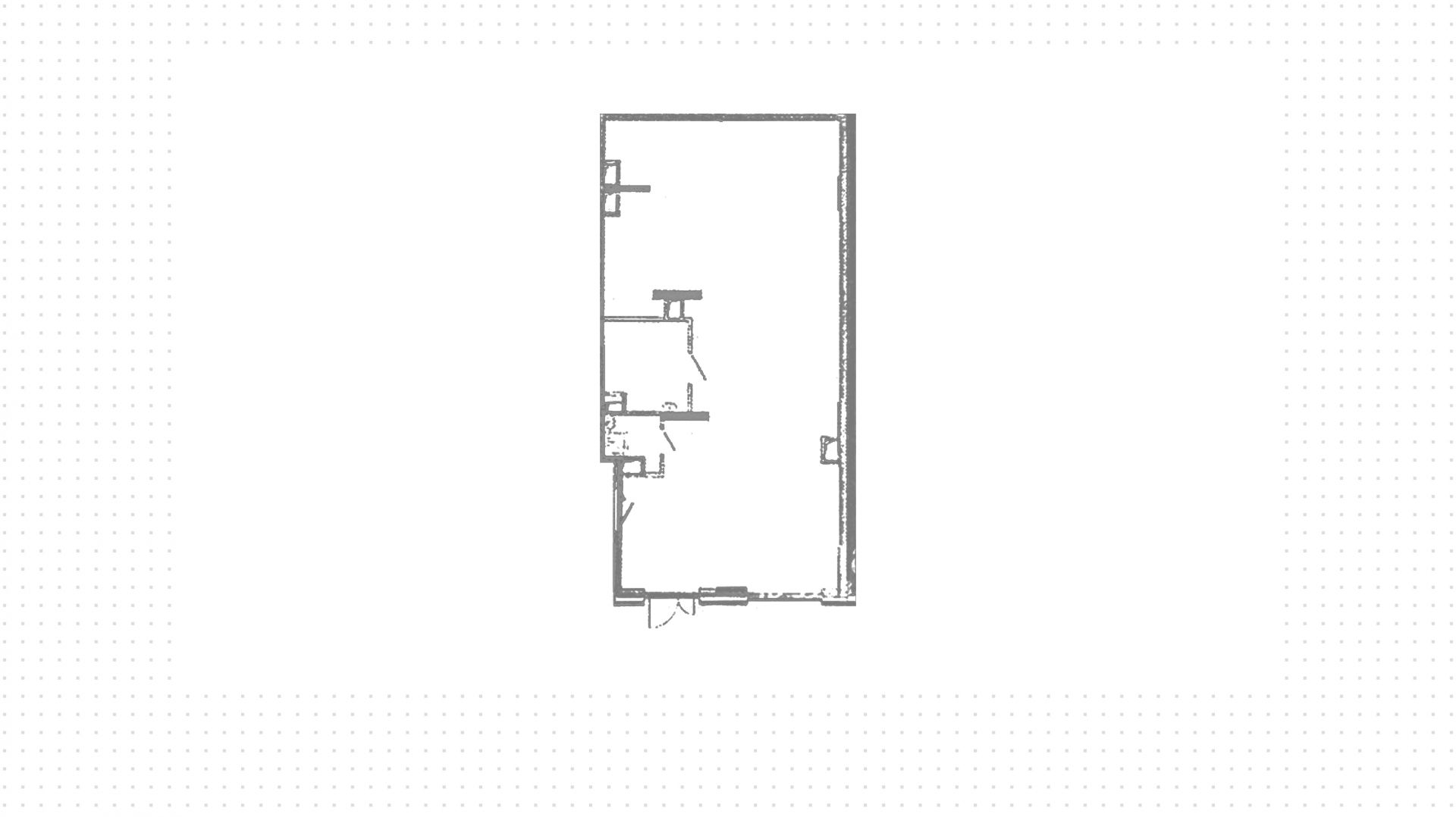
Площадь: 17 м²
Назначение: фаст-фуд магазин свободное кофе с собой цветы бижутерия бизнес сувениры микрокредит
Высота потолков: 3.4 метра
Отделка: С отделкой
Парковка: городская платная парковка на соседних улицах
Электрическая мощность (кВт): 17
Линия: Первая
Тип входа: Отдельный с улицы
Витрины есть

Коммерческое помещение на первой линии Ленинградского проспекта в Беговом районе. Интенсивный пешеходный и автомобильный трафик, рядом остановка общественного транспорта и подземный переход в сторону стадиона «ВТБ Арена» с торговым центром «Арена Плаза». За 3 минуты можно пешком дойти до станции метро «Динамо».

Объект с открытой планировкой площадью 17 м² расположен на первом этаже в жилом доме. Ритейл подойдёт под размещение фаст-фуда, магазина табака или цветов, кофейни. Проведены центральные коммуникации, высота потолков — 3,4 метра. Отдельный вход с улицы, витринное остекление, предусмотрено место для рекламы на фасаде. Городская платная парковка находится на соседних улицах.

Продажа

Аренда

52 000 000 ₽

3 059 000 ₽ за м²

Метро:
Динамо :
pedestrian  3 минуты пешком
Район/округ: Беговой / САО
Адрес: Ленинградский проспект, 33с3
Площадь: 17 м²
Назначение: фаст-фуд магазин свободное кофе с собой цветы бижутерия бизнес сувениры микрокредит
Высота потолков: 3.4 метра
Отделка: С отделкой
Парковка: городская платная парковка на соседних улицах
Электрическая мощность (кВт): 17
Линия: Первая
Тип входа: Отдельный с улицы
Витрины есть
expert

Артём

Эксперт

Для уточнения и фиксирования цены можно связаться напрямую с брокером

+7 (495) 106-19-99

Расположение на карте

Похожие лоты

Мы включили в наш каталог лучшие предложения по коммерческой недвижимости в Москве.

Новинка
lot-14520
lot-14520
lot-14520
3
Помещение под микрокредит, 172 м²

Продажа | Лот 28911

Москва Апрелевка, Ясная, 1с2

Площадь: 172 м²

Назначение: Торговое помещение под  магазин бижутерия сувениры

Арендаторы: Магнит Косметик

Доходность: 7%, 310 000 ₽/мес

Окупаемость: 14 лет

Готовый арендный бизнес на 1-й линии Жасминовой улицы в Апрелевке. Объект находится у въезда в жилой комплекс «Весна» на 6 400 квартир,...

52 000 000 ₽

302 000 ₽ за м²

Новинка
lot-14374
lot-14374
lot-14374
lot-14374
lot-14374
lot-14374
lot-14374
7
Помещение под микрокредит, 102 м²

Продажа | Лот 14048

Москва Тагильская, 2с1

Площадь: 102 м²

Назначение: Торговое помещение под  магазин бижутерия сувениры

Доходность: 6%, 271 000 ₽/мес

Окупаемость: 16 лет

Готовый арендный бизнес на 1-й линии домов в Метрогородке. Развивающийся район, рядом строятся 3 жилых комплекса, интенсивный поток...

52 000 000 ₽

510 000 ₽ за м²

Новинка
lot-12432
lot-12432
lot-12432
3
Помещение под микрокредит, 156 м²

Продажа | Лот 15740

Москва Путилково, Вольная, 3

Площадь: 156 м²

Назначение: Торговое помещение под  пункт выдачи

Доходность: 7%, 289 000 ₽/мес

Окупаемость: 15 лет

Готовый арендный бизнес на первой линии Вольной улицы в Путилково. Объект находится у прогулочного бульвара, который соединяет жилые...

52 000 000 ₽

333 000 ₽ за м²

Новинка
lot-12115
lot-12115
lot-12115
lot-12115
4
Помещение под микрокредит, 17 м²

Продажа | Лот 10699

Орехово 1 мин

Москва Шипиловский проезд, 39с3

Площадь: 17 м²

Назначение: Торговое помещение под  банк

Доходность: 10%, 242 000 ₽/мес

Окупаемость: 10 лет

Готовый арендный бизнес на первой линии Шипиловского проезда в районе Орехово-Борисово Северное. Интенсивный поток пешеходного и автомобильного...

29 000 000 ₽

1 706 000 ₽ за м²

Новинка
lot-14666
lot-14666
lot-14666
lot-14666
lot-14666
5
Помещение под микрокредит, 17 м²

Продажа | Лот 30380

Марьина Роща 2 мин

Москва Сущёвский Вал, 53

Площадь: 17 м²

Назначение: Торговое помещение под  магазин кофейня бижутерия сувениры

Арендаторы: one price coffee

Доходность: 8%, 250 000 ₽/мес

Окупаемость: 12 лет

Готовый арендный бизнес в Марьиной роще. Объект располагается на 1-й линии улицы Сущёвский Вал, обеспечен интенсивный автомобильный...

36 000 000 ₽

2 118 000 ₽ за м²

Новинка
lot-12702
lot-12702
lot-12702
lot-12702
lot-12702
5
Помещение под микрокредит, 17 м²

Продажа | Лот 16218

Молодежная 1 мин

Москва Ярцевская, 27с1

Площадь: 17 м²

Назначение: Торговое помещение под  магазин бижутерия сувениры

Доходность: 8%, 260 000 ₽/мес

Окупаемость: 12 лет

Готовый арендный бизнес в Кунцево. Объект располагается на 1-й линии Ярцевской улицы, что обеспечивает интенсивный автомобильный...

37 440 000 ₽

2 202 000 ₽ за м²

Вы уже смотрели

Продажа | Лот 15166

41 526 000 ₽
Посмотреть все лоты
Позвонить эксперту whatsapp telegram
Каширская
Академический
ЦАО
Академический