Арендный бизнес на Ефремова, 481 м², лот - 11849

Продажа | Лот 11849

Image 0
Image 1
Image 2
Image 3
Image 4
Image 5
Image 6
Image 7
Image 8
9
Image 0 Image 1 Image 2 Image 3 Image 4 Image 5 Image 6 Image 7 Image 8
803000000 RUB

803 000 000 ₽

1 669 000 ₽ за м²

МАП: 4 500 000 ₽
ГАП: 54 000 000 ₽
Окупаемость:
15 лет
Доходность:
7%
Метро:
Спортивная :
pedestrian  8 минут пешком
Фрунзенская :
pedestrian  7 минут пешком
Район/округ: Хамовники / ЦАО
Адрес: Ефремова, 10с1
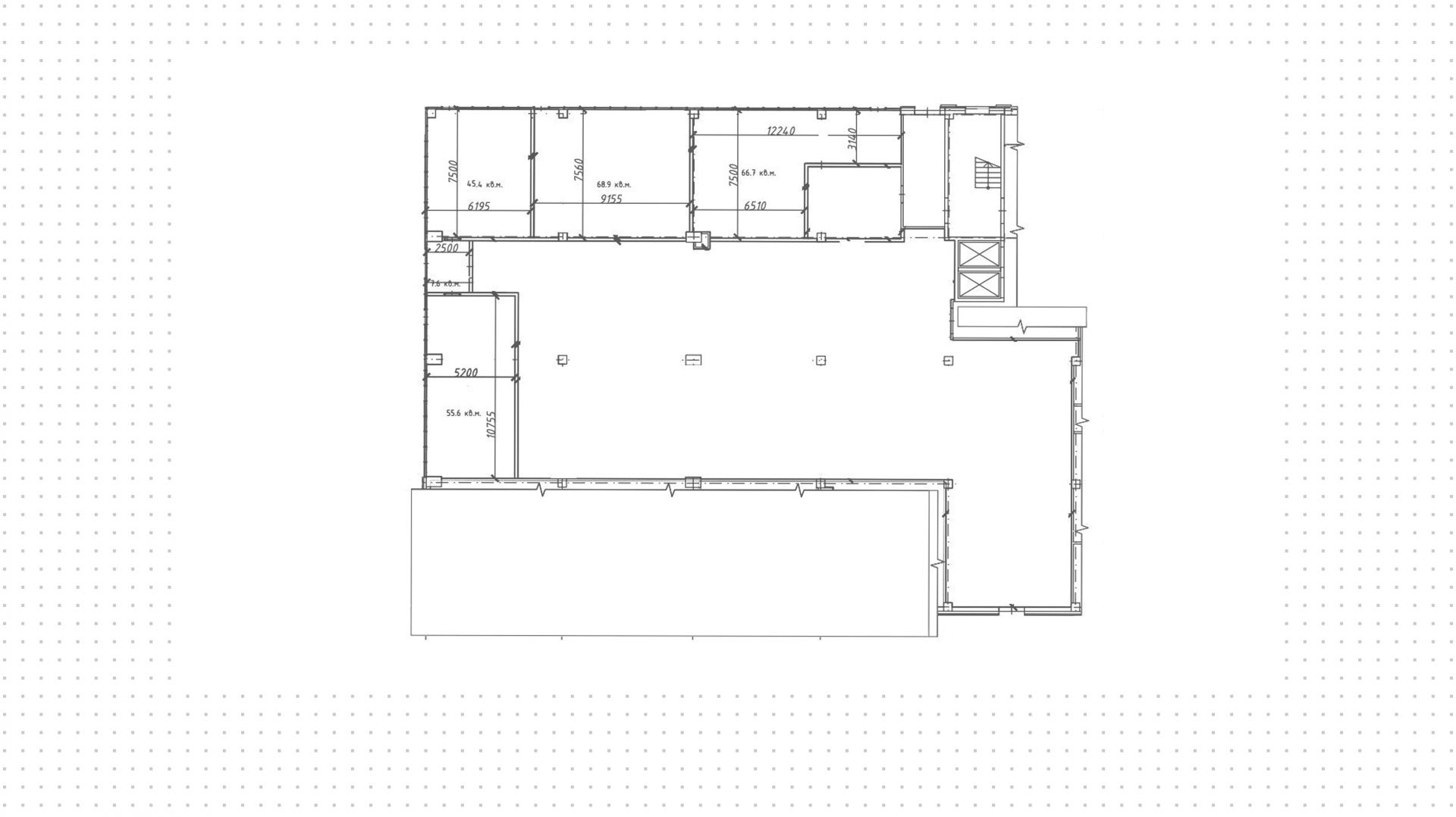
Площадь: 481 м²
Назначение: магазин супермаркет бижутерия сувениры
Высота потолков: 4 метра
Отделка: С отделкой
Парковка: на территории комплекса для жителей
Электрическая мощность (кВт): 100
Зона разгрузки: Есть
Тип входа: Отдельный со двора
Витрины есть

Готовый арендный бизнес в районе Хамовники. Жилой развитый район, большой поток пешеходного и автомобильного трафика. Окружение — «Главхимчистка», фитнес-клуб World Class, ресторан «Вадваре», бар Greenside. За 7 минут пешком можно дойти до станции метро «Спортивная», за 8 минут — до станции «Фрунзенская».

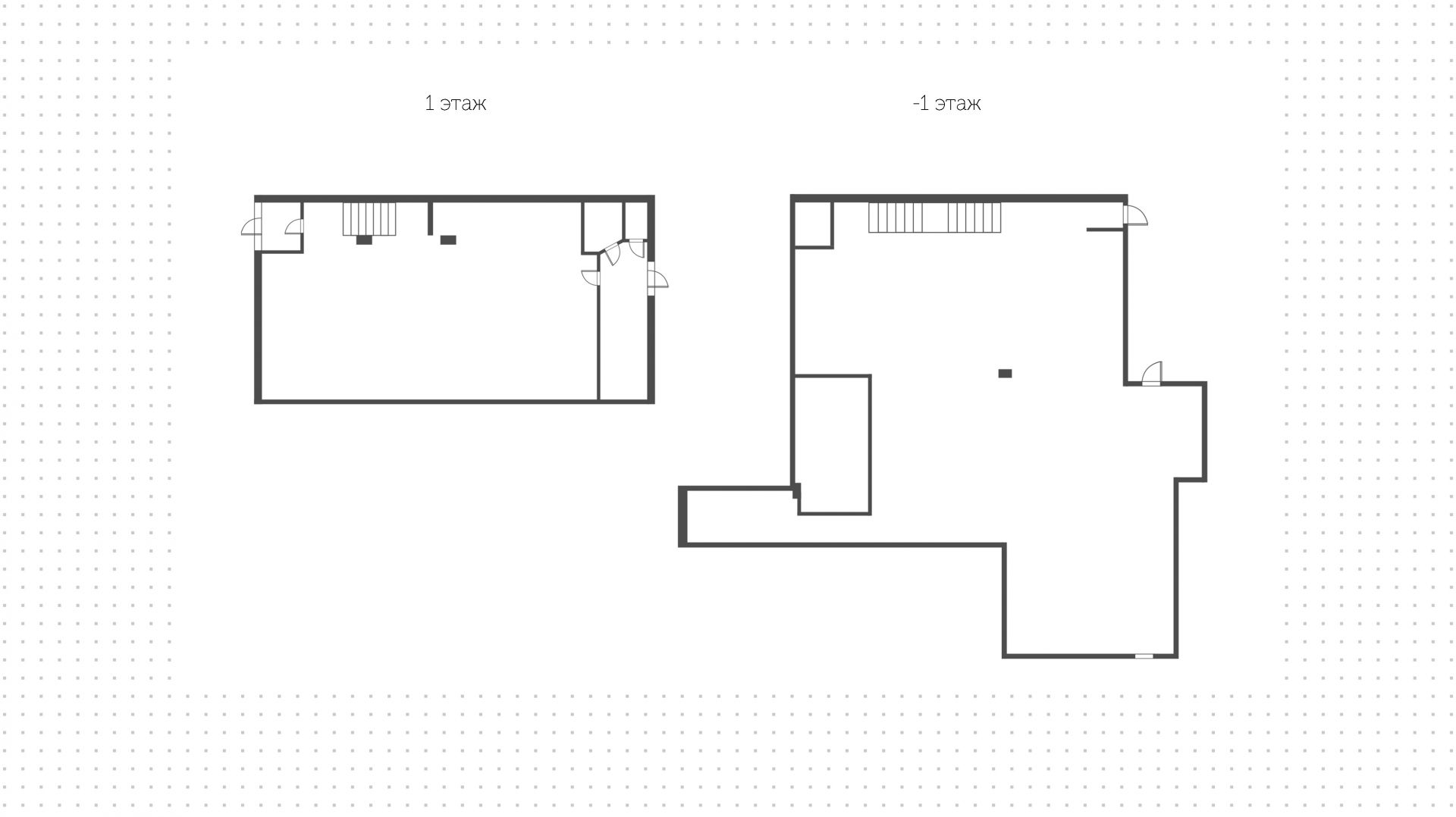
Объект с открытой планировкой площадью 481 м² расположен на 1-м и -1-м этажах в стилобате жилого комплекса «Садовые кварталы». Площадь 1-го этажа — 134 м², -1-го этажа — 347 м². Арендатор — супермаркет «Магнит», установлена вытяжка. Отдельные входы с улицы и со двора, витринное остекление, спланирована зона разгрузки. На территории квартала для жителей организована парковка.

803 000 000 ₽

1 669 000 ₽ за м²

МАП: 4 500 000 ₽
ГАП: 54 000 000 ₽
Окупаемость:
15 лет
Доходность:
7%
Метро:
Спортивная :
pedestrian  8 минут пешком
Фрунзенская :
pedestrian  7 минут пешком
Район/округ: Хамовники / ЦАО
Адрес: Ефремова, 10с1
Площадь: 481 м²
Назначение: магазин супермаркет бижутерия сувениры
Высота потолков: 4 метра
Отделка: С отделкой
Парковка: на территории комплекса для жителей
Электрическая мощность (кВт): 100
Зона разгрузки: Есть
Тип входа: Отдельный со двора
Витрины есть
expert

Елена

Эксперт проекта

Для уточнения и фиксирования цены можно связаться напрямую с брокером

+7 (495) 106-19-99

Расположение на карте

Назначения
Похожие лоты

Мы включили в наш каталог лучшие предложения по коммерческой недвижимости в Москве.

Новинка
lot-13516
lot-13516
2
Помещение под сувениры, 1639 м²

Продажа | Лот 16524

Площадь Ильича 9 мин Римская 9 мин

Москва Золоторожский Вал, 11/1

Площадь: 1 639 м²

Назначение: Торговое помещение под  офис рабочее место

Офис в комплексе Stone Римская. Офис площадью 1639 м² расположен на 23 этаже из 23, без отделки. Окна: панорамные, возможность естественного...

804 847 000 ₽

491 000 ₽ за м²

Новинка
lot-6949
lot-6949
2
Просторный офис в бизнес-центре у метро Савёловская

Продажа | Лот 7838

Савеловская 10 мин

Москва Двинцев, 3

Площадь: 1 531 м²

Назначение: Торговое помещение под  офис рабочее место

818 925 000 ₽

535 000 ₽ за м²

Новинка
lot-12610
lot-12610
lot-12610
lot-12610
lot-12610
lot-12610
lot-12610
lot-12610
lot-12610
lot-12610
10
Помещение под сувениры, 3364 м²

Продажа | Лот 16073

Москва Лобненская, 14

Здание на 1-й линии домов, на пересечении улиц Лобненская и Ижорская, в Дмитровском районе. Интенсивный пешеходный и автомобильный...

800 000 000 ₽

238 000 ₽ за м²

Новинка
lot-13850
lot-13850
lot-13850
lot-13850
lot-13850
lot-13850
lot-13850
lot-13850
lot-13850
lot-13850
lot-13850
11
Помещение под сувениры, 481 м²

Продажа | Лот 2346

Щукинская 7 мин

Москва Маршала Василевского, 5с1

Площадь: 481 м²

Назначение: Торговое помещение под  магазин супермаркет бижутерия сувениры

Арендаторы: кофейня Dabro Coffee, пекарня «Булки», магазины с овощами и фруктами, сухофруктами, пивом, рыбой, кондитерскими изделиями, молочной продукцией, мясом, табаком

Доходность: 10%, 947 000 ₽/мес

Окупаемость: 11 лет

Готовый арендный бизнес на первой линии улицы Маршала Василевского в Щукино. Жилой район, близость Щукинского парка и остановки общественного...

125 000 000 ₽

260 000 ₽ за м²

Новинка
lot-4878
lot-4878
lot-4878
lot-4878
lot-4878
lot-4878
lot-4878
lot-4878
lot-4878
lot-4878
10
Готовый арендный бизнес в 10 минутах от метро «Молодёжная»

Продажа | Лот 7472

Молодежная 10 мин

Москва Академика Павлова, 50

Площадь: 484 м²

Назначение: Торговое помещение под  магазин свободное пункт выдачи цветы бижутерия бизнес сувениры микрокредит

Арендаторы: пункты выдачи Wildberries, Ozon, кафе, доставка продуктов «Яндекс Лавка», магазины цветов, табака

Доходность: 9%, 672 000 ₽/мес

Окупаемость: 12 лет

Готовый арендный бизнес на улице Академика Павлова в районе Кунцево. Жилой развивающийся район, большой поток пешеходного и автомобильного...

96 820 000 ₽

200 000 ₽ за м²

Новинка
lot-12763
lot-12763
lot-12763
lot-12763
lot-12763
lot-12763
6
Помещение под сувениры, 480 м²

Продажа | Лот 16325

Кусково 7 мин

Москва Новотетёрки, 8

Площадь: 480 м²

Назначение: Торговое помещение под  магазин супермаркет бижутерия сувениры

Арендаторы: пятерочка

Доходность: 10%, 1 117 000 ₽/мес

Окупаемость: 10 лет

Готовый арендный бизнес в Новогиреево. Объект располагается на 1-й линии домов, что обеспечивает интенсивный пешеходный и автомобильный...

134 000 000 ₽

279 000 ₽ за м²

Позвонить эксперту whatsapp telegram
Каширская
Академический
ЦАО
Академический