Арендный бизнес на Дорожной, 222 м², лот - 34638

Продажа | Лот 34638

Image 0
Image 1
Image 2
Image 3
4
Image 0 Image 1 Image 2 Image 3
77000000 RUB

77 000 000 ₽

347 000 ₽ за м²

Арендаторы: дикси
МАП: 556 000 ₽
ГАП: 6 672 000 ₽
Окупаемость:
12 лет
Доходность:
9%
Метро:
Красный Строитель :
pedestrian  5 минут пешком
Адрес: Дорожная, 46с2
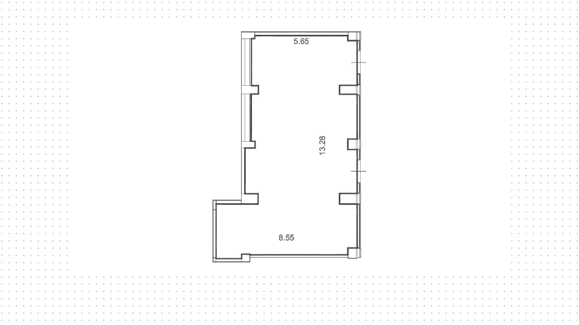
Площадь: 222 м²
Назначение: магазин супермаркет бижутерия сувениры
Высота потолков: 4.3 метра
Отделка: С отделкой
Парковка: бесплатная парковка перед зданием, наземная многоуровневая и подземная парковки комплекса
Электрическая мощность (кВт): 45
Зона разгрузки: Есть
Тип входа: Отдельный со двора
Витрины есть

Готовый арендный бизнес в Южном Чертаново. Жилой развивающийся район, обеспечен интенсивный автомобильный и пешеходный трафик. Окружение — барбершоп «Чёрная Кость», кафе «Миларичи», алкомаркет «Винлаб», «Здесь аптека». За 5 минут пешком можно дойти до железнодорожной станции «Красный Строитель».

Объект с открытой планировкой площадью 222 м² расположен на первом этаже на углу дома в жилом комплексе «Ютаново». Арендатор — супермаркет «Дикси». В помещении с витринным остеклением организовано два отдельных входа — с улицы и со двора, спланирована зона разгрузки. Перед зданием находится бесплатная парковка, а на территории комплекса спланированы наземная многоуровневая и подземная парковки.

77 000 000 ₽

347 000 ₽ за м²

Арендаторы: дикси
МАП: 556 000 ₽
ГАП: 6 672 000 ₽
Окупаемость:
12 лет
Доходность:
9%
Метро:
Красный Строитель :
pedestrian  5 минут пешком
Адрес: Дорожная, 46с2
Площадь: 222 м²
Назначение: магазин супермаркет бижутерия сувениры
Высота потолков: 4.3 метра
Отделка: С отделкой
Парковка: бесплатная парковка перед зданием, наземная многоуровневая и подземная парковки комплекса
Электрическая мощность (кВт): 45
Зона разгрузки: Есть
Тип входа: Отдельный со двора
Витрины есть
expert

Артём

Эксперт

Для уточнения и фиксирования цены можно связаться напрямую с брокером

+7 (495) 106-19-99

Расположение на карте

Назначения
Похожие лоты

Мы включили в наш каталог лучшие предложения по коммерческой недвижимости в Москве.

Новинка
lot-14633
lot-14633
lot-14633
lot-14633
lot-14633
lot-14633
lot-14633
7
Помещение под сувениры, 106 м²

Продажа | Лот 29997

Москва Генерала Белова, 9

Площадь: 106 м²

Назначение: Торговое помещение под  магазин пекарня пункт выдачи бижутерия сувениры

Арендаторы: Озон Табак Пекарня

Доходность: 8%, 535 000 ₽/мес

Окупаемость: 12 лет

Готовый арендный бизнес на 1-й линии улицы Генерала Белова в Северном Орехово-Борисово. Близость Московского финансово-юридического...

77 000 000 ₽

726 000 ₽ за м²

Новинка
lot-14002
lot-14002
lot-14002
lot-14002
lot-14002
5
Помещение под сувениры, 156 м²

Продажа | Лот 11242

Автозаводская 9 мин

Москва Восточная, 9

Площадь: 156 м²

Назначение: Торговое помещение под  офис магазин кафе общепит бижутерия рабочее место сувениры

Арендаторы: кафе «Конструктор», оптовый офис

Доходность: 7%, 428 000 ₽/мес

Окупаемость: 15 лет

Готовый арендный бизнес на 1-й линии 1-го Восточного переулка в Даниловском районе. Благодаря близости к торговому центру Roomer вдоль...

77 000 000 ₽

494 000 ₽ за м²

Новинка
lot-12609
lot-12609
lot-12609
lot-12609
lot-12609
lot-12609
lot-12609
7
Помещение под сувениры, 138 м²

Продажа | Лот 16072

Щелковская 10 мин

Москва Сиреневый бульвар, 33

Площадь: 138 м²

Назначение: Торговое помещение под  магазин бижутерия сувениры аптека

Доходность: 9%, 583 000 ₽/мес

Окупаемость: 11 лет

Готовый арендный бизнес на первой линии Сиреневого бульвара в Северном Измайлово. Близость школы и остановки общественного транспорта...

77 000 000 ₽

558 000 ₽ за м²

Новинка
lot-14074
lot-14074
lot-14074
lot-14074
lot-14074
lot-14074
6
Помещение под сувениры, 222 м²

Аренда | Лот 18619

Фрунзенская 3 мин

Москва Комсомольский проспект, 27с5

Коммерческое помещение на 1-й линии Комсомольского проспекта в Хамовниках. Возле объекта строится жилой комплекс «Фрунзенская набережная»,...

1 700 000 ₽ / месяц

92 000 ₽ за м² / год

Новинка
lot-15232
lot-15232
2
Помещение под сувениры, 222 м²

Продажа | Лот 14336

Прокшино 1 мин

Москва поселение Сосенское, квартал № 35

Площадь: 222 м²

Назначение: Торговое помещение под  офис рабочее место

Офис в комплексе Бизнес-квартал Прокшино. Офис площадью 222 м² расположен на 7 этаже из 12, без отделки. Окна: панорамные, Энергоэффективное...

61 904 000 ₽

279 000 ₽ за м²

Новинка
lot-15692
lot-15692
2
Помещение под сувениры, 221 м²

Продажа | Лот 44748

Москва Нижние Мнёвники, 39/41

Площадь: 221 м²

110 942 000 ₽

502 000 ₽ за м²

Позвонить эксперту whatsapp telegram
Каширская
Академический
ЦАО
Академический