Арендный бизнес на 6-й Нововатутинской, 172 м², лот - 11615

Продажа | Лот 11615

Image 0
Image 1
Image 2
Image 3
Image 4
Image 5
Image 6
7
Image 0 Image 1 Image 2 Image 3 Image 4 Image 5 Image 6
47000000 RUB

47 000 000 ₽

273 000 ₽ за м²

Арендаторы: химчитска Диана Инвитро Салон Красоты
МАП: 340 000 ₽
ГАП: 4 080 000 ₽
Окупаемость:
12 лет
Доходность:
9%
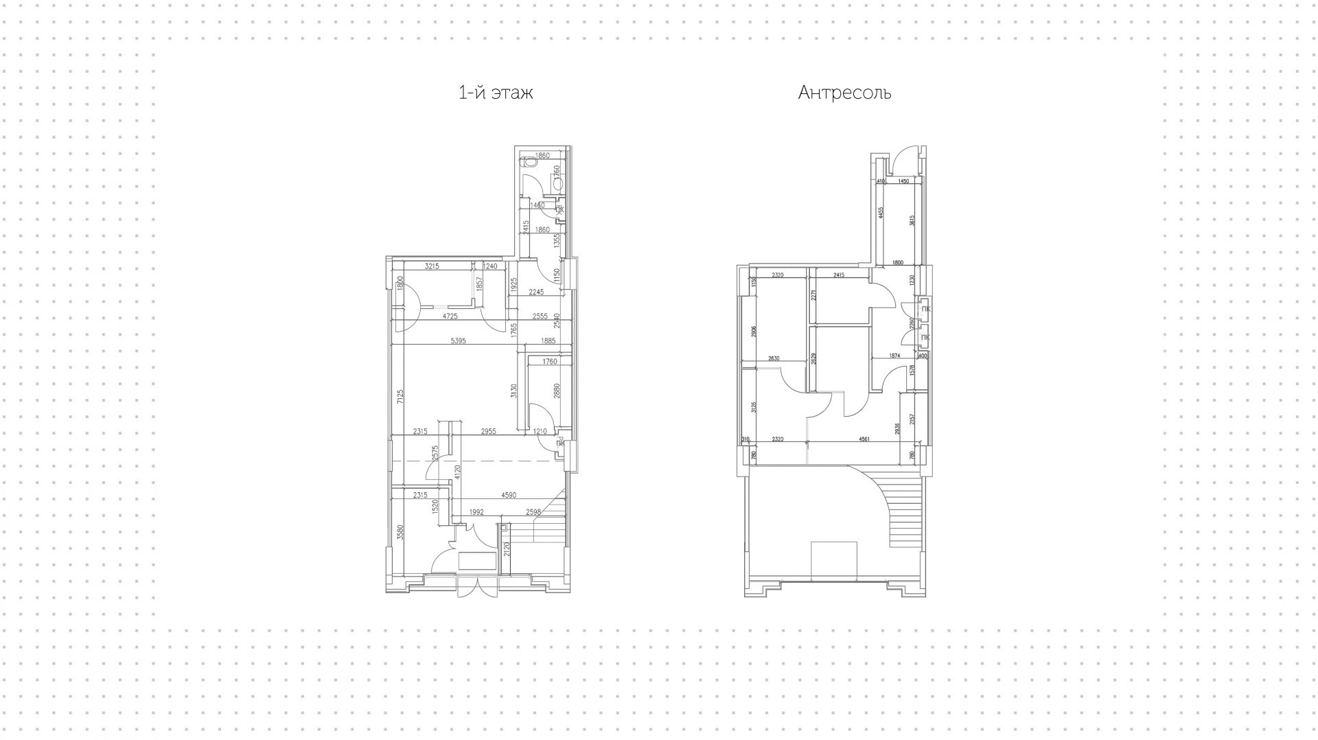
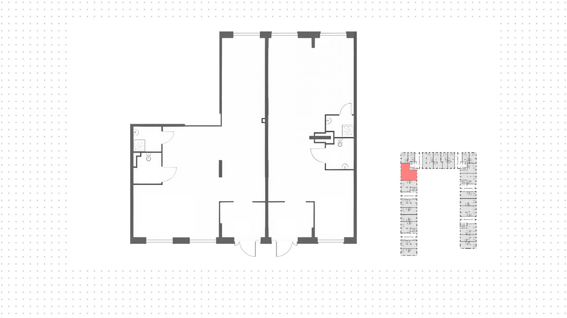
Адрес: 6-я Нововатутинская, 1
Площадь: 172 м²
Назначение: магазин салон красоты лаборатория бижутерия парикмахерская сувениры
Высота потолков: 3 метра
Отделка: С отделкой
Парковка: перед фасадом
Линия: Первая
Тип входа: Отдельный с улицы
Витрины есть

Готовый арендный бизнес на 1-й линии 6-й Нововатутинской улицы в Десёновском поселении. Жилой развивающийся район, интенсивный пешеходный и автомобильный трафик обеспечивает близость остановки общественного транспорта и выезд на Калужское шоссе. Окружение — торговый центр «Нововатутинский», кафе «Плов», «Суши Wok», продуктовые магазины.

Помещение с открытой планировкой площадью 172 м² расположено на 1-м этаже в жилом комплексе «Новые Ватутинки». Арендаторы — лаборатория INVITRO, химчистка «Диана» и салон красоты. Отдельный вход с улицы, витринное остекление. Предусмотрено место для размещения рекламы на фасаде. Вдоль дома организована парковка.

47 000 000 ₽

273 000 ₽ за м²

Арендаторы: химчитска Диана Инвитро Салон Красоты
МАП: 340 000 ₽
ГАП: 4 080 000 ₽
Окупаемость:
12 лет
Доходность:
9%
Адрес: 6-я Нововатутинская, 1
Площадь: 172 м²
Назначение: магазин салон красоты лаборатория бижутерия парикмахерская сувениры
Высота потолков: 3 метра
Отделка: С отделкой
Парковка: перед фасадом
Линия: Первая
Тип входа: Отдельный с улицы
Витрины есть
expert

Елена

Эксперт проекта

Для уточнения и фиксирования цены можно связаться напрямую с брокером

+7 (495) 106-19-99

Расположение на карте

Назначения
Похожие лоты

Мы включили в наш каталог лучшие предложения по коммерческой недвижимости в Москве.

Новинка
lot-14924
lot-14924
lot-14924
3
Помещение под сувениры, 93 м²

Продажа | Лот 33872

Перерва 6 мин

Москва Иловайская, 2

Площадь: 93 м²

Назначение: Торговое помещение под  магазин пункт выдачи бижутерия сувениры

Арендаторы: сетевой мульти ПВЗ (Ozon, Wildberries, Яндекс).

Доходность: 9%, 326 000 ₽/мес

Окупаемость: 12 лет

Готовый арендный бизнес в Люблино. Жилой развивающийся район, обеспечен интенсивный автомобильный и пешеходный трафик. Окружение...

47 000 000 ₽

505 000 ₽ за м²

Новинка
lot-14106
lot-14106
lot-14106
lot-14106
lot-14106
lot-14106
6
Помещение под сувениры, 80 м²

Продажа | Лот 18674

Воронцовская 8 мин Калужская 9 мин

Москва Архитектора Власова, 71с2

Коммерческое помещение в Обручевском районе. Жилой район, обеспечен интенсивный автомобильный и пешеходный трафик. Окружение — кофейня...

47 000 000 ₽

588 000 ₽ за м²

Новинка
lot-15964
lot-15964
2
Помещение под сувениры, 71 м²

Продажа | Лот 15534

Москва поселение Сосенское, квартал № 35

Площадь: 71 м²

Ритейл в комплексе Бизнес-квартал Прокшино. Ритейл площадью 71 м² расположен на 1 этаже из 12, без отделки. Окна: панорамные, Энергоэффективное...

46 883 000 ₽

660 000 ₽ за м²

Новинка
lot-12685
lot-12685
lot-12685
3
Помещение под сувениры, 172 м²

Аренда | Лот 16179

Павелецкая 3 мин

Москва Павелецкая площадь, 2с3

Коммерческое помещение на 1-й линии Дубининской улицы в Замоскворечье. Близость Павелецкого парка, Павелецкого вокзала и остановки...

2 146 000 ₽ / месяц

150 000 ₽ за м² / год

Новинка
lot-15831
lot-15831
lot-15831
lot-15831
lot-15831
5
Помещение под сувениры, 172 м²

Продажа | Лот 45538

Москва Домодедово, Высотная, с13

Площадь: 172 м²

Назначение: Торговое помещение под  спортзал

Арендаторы: xfit

Доходность: 9%, 334 000 ₽/мес

Окупаемость: 12 лет

Готовый арендный бизнес в Домодедово. Развивающийся район с потенциальным населением около 60 000 человек. Объект находится возле въезда...

48 150 000 ₽

280 000 ₽ за м²

Новинка
lot-14284
lot-14284
lot-14284
3
Помещение под сувениры, 171 м²

Продажа | Лот 19157

Селигерская 2 мин

Москва Дмитровское шоссе, 89

Коммерческое помещение на 1-й линии Селигерской улицы в Бескудниковском районе. Объект находится возле парка имени Святослава Фёдорова...

128 175 000 ₽

750 000 ₽ за м²

Позвонить эксперту whatsapp telegram
Каширская
Академический
ЦАО
Академический