Помещение на Петровке, 201 м², лот - 524

Продажа | Лот 524

Image 0
Image 1
Image 2
Image 3
Image 4
5
Image 0 Image 1 Image 2 Image 3 Image 4

Продажа

Аренда

322506100 RUB

322 506 000 ₽

1 605 000 ₽ за м²

Метро:
Пушкинская :
pedestrian  8 минут пешком
Трубная :
pedestrian  7 минут пешком
Район/округ: Тверской / ЦАО
Адрес: Петровка, 26с3
Площадь: 201 м²
Этаж: -1 этаж
Назначение: магазин бижутерия сувениры бар свободное супермаркет спортзал кафе алко-маркет бизнес
Планировка: Смежные комнаты
Высота потолков: 3.5 метра
Мебель: С мебелью
Отделка: С отделкой
Парковка: перед фасадом
Электрическая мощность (кВт): 76
Зона разгрузки: Есть
Линия: Первая
Тип входа: Отдельный со двора
Витрины есть
Помещение с арендатором площадью 200 м² в 5 минутах от станции метро «Трубная».

Коммерческое помещение на первой линии улицы Петровка в Тверском районе. Интенсивный пешеходный и автомобильный трафик. Окружение — магазин одежды Byssfit.shop, кафе «Выпечкинъ», супермаркеты «ВкусВилл» и «Азбука daily». За 7 минут пешком можно дойти до станции метро «Трубная», за 8 минут — до станции «Пушкинская».

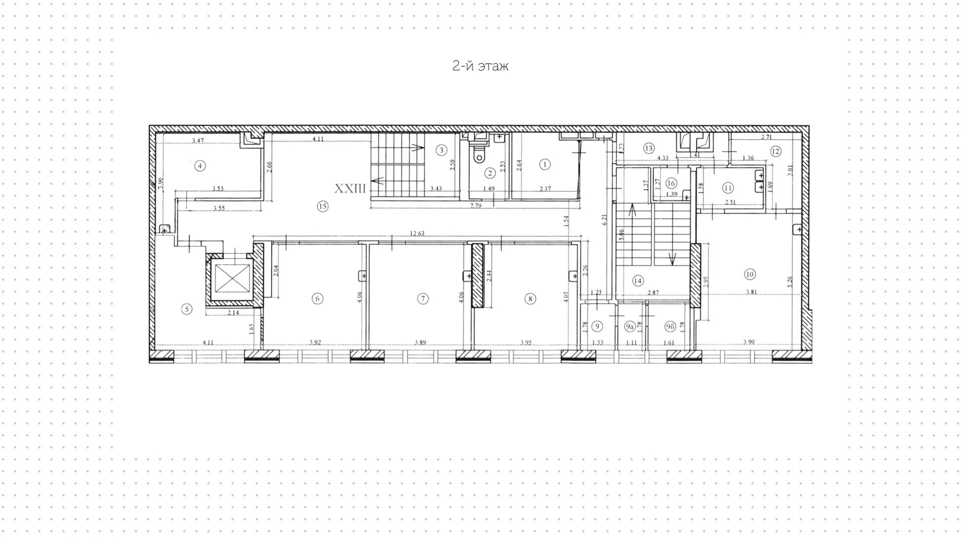
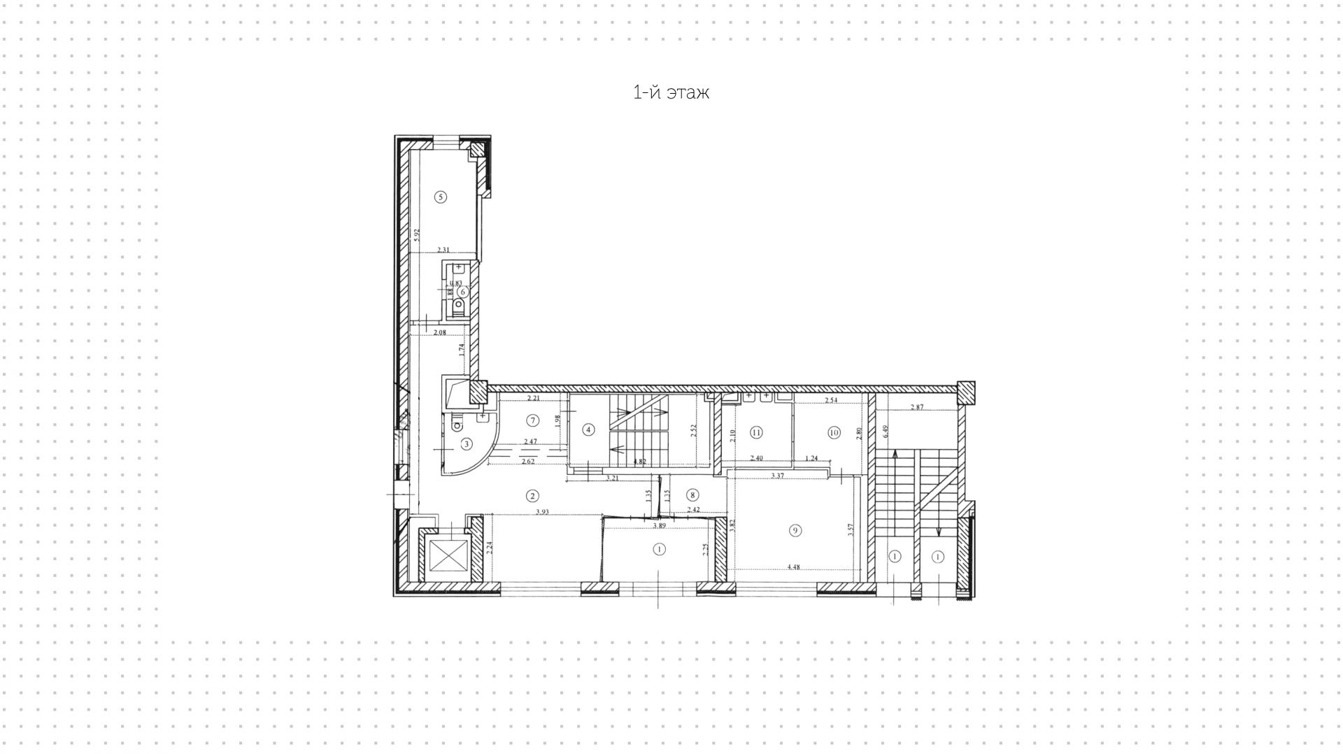
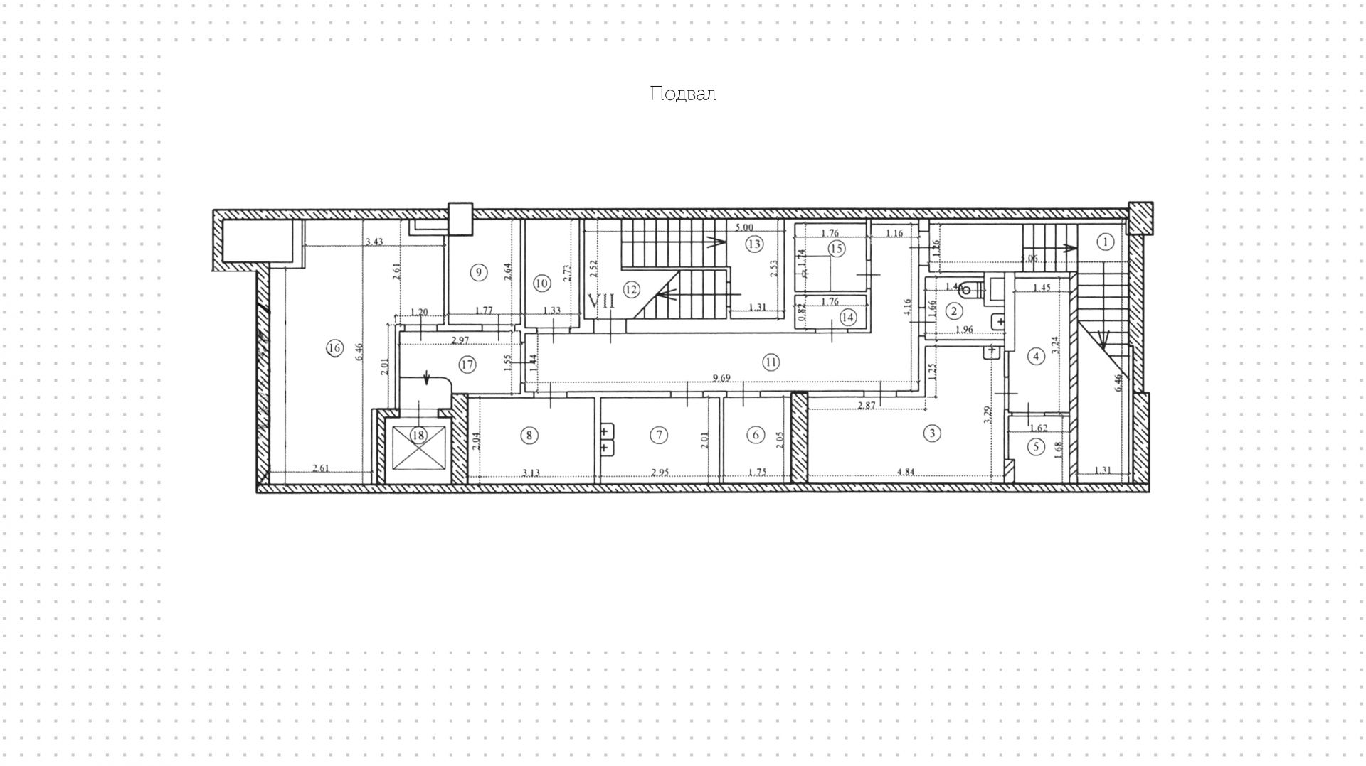
Объект с открытой планировкой площадью 201 м² расположен на первом этаже жилого дома. Выполнена отделка за выездом бара Shortlist Books&Spirits. Отдельный вход с улицы и со двора с зоной разгрузки, витринное остекление. Предусмотрена возможность размещения рекламы на фасаде. Перед зданием находится городская платная парковка.

Продажа

Аренда

322 506 000 ₽

1 605 000 ₽ за м²

Метро:
Пушкинская :
pedestrian  8 минут пешком
Трубная :
pedestrian  7 минут пешком
Район/округ: Тверской / ЦАО
Адрес: Петровка, 26с3
Площадь: 201 м²
Этаж: -1 этаж
Назначение: магазин бижутерия сувениры бар свободное супермаркет спортзал кафе алко-маркет бизнес
Планировка: Смежные комнаты
Высота потолков: 3.5 метра
Мебель: С мебелью
Отделка: С отделкой
Парковка: перед фасадом
Электрическая мощность (кВт): 76
Зона разгрузки: Есть
Линия: Первая
Тип входа: Отдельный со двора
Витрины есть
expert

Александр

Руководитель проекта

Для уточнения и фиксирования цены можно связаться напрямую с брокером

+7 (495) 106-19-99

Расположение на карте

Похожие лоты

Мы включили в наш каталог лучшие предложения по коммерческой недвижимости в Москве.

Новинка
lot-11699
lot-11699
lot-11699
lot-11699
lot-11699
lot-11699
lot-11699
lot-11699
8
Помещение под бизнес, 874 м²

Продажа | Лот 14318

Тушинская 8 мин

Москва Волоколамское шоссе, 71/22с1

Площадь: 874 м²

Назначение: Торговое помещение под  магазин супермаркет бижутерия сувениры

Арендаторы: Дикси Арендатор 2

Доходность: 3%, 842 000 ₽/мес

Окупаемость: 32 года

Готовый арендный бизнес в районе Покровское-Стрешнево. Близость стадиона «Лукойл Арена» и остановки общественного транспорта обеспечивает...

323 232 000 ₽

370 000 ₽ за м²

Новинка
lot-6187
lot-6187
lot-6187
lot-6187
lot-6187
lot-6187
lot-6187
lot-6187
lot-6187
lot-6187
lot-6187
lot-6187
lot-6187
13
Двухэтажный торговый центр с арендаторами в Лефортово

Продажа | Лот 8304

Москва Волочаевская улица, 12Ас1А

Готовый арендный бизнес на 1-й линии Волочаевской улицы в районе Лефортово. Большой поток пешеходного и автомобильного трафика, рядом...

323 932 000 ₽

140 000 ₽ за м²

Новинка
lot-14763
lot-14763
lot-14763
lot-14763
4
Помещение под бизнес, 199 м²

Продажа | Лот 31663

Лубянка 7 мин Сретенский бульвар 3 мин Тургеневская 3 мин Чистые пруды 3 мин

Москва Мясницкая, 24/7с8

Площадь: 199 м²

Назначение: Торговое помещение под  магазин бижутерия сувениры кофейня кафе фаст-фуд цветы микрокредит

Арендаторы: Разные арендаторы

Доходность: 4%, 1 159 000 ₽/мес

Окупаемость: 23 года

Нежилое здание на 1-й линии Мясницкой улицы в Басманном районе. Обеспечен интенсивный автомобильный и пешеходный трафик. Окружение...

320 000 000 ₽

1 608 000 ₽ за м²

Новинка
lot-13893
lot-13893
lot-13893
lot-13893
4
Помещение под бизнес, 201 м²

Продажа | Лот 18173

Планерная 3 мин

Москва Планерная, 7с1

Площадь: 201 м²

Назначение: Торговое помещение под  магазин аптека алко-маркет бижутерия сувениры

Арендаторы: ароматный мир, апрель, все инструменты

Доходность: 6%, 662 000 ₽/мес

Окупаемость: 17 лет

Готовый арендный бизнес в Северном Тушино. Объект располагается на 1-й линии Планерной улицы, обеспечен интенсивный автомобильный...

135 000 000 ₽

672 000 ₽ за м²

Новинка
lot-14906
lot-14906
lot-14906
lot-14906
lot-14906
lot-14906
lot-14906
7
Помещение под бизнес, 202 м²

Аренда | Лот 33749

Красный Строитель 4 мин

Москва Дорожная, 46с1

Коммерческое помещение на Дорожной улице в Южном Чертаново. Ритейл находится у въезда в жилой комплекс «Ютаново» на 8 000 жителей....

420 000 ₽ / месяц

25 000 ₽ за м² / год

Новинка
lot-12991
lot-12991
lot-12991
3
Помещение под бизнес, 200 м²

Продажа | Лот 17161

Москва Салтыковская, 6/2с4

Коммерческое помещение на Салтыковской улице в Косино-Ухтомском районе. Объект находится между въездом в жилой комплекс «Мой адрес...

70 000 000 ₽

350 000 ₽ за м²

Позвонить эксперту max whatsapp telegram
Каширская
Академический
ЦАО
Академический