Арендный бизнес в Путилково, 156 м², лот - 15740

Продажа | Лот 15740

Image 0
Image 1
Image 2
3
Image 0 Image 1 Image 2
52000000 RUB

52 000 000 ₽

333 000 ₽ за м²

МАП: 300 000 ₽
ГАП: 3 600 000 ₽
Окупаемость:
15 лет
Доходность:
7%
Адрес: Путилково, Вольная, 3
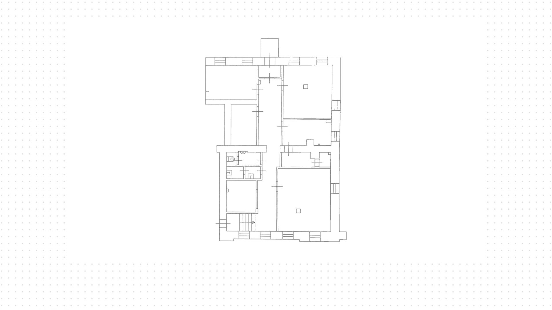
Площадь: 156 м²
Назначение: пункт выдачи
Высота потолков: 4.5 метра
Отделка: С отделкой
Парковка: перед фасадом
Электрическая мощность (кВт): 28
Линия: Первая
Тип входа: Отдельный с улицы
Витрины есть

Готовый арендный бизнес на первой линии Вольной улицы в Путилково. Объект находится у прогулочного бульвара, который соединяет жилые комплексы «Путилково» и «Большое Путилково», рядом выезд на Путилковское шоссе. Обеспечен интенсивный пешеходный и автомобильный трафик. Окружение — супермаркеты «Магнит», «Пятёрочка», алкомаркет «Винлаб», пункт выдачи Ozon.

Объект с открытой планировкой площадью 156 м² расположен на первом этаже в жилом комплексе «Большое Путилково». Арендатор — пункт выдачи Wildberries площадью 100 м², площадь 56 м² вакантна. Проведены центральные коммуникации, приточно-вытяжная вентиляция, электрическая мощность 28 кВт с возможностью увеличения. Отдельный вход с улицы, витринное остекление, у дома организована парковка.

52 000 000 ₽

333 000 ₽ за м²

МАП: 300 000 ₽
ГАП: 3 600 000 ₽
Окупаемость:
15 лет
Доходность:
7%
Адрес: Путилково, Вольная, 3
Площадь: 156 м²
Назначение: пункт выдачи
Высота потолков: 4.5 метра
Отделка: С отделкой
Парковка: перед фасадом
Электрическая мощность (кВт): 28
Линия: Первая
Тип входа: Отдельный с улицы
Витрины есть
expert

Артём

Эксперт

Для уточнения и фиксирования цены можно связаться напрямую с брокером

+7 (495) 106-19-99

Расположение на карте

Назначения
Пункт выдачи
Похожие лоты

Мы включили в наш каталог лучшие предложения по коммерческой недвижимости в Москве.

Новинка
lot-14374
lot-14374
lot-14374
lot-14374
lot-14374
lot-14374
lot-14374
7
Помещение под пункт выдачи, 102 м²

Продажа | Лот 14048

Москва Тагильская, 2с1

Площадь: 102 м²

Назначение: Торговое помещение под  магазин бижутерия сувениры

Доходность: 6%, 271 000 ₽/мес

Окупаемость: 16 лет

Готовый арендный бизнес на 1-й линии домов в Метрогородке. Развивающийся район, рядом строятся 3 жилых комплекса, интенсивный поток...

52 000 000 ₽

510 000 ₽ за м²

Новинка
lot-11179
lot-11179
lot-11179
lot-11179
lot-11179
lot-11179
lot-11179
7
Помещение под пункт выдачи, 158 м²

Продажа | Лот 13975

Москва Зеленоград, Георгиевский проспект, 27с1

Площадь: 158 м²

Назначение: Торговое помещение под  магазин бижутерия сувениры

Доходность: 9%, 361 000 ₽/мес

Окупаемость: 12 лет

Готовый арендный бизнес в Зеленограде. Жилой развивающийся район, близость школы и детского сада обеспечивает интенсивный трафик...

52 000 000 ₽

329 000 ₽ за м²

Новинка
lot-11158
lot-11158
lot-11158
lot-11158
lot-11158
lot-11158
6
Помещение под пункт выдачи, 185 м²

Продажа | Лот 13636

Москва Красногорск, Ильинский бульвар, 8

Коммерческое помещение на 1-й линии Ильинского бульвара в Красногорске. Остановка общественного транспорта обеспечивает интенсивный...

52 000 000 ₽

281 000 ₽ за м²

Новинка
lot-16100
lot-16100
lot-16100
lot-16100
lot-16100
lot-16100
lot-16100
lot-16100
lot-16100
lot-16100
10
Помещение под пункт выдачи, 156 м²

Аренда | Лот 4764

Чистые пруды 10 мин

Москва Покровка, 21-23/25с1

Коммерческое помещение на первой линии улицы Покровка в Басманном районе. Большой поток пешеходного и автомобильного трафика, рядом...

1 670 000 ₽ / месяц

128 000 ₽ за м² / год

Новинка
lot-12128
lot-12128
lot-12128
lot-12128
lot-12128
5
Помещение под пункт выдачи, 156 м²

Продажа | Лот 15236

Москва Цветочная, с2.3

Площадь: 156 м²

Назначение: Торговое помещение под  магазин супермаркет бижутерия сувениры

Арендаторы: магнит

Доходность: 10%, 414 000 ₽/мес

Окупаемость: 11 лет

Готовый арендный бизнес в Коммунарке. Жилой развивающийся район, близость бизнес-центра G10 обеспечивает большой пешеходный и автомобильный...

54 600 000 ₽

350 000 ₽ за м²

Новинка
lot-14846
lot-14846
lot-14846
lot-14846
lot-14846
5
Помещение под пункт выдачи, 155 м²

Продажа | Лот 32290

Павелецкая 2 мин

Москва Бахрушина, 28

Площадь: 155 м²

Назначение: Торговое помещение под  магазин кофейня цветы бижутерия сувениры микрокредит салон красоты парикмахерская

Доходность: 8%, 982 000 ₽/мес

Окупаемость: 14 лет

Готовый арендный бизнес в Замоскворечье. Объект располагается на первой линии улицы Бахрушина, обеспечен интенсивный автомобильный...

165 000 000 ₽

1 065 000 ₽ за м²

Позвонить эксперту max whatsapp telegram
Каширская
Академический
ЦАО
Академический