Здание в Ореховом проезде, 765 м², лот - 17109

Продажа | Лот 17109

Image 0
Image 1
Image 2
Image 3
Image 4
5
Image 0 Image 1 Image 2 Image 3 Image 4
129336000 RUB

129 336 000 ₽

169 000 ₽ за м²

Метро:
Красногвардейская :
pedestrian  9 минут пешком
Адрес: Ореховый проезд, 39А
Площадь: 765 м²
Назначение: магазин супермаркет бижутерия сувениры
Отделка: С отделкой
Парковка: перед фасадом
Зона разгрузки: Есть
Тип входа: Отдельный с улицы
Витрины есть

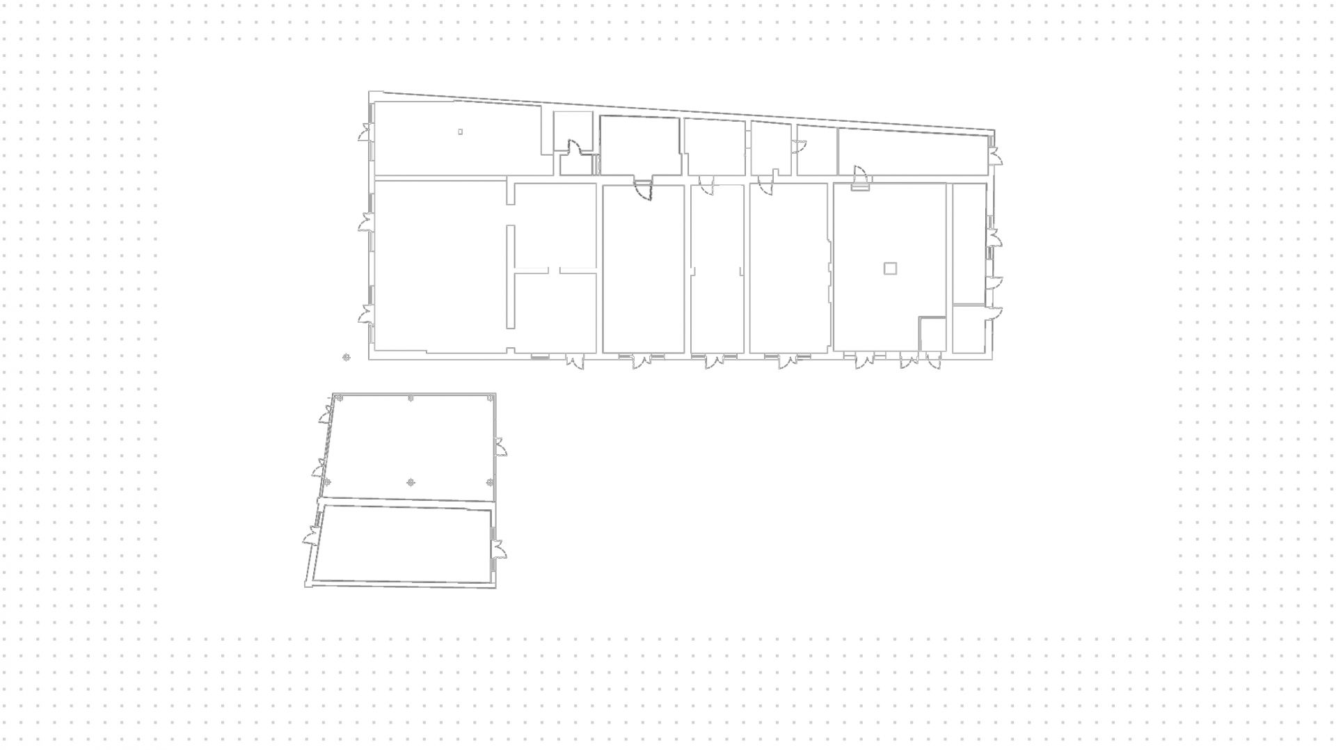
Двухэтажное здание в Ореховом проезде в Зябликово. Жилой район, большой поток пешеходного трафика, рядом поликлиника, несколько корпусов школы и детского сада. Окружение — ветеринарная клиника «Эпиона», аптека «Ригла», супермаркет «Пятёрочка». За 9 минут можно пешком дойти до станции метро «Красногвардейская».

Готовый арендный бизнес с комбинированной планировкой площадью 765 м² занимают супермаркет «Пятёрочка» и антенны «Вымпелком», «Мегафон». Первый этаж площадью 325 м², второй — 324 м². Три отдельных входа с улицы, витринное остекление. Предусмотрены зона разгрузки, место для рекламы на фасаде. У здания организована парковка.

129 336 000 ₽

169 000 ₽ за м²

Метро:
Красногвардейская :
pedestrian  9 минут пешком
Адрес: Ореховый проезд, 39А
Площадь: 765 м²
Назначение: магазин супермаркет бижутерия сувениры
Отделка: С отделкой
Парковка: перед фасадом
Зона разгрузки: Есть
Тип входа: Отдельный с улицы
Витрины есть
expert

Артём

Эксперт

Для уточнения и фиксирования цены можно связаться напрямую с брокером

+7 (495) 106-19-99

Расположение на карте

Назначения
Похожие лоты

Мы включили в наш каталог лучшие предложения по коммерческой недвижимости в Москве.

Новинка
lot-7886
lot-7886
lot-7886
lot-7886
lot-7886
lot-7886
6
Помещение на 1-м этаже жилого комплекса «Режиссер» в Ростокино

Продажа | Лот 9396

Москва Вильгельма Пика, 1

Коммерческое помещение на улице Вильгельма Пика в Ростокино. Развитый район, большой поток пешеходного и автомобильного трафика,...

129 500 000 ₽

863 000 ₽ за м²

Новинка
lot-15386
lot-15386
lot-15386
3
Помещение под сувениры, 309 м²

Продажа | Лот 34614

Москва Красногорск, Заповедная, с2.9

Площадь: 309 м²

Назначение: Торговое помещение под  магазин супермаркет бижутерия сувениры

Готовый арендный бизнес в посёлке Ильинское-Усово в Красногорске. Жилой развивающийся район, обеспечен интенсивный автомобильный...

129 500 000 ₽

419 000 ₽ за м²

Новинка
lot-13477
1
Помещение под сувениры, 228 м²

Продажа | Лот 13942

Парк Победы 20 мин Филевский парк 12 мин

Москва Василисы Кожиной, 25/1

Площадь: 228 м²

Назначение: Торговое помещение под  офис рабочее место

Офис в комплексе Ahead. Офис площадью 228 м² расположен на 3 этаже из 17, без отделки. Окна: панорамные, Schuco, алюминий, двухкамерные стеклопакеты,...

128 474 000 ₽

563 000 ₽ за м²

Новинка
lot-15372
lot-15372
lot-15372
lot-15372
4
Помещение под сувениры, 766 м²

Продажа | Лот 42020

Москва Подольск, Железнодорожная, 2с1

Площадь: 766 м²

Назначение: Торговое помещение под  магазин супермаркет аптека кафе бижутерия сувениры

Арендаторы: магнит, вьетнамская кухня, аптека вита

Доходность: 11%, 750 000 ₽/мес

Окупаемость: 10 лет

Готовый арендный бизнес в Подольске. Объект располагается на первой линии Ихтиманской улицы, обеспечен интенсивный автомобильный...

90 000 000 ₽

117 000 ₽ за м²

Новинка
lot-6544
1
Офис без отделки на 21 этаже в комплексе Stone Дмитровская

Продажа | Лот 6483

Дмитровская 5 мин

Москва Дмитровский проезд, 1Г

Площадь: 770 м²

Назначение: Торговое помещение под  офис рабочее место

334 820 000 ₽

435 000 ₽ за м²

Новинка
lot-13217
1
Помещение под сувениры, 763 м²

Продажа | Лот 14744

ЦСКА 5 мин

Москва Ходынский бульвар

Площадь: 763 м²

Назначение: Торговое помещение под  офис рабочее место

416 969 000 ₽

546 000 ₽ за м²

Позвонить эксперту whatsapp telegram
Каширская
Академический
ЦАО
Академический