Помещение на Вильгельма Пика, 152 м², лот - 9396

Продажа | Лот 9396

Image 0
Image 1
Image 2
Image 3
Image 4
Image 5
6
Image 0 Image 1 Image 2 Image 3 Image 4 Image 5

Продажа

Аренда

140000000 RUB

140 000 000 ₽

921 000 ₽ за м²

Район/округ: Ростокино / СВАО
Адрес: Вильгельма Пика, 1
Площадь: 152 м²
Назначение: магазин свободное салон красоты супермаркет спортзал бижутерия бизнес парикмахерская сувениры кафе
Высота потолков: 6 метров
Отделка: Без отделки
Парковка: городская бесплатная парковка у дороги, подземный паркинг комплекса на 427 мест
Электрическая мощность (кВт): 30
Зона разгрузки: Есть
Линия: Вторая
Тип входа: Отдельный со двора
Витрины есть

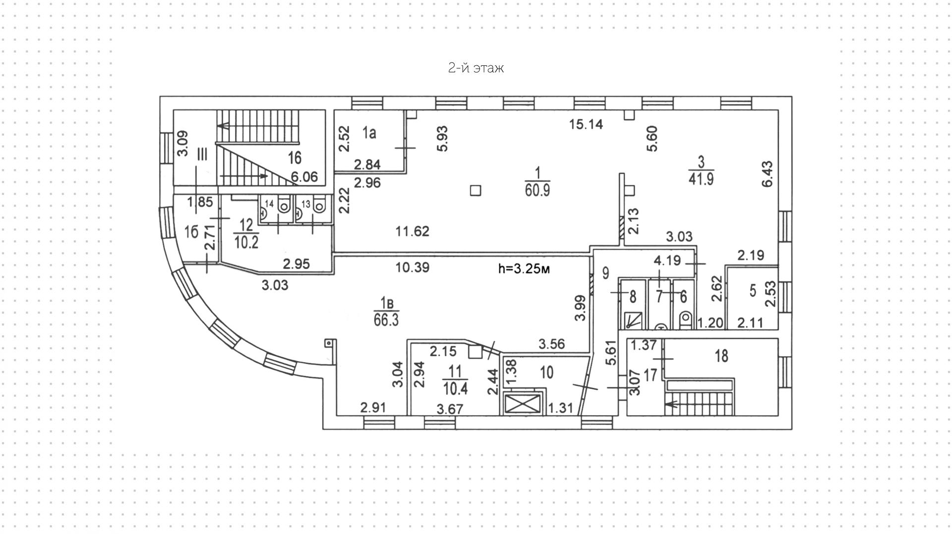
Коммерческое помещение на улице Вильгельма Пика в Ростокино. Развитый район, большой поток пешеходного и автомобильного трафика, рядом остановка общественного транспорта и вход в парк ВДНХ. В окружении расположены киностудия имени Горького и учебные заведения — ВГИК, РГСУ, МГПУ, колледж с частной школой IThub.

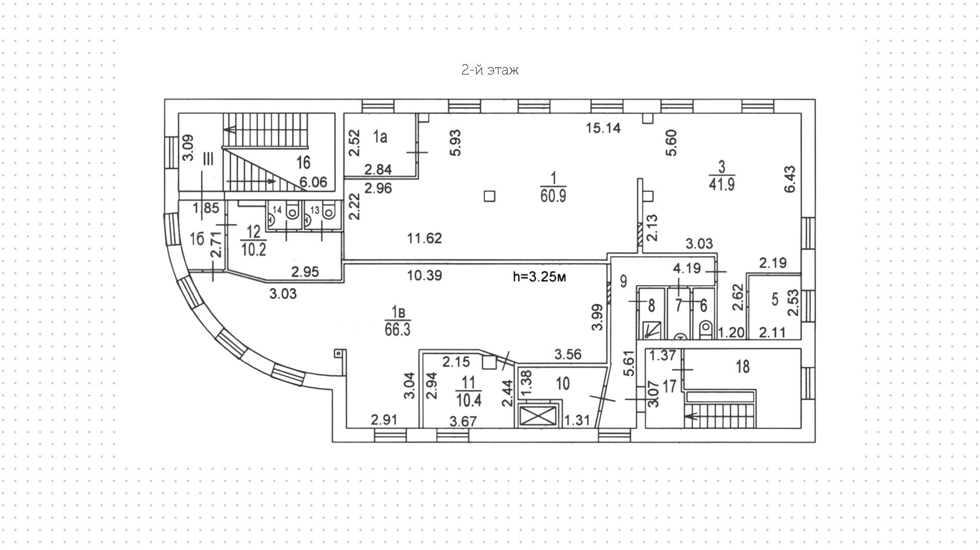
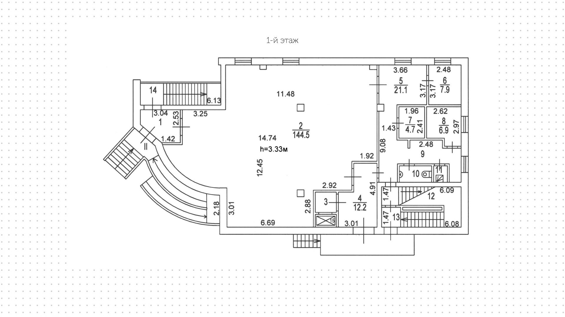
Объект с открытой планировкой площадью 152 м² расположен на 1-м этаже в жилом комплексе «Режиссер». Три отдельных входа со двора позволяют разделить помещение на блоки. Предусмотрены витринное остекление, место для рекламы на фасаде и зона разгрузки. Городская бесплатная парковка находится у дороги.

«Режиссер» — комплекс бизнес-класса из 3 башен высотой от 29 до 48 этажей объединенные общим стилобатом, всего спланировано 980 квартир. На территории предусмотрен двухуровневый подземный на 427 мест.

Продажа

Аренда

140 000 000 ₽

921 000 ₽ за м²

Район/округ: Ростокино / СВАО
Адрес: Вильгельма Пика, 1
Площадь: 152 м²
Назначение: магазин свободное салон красоты супермаркет спортзал бижутерия бизнес парикмахерская сувениры кафе
Высота потолков: 6 метров
Отделка: Без отделки
Парковка: городская бесплатная парковка у дороги, подземный паркинг комплекса на 427 мест
Электрическая мощность (кВт): 30
Зона разгрузки: Есть
Линия: Вторая
Тип входа: Отдельный со двора
Витрины есть
expert

Артём

Эксперт

Для уточнения и фиксирования цены можно связаться напрямую с брокером

+7 (495) 106-19-99

Расположение на карте

Похожие лоты

Мы включили в наш каталог лучшие предложения по коммерческой недвижимости в Москве.

Новинка
lot-14411
lot-14411
lot-14411
3
Помещение под кафе, 409 м²

Продажа | Лот 19379

Москва посёлок Боброво, Новое шоссе, 24

Площадь: 409 м²

Назначение: Торговое помещение под  магазин супермаркет бижутерия сувениры

Арендаторы: МАП - 918 680 ДДА 10 лет 6% от ТО Индексация 2%

Доходность: 11%, 1 167 000 ₽/мес

Окупаемость: 10 лет

Готовый арендный бизнес в Боброво. Жилой развивающийся район, обеспечен интенсивный автомобильный и пешеходный трафик. Окружение...

140 000 000 ₽

342 000 ₽ за м²

Новинка
lot-8684
lot-8684
lot-8684
lot-8684
lot-8684
lot-8684
lot-8684
7
Помещение под кафе, 240 м²

Продажа | Лот 10206

Москва Красногорск, Липовой Рощи, 6с1

Площадь: 240 м²

Назначение: Торговое помещение под  магазин бижутерия сувениры

Арендаторы: даркстор «Яндекс.Лавка»

Доходность: 6%, 729 000 ₽/мес

Окупаемость: 16 лет

Готовый арендный бизнес на 1-й линии домов в Красногорске. Жилой развивающийся район, большой поток пешеходного и автомобильного трафика....

140 000 000 ₽

583 000 ₽ за м²

Новинка
lot-13867
lot-13867
2
Помещение под кафе, 324 м²

Продажа | Лот 12080

Воронцовская 2 мин Калужская 6 мин

Москва Старокалужское шоссе, 64/1

Площадь: 324 м²

Назначение: Торговое помещение под  офис рабочее место

Офис в комплексе Stone Калужская. Офис площадью 341 м² расположен на 14 этаже из 23, без отделки. Окна: панорамные, возможность естественного...

139 687 000 ₽

431 000 ₽ за м²

Новинка
lot-14866
lot-14866
lot-14866
lot-14866
lot-14866
lot-14866
lot-14866
lot-14866
8
Помещение под кафе, 152 м²

Аренда | Лот 32814

Краснопресненская 5 мин Улица 1905 года 7 мин

Москва Красная Пресня, 21

Коммерческое помещение на 1-й линии улицы Красная Пресня в Пресненском районе. Обеспечен интенсивный пешеходный и автомобильный трафик,...

980 000 ₽ / месяц

77 000 ₽ за м² / год

Новинка
lot-16014
lot-16014
lot-16014
lot-16014
4
Помещение под кафе, 152 м²

Аренда | Лот 46898

Кузнецкий Мост 4 мин Лубянка 4 мин

Москва Кузнецкий Мост, 21/5

Коммерческое помещение на первой линии улицы Кузнецкий Мост в Мещанском районе. Объект находится на площади Воровского, обеспечен...

1 200 000 ₽ / месяц

95 000 ₽ за м² / год

Новинка
lot-15834
lot-15834
lot-15834
lot-15834
lot-15834
5
Помещение под кафе, 152 м²

Продажа | Лот 45594

Москва Домодедово, Высотная, с13

Площадь: 152 м²

Назначение: Торговое помещение под  магазин пункт выдачи бижутерия сувениры

Доходность: 5%, 163 000 ₽/мес

Окупаемость: 21 год

Готовый арендный бизнес в Домодедово. Развивающийся район с потенциальным населением около 60 000 человек. Объект находится возле въезда...

41 040 000 ₽

270 000 ₽ за м²

Позвонить эксперту max whatsapp telegram
Каширская
Академический
ЦАО
Академический