Арендный бизнес в Николоямском переулке, 157 м², лот - 15173

Продажа | Лот 15173

Image 0
Image 1
Image 2
Image 3
Image 4
Image 5
Image 6
7
Image 0 Image 1 Image 2 Image 3 Image 4 Image 5 Image 6
48000000 RUB

48 000 000 ₽

306 000 ₽ за м²

Арендаторы: Озон Вайлдберриз Озон
МАП: 428 000 ₽
ГАП: 5 141 000 ₽
Окупаемость:
10 лет
Доходность:
11%
Район/округ: Таганский / ЦАО
Адрес: Николоямский переулок, 3Ак4
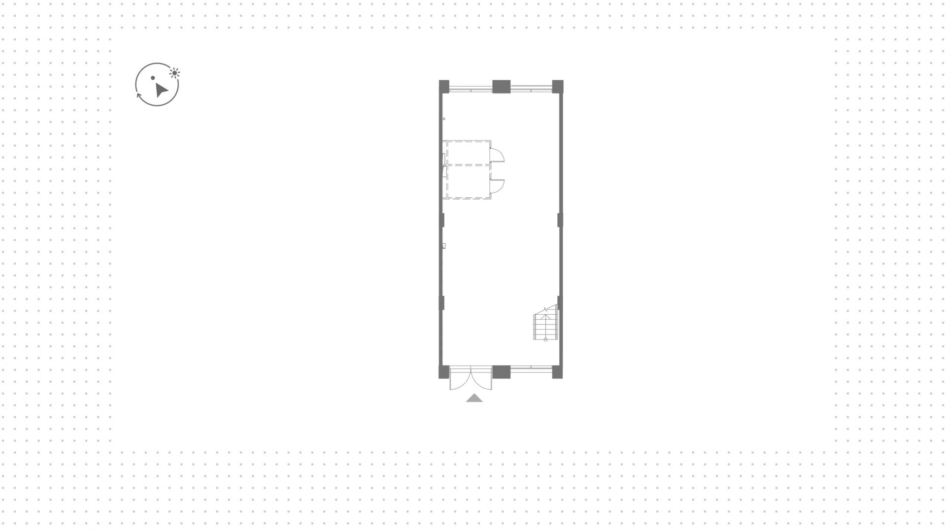
Площадь: 157 м²
Назначение: магазин пункт выдачи бижутерия сувениры
Высота потолков: 3.2 метра
Отделка: С отделкой
Парковка: бесплатная перед зданием
Электрическая мощность (кВт): 35
Зона разгрузки: Есть
Линия: Первая
Тип входа: Отдельный с улицы
Витрины есть

Готовый арендный бизнес на 1-й линии Николямского переулка в Таганском районе. Интенсивный поток пешеходного и автомобильного трафика. Окружение — супермаркет «Азбука вкуса», «Аптека 36,6», салон красоты Venice Beauty Club, магазин цветов «Ирис». Организован быстрый выезд на Садовое кольцо через Николямскую набережную.

Объект с открытой планировкой площадью 157 м² расположен на 1-м этаже в жилом доме. Арендаторы — пункты выдачи OZON, Wildberries и «Яндекс Маркет». Два отдельных входа с улицы, предусмотрена зона разгрузки. На фасаде спланировано место для размещения рекламы. Бесплатная парковка находится перед зданием.

48 000 000 ₽

306 000 ₽ за м²

Арендаторы: Озон Вайлдберриз Озон
МАП: 428 000 ₽
ГАП: 5 141 000 ₽
Окупаемость:
10 лет
Доходность:
11%
Район/округ: Таганский / ЦАО
Адрес: Николоямский переулок, 3Ак4
Площадь: 157 м²
Назначение: магазин пункт выдачи бижутерия сувениры
Высота потолков: 3.2 метра
Отделка: С отделкой
Парковка: бесплатная перед зданием
Электрическая мощность (кВт): 35
Зона разгрузки: Есть
Линия: Первая
Тип входа: Отдельный с улицы
Витрины есть
expert

Наталья

Эксперт проекта

Для уточнения и фиксирования цены можно связаться напрямую с брокером

+7 (495) 106-19-99

Расположение на карте

Назначения
Похожие лоты

Мы включили в наш каталог лучшие предложения по коммерческой недвижимости в Москве.

Новинка
lot-11341
lot-11341
lot-11341
lot-11341
lot-11341
lot-11341
lot-11341
lot-11341
lot-11341
lot-11341
10
Помещение под сувениры, 173 м²

Продажа | Лот 13648

Москва бульвар Веласкеса, 5с2

Площадь: 173 м²

Назначение: Торговое помещение под  магазин кафе бижутерия сувениры

Арендаторы: Хатимаки

Доходность: 6%, 250 000 ₽/мес

Окупаемость: 16 лет

Готовый арендный бизнес на 1-й линии Испанского бульвара в Коммунарке. Объект находится в центре жилого комплекса «Испанские Кварталы»,...

48 000 000 ₽

277 000 ₽ за м²

Новинка
lot-14631
lot-14631
lot-14631
lot-14631
lot-14631
lot-14631
6
Помещение под сувениры, 114 м²

Продажа | Лот 29994

Митино 3 мин

Москва Дубравная, 36

Площадь: 114 м²

Назначение: Торговое помещение под  магазин салон красоты пункт выдачи бижутерия парикмахерская сувениры

Арендаторы: озон, салон красоты, табак

Доходность: 9%, 333 000 ₽/мес

Окупаемость: 12 лет

Готовый арендный бизнес на Дубравной улице в Митино. Жилой район, близость торгово-развлекательного центра «Ладья» и остановки общественного...

48 000 000 ₽

421 000 ₽ за м²

Новинка
lot-14746
lot-14746
lot-14746
lot-14746
4
Помещение под сувениры, 128 м²

Продажа | Лот 30992

Москва Лобненская, 14

Площадь: 128 м²

Назначение: Торговое помещение под  магазин алко-маркет бижутерия сувениры

Арендаторы: Винлаб

Доходность: 11%, 399 000 ₽/мес

Окупаемость: 10 лет

Готовый арендный бизнес на Лобненской улице в Дмитровском районе. Большой поток пешеходного и автомобильного трафика, рядом остановка...

47 880 000 ₽

374 000 ₽ за м²

Новинка
lot-13406
lot-13406
2
Помещение под сувениры, 157 м²

Продажа | Лот 13756

Площадь Ильича 9 мин Римская 9 мин

Москва Золоторожский Вал, 11/1

Площадь: 157 м²

Назначение: Торговое помещение под  офис рабочее место

Офис в комплексе Stone Римская. Офис площадью 158 м² расположен на 9 этаже из 18, без отделки. Предусмотрена терраса. Окна: панорамные, возможность...

74 025 000 ₽

471 000 ₽ за м²

Новинка
lot-13408
lot-13408
2
Помещение под сувениры, 157 м²

Продажа | Лот 13758

Площадь Ильича 9 мин Римская 9 мин

Москва Золоторожский Вал, 11/1

Площадь: 157 м²

Назначение: Торговое помещение под  офис рабочее место

Офис в комплексе Stone Римская. Офис площадью 158 м² расположен на 10 этаже из 18, без отделки. Предусмотрена терраса. Окна: панорамные, возможность...

74 338 000 ₽

473 000 ₽ за м²

Позвонить эксперту whatsapp telegram
Каширская
Академический
ЦАО
Академический