Помещение в Балашихе, 124 м², лот - 29423

Продажа | Лот 29423

Image 0
Image 1
Image 2
Image 3
Image 4
Image 5
6
Image 0 Image 1 Image 2 Image 3 Image 4 Image 5

Продажа

Аренда

45000000 RUB

45 000 000 ₽

363 000 ₽ за м²

Адрес: Балашиха, Колдунова, 1
Площадь: 124 м²
Назначение: магазин свободное банк салон красоты кафе продуктовый магазин бижутерия бизнес парикмахерская продукты сувениры
Высота потолков: 3.3 метра
Отделка: Без отделки
Парковка: перед фасадом
Электрическая мощность (кВт): 25
Тип входа: Отдельный с улицы
Витрины есть

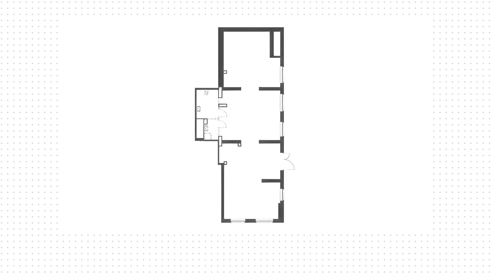
Коммерческое помещение на улице Колдунова в городе Балашиха. Ритейл находится в жилом комплексе «Квартал Авиаторов» на 20 000 человек, в проекте спланированы детский сад и поликлиника. Обеспечен большой пешеходный и автомобильный трафик. Окружение — супермаркеты «Магнит» и «Пятёрочка».

Объект с открытой планировкой площадью 124 м² расположен на 1-м этаже в жилом доме. В помещении проведены инженерные коммуникации, подойдет под размещение салона красоты, продуктового магазина или банка. Отдельный вход с улицы, витринное остекление, предусмотрено место для рекламы на фасаде. У дома организована парковка.

Продажа

Аренда

45 000 000 ₽

363 000 ₽ за м²

Адрес: Балашиха, Колдунова, 1
Площадь: 124 м²
Назначение: магазин свободное банк салон красоты кафе продуктовый магазин бижутерия бизнес парикмахерская продукты сувениры
Высота потолков: 3.3 метра
Отделка: Без отделки
Парковка: перед фасадом
Электрическая мощность (кВт): 25
Тип входа: Отдельный с улицы
Витрины есть
expert

Павел

Эксперт

Для уточнения и фиксирования цены можно связаться напрямую с брокером

+7 (495) 106-19-99

Расположение на карте

Похожие лоты

Мы включили в наш каталог лучшие предложения по коммерческой недвижимости в Москве.

Новинка
lot-15492
lot-15492
lot-15492
lot-15492
lot-15492
5
Помещение под сувениры, 103 м²

Продажа | Лот 11707

Москва Ленинградское шоссе, 124с3

Площадь: 103 м²

Назначение: Торговое помещение под  магазин алко-маркет бижутерия сувениры

Арендаторы: алкомаркет «Винлаб»

Доходность: 9%, 313 000 ₽/мес

Окупаемость: 12 лет

Готовый арендный бизнес в Левобережном районе. Интенсивный поток пешеходного и автомобильного трафика, рядом остановка общественного...

45 000 000 ₽

437 000 ₽ за м²

Новинка
lot-15780
lot-15780
lot-15780
3
Помещение под сувениры, 121 м²

Продажа | Лот 44853

Москва Любучанская, 2с1

Площадь: 121 м²

Назначение: Торговое помещение под  магазин аптека пункт выдачи бижутерия сувениры

Арендаторы: ригла, wildberries

Доходность: 9%, 341 000 ₽/мес

Окупаемость: 11 лет

Готовый арендный бизнес на 1 линии Любучанского переулка в Щербинке. Близость Остафьевского шоссе, остановки общественного транспорта...

45 000 000 ₽

372 000 ₽ за м²

Новинка
lot-14651
lot-14651
lot-14651
lot-14651
lot-14651
lot-14651
lot-14651
7
Помещение под сувениры, 625 м²

Продажа | Лот 30192

Москва Люберцы, Октябрьский проспект, 375В

Площадь: 625 м²

Назначение: Торговое помещение под  магазин пункт выдачи алко-маркет бижутерия сувениры аптека

Арендаторы: ВБ Красное и белое Озон Аптека и оптика

Доходность: 9%, 313 000 ₽/мес

Окупаемость: 12 лет

Готовый арендный бизнес на 1-й линии Октябрьского проспекта в Люберцах. Жилой район, большой поток пешеходного и автомобильного трафик,...

45 000 000 ₽

72 000 ₽ за м²

Новинка
lot-12141
lot-12141
lot-12141
lot-12141
lot-12141
lot-12141
6
Помещение под сувениры, 124 м²

Аренда | Лот 15337

Красный Строитель 8 мин

Москва Дорожная, 46с3

Коммерческое угловое помещение на Дорожной улице в Южном Чертаново. Интенсивный пешеходный и автомобильный трафик, напротив объекта...

500 000 ₽ / месяц

48 000 ₽ за м² / год

Новинка
lot-15264
lot-15264
2
Помещение под сувениры, 124 м²

Продажа | Лот 12834

Прокшино 1 мин

Москва поселение Сосенское, квартал № 35

Площадь: 124 м²

Назначение: Торговое помещение под  офис рабочее место

Офис в комплексе Бизнес-квартал Прокшино. Офис площадью 124 м² расположен на 6 этаже из 12, без отделки. Окна: панорамные, Энергоэффективное...

35 156 000 ₽

284 000 ₽ за м²

Новинка
lot-15277
lot-15277
2
Помещение под сувениры, 124 м²

Продажа | Лот 15973

Прокшино 1 мин

Москва поселение Сосенское, квартал № 35

Площадь: 124 м²

Назначение: Торговое помещение под  офис рабочее место

Офис в комплексе Бизнес-квартал Прокшино. Офис площадью 124 м² расположен на 8 этаже из 12, без отделки. Окна: панорамные, Энергоэффективное...

36 023 000 ₽

291 000 ₽ за м²

Позвонить эксперту max whatsapp telegram
Каширская
Академический
ЦАО
Академический