Помещение в 1-м Котляковском переулке, 102 м², лот - 13712

Продажа | Лот 13712

Image 0
Image 1
Image 2
3
Image 0 Image 1 Image 2
40000000 RUB

40 000 000 ₽

392 000 ₽ за м²

Метро:
Варшавская :
pedestrian  7 минут пешком
Район/округ: Москворечье-Сабурово / ЮАО
Адрес: 1-й Котляковский переулок, 2Ас3В
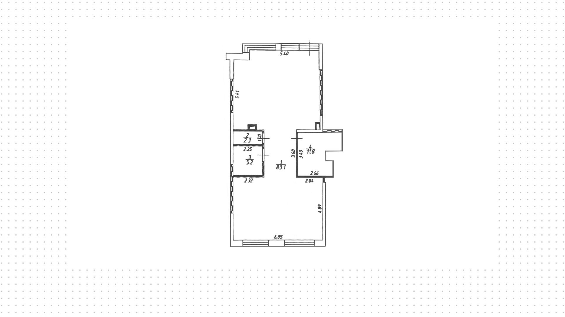
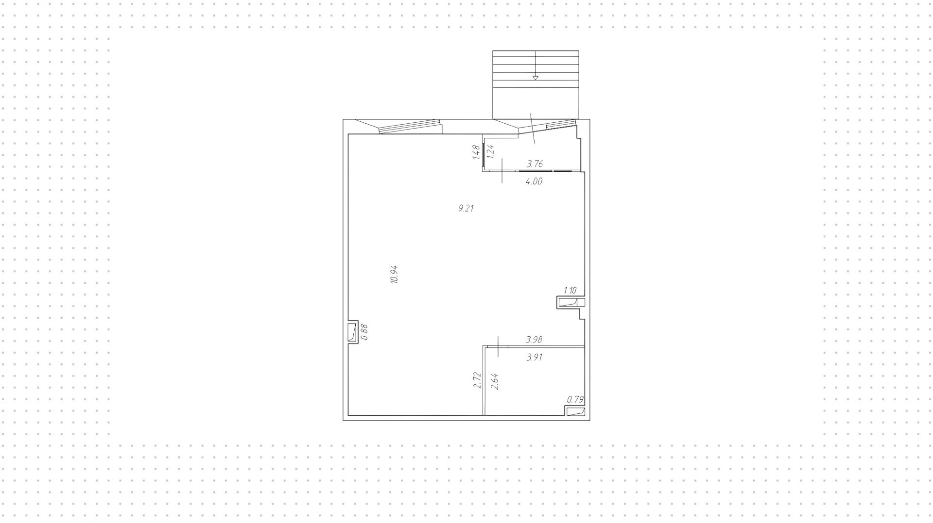
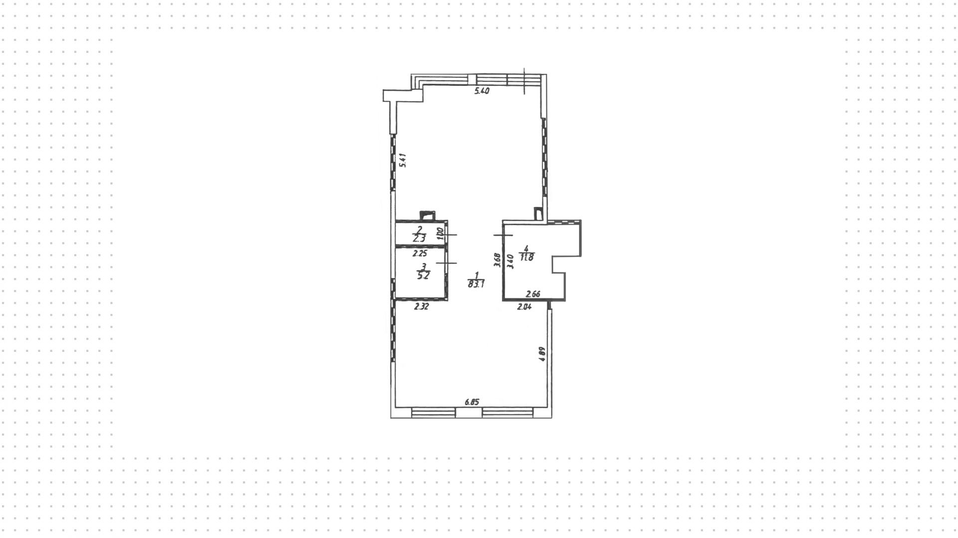
Площадь: 102 м²
Назначение: магазин свободное банк салон красоты шоурум спортзал бижутерия бизнес парикмахерская сувениры
Высота потолков: 5.95 метров
Отделка: Без отделки
Парковка: перед фасадом здания
Электрическая мощность (кВт): 20
Тип входа: Отдельный с улицы
Витрины есть

Коммерческое помещение в районе Москворечье-Сабурово. Близость к школе обеспечивает интенсивный поток пешеходного трафика. Окружение — алкомаркет «Красное&Белое», супермаркет «Пятёрочка», пункт выдачи Wildberries. За 7 минут пешком можно дойти до станции метро «Варшавская».

Объект с открытой планировкой площадью 102 м² расположен на 1-м этаже жилого дома в комплексе «Life Варшавская». Помещение подойдет под размещение салона красоты, фитнес-клуба, шоурума. Установлена вытяжка, отдельный вход с улицы, витринное остекление. Перед фасадом здания предусмотрена парковка.

При необходимости мы поможем с поиском арендатора для вашего помещения.

40 000 000 ₽

392 000 ₽ за м²

Метро:
Варшавская :
pedestrian  7 минут пешком
Район/округ: Москворечье-Сабурово / ЮАО
Адрес: 1-й Котляковский переулок, 2Ас3В
Площадь: 102 м²
Назначение: магазин свободное банк салон красоты шоурум спортзал бижутерия бизнес парикмахерская сувениры
Высота потолков: 5.95 метров
Отделка: Без отделки
Парковка: перед фасадом здания
Электрическая мощность (кВт): 20
Тип входа: Отдельный с улицы
Витрины есть
expert

Александр

Эксперт проекта

Для уточнения и фиксирования цены можно связаться напрямую с брокером

+7 (495) 106-19-99

Расположение на карте

Похожие лоты

Мы включили в наш каталог лучшие предложения по коммерческой недвижимости в Москве.

Новинка
lot-15856
lot-15856
lot-15856
lot-15856
4
Помещение под сувениры, 153 м²

Продажа | Лот 45841

Москва Люберцы, Академика Северина, 12

Площадь: 153 м²

Назначение: Торговое помещение под  магазин спортзал бижутерия сувениры

Арендаторы: студия танцев Seven78eight

Доходность: 11%, 333 000 ₽/мес

Окупаемость: 10 лет

Готовый арендный бизнес в Люберцах. Жилой развивающийся район, обеспечен интенсивный автомобильный и пешеходный трафик. Окружение...

40 000 000 ₽

261 000 ₽ за м²

Новинка
lot-14549
lot-14549
lot-14549
3
Помещение под сувениры, 97 м²

Продажа | Лот 29307

Москва Балашиха, Реутовская, 27

Площадь: 97 м²

Назначение: Торговое помещение под  магазин салон красоты бижутерия парикмахерская сувениры

Арендаторы: химчистка, турагентсво, косметология, мастерская, брови и ресницы, постомат аликэспресс

Доходность: 8%, 256 000 ₽/мес

Окупаемость: 13 лет

Готовый арендный бизнес в Балашихе. Жилой развивающийся район, обеспечен интенсивный автомобильный и пешеходный трафик. Окружение...

40 000 000 ₽

412 000 ₽ за м²

Новинка
lot-14688
lot-14688
lot-14688
lot-14688
lot-14688
lot-14688
lot-14688
7
Помещение под сувениры, 148 м²

Продажа | Лот 30657

Водный стадион 10 мин

Москва Конаковский проезд, 4с2

Площадь: 148 м²

Назначение: Торговое помещение под  магазин пункт выдачи бижутерия сувениры

Арендаторы: мульти пвз wildberries, ozon, яндекс

Доходность: 9%, 278 000 ₽/мес

Окупаемость: 12 лет

Готовый арендный бизнес в Конаковском проезде в Головинском районе. Близость школы и детского сада обеспечивает большой пешеходный...

40 000 000 ₽

270 000 ₽ за м²

Новинка
lot-14740
lot-14740
lot-14740
3
Помещение под сувениры, 102 м²

Аренда | Лот 30986

Динамо 6 мин Петровский парк 6 мин

Москва Ленинградский проспект, 35с2

Коммерческое помещение на Ленинградском проспекте в Беговом районе. Объект находится в жилом комплексе «Искра Парк», возле одноимённого...

585 000 ₽ / месяц

69 000 ₽ за м² / год

Новинка
lot-14749
lot-14749
lot-14749
lot-14749
lot-14749
lot-14749
6
Помещение под сувениры, 102 м²

Аренда | Лот 31453

Филевский парк 4 мин

Москва Олеко Дундича, 31с1

Коммерческое помещение на 1-й линии улицы Олеко Дундича в Фили-Давыдково. Жилой район, большой поток пешеходного и автомобильного...

600 000 ₽ / месяц

71 000 ₽ за м² / год

Новинка
lot-15313
lot-15313
lot-15313
lot-15313
lot-15313
5
Помещение под сувениры, 102 м²

Аренда | Лот 34039

Новокузнецкая 8 мин

Москва Садовническая, 29

Коммерческое помещение на Садовнической улице в Замоскворечье. Объект находится на территории жилого комплекса Balchug Residence, обеспечен...

600 000 ₽ / месяц

71 000 ₽ за м² / год

Позвонить эксперту whatsapp telegram
Каширская
Академический
ЦАО
Академический